Estudios

CIUDAD Y TERRITORIO

ESTUDIOS TERRITORIALES

ISSN(P): 1133-4762; ISSN(E): 2659-3254

Vol. LV, Nº 216, verano 2023

Págs. 407-430

https://doi.org/10.37230/CyTET.2023.216.8

CC BY-NC-ND

Logo CC BY-NC-ND

Modernización urbana y arquitectura neogótica en el casco antiguo de la Ciudad de México: el caso del Edificio de Correos y el Banco Agrícola e Hipotecario, 1899-1907

Martín Manuel Checa-Artasu(1)
Francisco Javier Navarro-Jiménez (2)

(1) Profesor investigador

(2) Docente y candidato a doctor

(1) Universidad Autónoma Metropolitana de México, Unidad Iztapalapa

(2) Instituto de Investigaciones Dr. José María Luis Mora

Resumen: Se analiza el lugar de la arquitectura civil neogótica como elemento espacial y simbólico dentro del proceso de modernización urbana de finales del siglo XIX en la Ciudad de México. Para ello, se estudian los casos del Edificio de Correos y del Banco Agrícola e Hipotecario. El análisis de su historia constructiva, de sus agentes involucrados, de la vocación de su espacio, así como de los simbolismos de sus formas góticas, muestran que ambos edificios fueron un reflejo del proceso urbano modernizador de la Ciudad de México y de sus conexiones a diferentes escalas en la globalidad finisecular. El artículo es producto de una exhaustiva investigación sin precedentes sobre las fuentes históricas documentales en torno a estos dos edificios, únicos ejemplos en pie de este tipo de arquitectura dentro de la zona declarada Patrimonio Mundial de la Humanidad del Centro Histórico de la Ciudad de México.

Palabras clave: Modernización urbana; Arquitectura neogótica; Ciudad de México; Palacio Postal; Banco Agrícola e Hipotecario.

Urban modernization and neogothic architecture in the old town of Mexico City: the case of the Post Office Building and the Agricultural & Mortgage Bank at the turn of 20th century

Abstract: This article aims to analyze the place of neo-Gothic civil architecture as a spatial and symbolic element within the process of urban modernization at the end of the 19th century in Mexico City. For this, the cases of the Post Office Building and the Agricultural and Mortgage Bank are studied. The analysis of its constructive history, of its agents involved, of the vocation of its space, as well as of the symbolism of its Gothic forms, shows that both buildings were a reflection of the modernizing urban process of Mexico City and its connections to different scales in the globality at the Turn of the Century. The article is the product of one of an exhaustive investigation without precedent on the historical documentary sources around these two buildings, the only standing examples of this type of architecture within the area declared a World Heritage Site of the Historic Downtown of Mexico City.

Keywords: Urban Modernization; Neo-gothic architecture; Mexico City; Postal Palace; Agricultural and Mortage Bank.

Recibido: 13.04.2022; Revisado: 05.07.2022

Correo electrónico (1): martinchecaartasu@gmail.com ; Nº ORCID: https://orcid.org/0000-0002-6372-2938

Correo electrónico (2): francisconavarro1884@gmail.com ; Nº ORCID: https://orcid.org/0000-0003-3641-8567

Los autores agradecen los comentarios y sugerencias realizados por los evaluadores anónimos, que han contribuido a mejorar y enriquecer el manuscrito original.

1. Introducción

La modernización urbana fue un proceso de transformación de los espacios centrales y periféricos de las ciudades, así como de sus usos, que se produjo durante la segunda mitad del siglo XIX a través de la renovación o la inserción de nuevas actividades y prácticas seculares, sobre todo las ligadas a la economía liberal, la educación y el ocio (Navarro, 2017). En el caso de la Ciudad de México esta transformación se dio en un contexto de inversión estatal para el desarrollo de nuevas infraestructuras y la puesta al día de servicios públicos como el transporte y las comunicaciones. Aunado a ello, se incentivó la inversión privada para el establecimiento de la industria, los servicios financieros y la vivienda bajo el régimen de la pequeña propiedad privada (Navarro, 2021, pp. 125-126). Todas estas actividades detonaron la generación de nuevas trazas urbanas tanto en los cascos antiguos a través de la apertura de calles y avenidas, como en las nuevas periferias que iban conformando el ensanche de la ciudad a través de urbanizaciones de diferente vocación -habitacional, industrial y nodos de transporte-. A una escala menor, la traza urbana se convirtió en la plataforma a partir de la cual se proyectaron las nuevas sedes y edificios que a nivel constructivo, estético y simbólico fueron materializando el artilugio modernizador de la ciudad (Navarro, 2016, pp. 100-105).

Una de las particularidades de aquellas nuevas edificaciones fue el lenguaje morfológico que se utilizó para definir su estilo y sus funciones en una ciudad finisecular que de a poco se insertaba en lo que Paul Garner (2011, p.10) llamó “la primera globalización”. A ambas dimensiones deben incorporarse los procesos constructivos de los edificios y los agentes que les dieron vida. Así, a través de la lectura de dichos proyectos arquitectónicos, es posible identificar el lugar que tuvieron dentro del amplio proceso de modernización urbana en la ciudad. En ese sentido, la adopción de tal o cual historicismo en el diseño arquitectónico de aquellos nuevos edificios, así como su vinculación simbólica y sus funciones espaciales en el contexto de la modernización, constituyen elementos relevantes para la comprensión de aquella importante transformación de la ciudad.

El desarrollo de los historicismos arquitectónicos tuvo su auge en México y en la capital del país entre la segunda mitad del siglo XIX y las primeras tres décadas del XX. Durante ese periodo se construyeron una serie de edificios con distinta vocación y bajo diseños historicistas medievalizantes. Estilos como el románico, el bizantino, el gótico -y en menor medida el islámico- se reinterpretaron bajo las condiciones socioculturales y tecnológicas del siglo XIX, imprimiéndoles características particulares que los situaron más allá de una simple copia. En México, los estudios sobre dichos historicismos a partir de investigaciones documentales han sido más bien precarios y se han centrado más en el recuento de obras que en un análisis detallado (Katzman, 2016; Canales, 2013; De Anda, 2006; Vargas Salguero, 1998). Esta escasez se debe en parte a una cierta subestimación y estigmatización sobre la arquitectura europeizante u orientalista del Porfiriato, frente a la tradición posrevolucionaria nacionalista que permeó durante buena parte del siglo XX.

Bajo aquellos lenguajes arquitectónicos se construyeron edificios bastante destacados. Dos de ellos son el Edificio de Correos -hoy llamado Palacio Postal-, obra del ingeniero italiano Adamo Boari y del ingeniero mexicano Gonzalo Garita; y el Banco Agrícola e Hipotecario de México, obra del arquitecto Nicolás Mariscal. Ambos ejemplos se diseñaron bajo el historicismo gótico y actualmente se encuentran dentro de la zona declarada Patrimonio Mundial de la Humanidad del Centro Histórico de la Ciudad de México. Amén de su función y del estilo arquitectónico, la construcción de estos dos edificios estuvo asociada, por una parte, a la modernización finisecular de los servicios postales gestionados por el Estado mexicano y, por otra, a la consolidación de la banca de capital privado en el país. En ambos casos, su emplazamiento dentro del casco antiguo se concatenó con una serie de transformaciones asociadas a la modernización de los espacios centrales de la ciudad a través de la expansión de las actividades seculares y el desarrollo de una economía en pleno proceso de liberalización.

Este artículo reconstruye los pormenores históricos en torno al origen de los proyectos y el desarrollo de las obras tanto del Edificio de Correos como del Edificio del Banco Agrícola e Hipotecario de México. En un segundo momento se indaga sobre las razones que explican el uso del historicismo arquitectónico gótico en el diseño de ambas sedes. Finalmente, se explica cómo la construcción de estos se articuló con el proceso de modernización del casco antiguo de la ciudad a través de la inserción de actividades seculares. Igualmente, se apunta a la relación de ambos edificios con otros ejemplos foráneos de similares características. El estudio de los casos presentados está basado en investigaciones llevadas a cabo en diversos archivos históricos de la Ciudad de México.1 Este trabajo, además de documentar por primera vez el origen de los proyectos y el desarrollo de las obras constructivas de los casos presentados, aporta nuevos conocimientos sobre la poco estudiada arquitectura historicista de corte medievalista de la Ciudad de México.

2. El neogótico y la arquitectura civil en la Ciudad de México

El neogótico es uno de los historicismos arquitectónicos menos conocidos y valorizados dentro del espectro patrimonial de la Ciudad de México. Los inmuebles con esas características han sido poco o nulamente investigados, por lo tanto, su estudio casi siempre se ha remitido a cuestiones visuales o descriptivas a partir sobre todo de su morfología. Así, en los dos ejemplos que analizamos -el edificio de Correos y el Banco Agrícola-, el conocimiento de su dimensión histórica y de los valores estilísticos e identitarios vinculados a ella devienen aspectos fundamentales dentro de los esfuerzos para una futura revalorización patrimonial de la arquitectura neogótica.

El neogótico como estilo arquitectónico comenzó a desarrollarse durante el último tercio del siglo XVIII en la Gran Bretaña. Las razones de este desarrollo temprano las podemos encontrar dentro de las corrientes académicas de la eclesiología anglosajona y en los influjos del Romanticismo que exaltaban el regreso a la espiritualidad y monumentalidad del mundo medieval. De allí, el neogótico se difundió rápidamente hacia la Europa continental, a través de un discurso histórico-estético, que buscaba reforzar la idea de un origen nacional enraizado en el pasado medieval. Así, para la primera mitad del siglo XIX el neogótico era ya uno de los historicismos más utilizados en toda Europa y también en la América anglosajona (Checa Artasu, 2016a, p. 327).

En México, el estilo tuvo diferentes vías de entrada y difusión espacial durante la segunda mitad del siglo XIX, siendo las corrientes historicistas restauracionistas francesas, los influjos de la eclesiología inglesa y la estrategia comunicativa del catolicismo de retorno al pasado medieval las más relevantes. Ello explica por qué la arquitectura religiosa fue la que mayor uso hizo del neogótico en el país durante todo el último tercio del siglo XIX y hasta la primera década del siglo XX, pero con notorias continuidades a lo largo del siglo XX (Checa Artasu, 2016b, p. 45).

Tipología

N° ejemplos

% respecto total

N° ejemplos
Ciudad de México

% respecto total Ciudad de México

Construcción nueva de templos

101

24,16

16

34,78

Arquitectura civil

97

23,21

19

41,30

Mobiliario y decoración interior en templos

69

16,51

0

0

Elementos exteriores en templos

53

12,68

1

2,17

Elementos funerarios

37

9,85

5

10,87

Torres y campanarios de templos

33

7,89

0

0

Templos cristianos no católicos

15

3,59

5

10,87

Arquitectura religiosa contemporánea (de inspiración gótica)

13

3,11

0

0

Total, de ejemplos

418

100,00

46

100,00

Fig. 1/ Distribución del estilo neogótico en México y en la Ciudad de México -por tipologías-

Fuente: (Checa Artasu, 2021a, p. 32)

3. El panorama del neogótico en México y en la capital

Recientemente, y a partir de una exhaustiva revisión bibliográfica, de repositorios de imágenes y de un intenso trabajo de campo se ha podido determinar la existencia de 418 ejemplos de arquitectura neogótica en México (Checa Artasu, 2021a, p. 32). Esos ejemplos los podemos agrupar en cuanto a una tipología. Como se muestra en la Fig. 1, se confirma que el neogótico fue un estilo eminentemente religioso: en el 61,4% de los ejemplos el estilo se usó en templos y capillas, ya fuese en construcciones nuevas (24,16%), en refacciones y adecuaciones de mobiliario e interiores, o en elementos exteriores y torres (37,08%). En menor porcentaje, se ubican los templos cristianos no católicos (3,59%). Incluso, a partir de la segunda mitad del siglo XX, algunos proyectos de templos aunaron el uso de ese estilo con la modernidad arquitectónica (3,11%).

En el caso mexicano es interesante notar el uso del neogótico en la arquitectura civil (23,21%), tanto en viviendas, casonas, haciendas como en ejemplos más puntuales como portales, bancos, hospitales, escuelas o incluso, comisarias. Ese uso civil fue una de las vías de inserción del estilo en el país; se constituyó como una suerte de tendencia que dotaba de cierto prestigio a quien lo usaba o poseía y se presentó solo o combinado con otros estilos historicistas y muchas veces en remedos eclécticos. Su uso preponderante decorativo quedó reflejado en arcos de ventanas y puertas, en algunas decoraciones exteriores y en muy pocos casos de forma integral en fachadas e interiores. Con similares características el neogótico se manifestó en cementerios, en tumbas, mausoleos o cenotafios (9,85%), donde se exhibe como un paradigma decorativo bastante recurrente para la última morada.

En cuanto a la cronología, el neogótico produjo sus primeros ejemplos hacia finales de la década de 1840. A partir de ese punto su desarrollo durante las siguientes tres décadas se ralentizó, eclosionando con todo su esplendor entre 1880 y 1910, en la plenitud del Porfiriato, donde hemos documentado el 64,42% de estas construcciones. Posterior a 1910 el uso del estilo decae, pero no desaparece, pues aún hoy en día se construyen templos en estilo neogótico, como el inaugurado en 2019 en la comunidad de Juan Martín en Celaya, Guanajuato.

En cuanto a la distribución geográfica, el neogótico está presente en todo el país. Dándose dos grandes concentraciones. La primera de ellas en los estados del centro occidente de México -Jalisco, Guanajuato, Aguascalientes, Michoacán, Durango y Zacatecas- con el 52,09% de los ejemplos; la segunda concentración notable, corresponde a la Ciudad de México con el 11,30% de los ejemplos. Los restantes ejemplos, el 36,31%, se distribuyen aquí y allá con contadas construcciones, tanto en ciudades del norte, del centro-oriente como del sureste del país (Fig. 2)

Fig. 2/ “Mapa de distribución geográfica de la arquitectura neogótica en México”

Fuente: Elaboración propia, 2022

Así, podemos señalar que la Ciudad de México fue un entorno donde el estilo neogótico tuvo presencia, si bien no masiva en comparación con otros estilos, sí significativa con ejemplos concretos de arquitectura religiosa -16 templos católicos y 5 protestantes-. También, se deja sentir en las diversas construcciones funerarias de diversos cementerios y panteones de la ciudad (Herrera, 2007; 2013; 2019) y en especial, en la arquitectura civil, de uso habitacional o con otras funciones -al menos 19 ejemplos contabilizados-. Muchos de esos ejemplos, tanto religiosos como civiles, los encontramos en el ensanche sur, suroeste y oeste de la capital que se produjo durante la segunda mitad del siglo XIX y hasta terminada la Revolución. Caso particular es el del casco antiguo, donde hubo muy pocos edificios de factura neomedieval. Por ejemplo, sólo se proyectaron cuatro templos, tres de los cuales se diseñaron bajo el estilo neogótico y uno más en neorrománico; los tres primeros pertenecientes a iglesias protestantes y el último a la iglesia católica -el Templo Expiatorio de San Felipe de Jesús-.

En cuanto a la arquitectura civil, localizamos los dos ejemplos que analizamos en este trabajo. Un breve recuento del uso del estilo neogótico en la arquitectura civil en la Ciudad de México nos permite detectar edificios con usos militares o policiales: el Cuerpo de Guardia del Castillo de Chapultepec y la antigua Inspección General de Policía en el actual Perímetro B del Centro Histórico. Esta última diseñada por Federico Mariscal (1881-1971) (Fig. 3).

Fig. 3/ “Mapa de distribución espacial actual y tipología de la arquitectura neogótica en el casco antiguo de la Ciudad de México”

Fuente: Elaboración propia, 2022, a partir de georreferenciación del “Plano de la Ciudad de México. Compañía Litográfica y Tipográfica”, 1907. Serie Distrito Federal, Mapoteca Manuel Orozco y Berra

El estilo neogótico, a veces mezclado con elementos de otros estilos, se deja ver en la decoración exterior, en ventanas, puertas y canceles, de casas, palacetes y residencias que se construyeron en el ensanche de la ciudad, en antiguas colonias como La Teja, Santa María la Ribera, Los Arquitectos, Guerrero, Hidalgo, Americana, Roma y Reforma-Chapultepec. En esos casos se muestra bajo la forma de arcos ojivales, conopiales e incluso trilobulados, mixtilíneos y otras expresiones que remiten a un goticismo medieval. Los ejemplos son varios: la casa del político y empresario Guillermo Landa Escandón -c/Antonio Caso 31-; la casa en c/Guanajuato 40-; la Casa O’Hea en el Paseo de la Reforma; la Casa Torreblanca en el Parque España; la desaparecida Fábrica de alcoholes y licores La Gran Unión, inaugurada en 1907 en el Canal de la Viga con Lorenzo Boturini; o el Asilo para ancianos El Buen Retiro, en la antigua colonia Hidalgo, hoy Doctores.

Con respecto a la temporalidad, el primer proyecto de arquitectura neogótica civil del que tenemos constancia en la Ciudad de México es el del Teatro de la Casa de las Cuatro fachadas (Fig. 4). Se trataba de un particular edificio de grandes dimensiones que combinaba el uso habitacional de arquitectura neoclásica con un gran teatro en estilo neogótico, mismo que debía construirse en 1858 sobre las calles del Puente de fierro, la primera de Los Ciegos y la segunda de Quemada,2 en lo que hoy es la calle de Jesús María, entre República de El Salvador y Regina.3 El proyecto fue originalmente elaborado por el capitán de ingenieros español Manuel María Restory y desconocemos la razón por la que no llegó a construirse.4

Fig. 4/ “Teatro de la Casa de las Cuatro fachadas”. Autor: Maestro mayor de obras Manuel María Restory, 1858

Fuente: “Casa de las Cuatro fachadas. Proyectado y dibujado por Manuel Restory”, 1858. Serie Distrito Federal, Expediente Distrito Federal 4, Mapoteca Manuel Orozco y Berra

Sin embargo, el primer ejemplo de neogótico del que sí tenemos constancia de su construcción es el de una casa edificada en 1864 por el arquitecto italiano Francesco Saverio Cavallari.5 Esta casa se construyó sobre el predio número de 3 de la antigua calle del Puente de San Francisco, en lo que actualmente es la acera sur del Palacio de Bellas artes, por encargo del empresario Antonio Escandón (Álvarez, 1908, pp. 29-36).

Ambos proyectos constituyen la etapa temprana del desarrollo del neogótico en la ciudad, sin embargo, debemos aclarar que el período de mayor esplendor tuvo lugar hacia finales del siglo XIX e inicios del XX. Las razones son diversas, pero en lo fundamental podemos atribuirlo al proceso de modernización urbana que trajo consigo, no sólo a la Ciudad de México sino a muchas de las capitales de América Latina y algunas ciudades del país, los nuevos paradigmas del urbanismo liberal bajo los que fue posible el ensanche de los cascos antiguos, así como el régimen de la pequeña propiedad privada en las nuevas urbanizaciones y fraccionamientos (Navarro, 2017; Sánchez, 2020). En esas nuevas periferias la libertad constructiva y estilística permitieron un amplio desarrollo de los historicismos en la arquitectura, incluido el neogótico. Esto aconteció en una medida mucho menor dentro del casco antiguo, donde las restricciones espaciales y las actividades tradicionales continuaron dominando la ciudad.

Precisamente dos de los ejemplos más representativos de este período y que todavía se mantienen en pie son los del Edificio de Correos y el Banco Agrícola e Hipotecario de México. Ambos construidos en estilo neogótico dentro de los márgenes del casco antiguo y actualmente dentro del Perímetro A del Centro Histórico de la Ciudad de México. Ejemplos que dadas esas circunstancias resultan particularmente relevantes.

4. El Edificio del Banco Agrícola e Hipotecario de México

El edificio del antiguo Banco Agrícola e Hipotecario de México se encuentra localizado en la calle República de Uruguay No.45, en el Centro Histórico de la Ciudad de México. Actualmente, gran parte de este edificio tiene funciones de hotel y sus locales en la planta baja se dedican a negocios de restauración.

Originalmente el edificio fue concebido para albergar la sede central del Banco Agrícola e Hipotecario de México. Esta banca se fundó el 15 de agosto de 1900 con capital aportado por algunos hacendados del norte del país, por empresarios cercanos a Porfirio Díaz y políticos o funcionarios de su régimen. Entre los socios fundadores más conocidos figuraban el empresario y futuro gobernador de Chihuahua y canciller de México, Enrique Creel Cuilty (1854-1931) (Wasserman,1985), así como el jurista tabasqueño Joaquín Demetrio Casasús (1858-1916), quien participó en la confección de la Ley de Instituciones de Crédito y de la Ley Monetaria entre otras. Sin embargo, hay que señalar que parte del capital también lo aportó el Banco Angloamericano.6

El Banco Agrícola comenzó a funcionar el día 1 de enero de 1901 en oficinas rentadas dentro de un edificio de la calle Ángel No.6 -hoy Isabel la Católica- casi esquina con Capuchinas -hoy Venustiano Carranza-,7 frente al Palacio de los Condes de San Mateo de Valparaíso, edificio donde por aquel entonces ya se encontraba establecido el Banco Nacional Mexicano.8 Eran aquellas manzanas, y todavía hasta nuestros días, la zona donde se asentaron los bancos más importantes de la ciudad durante el régimen porfirista. El Banco Agrícola funcionó en ese domicilio durante tres años bajo la gestión de su primer presidente, Enrique Creel, y su primer director, José Castellot.9

4.1. El origen del proyecto para la nueva sede

A mediados de 1903 el primer Consejo Administrativo del banco decidió la construcción de una sede propia donde se establecerían sus oficinas administrativas y la sucursal central de la ciudad. El sitio elegido para erigir la sede fue un predio de forma irregular de 1000 m² ubicado en la calle de Tiburcio No.18 -hoy República de Uruguay No.45-, a tan solo 150 metros al suroeste de sus oficinas en la calle de Ángel. El proyecto arquitectónico del nuevo edificio y su construcción fueron sometidos a concurso público y en aquella convocatoria el ingeniero José Delgado resultó ganador del proyecto de ejecución de las obras bajo el diseño del arquitecto Nicolás Mariscal (1875-1964) (Fig. 5).10 Los ingenieros residentes de la obra bajo órdenes de Delgado fueron Alberto Zetino y Enrique Flores Alutuire.11

Fig. 5/ “Edificio del Banco Agrícola e Hipotecario de Méjico”. Autor: Nicolás Mariscal, octubre de 1903

Fuente: (Mariscal, 1904, p. 105).

4.2. La construcción del edificio

La ceremonia de colocación de la primera piedra de las obras del nuevo edificio, tuvo lugar el día 16 de marzo de 1904.12 En ella participaron como padrinos Enrique Creel y Joaquín Casasús, colocando dentro de un hueco de los escasos cimientos de la obra una pequeña caja de plata que contenía la inscripción “Banco Agrícola Hipotecario, marzo 16 de 1904-Ingeniero José Delgado”. Durante la ceremonia, el hermano menor de Nicolás Mariscal, el arquitecto Federico Mariscal, pronunció un breve discurso inaugural donde, entre otras cosas, explicó que momentáneamente él se haría cargo de la inspección arquitectónica de la obra debido a que su hermano no se encontraba en el país.13 Efectivamente, Nicolás Mariscal había partido cinco días antes hacia el puerto de Veracruz donde zarpó hacia Nueva York y de allí hacia El Havre, donde comenzaría un viaje por Europa visitando varias ciudades y asistiendo al VI Congreso Internacional de Arquitectos en Madrid, a orden expresa del presidente Porfirio Díaz y en su calidad de Consejero Municipal de la Ciudad de México.14

Según el propio Nicolás Mariscal, ese viaje le mantendría en total unos cinco o seis meses fuera del país. Las obras generales del edificio del Banco Agrícola duraron tan sólo siete meses, concluyéndose estas, sin detalles ni ornamentación, durante la última semana del mes de octubre de 1904.15 Durante la mayor parte de ese tiempo el encargado de la inspección arquitectónica fue Federico Mariscal, razón por la cual frecuentemente en la actualidad se les atribuye a ambos la construcción del edificio, cosa que, como ya se ha descrito, llevó a cabo el ingeniero José Delgado, siendo Nicolás Mariscal el diseñador y su hermano Federico el inspector.

Una vez de regreso en la Ciudad de México, Nicolás retomó la inspección de las obras casi terminadas, concluyendo esta vez él mismo todos los trabajos de ornamentación y entregando el edificio terminado a mediados del mes de diciembre. A finales de ese mismo mes el banco hizo la mudanza desde sus oficinas en la calle de Ángel hacia el flamante edificio en la calle de Tiburcio,16 inaugurándose oficialmente las actividades en la sede el 1ro. de enero de 1905.

El edificio tuvo un costo total de 120 000 pesos de la época sin contar el terreno sobre el que se construyó. En términos de ingeniería de la construcción, el proyecto de José Delgado resultó en un edificio innovador que implementó de manera pionera el uso del sistema constructivo Hennebique (Silva, 2016, pp. 148-151). Según el propio ingeniero, este era el primer edificio de la Ciudad de México construido totalmente bajo ese sistema.17 La materia prima utilizada para tal fin fue transportada por el ingeniero Egon Kunhardt desde la fábrica de Hemmoor, en el noroeste de Alemania, donde se encontraba la región productora de cemento más importante de la época.18

Otro aspecto innovador del edificio fue la conjugación del sistema constructivo con el diseño interior de pasillos y escaleras, que permitían la adecuada evacuación del personal del banco desde la planta más alta hasta el nivel de la calle en caso de incendio o sismo. Para demostrarlo, una vez terminadas las obras generales, Nicolás Mariscal organizó un simulacro con auditoria de las autoridades de la ciudad donde hizo entrar, subir y bajar, a 200 personas al mismo tiempo, con el objetivo de verificar la resistencia de las plantas y escaleras al peso y al movimiento en caso de evacuación por sismo.19

4.3. El historicismo gótico de Mariscal

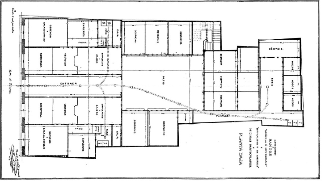
Para el diseño del proyecto, Mariscal empleó el historicismo gótico que por aquél entonces era escaso en la ciudad debido a que los edificios de uso civil funcional, es decir, oficinas, dependencias, bancos, etc., eran frecuentemente construidos bajo los estilos neorrenacentista y neoclásico considerados más apropiados por la supuesta ecuanimidad de sus formas, idóneas para el desarrollo de actividades seculares y altamente racionalizadas. El del Banco Agrícola en cambio se construyó con una fachada neogótica de sobria ornamentación donde los arcos ojivales y conopiales, así como las columnas y las tracerías, están hechas de cantera gris y roja. Por su parte, la planta del edificio es un rectángulo irregular, sobre todo en la crujía suroeste, y está orientado hacia el noreste (Fig. 6).

Fig. 6/ “Planta baja del Banco Agrícola e Hipotecario de Méjico”, Autor: Nicolás Mariscal, Ca. 1904

Fuente: (Mariscal, 1904, p. 106)

En el primer cuerpo de la fachada del edificio resalta la portada principal que es de arco conopial sutilmente abocinado por un guardapolvo con relieve de cantera rematado por un florón. A ambos lados de la portada hay accesorias comerciales sin mayores detalles. En el segundo cuerpo de la fachada hay cinco vanos rectangulares, cuatro laterales menores y uno central mayor. Todos en su interior tienen arcos ojivales que cargan sobre columnas de orden corintio, de fuste en cantera roja y capitel en cantera gris. En el interior de cada arco ojival se abre otro menor trilobulado. En cada vano, la unión de dos arcos ojivales forma uno mayor de medio punto y sobre estos hay folias igualmente de cantera. Aunque la serie de folias se encuentra separada por los ejes verticales de la fachada, existe una clara continuidad entre todas ellas intentando asemejar la galería que es canon de las fachadas de los templos góticos y que se utiliza para separar horizontalmente sus diferentes cuerpos (Fig. 5).

En el tercer cuerpo de la fachada, el último, hay otros cinco vanos rectangulares, pero esta vez de menores dimensiones. En el interior de estos hay arcos conopiales con interior trilobulado que cargan sobre columnas similares a las del segundo cuerpo. Cada uno de los arcos conopiales está rematado por pináculos. Debajo y a lo largo de todo el cornisamiento de la fachada corre una galería de arquillos ciegos, los más grandes son ojivales y en su interior hay menores trilobulados (Fig. 5).

Originalmente la fachada estaba rematada por una crestería de florón que recorría todo su cornisamiento. El detalle era una clara alusión a la crestería del Palazzo Ca d´Oro en la ciudad de Venecia. Posteriormente, durante alguna de las remodelaciones que ha sufrido el edificio, la crestería original fue sustituida por otra mucho más sencilla de cemento que asemeja toscamente la crestería del Palacio Ducal también de Venecia (Figs. 7 y 9).

Fig. 7/ “Palazzo Ca D´oro”, Autor: Carlo Naya, Ca. 1870

Fuente: Works of Art, National Galleries Scotland [https://www.nationalgalleries.org/art-and-artists/122073].

Estas alusiones venecianas permiten introducirnos en las motivaciones que tuvo Mariscal para implementar la decoración neogótica. Por un lado, su uso demuestra la buena formación y los amplios conocimientos que en materia de tipologías arquitectónicas tenía el arquitecto, quien, sin duda, sabía que las modernas sedes principales de muchos bancos en países como Gran Bretaña, Francia o Estados Unidos seguían el modelo del palacio italiano, entonces utilizado de forma grandilocuente en edificios repositorios de dinero y de movimientos financieros. Ese conocimiento del estilo como revelador de la función, queda corroborado, además, porque este será el único edificio proyectado por Mariscal en estilo neogótico, pues este arquitecto fue siempre más proclive a las líneas neoclásicas en el resto de sus proyectos.

De esa forma Mariscal entronca con una línea estilística que atribuye a las nuevas sedes bancarias un sentido ampuloso, que en algunos casos remite al origen de la burguesía urbana medieval, ejemplificada en la ciudad de Venecia y al gótico de las mesas de cambio o lonjas tardomedievales. Ejemplos de ello los encontramos en Inglaterra a partir de la década de 1840 (Booker, 1984, p. 45). En Melbourne, Australia, también hay otros tres ejemplos: la ostentosa sede del English, Scottish & Australian Bank, diseñada por William Wardell en 1883; el Melbourne Safe Deposit Building y el Old Stock Exchange Building, ambos diseñados por William Pitt. Un ejemplo en América Latina lo encontramos en Buenos Aires: la sede principal del Banco Comafi, diseñada en 1927 por el italiano Francesco Gianotti.

Más allá de la especificidad estilística, hay que señalar, que durante los años en que se construye el Banco Agrícola, en la propia Venecia hay un importante revival del estilo gótico medieval que se observa en varios ejemplos -la restauración del Palazzo Dandolo o del Palazzo Cavalli-Franchetti-. Ese revival tendrá otros ejemplos puntuales en edificios de ciudades de Europa y los Estados Unidos. En concreto, la fachada de este edificio tiene notables similitudes con la sede de la Chicago Athletic Association, proyectada en 1893 por el arquitecto Henry Ives Cobb (Fig. 8). Se trata de un rascacielos que se edificó aprovechando el impulso de la World’s Columbian Exposition y que hoy, al igual que el del Banco Agrícola, ha sido convertido en hotel.

Fig. 8/ “Chicago Athletic Association Building”, Sin autor, Ca. 1905

Fuente: Detroit Publishing Company photograph collection, Library of Congress [https://www.loc.gov/resource/det.4a12885/]

El edificio de Mariscal también guarda similitudes con la fachada del Montauk Club de Nueva York, diseñado entre 1889 y 1891 por Francis H. Kimball, y con la de la Casa Cà d’Zan en Sarasota, Florida, construida en 1926 por el empresario circense John Ringling. Así, el estilo empleado por Mariscal, si bien para la Ciudad de México es una excepción, resulta un ejemplo más de los varios que hay por distintas ciudades de Europa y América relativos a la arquitectura bancaria e incluso, habitacional. En ese sentido, el diseño de Mariscal se inserta dentro de un universo mayor, de escala internacional, en el que la construcción de este tipo de edificios neogóticos funcionales estuvo impulsada por los procesos de modernización de aquellas ciudades finiseculares y de sus instituciones bancarias.

En el interior del edificio de Mariscal lo neogótico se diluye, tiene dos patios, uno central mayor y uno menor hacia el sur, en la parte más irregular de la planta. En los patios y en los pasillos del edificio hay portales, marcos de puerta y vanos de iluminación con forma de arco conopial y arco ojival de diferentes dimensiones. Sobre algunos de ellos y en los muros también hay vanos de iluminación y de ventilación en forma de folias y de rosetones.

El Banco Agrícola e Hipotecario de México fue adquirido en 1907 por el Banco Hipotecario de Crédito Territorial trasladando este último sus oficinas centrales al edificio de la calle de Tiburcio (Raguzzi, 2002, p. 150). A partir de 1911 todas las instituciones bancarias de México comenzaron a tener serios problemas financieros y la mayoría desaparecieron durante el periodo de la quiebra de 1912-1913 (Ludlow, 2007, p. 45). Ese no fue el caso del Banco Hipotecario Territorial, que logró mantenerse en funciones durante toda la Revolución. Se sabe que en 1916 el banco seguía operando en el antiguo edificio del Banco Agrícola.20 El nombre del banco sigue apareciendo en diferentes publicaciones del Estado durante el periodo de los primeros gobiernos posrevolucionarios, hacia la década de 1920.21 Más adelante en 1938 se vuelven a tener noticias -por última vez- sobre la existencia del banco, al parecer declarando su quiebra definitiva.22 Es muy probable que durante todo ese tiempo el edificio siguiese estando ocupado en su mayor parte bajo funciones bancarias.

4.4. Las rehabilitaciones del siglo XX y la reciente refuncionalización del edificio en hotel

Hacia la década de 1940 el edificio sufrió sus primeras modificaciones y los vanos cuadrados junto a la portada se abrieron hasta el nivel de la calle para crear accesos a dos de los locales que actualmente funcionan en la planta baja. Ya en la década de 1970 se demolieron algunas paredes interiores también en la planta baja para transformar las antiguas oficinas en bodegas y comercios. Sabemos que hasta 2011 los locales ocupados por diferentes tipos de talleres y comercios eran casi siempre los de la planta baja. En ese año prácticamente el 60% del interior del edificio estaba vacío, había caído en desuso y se encontraba muy deteriorado. Aunado a todo lo anterior, en ese mismo año el inmueble tuvo problemas legales y su estatus era el de una propiedad intestada (Márquez, 2011, p. 116).

El edificio se mantuvo en esas condiciones hasta inicios del año 2016 cuando se le quitaron todos los cristales de la fachada y comenzaron a realizarse trabajos en su interior.23 Durante todo ese año el edificio sufrió una remodelación en la que estuvo involucrada la Dirección de Innovación y Desarrollo Turístico de la Secretaría de Turismo otorgando facilidades burocráticas y financieras para que la empresa hotelera City Express invirtiera unos 37 000,000 pesos en las obras que requería el edificio (Rodríguez, 2018). A partir de ese momento la empresa hotelera comenzó a hacer uso del inmueble bajo la figura de arrendatario (Hoteles City Express, 2017).

El nuevo uso implicó la remodelación del edificio y del interiorismo, ambas llevadas a cabo por los estudios de arquitectura Salomón Sacal y Vigilante de la Construcción.24 Estos despachos ya contaban con experiencia previa en la refuncionalización de edificios históricos.25 El nuevo hotel ya reformado fue inaugurado en diciembre de 2016 y actualmente ocupa la mayor parte del inmueble (Hoteles City Express, 2017, p. 55). Cabe añadir que este proyecto hotelero se ha de enmarcar en la larga serie de operaciones de este tipo que se han dado tanto en el Centro Histórico como en determinadas colonias de la capital mexicana.

Tales operaciones refuncionalizan edificios históricos con valor patrimonial para convertirlos en espacios de ocio (Morales, 2019). Usualmente este tipo de operaciones están enfocadas al consumo de un segmento turístico con alta capacidad adquisitiva, mismo que utiliza dichos espacios renovados en busca de experiencias más allá de la simple pernoctación. Llama la atención el hecho de que la desarrolladora del proyecto de refuncionalización fuese una cadena hotelera conocida por su modelo de hotelería de negocios estandarizado, muy cercano a áreas comerciales e industriales. Se trata de una incursión en un nuevo segmento de mercado, más de ocio, y que requiere la generación de experiencias para justificar el uso de esos espacios patrimoniales refuncionalizados.

Todo ello justifica por qué la azotea del edificio se adecuó como terraza y en ella funciona un bar y restaurante. En esta parte del edificio resaltan la construcción reciente de una alberca recubierta en mármol blanco. El principal atractivo de este local, además del diseño arquitectónico del propio edificio, es la vista panorámica del perfil urbano de la Avenida Juárez, el Paseo de la Reforma y de algunas fachadas y cúpulas de templos cercanos.

Por su parte, la planta baja se encuentra ocupada por dos locales comerciales, uno a cada lado de la portada principal de arco conopial, aunque ambos con accesos desde el interior del pasillo central del edificio a través de vanos en forma de arco ojival. El local al oeste de la portada es una cafetería con tapanco y el del este un local de comida internacional. Ambos mantienen cierto perfil de consumo que se adecúa a la oferta del hotel mismo y también a sus necesidades, diferenciándose del tipo de comercios de consumo popular que alguna vez funcionaron en los mismos locales (Fig. 9).

Fig. 9/ “Fachada remodelada del antiguo Edificio del Banco Agrícola e Hipotecario de México”, 2020

Fuente: Fotografía de los autores

5. El Edificio de Correos -hoy Palacio Postal-

El Edificio de Correos de la Ciudad de México es la obra de arquitectura civil mejor lograda del ingeniero italiano Adamo Boari (1863-1928), misma que diseñó y construyó haciendo mancuerna con el ingeniero mexicano Gonzalo Garita (1867-1921). En contraste con las dificultades a las que se enfrentó en la construcción del Teatro Nacional, en el Edificio de Correos Boari se mantuvo como director de las obras a lo largo de los siete años que duró su construcción. Esto le permitió materializar cabalmente las ideas de su proyecto original, constituyendo en la actualidad el único ejemplo de arquitectura civil todavía en pie construido en su totalidad por el italiano en México (Checa Artasu & Navarro, 2021).

En el proyecto de diseño exterior e interior, Boari conjugó diferentes estilos medievales que oscilaron entre el gótico isabelino, el mudéjar y el gótico veneciano. El resultado es una obra de carácter ecléctico que actualmente constituye el ejemplo más importante y de mayores dimensiones de la arquitectura civil del Estado mexicano construida bajo un estilo historicista no clasicista.

Pero más allá de la construcción del edificio y de sus características formales, otros elementos refuerzan su relevancia. El Edificio de Correos, hoy conocido como Palacio Postal, se construyó para cubrir una necesidad acuciante, que no era otra que la del ingente crecimiento del servicio de correos y de telégrafos en el México porfiriano. Un incremento que significaba la lenta penetración de una de las redes de servicio del Estado mexicano a lo largo y ancho del país. El servicio de correos y telégrafos, hoy quizás poco valorado y conocido (Lujan, 2008), en esas décadas próximas al cambio de siglo se había convertido en un referente de la modernidad y progreso que el régimen porfiriano quiso imprimir al país (Checa Artasu & Navarro, 2021, pp. 366-368).

Además de las funciones propias para el servicio de correos y telégrafos, la construcción de edificios como éste y como el del Banco Agrícola e Hipotecario formó parte de un proyecto de adaptación urbanística más amplio que comenzó a dilucidarse hacia finales de 1899 sobre la zona oeste del casco antiguo de la Ciudad de México. Esta adecuación consistió fundamentalmente en la apertura de nuevas calles, alineación y saneamiento de callejones y en el derribo de antiguos conventos, hospitales, escuelas, teatros y casas. La operación estuvo impulsada principalmente por el ánimo especulativo y por los potenciales beneficios sobre el valor de cambio del suelo, el alza del valor inmobiliario, la necesidad de mejorar la circulación de los transportes y la difusión de las actividades comerciales y de consumo que podían detonarse en la zona oeste del núcleo fundacional de la ciudad a partir de su ejecución.

Para inicios del siglo XX este tipo de operaciones urbanas no eran nada nuevo, por el contrario, estaban ya probadas y formaban parte de las agendas liberales de las grandes ciudades europeas y americanas desde por lo menos mediados del siglo XIX (Navarro, 2017). En la Ciudad de México un proyecto de adaptación urbanística como este se enmarcaba perfectamente dentro de la lógica de la modernización urbana. Este último, un proceso que había venido transformando el casco antiguo y la periferia agraria de la ciudad durante las últimas cuatro décadas (Navarro, 2016, p. 102).

5.1. La formación del proyecto

El futuro Edificio de Correos fue proyectado sobre el polígono formado por las antiguas calles de Santa Isabel por el oeste y La Condesa al este, entre San Andrés al norte y la del Cinco de Mayo por el sur. Esta última en proceso de prolongación hacia el oeste en 1901. En aquél entonces el predio se encontraba ocupado mayoritariamente por la Escuela de Comercio y el Hotel de Ferrocarrileros,26 así como por la Escuela Primaria Nacional No.11 y la Sociedad Mexicana de Geografía y Estadística.27 Todos estos establecimientos funcionaban dentro del antiguo edificio del Hospital Real de Terceros, fundado por la orden de San Francisco a mediados del siglo XVIII y clausurado por los decretos liberales de 1861.28

En enero de 1901, el ingeniero Adamo Boari firmó su flamante contrato con la Secretaría de Comunicaciones y Obras Públicas que lo convertía en director de obras para el nuevo el Edificio de Correos.29 La primera tarea que se le encomendó fue la de revisar y adecuar los planos de un anteproyecto originalmente diseñado por los arquitectos estadounidenses William Aiken y Arnold Brunner con el objetivo de dar forma al futuro edificio. Para ello, Boari llevó consigo los planos a la ciudad de Chicago donde mantenía su despacho en la onceava planta del Steinway Hall desde 1897. Será en ese despacho donde realizó el rediseño del anteproyecto.30 Mientras tanto en la Ciudad de México, su contraparte en la dirección de obras, el ingeniero militar Gonzalo Garita supervisaba los trabajos de alineación y saneamiento del callejón de La Condesa,31 así como, los preparativos para la demolición de la Escuela de Comercio, la Escuela Primaria Nacional No.11 y las aulas de la Sociedad Mexicana de Geografía y Estadística que ocupaban el predio.32

Originalmente a Boari se le había encomendado un rediseño total de las fachadas del anteproyecto de Aiken y Brunner. El edificio proyectado por los estadounidenses era de estilo neoclásico y uno de los argumentos para rediseñar sus fachadas era que los otros proyectos en puerta del Estado, como el del nuevo Teatro Nacional y el Palacio Legislativo se construirían inevitablemente bajo el mismo estilo.33 A estos dos proyectos se sumaba el del nuevo edificio para la Secretaría de Comunicaciones y Obras Públicas que había sido encomendado contemporáneamente al arquitecto italiano Silvio Contri y al ingeniero mexicano Manuel Marroquín y Rivera. Este edificio también había sido diseñado en estilo neorrenacentista y así como el nuevo Teatro Nacional, se construiría prácticamente frente al predio del futuro Edificio de Correos (Navarro, 2019, p. 187).

Por esa razón se tornaba necesario diseñar el Edificio de Correos en un estilo que lograse contrastar visual y estéticamente con aquellos que también se construirían en las cercanías. Bajo este argumento Boari se dio a la tarea de modificar en su totalidad el anteproyecto neoclásico bajo un estilo que él mismo describió en una carta enviada desde Chicago al ministro de Comunicaciones Francisco Z. Mena en abril de 1900. En esa carta, el italiano enviaba los planos de su rediseño explicando:

“Como usted puede ver por las reproducciones que me permito acompañar, he adoptado formas arquitectónicas que apartenecen [sic.] al periodo más fecundo de la arquitectura española en la época de su grandeza, y cuando todavía dominaba la influencia del arte morisco”.34

Boari se refería a la arquitectura gótica flamígera que se desarrolló de manera tardía durante el siglo XV e inicios del XVI en los diferentes reinos peninsulares. En estos territorios, sobre todo en los centro-meridionales, su desarrollo estuvo concatenado al proceso de reconquista cristiana y a su inevitable convivencia con el arte y la arquitectura mudéjar (Alonso, 2003, pp. 22-24). Algo similar a lo que había sucedido durante el desarrollo del gótico civil veneciano que en muchos casos se matizó con ornamentación de origen bizantino. Todos ellos, elementos histórico-arquitectónicos que Boari fue incorporando para definir las tracerías, arcos y otras ornamentaciones de un historicismo medieval propio y bastante ecléctico.

Efectivamente el rediseño final de Boari al anteproyecto de Aiken y Brunner correspondía a aquella imagen de lo que él llamó “el periodo más fecundo de la arquitectura española”. Un estilo medieval que cumplía con los requerimientos del régimen porque contrastaba tanto a nivel estético como histórico con las tradicionales formas greco-romanas de la arquitectura renacentista, barroca y neoclásica existentes hasta ese momento en los edificios civiles del casco antiguo de la Ciudad de México (Fig. 10). Además de todo ello, hay que decir que Boari gustaba del gótico como historicismo, adaptable a las nuevas necesidades edilicias de México a la hora de diseñar templos católicos (Checa Artasu, 2021b, p. 327).

Fig.10/ “Alzado del Edificio de Correos”. Autor: Adamo Boari, 1901

Fuente: “El nuevo Edificio de Correos”, El Arte y la Ciencia en México. Revista mensual de Bellas artes e Ingeniería, octubre de 1902.

De lo anterior se concluye que fue la firme creencia que tenía Boari sobre la supuesta idoneidad del tardogótico español la que dio origen a su utilización en los nuevos proyectos edilicios gubernamentales que se construirían en el casco antiguo de la capital y que quedó reflejada en el Edificio de Correos. Amén de lo anterior, durante la época, la prensa asumió que el estilo plateresco había sido el utilizado para el diseño del nuevo Edificio de Correos. Un ejemplo extraordinario de ello son las declaraciones publicadas en el Álbum Gráfico. México en el Centenario de su Independencia, que editó el fotógrafo poblano Eugenio Espino Barros en 1910:

“[...] El estilo general del edificio se acerca en sus lineamientos generales al español antiguo; posee algunos caracteres del llamado plateresco, que dejó tantas reliquias en México. Su aspecto exterior no puede ser más grandioso. Está hecho de clarísima piedra blanca. El plateresco que lo realza, deslumbra en multitud de detalles: gráciles columnillas, arcos de medio punto, festones caprichosos que ciñen la balaustrada y los balconcillos arábigos, coronados con escudos, a cuyos lados se destacan figuras de grifos y leones. Corona el edificio una suntuosa galería cuyo principal motivo de decoración son las columnillas arábigas y las rosetas caladas” (Espino, 1910, p. 20).

Pese a ello, pareciera que el empleo del plateresco estuvo envuelto en dudas y en polémica a medida que los influjos de la inauguración del Edificio de Correos en 1907 se opacaban. En este sentido, Schroeder (1988, pp. 34 y 35) nos hace un recuento de las opiniones de historiadores del arte mexicanos al respecto del estilo elegido por Boari en este edificio. Se trata de cavilaciones que no consideran las fuentes de archivo existentes. Entre los que consideran que el estilo elegido es el plateresco se enlistan: Justino Fernández e Israel Katzman, amén del propio Schroeder. Es precisamente Katzman (1963, p. 46) quien busca posibles similitudes o incluso copias del Edificio de Correos con otros. Menciona que dicho edificio está inspirado en el Palacio de Monterrey y la casa del Doctor Abarca, ambas en Salamanca, España. En ninguna fuente archivística consultada durante esta investigación, se ha logrado encontrar ninguna mención al respecto, ni por parte de Boari, Garita o cualquier otro funcionario involucrado en las obras. Más recientemente, sin aportar análisis alguno se ha repetido tanto en textos académicos como en los medios de comunicación la influencia y parecidos con el gótico veneciano, sobre todo vinculándolo a la nacionalidad italiana de Boari (Milhe, 1990, p. 34; Gutiérrez & al. 1998, p. 263).

Sea como fuere, y dada la trayectoria profesional de Adamo Boari en Estados Unidos y su formación italiana, no se puede dejar de resaltar su capacidad de conocimiento de los distintos ejemplos del diseño arquitectónico desarrollados en otros lugares del mundo; ejemplos que pudieran adaptarse a los proyectos que él mismo realizaba. En este sentido, hay que decir que a finales del siglo XIX en muchas ciudades tanto de Europa, los Estados Unidos y de América Latina, se desplegó una arquitectura monumental asociada al correo y el telégrafo, a veces de tonos historicistas medievales aun cuando en su mayoría se asoció el estilo neoclásico. Así, no resulta extraño que algunos ejemplos de oficinas centrales de correos fuesen construidos bajo el estilo neogótico. Citemos algunas: en Europa destacan la Oficina Central de correos de la ciudad Gante, en Bélgica, diseñada por los arquitectos Louis Cloquet y Stéphane Mortier con motivo de la exposición universal organizada en la ciudad en 1913 (Bulckaen & Devos, 2020); y la Poste Centrale de Strasbourg, en Francia, construida entre 1896 y 1899 según diseño de los arquitectos Ewald von Rechenberg y Ernst Hake (Rieger & al. 1991, p. 93). En Estados Unidos destaca la Oficina Central de Correos de Buffalo, Nueva York, diseñada y construida en dos fases entre 1894 y 1901 por Jeremiah O’Rourke -entre 1894 y 1897- y William M. Aiken y James Knox Taylor -entre 1897 y 1901-. Esta última, se trata de un rascacielos cúbico que destaca por una solemne entrada a manera de portalada catedralicia gótica (Kowsky & Goldman & Fox & al., 1981, p. 82).

Frente a ese panorama, que la oficina central del servicio postal mexicano se construyese en un estilo neomedieval no resulta atípico, por el contrario, la pone en sintonía con una cierta tendencia constructiva y de modernización de los espacios urbanos de escala internacional asociada al revival de la cultura medieval -mismo caso que el del Banco Agrícola-. Según Boari, el uso del estilo se justifica por su adecuada inserción histórico-cultural en el contexto constructivo del casco virreinal de la Ciudad de México. El resultado final es que Boari, implementando el historicismo gótico, dotó a la Ciudad de México de un edificio magnifico, equiparable a otras oficinas de correos que durante el cambio de siglo se construyeron en América y Europa. Algo que normalmente no se cita o se menciona.

Además del rediseño de las fachadas, a Boari se le comisionó para revisar las plantas del anteproyecto. El italiano decidió “deshacer las plantas” originales para introducir algunas modificaciones que no habían sido tomadas en cuenta por los arquitectos estadounidenses. Entre aquellas modificaciones estaba la de mostrar al interior del edificio su sistema constructivo, haciendo que todas las dependencias y oficinas se ubicaran en torno a la caja de la escalera principal y a un patio abierto que permitiese iluminar los pasillos por donde se accede a tales espacios.

De esa forma, el italiano dejaba ver la estructura del edificio, pero también la decoración gótica que se dispuso en su patio interior. Con ello, Boari buscaba una solución en la que se conectase la dimensión histórica y señorial, con la actividad altamente racionalizada que se debía desarrollar en el recinto; asociar lo esplendido del progreso frente al trabajo eficiente del servicio postal -una herramienta eficaz del modelo de desarrollo porfiriano-, todo conectado a través de la traza de los pasillos que de forma perimetral recorrían el edificio. Se trataba, además, de un diseño funcional que ayudó al despliegue de las instalaciones técnicas ocultas -electricidad y teléfono- del edificio.

Otra modificación que Boari hizo al proyecto de Brunner y Aiken fue la esquina recortada sobre la portada principal en el ángulo que formaban las calles de Santa Isabel y San Andrés (Fig. 11). Esta última decisión le fue cuestionada a Boari por el ministro de Comunicaciones Mena. El italiano explicó que la esquina recortada era el modo más lógico de acordar la calle de La Mariscala con la de San Andrés;35 y teniendo la primera casi el doble de anchura que la segunda, Boari se enfrentaba al problema urbanístico de la falta de alineación entre ambas. De allí surgió la solución de la esquina en pan coupé que además dotó al edificio de una de sus particularidades estéticas más comentadas durante la época. El problema y la solución resultaron también en uno de los pocos registros con los que contamos acerca del pensamiento urbanístico de Adamo Boari aplicado al contexto del casco antiguo de la Ciudad de México.

Fig. 11/ “Planta del Edificio de Correos”. Autor: Adamo Boari, 1904

Fuente: Plano 3233, Planero 123, Archivo Histórico y Centro de Documentación de la Dirección General de Servicios Técnicos de la Secretaría de Comunicaciones y Transportes (AHCD-DGST-SCT)

5.2. La construcción del edificio

El antiguo edificio del Hospital Real de Terceros y sus anexos fueron desocupándose durante la primera mitad de 1901, entregándosele oficialmente al Estado la mayor parte de las instalaciones a principios del mes de julio.36 El ingeniero Gonzalo Garita, codirector de obras junto con Boari, comenzó su demolición la primera semana de agosto,37 para ello, la Secretaría de Comunicaciones libró los primeros 30 000.00 pesos en favor del nuevo proyecto, dándose inicio formalmente a las obras del Edificio de Correos.38 Estos primeros trabajos sin embargo no estuvieron exentos de polémica, hubo incluso quienes afirmaron que pese a la sencilla arquitectura “colonial” del antiguo Hospital de Terceros, el nuevo edificio proyectado por Boari no podría competir estéticamente ni con este ni con el vecino Palacio de Minería. Este último, obra capital del neoclásico en la ciudad.39

5.2.1. La cimentación: las canteras y la Milliken Brothers

Concluida la demolición del antiguo Hospital de Terceros comenzaron los trabajos de cimentación dentro del terreno. Para ello, Boari y Garita echaron mano de diversas compañías abastecedoras de insumos, materiales y servicios, tanto nacionales como extranjeras. Ese fue el caso de las compañías explotadoras de los dos tipos de piedra que se utilizaron para construir el basamento del edificio. Estos materiales provenían de dos canteras diferentes establecidas en las afueras de la ciudad. La primera de ellas era la cantera de San Bartolito, ubicada en la zona baja de la Sierra de las Cruces, al oeste de la ciudad. Su dueño era Juan Merino con quien Boari y Garita firmaron un contrato para que se les abasteciera con alrededor de 500m³ de piedra de Chiluca, material muy utilizado durante el siglo XIX en la construcción de basamentos para los edificios de la ciudad.40

La otra piedra utilizada fue la de Tulpetlac, explotada por Teodoro Reyes en otra cantera ubicada en el pie oriental de la Sierra de Guadalupe, al norte de la ciudad. De este tipo de piedra se labraron para el basamento del edificio unos 350m³.41 Por su parte la piedra utilizada para revestir las fachadas del edificio fue la Cantera amarilla de Pachuca suministrada desde aquel lugar por el ingeniero Antonio Caso.42 Según los cálculos de Boari a partir de las plantillas diseñadas por él mismo, de este tipo de cantera se utilizarían alrededor de 4000m³ que resultarían suficientes para revestir todo el edificio.43Terminados los trabajos del basamento y plataforma de concreto, Boari y Garita enviaron a través de la Secretaría de Comunicaciones los planos y especificaciones necesarios para que diferentes compañías estadounidenses presupuestaran el suministro e instalación del emparrillado de acero de los cimientos.44 Las compañías consultadas fueron The King Bridge Company con sede en Cleveland, Ohio;45 la Carnegie Steel Company con sede en Pittsburgh, Pennsylvania; y la Milliken Brothers con sede en Nueva York. Aunque desde el inicio se tuvo claro que este tipo de materiales deberían importarse desde el noroeste de los Estados Unidos -en aquel entonces la región acerera más desarrollada del continente- también se convocó a un par de compañías mexicanas que no eran propiamente productoras sino importadoras como Roberto Boker y Ca. y la Thos. Braniff Jr. y Co.,46 ambas con sede en la Ciudad de México.

Finalmente fue con la compañía Milliken Brothers con la que se llegó al acuerdo de importar e instalar el emparrillado de acero clase Bessemer y especificación Steel médium.47 La orden se realizó a finales de diciembre de 1901 a través de su representante en México, W. Garret.48 Tan solo un par de meses más tarde el cargamento partió desde Nueva York en el vapor City of Washington,49 entregando las 538 piezas de acero en el puerto de Tampico desde donde se transportaron en el Ferrocarril Central hasta la aduana de Buenavista en la Ciudad de México.50

La instalación del emparrillado de cimentación sobre la plataforma de concreto corrió a cargo de la propia Milliken Brothers y se concluyó a inicios de mayo.51 Enseguida se dio paso a la compra del esqueleto de acero y material contra incendios de los cuatro pisos del edificio que según los cálculos de Boari y Garita estarían ya instalados a inicios de 1903.52 La utilización de este tipo de estructura de acero tanto en los cimientos como en el esqueleto, se debió principalmente a que Boari y Garita consideraron similares las características del suelo de la Ciudad de México con las de muchas localidades de la Costa Este de los Estado Unidos donde se erigían grandes edificios bajo el mismo sistema constructivo.53

5.2.2. Los trabajos de mampostería y decoración gótica

La ceremonia de colocación de la primera piedra de las obras se llevó a cabo el día 14 de septiembre de 1902.54 Para ese entonces Boari y Garita se enfocaron en acelerar los trabajos del nuevo edificio. Esto se debió tanto al ultimátum que recibieron por parte del secretario de Hacienda y Crédito público José Yves Limantour de cortar los fondos para la obra, como a los cada vez más demandantes trabajos de cimentación del nuevo Teatro Nacional. Esta última, obra de la cual el italiano y el mexicano también eran codirectores contemporáneamente. Los avances de la obra fueron relativamente eficaces en el tiempo. Entre 1902 y 1903 se tenía ya ensamblada la totalidad de la estructura de acero fundida por la Milliken Brothers en Nueva York (Fig. 12). Durante esos dos años también se lograron erigir hasta el tercer piso las fachadas de cantería de las calles de Santa Isabel y San Andrés, así como las de La Condesa y el callejón de servicio hasta el segundo piso. Además, quedaron listos los revestimientos de columnas del primer y segundo piso, así como todos los muros divisorios hasta el cuarto y último piso.55

Fig. 12/ Esqueleto de acero en los cuatro pisos del Edificio de Correos. Sin autor, Ca. 1903

Fuente: Fototeca Nacional, Instituto Nacional de Antropología e Historia (INAH)

La totalidad de los muros exteriores en cantería quedaron terminados en 1904,56 dando inicio a los trabajos de instalación de pisos, ventanas, mármoles decorativos y todas las piezas funcionales y decorativas de hierro fundido y galvanizado al interior del edificio.57Para los trabajos de decoración de la mampostería de las fachadas se consultaron los presupuestos del escultor Enrique Alciati,58 José Sigler,59 Urbano Chavarría y Juan Merino.60 De estos trabajos de ornamentación en cantera se desprenden la mayoría de los detalles que le dan el carácter gótico al edificio como los arcos conopiales, las frondas sobre los arcos de medio punto, los florones, los numerosos pináculos adosados a las portadas laterales y cornisamientos, así como a la tracería gótica de todo el edificio.

5.3. La inauguración del edificio

Para el 31 de octubre de 1906 el edificio fue entregado por Boari y Garita a la Secretaría de Comunicaciones como obra terminada, faltando únicamente el acomodo de los muebles de servicio y algunos detalles de decoración interior encargados a empresas distribuidoras o productoras, la mayoría con sede en la Ciudad de México.61 Concluidas las obras de mobiliario y afinados todos los detalles se dio paso a la inauguración del nuevo edificio el día 17 de febrero de 1907 en solemne acto presidido por el propio Adamo Boari y el ingeniero Gonzalo Garita. Este último pronunció ante la audiencia un extenso discurso que en realidad fue una crónica escrita por ambos ingenieros en la que daba cuenta de las generalidades del proceso constructivo del edificio en el contexto de la modernización de la ciudad y del régimen. Antes de dar el turno al presidente Porfirio Díaz, Garita concluyó su discurso de la siguiente manera:

“Señor presidente: el 14 de septiembre de 1902 se dignó usted colocar la primera piedra del Edificio de Correos: hoy puede decirse que pone usted la última, que, como otras tantas obras de mayor beneficio para el país, recogerá la historia como símbolo de su progresista y honrada Administración”.62

La prensa de la época por ejemplo se refirió al nuevo edificio como “una obra de civilización y progreso” que señalaba el inicio de una nueva etapa en la historia del país.63 En otro diario se leía que las predicciones pronunciadas por Manuel Zamacona durante la ceremonia de colocación de la primera piedra se habían cumplido, que México ya contaba con una Casa de Correos “indiscutiblemente superior a muchas de los Estados Unidos y Europa”.64

6. Conclusiones

A lo largo de estas líneas se han descrito las condiciones, los agentes y el proceso constructivo de dos proyectos de arquitectura historicista localizados en el Centro Histórico de la Ciudad de México. El abordaje se ha hecho apelando a las características específicas de un estilo arquitectónico: el neogótico; estilo encuadrado dentro de toda la serie de historicismos que se dieron durante la segunda mitad del siglo XIX y hasta las primeras tres décadas del XX. La arquitectura neogótica analizada, apelando a la documentación localizada para este doble análisis, nos revela una estética y unos simbolismos empleados para construir edificios funcionales y estratégicos: uno, la sede principal de un banco, y otro, un edificio central para el servicio de correos. Ambos casos, conformaron elementos singulares pero representativos de la modernización del sector de los servicios durante el régimen de Porfirio Díaz. Paralelamente, su construcción también desempeñó un papel fundamental dentro del proceso de modernización de la propia ciudad, tanto por sus funciones -innovadoras y propias de aquel contexto histórico-, pero también por las que derivan de su inserción dentro de una trama urbana particular, en este caso, la de un casco antiguo híbrido urbanísticamente: azteca y virreinal. Casco antiguo que a tenor de la estrategia del Porfiriato requería de elementos modernizadores para su transformación espacial, tanto de forma general como de forma particular y, además, como generadora de mayores plusvalías sobre el suelo urbano.

Analizando estos dos ejemplos constructivos se corroboran algunas cuestiones, quizás de detalle, que enriquecen el conocimiento sobre los procesos modernizadores, tanto urbanísticos como arquitectónicos de la Ciudad de México finisecular. Se confirma que el estilo neogótico no es uniforme, no es simplemente decoración, sino que las condiciones históricas y culturales lo ubican dentro de un proceso de escala global caracterizado por la circularon de ideas fincadas en el arte, la arquitectura y lo que por aquél entonces se consideraba moderno. Este proceso tuvo su mayor eclosión durante el periodo en el que se construyeron ambos edificios, es decir, durante el cambio del siglo XIX al XX.

En el primer caso, el edificio diseñado por el arquitecto Mariscal incorpora reminiscencias del gótico veneciano porque es el estilo que se atribuye a las nuevas sedes bancarias decimonónicas, en lugares generatrices del estilo neogótico como Inglaterra, que entienden que los nuevos bancos deben remitir al origen de la burguesía urbana medieval. En el otro caso, el del Edificio de Correos, se opta por el gótico tardío que se dio en España durante el siglo XV y que, según el arquitecto proponente, Adamo Boari, era el estilo más apropiado para la construcción de ciertos edificios de la nueva modernidad porfiriana, por su correcta inserción tanto a nivel histórico como paisajístico dentro del contexto del casco virreinal de la Ciudad de México. Además, si observamos las circunstancias estilísticas y arquitectónicas de las muchas sedes nacionales o regionales de oficinas de correos que se construyeron en todo el mundo, la grandiosidad, la opulencia y la ornamentación de aquel gótico coinciden con muchos de aquellos ejemplos internacionales.

Así, más allá de una mera identificación de un edificio, ya sea por su estilo o por el arquitecto que lo diseñó en una fecha concreta, este artículo pretende aportar a la serie de recientes estudios que buscan contextualizar la historia de las modernizaciones urbanas, el urbanismo y la arquitectura mexicana decimonónica, dentro del contexto internacional y colocarla bajo el foco de una historia cultural y una geografía urbana histórica transversal e integradora, que ayude a entender el devenir de la ciudad durante el periodo en que fueron construidos.

7. Bibliografía

Alonso, B. (2003): Arquitectura tardogótica en Castilla: los Rasines, Santander, Servicio de Publicaciones de la Universidad de Cantabria.

Álvarez, M. (1908): El Dr. Cavallari y la carrera del ingeniero civil en México. El arte y la ciencia en México. Revista mensual de Bellas Artes e Ingeniería, Vol.X, (2), pp. 29-36.

Booker, J. (1984): The architecture of banking: A study of the Design of British Banks from the 18th Century to Modern Times. 2. Vols. Thesis submitted for the degree of Doctor of Philosophy. York: University of York.

Bulckaen, L. & Devos, R. (2020): The engineer as mediator in complex architectural projects at the turn of the nineteenth century: the case study of Louis Cloquet. Seventh Annual Conference of the Construction History Society (Conference Proceedings), April 2020.

Canales, F. (2013): Arquitectura en México, 1900-2010: la construcción de la modernidad, obras, diseño, arte y pensamiento, Ciudad de México, Fomento Cultural Banamex.

Checa Artasu, M. (2016a): La dimensión geográfica de la arquitectura neogótica en México. En Checa Artasu, M. & Niglio, O. (Eds.), El neogótico en la arquitectura americana. Historia, restauración, reinterpretaciones y reflexiones (pp. 327-341), Roma, Aracne Editrice.

_____ (2016b): Las órdenes religiosas como promotoras de la arquitectura neogótica en América Latina. Algunos ejemplos. En Checa Artasu, M. & Niglio, O. (Eds.), El neogótico en la arquitectura americana. Historia, restauración, reinterpretaciones y reflexiones (pp. 45-58), Roma, Aracne Editrice.

_____ (2021a): El neogótico en Jalisco. Guía básica para la apreciación del entorno edificado, Guadalajara, Arquitónica Editorial.

_____ (2021b): La arquitectura religiosa diseñada por Adamo Boari en México. En Checa Artasu, M. & Niglio, O. (Eds.), Adamo Boari (1863-1928). Arquitecto entre América y Europa. Volumen 2. Las Obras (pp.299-358), Roma, Aracne Editrice.

_______& Navarro, F. (2021): Adamo Boari y el edificio de correos de la Ciudad de México (1900-1907). En Checa Artasu, M. & Niglio, O. (Eds.), Adamo Boari (1863-1928). Arquitecto entre América y Europa. Volumen 2. Las Obras (pp.359-426), Roma, Aracne Editrice.

De Anda, E. (2006): Historia de la arquitectura mexicana, Ciudad de México, Gustavo Gili.

Espino, E. (Ed.). (1910): Álbum Gráfico, México en el Centenario de su Independencia, Ciudad de México, Müller Hermanos.

Garner, P. (2011): British Lions and Mexican Eagles: Business, Politics and Empire in the Carrer of Weetman Pearson in Mexico, 1889-1919, Stanford, Stanford University Press.

Gutiérrez, R. & Dieste, E. & Viñuales, G. (1998): Arquitectura latinoamericana en el siglo XX, Barcelona, Lunwerg.

Herrera, E. (2007): Restauración integral del Panteón de Dolores, Ciudad de México, Instituto Nacional de Antropología e Historia.

_____ (2013): Panteón Francés de la Piedad como documento histórico: una visión urbano-arquitectónica, 2. Vols., Ciudad de México, Instituto Nacional de Antropología e Historia.

_____ (2019): Historia, catálogo actual y desarrollo urbano-arquitectónico del Panteón de San Fernando, Ciudad de México, Instituto Nacional de Antropología e Historia.

Hoteles City Express. (2017): Reporte anual que se presenta, México, Hoteles City Express.

Katzman, I. (1963): La arquitectura contemporánea mexicana: precedentes y desarrollo, Ciudad de México, Instituto Nacional de Antropología e Historia/Secretaría de Educación Pública.

_____ (2016): Introducción a la arquitectura del siglo XIX en México, Ciudad de México, Ibero.

Kowsky & Goldman & Fox & al.(1981): Buffalo Architecture: A Guide, Cambridge, The MIT Press.

Ludlow, L. (2007): La quiebra financiera y la debacle monetaria, 1908-1916. En Meyer, A. (Coord.), México en tres momentos: 1810-1910-210 (pp. 39-62), México, Universidad Nacional Autónoma de México.

Luján, N. (2008): El tiempo se acabó: El Servicio Postal Mexicano en la encrucijada de su modernización. The Center for Migration and Development Working Paper Series Princeton University, 36, octubre: 36 p.

Mariscal, N. (1904): Primera obra ejecutada em Méjico con el sistema hormigón armado Hennebique. El arte y la ciencia en México. Revista mensual de Bellas Artes e Ingeniería, Vol.VI, (7), pp. 104-120.

Márquez, J. (2011): Los Bancos Agrícola e Hipotecarios de México. Un ejemplo de arquitectura ecléctica y moderna: el sistema de concreto armado Hennebique, 1903-1910. Tesis de maestría. México, Universidad Nacional Autónoma de México.

Milhe, B. (coord.) (1990): La Quinta Casa de Correos. Crónica del servicio postal mexicano, Ciudad de México, Servicio Postal Mexicano.

Morales, P. (2019): La valoración del constructo patrimonial. Caso de estudio: intervenciones en las colonias Roma y Condesa S. XXI. Tesis de maestría de Diseño Arquitectónico. Ciudad de México, Universidad Nacional Autónoma de México.

Navarro, F. (2016): Dejar el casco antiguo. Dos casos de modernización urbana en América Latina: Limas y la Ciudad de México, 1895-1910. Tesis de maestría. México, Centro de Investigación y Docencia Económicas.

_____ (2017): Urbanismo y capitalismo modernos. El binomio detrás del ensanche de Lima. GeocritiQ. Plataforma digital iberoamericana para la difusión del trabajo científico, Universidad de Barcelona, 333 (septiembre).

_____ (2019): Del Complejo hidroeléctrico de Necaxa al Edificio Excelsior. La obra del arquitecto Silvio Contri en México, 1892-1924. En Checa Artasu, M. & Niglio, O. (Eds.), Italianos en México. Arquitectos, ingenieros y artistas entre los siglos XIX y XX (pp. 177-199), Roma, Aracne Editrice.

_____ (2021): La desconocida trayectoria del arquitecto italiano Silvio Contri, 1888-1924. En Checa Artasu, M. & Niglio, O. (Eds.), Architetti e artisti nella diaspora italiana in America Latina. Diplomazia culturale in azione (pp. 121-147), Roma, Aracne Editrice.

Raguzzi, P. (2002): The Legal system, Institutional change, and financial regulation in Mexico, 1870-1910: Mortgage contracts and Long-term Credit. In Bortz, J. & Haber, S. (Eds.), The Mexican Economy, 1870-1930 (pp. 120-160), Stanford, Stanford University Press.

Rieger, T. & Durand de Bousingen, D. & Nohlen, D. (1991): Strasbourg architecture: 1871-1918, Strasbourg, Le Verger.

Rodríguez, D. (2018): SECTUR ayuda a financiar mejora hotelera en el país. Centro Urbano. [https://centrourbano.com/2018/02/07/sectur-ayuda-a-financiar-mejora-hotelera-en-el-pais/].

Sánchez, G. (2020): Procesos urbanos en América Latina en el paso del siglo XIX al XX: del higienismo al urbanismo, México, Juan Pablos Editor.

Silva, M. (2016): Concreto armado, modernidad y arquitectura en México. El sistema hennebique 1901-1914, Ciudad de México, Ibero.

Schroeder, F. (1988): Entorno a la plaza y palacio de Minería, Ciudad de México, Universidad Nacional Autónoma de México.

Vargas Salguero, R. (1998): Historia de la arquitectura y urbanismo mexicanos. Volumen III El México independiente, Tomo II Afirmación del nacionalismo y la modernidad, Ciudad de México, Universidad Nacional Autónoma de México.

Wasserman, M. (1985): Enrique C. Creel: Business and Politics in Mexico, 1880-1930. The Business History Review, 59 (4): pp. 645-662.

8. Referencias a otros recursos/Fuentes documentales

Detroit Publishing Company photograph collection, Library of Congress [https://www.loc.gov/resource/det.4a12885/].

Works of Art, National Galleries Scotland [https://www.nationalgalleries.org/art-and-artists/122073].

“Oficial. Ministerio de Guerra y Marina”, Diario Oficial del Supremo Gobierno de la República Mexicana, 10 de julio de 1856.

“El Nuncio apostólico”, La Razón, 6 de diciembre de 1864.

“Banco Agrícola e Hipotecario de México”, El Tiempo, 23 de diciembre de 1900.

“Informe leído por el presidente de la República”, El Diario del Hogar, 16 de abril de 1901.

“Información del día”, La Voz de México, 23 de diciembre de 1900.

“Ceremonia interesante. Edificio para un banco”, El Correo Español, 17 de marzo de 1904.

“New building of Banco Agricola”, The mexican Herald , 26 de octubre de 1904.

“Corner Stone to be laid”, The mexican Herald , 16 de marzo de 1904.

“Ceremonia interesante. Edificio para un banco”, El Correo Español, 17 de marzo de 1904.

“Viaje del Sr. Mariscal”, El Popular, 12 de marzo de 1904.

“To be Finished”, The mexican Herald , 1 de octubre de 1904.

“Into new building”, The mexican Herald , 9 de diciembre de 1904.

“Work started on third story of Banco Agricola e Hipotecario”, The mexican Herald , 1 de octubre de 1904.

“Test was successful”, The mexican Herald , 26 de octubre de 1904.

“Banco de Crédito Hipotecario Territorial Mexicano”, El Pueblo, 12 de marzo de 1916.

Secretaria de Hacienda y Crédito Público, Memoria de la Secretaría de Hacienda y Crédito Público (México: La Secretaría, 1926), 206.

México. SCJN, Semanario Judicial de la Federación (México: La Corte, 1938), 750.

“La Casa de Correos”, El País, 1 de febrero de 1901.

“Nueva Casa de Correos”, El Imparcial. Diario de la mañana, 11 de enero de 1901.

“La Casa de Correos”, El País, 1 de febrero de 1901.

“Dirección General de Correos. Nuevo edificio”, El Popular, 17 de junio de 1901.

“La Escuela de Comercio”, Semanario Literario Ilustrado, 22 de julio de 1901.

“La inauguración de la Casa de Correos”, El Diario, 18 de febrero de 1907.

“El gran acontecimiento de hoy”, El Imparcial, 17 de febrero de 1907.

“La inauguración del suntuoso y elegante Edificio de Correos”, El Diario, 17 de febrero de 1907.

9. Archivos históricos y Centros de documentación

En México:

Acervo Histórico del Palacio de Minería. Web: [https://www.palaciomineria.unam.mx/recorrido/archivo_historico.php].

Archivo General de la Nación. Web: [https://www.gob.mx/agn].

Archivo Histórico de la Secretaría de Salud. Web: [https://dgti.salud.gob.mx/cdi/historico.html].

Archivo Histórico y Centro de Documentación de la Dirección General de Servicios Técnicos de la Secretaría de Comunicaciones y Transportes. Web: [https://ts.sct.gob.mx/carreteras/direccion-general-de-servicios-tecnicos/].

Biblioteca Ing. Antonio M. Anza del Palacio de Minería. Web: [https://www.palaciomineria.unam.mx/recorrido/biblioteca.php].

Biblioteca y Centro de Documentación del Palacio de Correos. Web: [https://www.gob.mx/correosdemexico/documentos/biblioteca-palacio-postal].

Fototeca Nacional del Instituto Nacional de Antropología e Historia. Web: [https://mediateca.inah.gob.mx/repositorio/islandora/object/fototeca%3A62].

Hemeroteca Nacional UNAM. Web: [https://hndm.iib.unam.mx/index.php/es/].

Mapoteca Manuel Orozco y Berra. Web: [https://mapoteca.siap.gob.mx/#].

En Italia:

Biblioteca Comunale Ariostea di Ferrara. Web: [https://archibiblio.comune.fe.it/271/biblioteca-comunale-ariostea].

Digitales:

National Galleries Scotland. Web: [https://www.nationalgalleries.org/].

National Museum Australia. Web: [https://www.nma.gov.au/].

Library of Congress Washington. Web: [https://www.loc.gov/].

Public Library of New York. Web: [https://www.nypl.org/].

10. Listado de Acrónimos/Siglas

AGN Archivo General de la Nación.

AHCD-DGST-SCT Archivo Histórico y Centro de Documentación de la Dirección General de Servicios Técnicos de la Secretaría de Comunicaciones y Transportes.

AHPMBIAMA Acervo Histórico del Palacio de Minería, Biblioteca Ing. Antonio M. Anza.

INAH Instituto Nacional de Antropología e Historia.

MMOB Mapoteca Manuel Orozco y Berra.

SCOP Secretaría de Comunicaciones y Obras Públicas.

1 En este sentido y ante las dificultades del sistema APA para ello, citamos al final del artículo todas las fuentes de archivo utilizadas.

2 “Planos. Casa de las Cuatro fachadas. Proyectado y dibujado por Manuel Restory”, 1858. COYB.DF. M43.V4.0174, Mapoteca Manuel Orozco y Berra (en adelante MMOB).

3 “Plano General de la Ciudad de México. Paris, lith. Jacquet et des marais”, 1858. COYB. DF. M43.V2.0080, MMOB.

4 “Oficial. Ministerio de Guerra y Marina”, Diario Oficial del Supremo Gobierno de la República Mexicana, 10 de julio de 1856.

5 “El Nuncio apostólico”, La Razón, 6 de diciembre de 1864.

6“Banco Agrícola e Hipotecario de México”, El Tiempo, 23 de diciembre de 1900.

7“Informe leído por el presidente de la República”, El Diario del Hogar, 16 de abril de 1901.

8 “Plano del perímetro central de la Ciudad de México. Directorio comercial. De Julio Popper Ferry”, 1883, Litografías Debray. COYB.DF. M43.V2.0054, MMOB.

9“Información del día”, La Voz de México, 23 de diciembre de 1900.

10“Ceremonia interesante. Edificio para un banco”, El Correo Español, 17 de marzo de 1904.

11 “New building of Banco Agricola”, The mexican Herald , 26 de octubre de 1904.

12 “Corner Stone to be laid”, The mexican Herald , 16 de marzo de 1904.

13 “Ceremonia interesante. Edificio para un banco”, El Correo Español, 17 de marzo de 1904.

14 “Viaje del Sr. Mariscal”, El Popular, 12 de marzo de 1904.

15 “To be Finished”, The mexican Herald , 1 de octubre de 1904.

16 “Into new building”, The mexican Herald , 9 de diciembre de 1904.

17 “Work started on third story of Banco Agricola e Hipotecario”, The mexican Herald , 1 de octubre de 1904.

18 “Test was successful”, The mexican Herald , 26 de octubre de 1904.

19 Ibidem

20 “Banco de Crédito Hipotecario Territorial Mexicano”, El Pueblo, 12 de marzo de 1916.

21Secretaria de Hacienda y Crédito Público, Memoria de la Secretaría de Hacienda y Crédito Público (México: La Secretaría, 1926), 206.

22 México. SCJN, Semanario Judicial de la Federación (México: La Corte, 1938), 750.

23 “Timeline Street View octubre 2015- febrero 2016”, Google Maps. [https://www.google.it/maps/@19.4307005,-99.1379313,3a,75y,151.21h,111.44t/data=!3m7!1e1!3m5!1spuY7Jkbg2BCGtKBkouVTQg!2e0!5s20160201T000000!7i13312!8i6656?hl=es].

24 Vigilante de la Construcción [web] http://www.vigilante.com.mx/U45.html

25 El arquitecto Salomón Sacal había participado con Cherem Serranos arquitectos en la rehabilitación del palacete colonial en la calle Isabel La Católica, 30 donde hoy se localiza el Hotel Dowtown. También, junto con Vigilantes de la construcción y los arquitectos: Jorge Ambrosi, Gabriela Etchegaray. participa en la recuperación del edificio de antiguo Círculo Mexicano, en la calle República de Guatemala, 30.

26 “Plano del perímetro central de la Ciudad de México del año 1883. Litografía Debray. MMOB.

27 “La Casa de Correos”, El País, 1 de febrero de 1901.

28 “Guía del Fondo Hospitales y Hospicios”, 1989. p. 4, Archivo Histórico de la Secretaría de Salud.

29 “La Tesorería General de la Federación”, 24 de julio de 1903. Foja 3, Exp. 523/36, Caja 40, Reg. 12, Fondo Secretaría de Comunicaciones y Obras Públicas, Archivo General de la Nación (en adelante SCOP, AGN).

30Steinway Hall Chicago”, 19 de abril de 1901. Foja 4, Exp. 522/3, Caja 1, Reg. 3, Fondo SCOP, AGN.

31“Nueva Casa de Correos”, El Imparcial. Diario de la mañana, 11 de enero de 1901.

32 “La Casa de Correos”, El País, 1 de febrero de 1901.

33“Dirección General de Correos. Nuevo edificio”, El Popular, 17 de junio de 1901.

34Steinway Hall Chicago”, 19 de abril de 1901. Foja 4, Exp. 522/3, Caja 1, Reg. 3, Fondo SCOP, AGN.

35Steinway Hall Chicago”, 19 de abril de 1901. Foja 4, Exp. 522/3, Caja 1, Reg. 3, Fondo SCOP, AGN.

36“Tengo el honor de poner en el supremo conocimiento de usted”, 6 de julio de 1901. Foja 1, Exp. 523/7, Caja 36, Reg. 8, Fondo SCOP, AGN.

37“Memoria que rinde Gonzalo Garita”, 12 de julio de 1902. Fojas 3-4, Exp. 523/10, Caja 36, Reg. 16, Fondo SCOP, AGN.

38“Secretaría de Comunicaciones y Obras Públicas. Minuta 501-502”, 9 de julio de 1901. Foja 2, Exp. 523/7, Caja 36, Reg. 8, Fondo SCOP, AGN.

39 “La Escuela de Comercio”, Semanario Literario Ilustrado, 22 de julio de 1901.

40 “Minuta del contrato”, 8 de julio de 1901. Foja 2, Exp. 523/3, Caja 36, Reg. 3, Fondo SCOP, AGN.

41 “Contrato celebrado entre los señores Adamo Boari y Gonzalo Garita con el señor Teodoro Reyes”, 30 de septiembre de 1901. Foja, 6, Exp. 523/4, Caja 36, Reg. 4, Fondo SCOP, AGN.

42 “Contrato celebrado entre los señores Adamo Boari y Gonzalo Garita con el señor Antonio Caso”, 20 de julio de 1901. Foja 7, Exp. 523/4, Caja 36, Reg. 4, Fondo SCOP, AGN.

43 “Adamo Boari al señor subsecretario”, 31 de octubre de 1902. Foja 1, Exp. 523/4-2, Caja 36, Reg. 5, Fondo SCOP, AGN.

44 “Mena a Garita”, 28 de octubre de 1901. Foja 4, Exp. 523/9, Caja 36, Reg. 15, Fondo SCOP, AGN.

45 “Señor ministro”, 8 de noviembre de 1901. Foja 12, Exp. 523/9, Caja 36, Reg. 15, Fondo SCOP, AGN.

46“Tengo el honor de adjuntar a usted”, 31 de enero de 1902. Foja 45, Exp. 523/9, Caja 36, Reg. 15, Fondo SCOP, AGN.

47 “Especificaciones relativas a la calidad”, 6 de noviembre de 1901. Foja 10, Exp. 523/9, Caja 36, Reg. 15, Fondo SCOP, AGN.

48 “Contrato celebrado entre los señores Adamo Boari arquitecto y Gonzalo Garita ingeniero con los Sres. Milliken Bros”, 24 de diciembre de 1901. Fojas 35-36, Exp. 523/9, Caja 36, Reg. 15, Fondo SCOP, AGN.

49 “De conformidad con la atenta nota de usted número 10226”, 18 de marzo de 1902. Foja 62, Exp. 523/9, Caja 36, Reg. 15, Fondo SCOP, AGN.

50 “Port of Tampico. Invoice of Merchandise”, 28 de febrero de 1902. Sin foja, Exp. 523/9, Caja 36, Reg. 15, Fondo SCOP, AGN.

51Milliken Brothers a Boari y Garita”, 6 de mayo de 1902. Foja 67, Exp. 523/9, Caja 36, Reg. 15, Fondo SCOP, AGN.

52 “Esqueleto de acero”, 20 de diciembre de 1902. Foja 1-2, Exp. 523/14, Caja 36, Reg. 20, Fondo SCOP, AGN.

53 “Memoria que rinde el suscrito”, 13 de julio de 1902. Foja 4, Exp. 523/10, Caja 36, Reg. 16, Fondo SCOP, ANG.

54 “Invitación oficial del Subsecretario de Comunicaciones y Obras Públicas”, septiembre de 1902. Foja 39, Exp. 523/16, Caja 37, Reg. 1, Fondo SCOP, AGN.

55 “Memoria presentada al Congreso de la Unión por el secretario de estado y del despacho de Comunicaciones y Obras Públicas, 1902-1903”, p. 107. Acervo Histórico del Palacio de Minería, Biblioteca Ing. Antonio M. Anza (en adelante AHPMBIAMA).

56 “Memoria presentada al Congreso de la Unión por el secretario de estado y del despacho de Comunicaciones y Obras Públicas, 1903-1904”, p. 81, AHPMBIAMA.

57 “Memoria presentada al Congreso de la Unión por el secretario de estado y del despacho de Comunicaciones y Obras Públicas, 1904-1905”, p. 73, AHPMBIAMA.

58 “Presupuesto Enrique Alciati”, 28 de enero de 1903. Foja 21-22, Exp. 523/18, Caja 37, Reg. 3, Fondo SCOP, AGN.

59 “Presupuesto José Sigler”, enero de 1903. Foja 23-24, Exp. 523/18, Caja 37, Reg. 3, Fondo SCOP, AGN.

60 “Presupuesto Urbano Chavarría”, 19 de enero de 1903. Foja 27-28, Exp. 523/18, Caja 37, Reg. 3, Fondo SCOP, AGN; “Presupuesto Juan Merino”, 20 de enero de 1903. Foja 25-26, Exp. 523/18, Caja 37, Reg. 3, Fondo SCOP, AGN.

61 “Memoria presentada al Congreso de la Unión por el secretario de estado y del despacho de Comunicaciones y Obras Públicas, 1906-1907”, p. 161, AHPMBIAMA.

62 “La inauguración de la Casa de Correos”, El Diario, 18 de febrero de 1907.

63 “El gran acontecimiento de hoy”, El Imparcial, 17 de febrero de 1907.

64 “La inauguración del suntuoso y elegante Edificio de Correos”, El Diario, 17 de febrero de 1907.