Estudios
CIUDAD Y TERRITORIO ESTUDIOS TERRITORIALES
ISSN(P): 1133-4762; ISSN(E): 2659-3254
Vol. LVII, Nº 225, OTOÑO 2025
Págs. 352-366
https://doi.org/10.37230/CyTET.2025.225.17
CC BY-NC-ND
Recibido: 28.02.2025
Revisado: 11.06.2025
David Hernández-Falagán (1)
(1) Profesor agregado Serra Húnter y co-director de la Cátedra Barcelona de Estudios de Vivienda. Universitat Politècnica de Catalunya (UPC)
david.hernandez.falagan@upc.edu;
https://orcid.org/0000-0002-9600-2304
Los retos a los que se enfrenta la producción de vivienda pública en España en el siglo XXI están provocando reflexiones importantes sobre el cambio del paradigma en el diseño arquitectónico residencial. Frente a la estabilidad de los modelos tipológicos y constructivos desarrollados mayoritariamente a lo largo del siglo XX, la crisis económica, ecológica y social constatada tras el cambio de siglo ha derivado en nuevos planteamientos y políticas de vivienda que son especialmente visibles en determinados ámbitos locales y regionales. Este artículo analiza las condiciones de partida del problema de la vivienda contemporánea en España desde la perspectiva del diseño, localiza las áreas y agentes que mayor esfuerzo de innovación están llevando a cabo y disecciona las características paradigmáticas del diseño de los nuevos modelos residenciales.
Palabras clave
Innovación residencial; Políticas de vivienda; IBAVI; IMPSOL.
The challenges currently being experienced in the field of public housing production in Spain are prompting significant reflection on the paradigm shift that has occurred in residential architectural design.In contrast to the stability of the typological and construction models developed primarily during the 20th century, the economic, ecological and social crisis that emerged in the early 21st century has given rise to novel housing approaches and policies, particularly evident in certain local and regional areas. This article will analyse the starting conditions of the contemporary housing problem in Spain from the perspective of design, locate the areas and agents that are carrying out the greatest innovation efforts and dissect the paradigmatic characteristics of the design of the new residential models.
Keywords
Residential innovation; Housing policies; IBAVI; IMPSOL.
Durante el último tercio del siglo XX en España la vivienda colectiva —y en particular los diferentes programas de vivienda pública de interés social— experimentó una importante transformación. Tras una etapa de pleno desarrollismo y construcción masiva al final del período franquista, al inicio de la década de 1980 la producción de viviendas en España se situaba a la cabeza del contexto europeo. El parque de vivienda producido —promovido y financiado— pertenecía mayoritariamente al ámbito de la propiedad privada, obviando políticas de mantenimiento de un papel público destacado en la regulación del mercado residencial. Se producía gran cantidad de vivienda, pero no se mantenía un parque público de vivienda de alquiler, sino que las viviendas públicas construidas se ofrecían mayoritariamente en propiedad a cambio de una serie de condiciones de producción, de acceso y de venta (Guàrdia et al., 2022). Así se comenzaba a definir una oferta sobredimensionada de vivienda, que sin embargo se encontraba con déficits urbanos en las grandes ciudades por la falta de planificación estratégica y supramunicipal. Por ello buena parte de los recursos de los años 1990, con la transferencia de competencias a las entidades autonómicas y municipales, fueron destinados a correcciones en infraestructuras y planeamiento. Fue el momento de los planes urbanos de tercera generación, como fueron denominados por el urbanista Bernardo Secchi (Secchi, 1989), implicado junto a Giuseppe Campos Venuti —otro eminente urbanista italiano— en el Plan General de Madrid de 1985. La formulación de estos planes intentó corregir la desarticulación de las periferias desarrollistas con infraestructuras y equipamientos, sin dejar de atender a la recuperación de los cascos históricos y zonas marginales de las ciudades, en definitiva, reconociendo la nueva realidad urbana que se enfrentaría al cambio de siglo (García-Vázquez, 2004).
Aunque en 1964 y 1968 se habían aprobado reformas para revisar y regular la legislación sobre viviendas de protección oficial, con el cambio político en 1978 se aprobó por real decreto-ley una nueva regulación de las Viviendas de Protección Oficial (VPO). En este proceso de transformación la constitución de 1978 previó la transferencia a las comunidades autónomas de las competencias en materia de vivienda. Estas circunstancias regulatorias, unidas a una cultura heredada de fomento de la propiedad y a un modelo subvencionado de compra de vivienda, provocaron que la utilización del nuevo suelo urbano derivado del planeamiento (por nueva ocupación o por cambio del uso derivado de la terciarización urbana) diera lugar a una producción masiva de suelo residencial (especialmente tras la liberalizadora ley del suelo de 1998). Debido al contexto de crisis económica, los ayuntamientos democráticos aprovecharon las recalificaciones de suelo industrial a suelo residencial como instrumento de financiación. Todo ello derivará en un crecimiento exponencial del negocio inmobiliario, sin embargo alejado de las necesidades y posibilidades económicas universales de acceso a la vivienda. Como consecuencia se gestará una burbuja del negocio que explotará con la crisis financiera internacional de 2008 (Hernández-Falagán y Rosselló, 2024).
Las últimas décadas del siglo XX, tan esperanzadoras y optimistas a nivel político, económico y social por el final de la dictadura y el inicio de la transición, significaron sin embargo una etapa de dolorosa diagnosis de la situación de la vivienda, y el reconocimiento de las dificultades de activación de nuevas políticas públicas capaces de incidir en el mercado para garantizar el derecho y el acceso a la vivienda para capas importantes de la población (Oyón et al., 2021; Hernández-Falagán y Montaner, 2019). La historia heredada de políticas erráticas de vivienda en España, la tendencia al régimen mayoritario de tenencia, el modelo imperfecto del estado del bienestar, la estructura administrativa de competencias atomizada, el marco legislativo en transformación, o las dinámicas liberales del mercado inmobiliario (unido a la afectación tardía de la crisis del petróleo de 1973) condicionaron de manera directa la producción de vivienda y suelo residencial al inicio del período democrático (Sanz Alarcón et al., 2018). Las propuestas habitacionales que se desarrollaron en las últimas décadas del siglo XX transitaban mayoritariamente los paisajes residenciales anunciados: fragmentos de extensión urbana desarrollados a través de planes parciales articulados con la ciudad existente; e intervenciones de diversa escala orientados a la recuperación de cascos consolidados (Montaner y Muxí, 2006; Cánovas et al., 2013; Cánovas et al., 2016; García Vázquez, 2015).
En definitiva, la producción de vivienda asequible en España se ha desarrollado mayoritariamente como respuesta no planificada a una necesidad sobrevenida (Centellas et al., 2009). En cierta manera la promoción residencial pública se ha instrumentalizado como un método paliativo para corregir desequilibrios ya manifiestos en relación a las dificultades de acceso a la vivienda de cada momento —la proliferación de diferentes formas de infravivienda en algunos momentos, la crisis social en otros, han sido los desencadenantes principales de las políticas de vivienda (Pacheco y Sales, 2011). Las respuestas legislativas y regulatorias han oscilado históricamente entre políticas intervencionistas y liberales (con una tendencia clara hacia estas últimas) en función de la coyuntura económica de cada momento, sin una estrategia mantenida de producción de un parque público de vivienda (por otra parte mínimo por la tendencia a la vivienda en propiedad) ni de incorporación de la vivienda como eje significativo del estado del bienestar (Hernández-Falagán, 2009). La producción de vivienda ha sido considerada parte fundamental del motor económico del país cuando ha sido necesario pero no como garantía social para las familias en las épocas de crisis. De esta manera se comprende la situación vulnerable del estado al inicio del siglo XXI, cuando la especulación inmobiliaria fruto de un mercado desregularizado y las directrices liberales del último período del siglo XX se enfrentaron a la crisis financiera y quiebra de la economía de 2008. En este contexto se inicia la reflexión de este artículo.
Esta investigación se ha llevado a cabo a través del estudio de diferentes fuentes primarias que se enumeran a continuación.
En primer lugar, con objeto de proporcionar una comprensión de las realizaciones arquitectónicas en el contexto legislativo, se han observado las figuras regulatorias relacionadas con la vivienda que se han aprobado en España desde el período de la transición democrática. Estos documentos originales han sido revisados a través de publicaciones oficiales y repositorios legislativos estatales. La revisión ha permitido identificar cinco grandes temas normativos: ordenación urbanística, arrendamientos urbanos, vivienda asequible o protegida, propiedad de la vivienda y requerimientos técnicos. En la Fig. 1 se ofrece la relación de los documentos originales consultados.
Considerando el estado actual de transferencia de competencias en materia de vivienda a las comunidades autónomas, la figura legislativa estatal con mayor capacidad transformadora es la Ley por el derecho a la vivienda de 2023, de reciente aplicación y todavía sin perspectiva histórica para reconocer su impacto real. Sin embargo, el aspecto legislativo más significativo en relación al período de estudio es el cambio de orientación de los planes estatales de vivienda a partir de la crisis de 2008. Es el caso de los planes de 2008 (para el período 2009-2012), de 2013 (para el período 2013-2016, prorrogado en 2017), de 2018 (para el período 2018-2021), y de 2022 (para el período 2022-2025). Mientras que hasta 2008 los planes materializaban una “política de vivienda basada en el fomento de la producción de un volumen creciente de viviendas, la ocupación de nuevos suelos y la apuesta por la propiedad como forma esencial de acceso a la vivienda”, a partir de esta fecha las políticas se reorientan hacia la rehabilitación y el fomento del alquiler como forma de tenencia (Forns, 2020; Rodríguez, 2010; Ortega-Moreno, 2021). Como veremos, ambos aspectos tendrán una importancia fundamental en el desarrollo de nuevos modelos tipológicos en vivienda pública.
En segundo lugar, con objeto de identificar los ámbitos geográficos, agentes y realizaciones arquitectónicas residenciales más significativas del período analizado, se han observado los repositorios de proyectos de vivienda en España depositados para su participación en certámenes de arquitectura. Se han consultado específicamente los archivos digitales de tres de estos repositorios:
|
FIGURA LEGISLATIVA |
AÑO |
TEMA REGULADO |
|
Real Decreto-ley 31/1978, de 31 de octubre, sobre política de viviendas de protección oficial |
1978 |
Vivienda asequible |
|
Real Decreto 1707/1981, de 3 de agosto, por el que se modifica la ayuda económica personal para la adquisición y arrendamiento de viviendas de protección oficial |
1981 |
Vivienda asequible; Arrendamientos urbanos |
|
Real Decreto 2455/1980, de 7 de noviembre, sobre financiación y seguimiento del programa 1981-83 de construcción de viviendas de protección oficial |
1981 |
Vivienda asequible |
|
Real Decreto 3280/1983, de 14 de diciembre, sobre financiación de actuaciones protegibles en materia de vivienda |
1983 |
Vivienda asequible |
|
Real Decreto-ley 2/1985, de 30 de abril, sobre medidas de política económica |
1985 |
Arrendamientos urbanos |
|
Real Decreto 1494/1987, de 4 de diciembre, sobe medidas de financiación de actuaciones protegibles en materia de vivienda |
1987 |
Vivienda asequible |
|
Ley 8/1990, de 25 de julio, sobre Reforma del Régimen Urbanístico y Valoraciones del Suelo |
1990 |
Ordenación urbana |
|
Real Decreto 1932/1991, de 20 de diciembre, sobre medidas de financiación de actuaciones protegibles en materia de vivienda del Plan 1992-1995 |
1991 |
Vivienda asequible |
|
Ley 29/1994, de 24 de noviembre, de Arrendamientos Urbanos |
1994 |
Arrendamientos urbanos |
|
Real Decreto 2190/1995, de 28 de diciembre, sobre medidas de financiación de actuaciones protegibles en materia de vivienda y suelo para el período 1996-1999 |
1995 |
Vivienda asequible |
|
Ley 7/1997, de 14 de abril, de medidas liberalizadoras en materia de suelo y de Colegios profesionales |
1997 |
Ordenación urbana |
|
Ley 6/1998, de 13 de abril, sobre régimen del suelo y valoraciones |
1998 |
Ordenación urbana |
|
Real Decreto 1186/1998, de 12 de junio, sobre medidas de financiación de actuaciones protegidas en materia de vivienda y suelo del Plan 1998-2001 |
1998 |
Vivienda asequible |
|
Ley 8/1999, de 6 de abril, de Reforma de la Ley 49/1960, de 21 de julio, sobre Propiedad Horizontal |
1999 |
Propiedad horizontal |
|
Real Decreto 1/2002, de 11 de enero, sobre medidas de financiación de actuaciones protegidas en materia de vivienda y suelo del Plan 2002-2005 |
2002 |
Vivienda asequible |
|
Real Decreto 801/2005, de 1 de julio, por el que se aprueba el Plan Estatal 2005-2008, para favorecer el acceso de los ciudadanos a la vivienda |
2005 |
Vivienda asequible |
|
Real Decreto 314/2006, de 17 de marzo, por el que se aprueba el Código Técnico de la Edificación |
2006 |
Requerimientos técnicos |
|
Ley 8/2007, de 28 de mayo, de suelo |
2007 |
Ordenación urbana |
|
Real Decreto 2066/2008, de 12 de diciembre, por el que se regula el Plan Estatal de Vivienda y Rehabilitación 2009-2012 |
2008 |
Vivienda asequible |
|
Real Decreto 233/2013, de 5 de abril, por el que se regula el Plan Estatal de fomento del alquiler de viviendas, la rehabilitación edificatoria, y la regeneración y renovación urbanas, 2013-2016. |
2013 |
Vivienda asequible; Arrendamientos urbanos |
|
Ley 4/2013, de 4 de junio, de medidas de flexibilización y fomento del mercado del alquiler de viviendas |
2013 |
Arrendamientos urbanos |
|
Orden FOM/1635/2013, de 10 de septiembre, por la que se actualiza el Documento Básico DB-HE "Ahorro de Energía", del Código Técnico de la Edificación, aprobado por Real Decreto 314/2006, de 17 de marzo |
2013 |
Requerimientos técnicos |
|
Real Decreto Legislativo 7/2015, de 30 de octubre, por el que se aprueba el texto refundido de la Ley de Suelo y Rehabilitación Urbana |
2015 |
Ordenación urbana |
|
Real Decreto 106/2018, de 9 de marzo, por el que se regula el Plan Estatal de Vivienda 2018-2021 |
2018 |
Vivienda asequible |
|
Real Decreto 42/2022, de 18 de enero, por el que se regula el Bono Alquiler Joven y el Plan Estatal para el acceso a la vivienda 2022-2025 |
2022 |
Vivienda asequible |
|
Ley 12/2023, de 24 de mayo, por el derecho a la vivienda |
2023 |
Vivienda asequible; Arrendamientos urbanos |
Fuente: Elaboración propia
Los Premios FAD de Arquitectura e Interiorismo. Los convoca la asociación ArquinFAD, miembro del Fomento de las Artes y del Diseño (FAD), desde 1958.
Los Premios de Arquitectura Contemporánea de la Unión Europea Mies van der Rohe (EUmies Awards). Los convoca la Fundación Mies Van der Rohe desde 1988.
Los Premios de la Bienal Española de Arquitectura y Urbanismo (BEAU). Los convoca el Gobierno de España desde 1989.
Se ha considerado una fuente de información importante por su valor para identificar las propuestas arquitectónicas contemporáneas —significativas en términos cualitativos— completadas en España en materia de vivienda colectiva en los últimos años (entre 2008 y 2024). Los tres certámenes escogidos aportan la selección de proyectos con criterios de objetividad, representatividad del territorio nacional y receptividad positiva de la participación de proyectos de vivienda colectiva, a la vez que evitan los criterios editoriales o curatoriales subjetivos de otro tipo de publicaciones o plataformas culturales. Se ha procedido al vaciado de datos e información gráfica correspondientes a los proyectos premiados en las diferentes categorías de estos certámenes. Finalmente, se han cruzado los datos de las tres selecciones para descubrir los proyectos que han contado con un reconocimiento más unánime. En la Fig. 2 se ofrece la relación de los proyectos que han recibido algún tipo de reconocimiento en al menos dos de los certámenes.
Entre los 24 proyectos relacionados el modelo de promoción pública es la situación dominante, y entre las entidades promotoras destacan dos: el Instituto Balear de la Vivienda (IBAVI) con 6 realizaciones, y el Instituto Metropolitano de Promoción de Suelo y Gestión Patrimonial del Área Metropolitana de Barcelona (IMPSOL) con 4 proyectos. Entre ambos organismos suman más del 40% de los proyectos que podemos considerar especialmente significativos de acuerdo con los criterios indicados. Si lo observamos geográficamente, la distribución es incluso más asimétrica. Solo 5 de los 24 proyectos se localizan fuera de las comunidades autónomas de Catalunya (representada con 13 proyectos) e Islas Baleares (representada con los 6 proyectos del IBAVI).
|
Proyecto |
Estudio de arquitectura |
Entidad promotora |
FAD |
EUmies Awards |
BEAU |
|
40 viviendas de alquiler en Sant Feliu de Llobregat (2023) |
MAIO |
IMPSOL |
● |
● | |
|
42 viviendas sociales en Son Servera (2023) |
Peris+Toral |
IBAVI |
● |
● | |
|
136 viviendas sociales en Gavà (2022) |
HArquitectes |
IMPSOL |
● |
● |
● |
|
43 viviendas sociales en Ibiza (2022) |
Peris+Toral |
IBAVI |
● |
● | |
|
8 viviendas de alquiler protegido en Palma (2021) |
Oliver, Moyá, Martín, Reina |
IBAVI |
● |
● | |
|
54 viviendas sociales en el Bon Pastor, Barcelona (2021) |
Peris+Toral, Jaime Pastor |
IMHAB |
● |
● | |
|
46 viviendas sociales en Fabra & Coats, Barcelona (2020) |
Roldán+ Berengué |
IMHAB |
● |
● |
● |
|
85 viviendas sociales en Cornellà de Llobregat (2020) |
Peris+Toral |
IMPSOL |
● |
● |
● |
|
35 viviendas (bloque 6x6) en Girona (2020) |
Bosch+ Capdeferro |
Privada |
● |
● |
● |
|
5 viviendas sociales en Palma (2020) |
Oliver, Moyá, Martín, Reina |
IBAVI |
● |
● | |
|
79 viviendas protegidas en Sant Boi de Llobregat (2019) |
Herreros, MIM-A |
IMPSOL |
● |
● |
● |
|
Rehabilitación de viviendas en Vallirana 47, Barcelona (2018) |
vora |
Privada |
● |
● | |
|
Cooperativa de 28 viviendas La Borda (2018) |
Lacol |
Coop. |
● |
● | |
|
14 viviendas de protección pública en Sant Ferran (2017) |
Oliver, Moyá, Martín, Reina |
IBAVI |
● |
● |
● |
|
22 viviendas en calle Provença, Barcelona (2016) |
MAIO |
Privada |
● |
● |
● |
|
8 viviendas experimentales en Granada (2016) |
Elisa Valero |
Coop. |
● |
● | |
|
Viviendas de realojo en Pamplona (2013) |
Pereda, Pérez |
PCH |
● |
● | |
|
19 viviendas sociales en Sa Pobla (2012) |
Ripoll, Tizón |
IBAVI |
● |
● | |
|
57 viviendas universitarias en la ETSAV, Sant Cugat (2012) |
DataAE, HArquitectes |
UPC |
● |
● | |
|
32 viviendas protegidas en San Vicente del Raspeig (2012) |
Alfredo Payá |
IVV |
● |
● | |
|
127 viviendas protegidas en el Raval, Barcelona (2010) |
Bru, Lacomba, Setoain |
IMHAB |
● |
● | |
|
146 viviendas sociales (Celosía) en Madrid (2009) |
Blanca Lleó, MVRDV |
EMVS |
● |
● | |
|
80 viviendas de protección oficial en Salou (2009) |
Toni Gironés |
FIA |
● |
● | |
|
40 apartamentos tutelados para mayores en Benidorm (2008) |
Javier García-Solera |
IVV |
● |
● |
Fig. 2. Listado de proyectos especialmente reconocidos
Fuente: Elaboración propia
En tercer lugar, con objeto de conocer las particularidades de las entidades públicas promotoras que han sido identificadas como casos de estudio especialmente significativos, se han revisado los archivos y repositorios digitales de IBAVI e IMPSOL. En ellos se han observado los expedientes de los concursos, especialmente en relación con los requisitos de diseño y con la interpretación de la legislación vigente antes mencionada. Se ha contado también con fuentes bibliográficas (la mayoría autoeditadas) que permiten conocer la historia de ambas entidades y sus realizaciones más significativas. A continuación se relacionan los textos utilizados específicamente para este trabajo:
IBAVI
Márquez Cecilia, F., Levene, R. C. (2023): IBAVI, 2019-2023 : una investigación colectiva. Madrid, España, El Croquis editorial. (Márquez Cecilia & Levene, 2023).
Oliver, C., Martín, A., Moyá, J. (2018): Life reusing Posidonia. Palma, España, Institut Balear de l’Habitatge IBAVI. (Oliver, Martín y Moyá, 2018).
IMPSOL
IMPSOL (1997): Vivienda asequible : la propuesta del IMPSOL. Barcelona, España, IMPSOL-AMB-COAC. (Impsol, 1997).
Iglesias, A., Vendrell i Amat, J. (2003): Habitatge protegit metropolità : 1995-2003. Barcelona, España, AMB.
Torra i Xicoy, R. M., Iglesias, A., Borrell Bru, J. M., Cervera, M. (2014): Habitatge metropolità 2004-2014: projectes i obres Àrea Metropolitana de Barcelona. Barcelona, España, AMB.
Caparrós, A., Fernández, F., Ortega, Ll., Santacana, A. (2022): Paisajes habitacionales. Barcelona, España, AMB-IMPSOL.
Poch, M. (2024): Vivienda en el área metropolitana de Barcelona. IMPSOL 2015-2024. Barcelona, España, AMB-IMPSOL.
El contexto de trabajo del IBAVI está condicionado por la situación de una comunidad autónoma dependiente económicamente del turismo donde las políticas de vivienda habían sido escasas y destinadas principalmente a la vivienda en propiedad hasta la crisis de 2007 (Salom y Mas, 2010; Rullan, 1999; Vives-Miró y Rullan, 2017). Su Estatuto de Autonomía del mismo año especificó
Que las administraciones públicas de las Illes Balears garantizarán el derecho de acceso a una vivienda digna de los ciudadanos de las Illes Balears y que se regularán por ley las ayudas para promover este derecho, especialmente a favor de los jóvenes, de las personas sin medios, de las mujeres maltratadas, de las personas dependientes y de aquellas otras en cuyo caso las ayudas estén justificadas.
Se hace referencia a la regulación que se aprobará como Ley 5/2018, de 19 de junio, de la vivienda de las Illes Balears. En ella se proponen cambios significativos, como la protección permanente de la vivienda pública, además de interesantes criterios de calidad e innovación.
Otro antecedente especialmente singular para comprender el contexto es el desarrollo del proyecto Life Reusing Posidonia, una iniciativa del IBAVI, en colaboración con la DG de Medio Natural, Educación ambiental y Cambio Climático, financiada por la Unión Europea dentro del programa LIFE+2012, para la construcción de 14 viviendas protegidas en Formentera. Se trataba de desarrollar métodos de construcción innovadores en relación a los criterios ambientales, y que significó un referente a escala nacional por sus objetivos anticipados de eficiencia energética (siempre con la premisa de reducir la demanda con sistemas pasivos hasta evitar la necesidad del uso de climatización con sistemas activos). El proyecto permitió la monitorización y el retorno de un conocimiento que se aplicó en los concursos públicos de 2020 y 2021. En ellos se manifestaron unos criterios de valoración de propuestas muy ambiciosos en relación a las propuestas arquitectónicas, que se reproducen a continuación.
aCalidad arquitectónica del proyecto y de las intervenciones
1 La calidad espacial del edificio y de cada una de las dependencias y la adecuada ubicación de éstas.
2 Desarrollo del programa de necesidades y criterios generales previstos.
3 Equilibrio entre superficie construida y útil, con vistas a garantizar la viabilidad económica de la construcción proyectada.
4 Análisis de la relación entre los espacios privados y los públicos.
5 Integración paisajística en el entorno urbano.
6 Otros aspectos que el Jurado pueda considerar importantes.
bAdecuación funcional de la propuesta
1 La capacidad del edificio para garantizar un menor coste en su mantenimiento posterior y una mejor utilización y funcionamiento del edificio por la elección de materiales, acabados y el diseño de sistemas e instalaciones.
2 Adaptación de las tipologías de la vivienda a las nuevas necesidades y demandas sociales y adaptación a nuevos modelos y/o fórmulas familiares, teniendo en cuenta la coherencia entre su calidad y el coste de las mismas.
3 Flexibilidad de usos.
4 Se tendrá en cuenta la total accesibilidad de cualquier persona, sea cual sea su condición física, y el fomento de los mismos recorridos públicos para todas las personas.
cSostenibilidad y criterios ambientales
1 Propuestas que superen los requisitos mínimos recogidos en las bases técnicas para dar respuesta a la emergencia climática.
2 Innovación y calidad de las propuestas desde la sostenibilidad (trazabilidad, reducción del consumo de agua y producción de residuos durante la ejecución de las obras y durante la vida útil del edificio, análisis de la toxicidad de los materiales, reducción de la huella ecológica, garantía de los derechos laborales en los procesos de extracción y tratamiento de los materiales a utilizar en las obras, autosuficiencia energética y confort mediante sistemas pasivos, iluminación y ventilación cruzada de cada estancia, etc.).
dVelocidad de ejecución de las obras
1 Sencillez de proyecto y sistemas constructivos que garanticen mayor velocidad de ejecución de las obras para dar respuesta a la emergencia habitacional.
2 Se tendrá en cuenta la reducción de los plazos de ejecución de las obras.
Se apunta hacia viviendas que eliminan tipológicamente las jerarquías funcionales y dimensionales en busca de espacios versátiles y apropiables, garantizando la rotación de usuarios y la adaptación a diferentes modelos de habitar. Y se elevan extraordinariamente las exigencias de sostenibilidad. Podemos observar los resultados en cuatro de los ejemplos identificados anteriormente como piezas especialmente singulares.
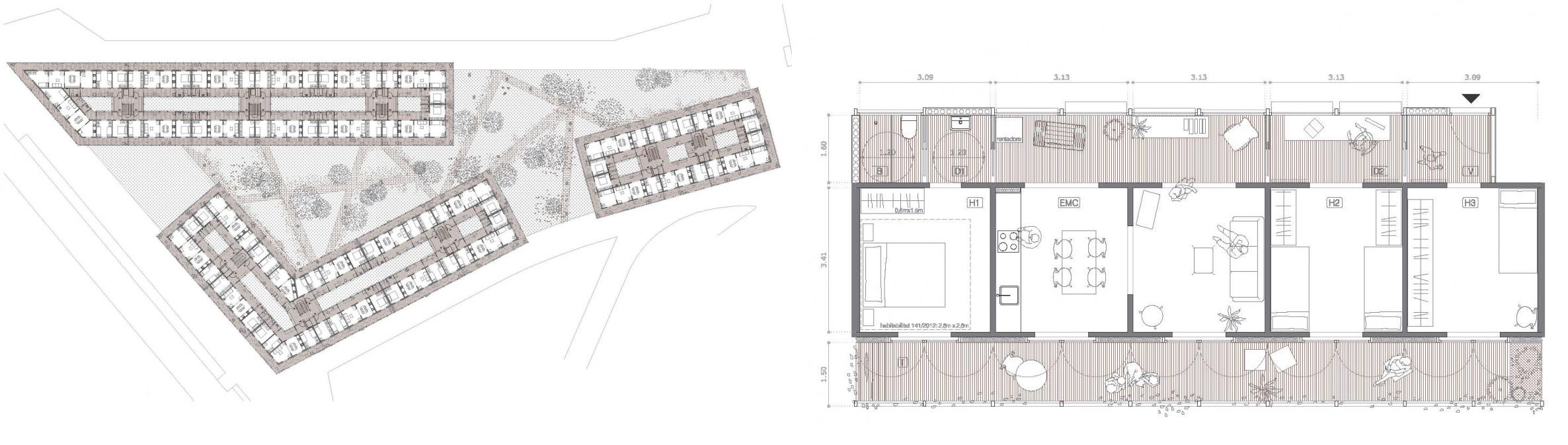
14 viviendas de protección pública en Sant Ferran, Formentera (2017). Carles Oliver, Antonio Martín, Xim Moyà, Alfonso Reina, Maria Antonia Garcías (IBAVI)
Es un proyecto especialmente singular por su carácter exploratorio como proyecto piloto para el IBAVI, fundamentalmente desde la perspectiva de la sostenibilidad. Se propone una arquitectura emparentada con los modelos tradicionales, con accesos directos desde la calle y orientaciones favorables a las brisas marinas y la ventilación cruzada. Se plantea el uso de posidonia como material aislante compactada en palés reutilizados, haciendo una inversión monitorizada en recursos locales y mano de obra no altamente cualificada. Las tipologías resultantes concatenan las estancias de forma versátil en una doble crujía longitudinal.
Fig. 3. Planta de conjunto y tipologías del proyecto 14 viviendas de protección pública en Sant Ferran
Fuente: IBAVI, 2019-2023: una investigación colectiva
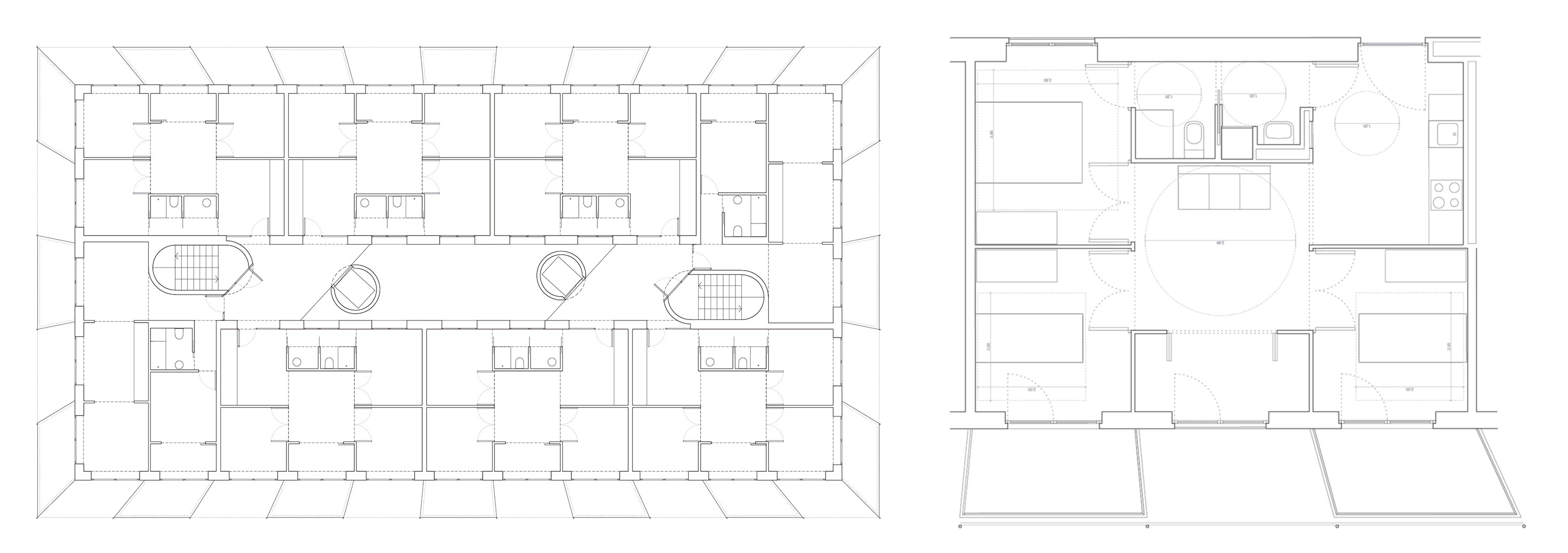
8 viviendas de alquiler protegido en Palma (2021). Carles Oliver, Xim Moyà, Antonio Martín, Alfonso Reina (IBAVI), Miguel Nevado (estructura)
El proyecto opta por una construcción en piedra arenisca “mares”, extraída en el mismo término municipal, por su condición vernacular, el bajo impacto ambiental de su uso, y su condición de elemento con capacidad de trabajo tensional a compresión. De esta manera se asegura un comportamiento térmico eficiente por la inercia térmica de la envolvente propuesta. Se define una pieza fundamentalmente lineal con dos bóvedas de cañón continuas que se soportan lateralmente mediante elementos contrafuertes de marés —que permiten alojar elementos de uso de los espacios, como las cocinas—, y pantallas intermedias que articulan la distribución. De nuevo, se articula una sencilla distribución con piezas contiguas.
Fig. 4. Planta de conjunto y tipologías del proyecto 8 viviendas de alquiler protegido en Palma
Fuente: IBAVI, 2019-2023: una investigación coletiva
43 viviendas sociales en Ibiza (2022). Peris + Toral Arquitectes
El proyecto se plantea con muros paralelos de carga ejecutados con bloques de tierra compacta de 20 cm de espesor. Los muros proporcionan unas condiciones de inercia térmica y aislamiento acústico adecuadas, a la vez que catalizan una distribución lineal de piezas rectangulares equivalentes de 4x3 metros. Estas piezas son colonizadas por las diferentes unidades de vivienda mediante una articulación dinámica de la apropiación, utilizando como divisiones los propios elementos estructurales y aprovechando las condiciones térmicas que proporcionan los patios. Las viviendas resultantes concatenan espacios equivalentes de distribución variable.
Fig. 5. Planta de conjunto y tipologías del proyecto 43 viviendas sociales en Ibiza
Fuente: IBAVI, 2019-2023: una investigación colectiva
42 viviendas sociales en Son Servera (2023). Peris + Toral Arquitectes
El proyecto se ubica en el borde del municipo mallorquín de Son Cervera respetando con habilidad la escala de las edificaciones colindantes, a la vez que respondiendo a la topografía con un doble volumen escalonado. La construcción relaciona muros de carga cerámicos con fachadas de arenisca local en una construcción sencilla con presencia de madera en las celosías. Las dos piezas se articulan desplazándose longitudinalmente para liberar sendos patios en las esquina, privatizados con tapias y cualificados con vegetación y texturas locales. Una galería intermedia abierta ejerce de elemento de comunicación horizontal entre las unidades de vivienda. Estas gozan de ventilación cruzada en una articulación diagonal de la pieza principal que dispone en los extremos de dos ámbitos intermedios (uno de ellos un interesante jardín de invierno) y los accesos a sendos dormitorios en la tipología más repetida.
Fig. 6. Planta de conjunto y tipologías del proyecto 42 viviendas sociales en Son Servera
Fuente: IBAVI, 2019-2023: una investigación colectiva
Las circunstancias del IMPSOL son aparentemente dispares de las del IBAVI aunque se detecta cierta convergencia en cuanto a la voluntad de innovación y de comprensión de la vivienda como servicio público. El IMPSOL es una entidad pública de carácter empresarial adscrita al Área Metropolitana de Barcelona (AMB). Se creó en 1985 como una entidad urbanística especial conforme a la legislación del momento, y desde entonces ha sido un actor clave en la promoción de viviendas de protección oficial en el AMB, especialmente por el crecimiento de la población que se dio en las últimas décadas del siglo XX (Ferrer, 2006). Frente al reto de ordenación de un ámbito metropolitano fragmentado en múltiples municipios en crecimiento simultáneo, el IMPSOL se ha situado como agente articulador en el que la vivienda asequible ha operado como herramienta de ordenación urbanística, reciclaje y cosido urbano, y como regulador social de los nuevos barrios (Font, 1997 y 2000; Vilanova, 1997).
Especialmente en el período más reciente, entre 2015 y 2024, ha impulsado proyectos que integran calidad arquitectónica, eficiencia energética, innovación tipológica e inclusividad, marcando un cambio en el modelo tradicional de vivienda social en la región. Al igual que en el IBAVI, el IMPSOL ha apostado también por la innovación constructiva, como demuestran algunas de las promociones de mayor escala construidas con madera contralaminada (CLT), también en búsqueda de criterios objetivos de sostenibilidad y eficiencia en la edificación.
En el caso del IMPSOL, el marco de inflexión también puede rastrearse desde circunstancias regulatorias. En 2007, coincidiendo con el inicio de la crisis económica, se aprobó en Catalunya la Ley 18/2007, de 28 de diciembre, del derecho a la vivienda (regulando lo previsto en el Estatuto de Autonomía de 2006). La ley es precisa definiendo una apuesta por
la creación de un parque específico de viviendas asequibles que permita atender las necesidades de la población que necesita un alojamiento. Este parque debe ser suficiente para permitir la movilidad y la adaptación a las necesidades cambiantes de las personas, y especialmente integrado en cuanto al entorno físico así como bajo el punto de vista social.
Si bien en la anterior Ley de Barrios de 2004 (Ley 2/2004, de 4 de junio, de mejora de barrios, áreas urbanas y villas que requieren una atención especial) ya se ponía especial atención en las circunstancias sociales y particularmente en la equidad de género, la ley de 2007 fue muy precisa en identificar determinados requisitos exigibles a las viviendas:
La innovación en la concepción y el diseño de la vivienda, que debe permitir la flexibilidad en la utilización de los elementos para facilitar el trabajo doméstico y para adecuarse a los nuevos roles de género, y que debe permitir también efectuar transformaciones dentro de la vivienda para adaptarla a las variaciones en la estructura familiar, en su caso. Dicha innovación, en términos de perfeccionamiento, debe facilitar la introducción de nuevas tecnologías.
Estas indicaciones fueron recogidas por el IMPSOL a través de los grupos de trabajo de los técnicos municipales, propiciando una modificación ostensible de los pliegos de condiciones técnicas de los concursos a partir de 2017 (Muxí, 2020). Los criterios para la valoración de las propuestas se indican a continuación:
aContextualització i coherència del conjunt amb l’entorn existent
1 La capacitat de relacionar-se amb l’entorn.
2 La racionalitat i funcionalitat de la proposta.
3 La coherència, conceptualització, originalitat, resolució del conjunt.
bQualitat d’agregació, funcionament i tipologia de l’edifici d’habitatges
1 La qualitat de la proposta arquitectònica.
2 La resolució, funcionalitat, flexibilitat i adequació de la planta baixa i la seva relació amb l’espai públic.
3 La racionalitat i funcionalitat de l’edifici i el seu rendiment de superfície útil vs. construïda.
4 La coherència, viabilitat estructural, constructiva i econòmica.
5 La facilitat de manteniment.
cProposta d’habitatges
1 La qualitat espaial de la proposta d’habitatges.
2 La racionalitat, funcionalitat, adaptabilitat / flexibilitat i perspectiva de gènere de l’habitatge.
3 La coherència, racionalitat constructiva i facilitat de manteniment.
4 La originalitat i innovació.
dEstratègia d’estalvi energètic i cicle de vida
1 La capacitat del projecte de resoldre de forma passiva les estratègies d’estalvi energètic, d’autosuficiència i sostenibilitat.
2 La justificació tècnica i viabilitat de les estratègies d’estalvi energètic, d’autosuficiència i sostenibilitat.
Curiosamente, aunque se sigue mencionando una tipología genérica (“la tipología genérica es la de una vivienda con una pieza principal de comedor-estar, cocina (que puede ser segregada o no), 3 habitaciones de superficie no inferior a 8m2, 1 cuarto de baño y cuando se pueda la previsión de un espacio adicional que puede ser baño o almacenamiento”), se hace mención explícita a un replanteamiento tipológico:
Se pretenden viviendas inclusivas y diseñadas teniendo en cuenta la perspectiva de género, y por tanto que rompan con las jerarquías espaciales, así como los repartos tradicionales de roles y poderes tradicionales. Igualmente, las viviendas preverán la incorporación de la diversidad de usos requeridos en las diferentes etapas de la vida de los ocupantes en la compleja sociedad actual, considerando las necesidades de las tareas de los cuidados.
Observemos también los resultados en cuatro ejemplos identificados anteriormente.
79 viviendas protegidas en Sant Boi de Llobregat (2019). Estudio Herreros, MIM-A
Se plantea un volumen compacto que pese a disponer 12 viviendas por planta tipo se resuelve con un único núcleo de comunicación vertical. Se formaliza así un volumen monolítico que sorprende por la porosidad interior lograda mediante la extracción del patio principal y las terrazas horizontales. Ello facilita un comportamiento climático especialmente eficiente, aunque apoyado por sistemas activos. Las viviendas se resuelven con una tipología relativamente convencional, que todavía incorpora pasillos y diferencia áreas de día y de noche.
Fig. 7. Planta de conjunto y tipologías del proyecto 79 viviendas protegidas en Sant Boi de Llobregat
Fuente: Vivienda en el área metropolitana de Barcelona. IMPSOL 2015-2024
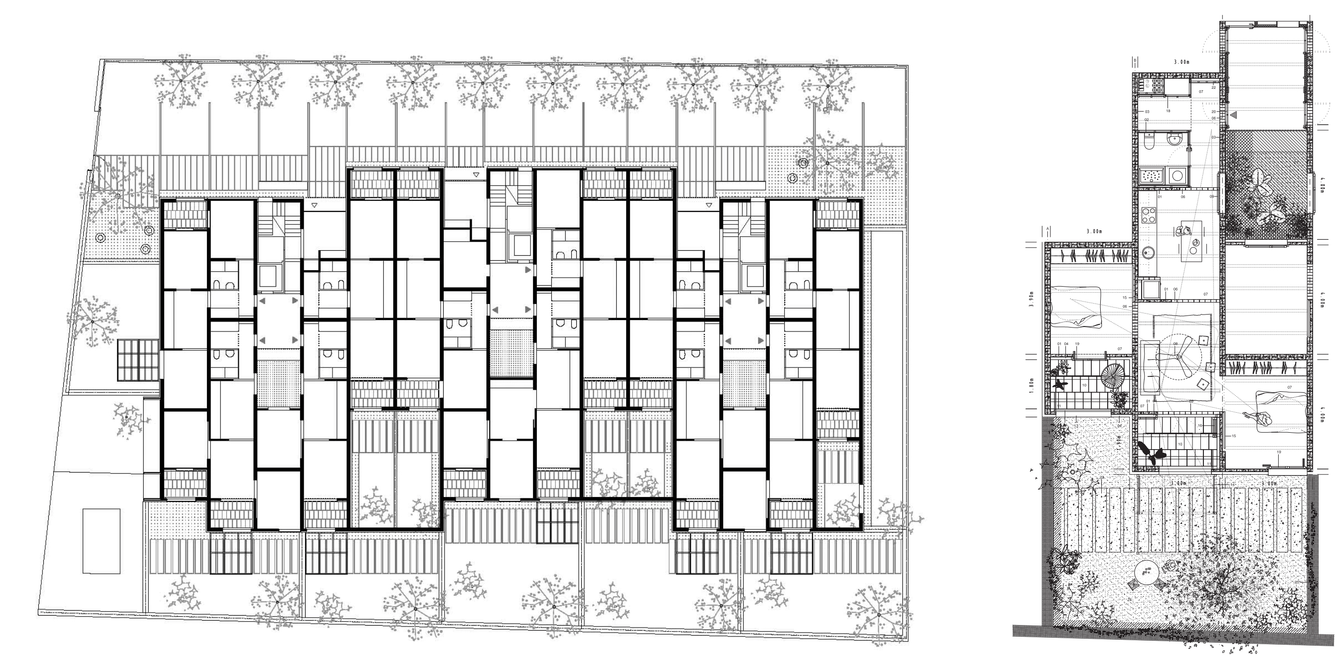
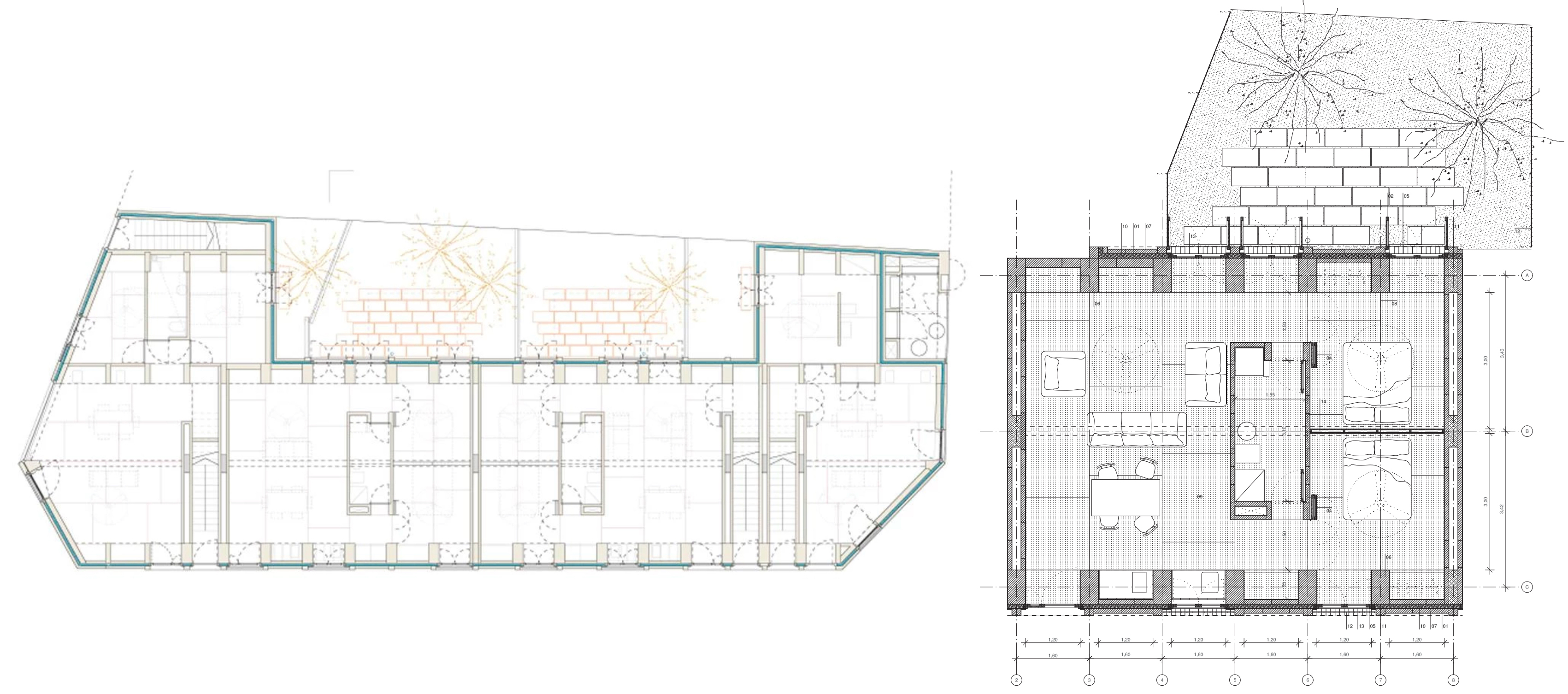
85 viviendas sociales en Cornellà de Llobregat (2020). Peris + Toral Arquitectes
Probablemente uno de los edificios más significativos de la exploración arquitectónica residencial de los últimos años. El edificio reproduce un bloque de manzana cerrada en torno a un patio en un contexto urbano denso con el que no plantea un diálogo específico. Sin embargo resuelve la distribución de la planta con una trama regular de espacios equivalentes construida en madera (CLT) que permite distribuir 114 módulos de dimensiones generosas para formar 18 viviendas por planta articuladas en torno a 4 núcleos de comunicación. La tipología residencial se constituye como un grupo de habitaciones comunicantes con los equipamientos técnicos ocupando las posiciones centrales y dotando de gran versatilidad a la ocupación de los módulos.
Fig. 8. Planta de conjunto y tipologías del proyecto 85 viviendas sociales en Cornellà de Llobregat
Fuente: Vivienda en el área metropolitana de Barcelona. IMPSOL 2015-2024
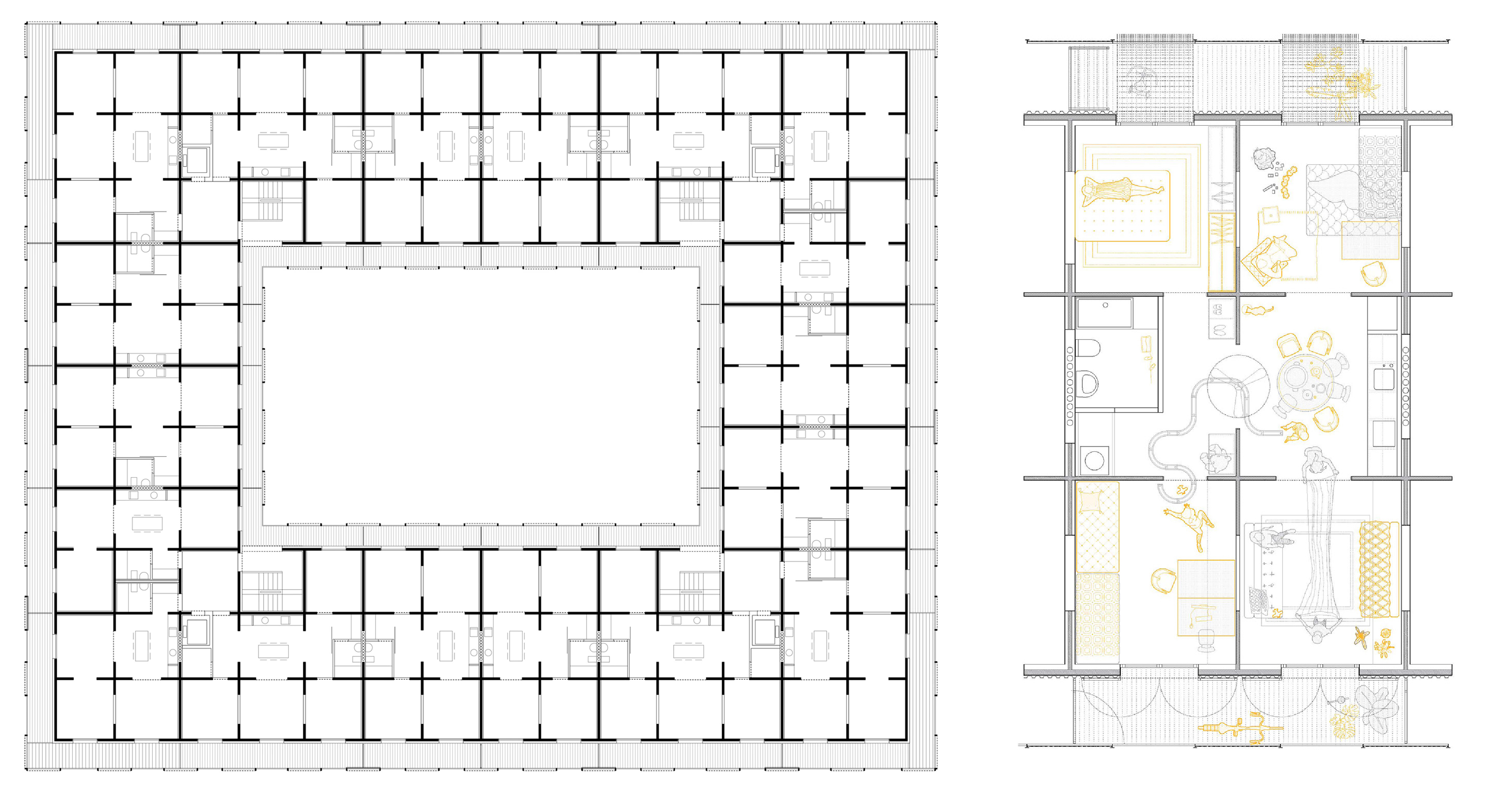
136 viviendas sociales en Gavà (2022). HArquitectes
Conjunto organizado en tres unidades en forma de anillos con patio lineal interior que se articulan con el borde de la localidad. Destaca un planteamiento estructural de pantallas de hormigón que se entrecruzan para formalizar tanto la envolvente como la distribución interior. Los espacios residenciales quedan configurados como alineaciones contiguas de habitaciones equivalentes comunicadas por una franja de terraza interior y por una galería exterior. Tanto las dimensiones de los módulos como la disposición generosa de los anillos de distribución favorece una apropiación versátil y flexible de los espacios.
Fig. 9. Planta de conjunto y tipologías del proyecto 136 viviendas sociales en Gavà
Fuente: Vivienda en el área metropolitana de Barcelona. IMPSOL 2015-2024
40 viviendas de alquiler en Sant Feliu de Llobregat (2023). MAIO
El proyecto propone un bloque de cinco plantas, aislado, compacto, con patio interior que resuelve una distribución original de las viviendas con criterios geométricos sencillos e inteligentes. Se facilita una materialización preindustrializada que optimiza el comportamiento climático del edificio. Las terrazas y una estructura auxiliar determinan una franja de profundidad con espacios exteriores y protecciones solares en forma de cortinajes de exterior. Las viviendas se articulan de manera flexible en piezas concatenadas a tresbolillo, distribuidas en torno a un espacio central de uso versátil e indeterminado.
Fig. 10. Planta de conjunto y tipologías del proyecto 40 viviendas de alquiler en Sant Feliu de Llobregat
Fuente: Vivienda en el área metropolitana de Barcelona. IMPSOL 2015-2024
Se hace evidente que tanto la evolución de las figuras regulatorias propias del ámbito de la vivienda como su aplicación generosa por parte de las instituciones públicas de vivienda observadas han generado un espacio de oportunidad que se ha materializado en experiencias residenciales de gran interés arquitectónico. Si bien las condiciones de IBAVI e IMPSOL son diferentes en cuanto a escalas de trabajo o limitaciones propias de los territorios en los que actúan, son visibles determinadas similitudes en cuanto a su voluntad de innovación tanto en la escala social de producción de hábitat como en la materialización sostenible de piezas arquitectónicas de bajo impacto ambiental. Podemos resumir estas dos capas fundamentales de innovación.
Exploración de sistemas estructurales eficientes e innovadores
Vemos esta exploración por parte de todos casos de estudio. Hemos observado modelos estructurales conocidos, como entramados de hormigón armado utilizados como acabado final; sistemas ligeros de aplicación más reciente, como estructuras de CLT; estructuras murarias de bajo impacto ambiental, como las construidas con bloques de tierra compacta; o incluso recuperación de sistemas tradicionales de piedra para la consecución de eficiencia energética por inercia térmica.
Implementación de medidas creativas y pasivas de ahorro energético
Los casos de estudio (especialmente los de IBAVI) son paradigmáticos por la voluntad explícita de limitar el impacto ecológico de la edificación en todas sus dimensiones, actuando por encima de los requerimientos normativos. Buena parte del esfuerzo de diseño se destina a las estrategias constructivas y volumétricas que permitirán el comportamiento óptimo, desplazando el foco del trabajo proyectual hacia planteamientos más conscientes del conjunto del proceso arquitectónico (Oliver, 2019).
Eliminación de jerarquías funcionales y dimensionales
Los proyectos eluden las tipologías tradicionales orientadas a modelos familiares nucleares para proporcionar espacios equivalentes y equipotenciales que son dimensionados de acuerdo a diferentes usos y ocupaciones posibles (Bezos-Alonso, 2018; Colmenares, 2017). Se establecen relaciones de igualdad frente a los equipamientos y servicios técnicos (cocinas y baños). En particular, las cocinas ocupan espacios centrales facilitando las tareas de cuidado y la visibilidad de las actividades reproductivas.
Desaparición de corredores y pasillos
La desaparición de los pasillos y la disposición de habitaciones concatenadas (algo que casi puede caracterizarse de tendencia a la vista de los proyectos), no parece que responda tan claramente a un retorno a los modelos italianos de enfilade (Evans, 1978), como tiende a justificarse por las inmediatas analogías formales, sino que más bien parece el recurso necesario para maximizar la superficie de las habitaciones sin perder eficiencia en la ocupación global de la edificabilidad disponible. Se manifiesta, en todo caso, el valor difuso de las tipologías cuando se diseñan desde la flexibilidad de ocupación (Hernández-Falagán, 2021 y 2025).
El valor de estos nuevos paradigmas en la edificación residencial es especialmente significativo por el impacto pedagógico que su divulgación está teniendo a través de múltiples medios arquitectónicos. Si bien las realizaciones de IBAVI o IMPSOL son hasta el momento exclusivamente significativas en los contextos geográficos donde estas instituciones operan, la metodología de esta observación permite destacar su reconocimiento por parte del conjunto del estado. Por eso podemos situar estos casos de estudio y los paradigmas que personifican como indicadores a seguir observando en las realizaciones residenciales del futuro inmediato.
Bezos-Alonso, J. L. (2018): El espacio equipotencial en la vivienda como estrategia para la adaptabilidad. Materia Arquitectura, 18, pp. 42-55.
Cánovas, A., Espegel, C., Delapuerta, J. M., Martínez-Arroyo, C., Pemjeam, R. (2013): Vivienda colectiva en España. Siglo XX (1929 1992). Madrid, TC Cuadernos.
Cánovas, A., Espegel, C., Delapuerta, J. M., Martínez-Arroyo, C., Pemjeam, R. (2016): Vivienda colectiva en España. 1992 2015. Madrid, TC Cuadernos.
Caparrós, A., Fernández, F., Ortega, Ll., Santacana, A. (2022): Paisajes habitacionales. Barcelona, España, AMB-IMPSOL.
Centellas, M., Jordà, C., Landrove, S. (2009): La vivienda moderna. Registro DOCOMOMO Ibérico. 1925 1965. Madrid, Fundación Arquia.
Colmenares, S. (2017): La Planta de Equivalencias. Mat-rooming. VLC arquitectura. Research Journal, 4(2), p. 55.
Evans, R. (1978): Figures, doors and passages. Architectural Design, 48, pp. 267-278.
Ferrer, A. (2006): Vivienda y vivienda social en el area metropolitana de Barcelona. Una vision retrospectiva. Vivienda y sociedad. Nuevas demandas, nuevos instrumentos, Editorial Milenio, Lleida, pp. 537-558.
Font, A. (1997): Anatomía de una metrópoli discontinua: la Barcelona metropolitana. Papers. Regió metropolitana de Barcelona, 26, pp. 9-19.
Font, A. (2000): Nous creixements residencials a l’àmbit metropolità: tendències I desafiaments. Habitatge: innovació I projecte, Barcelona, Escola Sert, pp. 15-28.
Forns, M. V. (2022): Derecho a la vivienda y emergencia habitacional en España: el rol de las Comunidades Autónomas. Revista de Investigações Constitucionais, 9(3), pp. 579-618.
García-Vázquez, C. (14-17 julio de 2004): Late capitalism and the crisis of planning [Comunicación en congreso]. 11th Conference of the International Planning History Society (IPHS), Universitat Politécnica de Catalunya, Barcelona, España.
García-Vázquez, C. (2015): La obsolescencia de las tipologías de vivienda de los polígonos residenciales construidos entre 1950 y 1976. Desajustes con la realidad sociocultural contemporánea. Informes de la construcción 67, pp. 1-7.
Guàrdia, M., Oyón, J. L., Rosselló, M., Hernández-Falagán, D. (2022): Working-class suburban housing, homeownership and urban social movements during Francoism in Barcelona, 1939 1975. Planning Perspectives, 38, pp. 671-693.
Hernández-Falagán, D. (2025): Periferias y vivienda difusa. Barcelona, España, Puente Editores.
Hernández-Falagán, D., Rosselló, M. (2024): A Brief History of Social Housing in Spain: Residential Architecture and Housing Policies in the 19th and 20th Centuries. Histories, 4(3), pp. 326-345.
Hernández-Falagán, D. (2021): Review of Design of Collective Housing in the 21st Century. Buildings 11, p. 157.
Hernández-Falagán, D. (2019): Innovación en vivienda asequible. Barcelona 2015-2018. Barcelona, España, Ayuntamiento de Barcelona.
Hernández-Falagán, D., Montaner, J. M. (2019): Housing in Barcelona: New Agents for New Policies. Footprint, 13(1), pp. 153-160.
Iglesias, A., Vendrell-i Amat, J. (2003): Habitatge protegit metropolità : 1995-2003. Barcelona, España, AMB.
Impsol. (1997): Vivienda asequible : la propuesta del IMPSOL. Barcelona, España, IMPSOL-AMB-COAC.
Márquez-Cecilia, F., Levene, R. C. (2023): IBAVI, 2019-2023: una investigación colectiva. Madrid, España, El Croquis editorial.
Montaner, J. M., Muxí, Z. (2006): Habitar el presente. Vivienda en España: Sociedad, ciudad, tecnología y recursos. Madrid, Ministerio de vivienda.
Muxí, Z. (2020): Aplicación de la perspectiva de género al urbanismo y la arquitectura: experiencias a escala regional y municipal en Cataluña. Ciudad y territorio, estudios territoriales, 52(203), pp. 57-70.
Oliver, C. (2019): La vida instrucciones de Reúso: Instituto Balear de la vivienda (IBAVI). Summa+, 170, pp. 86-89.
Oliver, C., Martín, A., Moyà, J. (2018): Life reusing Posidonia. Palma, España, Institut Balear de l’Habitatge IBAVI.
Ortega-Moreno, I. (2021): Ley de Suelo de 2015: urbanismo sostenible y acceso a la vivienda. Ciudad Y Territorio. Estudios Territoriales, 53(207), pp. 5-22.
Oyón, J. L., Guàrdia, M., Rosselló, M., Hernández-Falagán, D., Roger, J. (2021): La revolució de l’habitatge a les perifèries obreres i populars. Nou Barris. 1939 1980. Barcelona, MUHBA.
Pacheco, P., Sales, L. (2011): El derecho a la vivienda: del reconocimiento constitucional a la realización efectiva. Los cambios del siglo XXI. Derecho privado y Constitución, (25), pp. 349-398.
Poch, M. (2024): Vivienda en el área metropolitana de Barcelona. IMPSOL 2015-2024. Barcelona, España, AMB-IMPSOL.
Rodríguez, R. (2010): La política de vivienda en España en el contexto europeo: deudas y retos. Revista Invi, 25(69), pp. 125-159.
Rullan, O. (1999): Crecimiento y política territorial en las Islas Baleares (1955-2000). Estudios geográficos, 60(236), pp. 403-442.
Salom, M. B., Mas, I. M. (2010): Una geohistoria de la turistización de las islas Baleares. El periplo sustentable, 18, pp. 69-118.
Sanz-Alarcón, J. P., Solano, M. (2018): Estudio sobre la vivienda social del siglo XX en España. Cartagena, Junda de Andalucía, Fundación DOCOMOMO Ibérico.
Secchi, B. (1989): Un progetto per l’urbanistica. Turín, Italia, Giulio Einaudi.
Torra-i-Xicoy, R. M., Iglesias, A., Borrell-Bru, J. M., Cervera, M. (2014): Habitatge metropolità 2004-2014: projectes i obres Àrea Metropolitana de Barcelona. Barcelona, España, AMB.
Vilanova, J. M. (1997): Las tramas residenciales en la Barcelona metropolitana. Papers: Regió Metropolitana de Barcelona: Territori, estratègies, planejament, 26, pp. 53-70.
Vives-Miró, S., Rullan, O. (2017): Desposesión de vivienda por turistización?: Revalorización y desplazamientos en el Centro Histórico de Palma (Mallorca). Revista de Geografía Norte Grande, (67), pp. 53-71.
Trabajo desarrollado en el marco del proyecto de investigación “Cambio social y transformación urbana en la Barcelona obrera: las grandes transformaciones en el barrio, el urbanismo y la vivienda en el eje del Besós, 1920-1980”, Proyecto PID2022-136744NA-C32 financiado por MCIN/AEl /10.13039/501100011033/ y por FEDER Una manera de hacer Europa.