Estudios

CIUDAD Y TERRITORIO ESTUDIOS TERRITORIALES

ISSN(P): 1133-4762; ISSN(E): 2659-3254

Vol. LVII, Nº 225, OTOÑO 2025

Págs. 268-284

https://doi.org/10.37230/CyTET.2025.225.13

CC BY-NC-ND

Recibido: 01.04.2025

Revisado: 02.06.2025

Cincos aspectos a considerar sobre la vivienda contemporánea en España: hábitos, muebles, habitaciones, cruces y reparaciones


Xavier Monteys (1)

Nuria Ortigosa (2)

(1) Arquitecto
xavier.monteys@upc.edu; https://orcid.org/0000-0002-0957-2545

(2) Dra. Arquitecta, profesora e investigadora. Departamento de Proyectos Arquitectónicos. Universitat Politècnica de Catalunya (UPC)
nuria.ortigosa@upc.edu; https://orcid.org/0000-0003-0160-3770


Resumen

El artículo explora cinco cuestiones en relación a la casa y la ciudad, ligadas directa o indirectamente a los modos de habitar contemporáneos en España: el impacto del turismo urbano, los cambios en la composición de los hogares, la influencia del nuevo mobiliario, la progresiva desaparición del pasillo en favor de distribuciones basadas en la idea de habitaciones iguales, más ambiguas y sin jerarquías de uso, y de incorporar la “reparación” como cualidad futura necesaria de la vivienda y de entidades mayores como los polígonos existentes.

Palabras clave

Hábitos; Muebles; Habitaciones; Cruces y Reparaciones.

Aspects to Consider in Contemporary Housing in Spain: habits, Furniture, Rooms, Crossings and Repairs

Abstract

The article explores five issues related to the house and the city, directly or indirectly linked to contemporary ways of living in Spain: the impact of urban tourism, changes in household composition, the influence of new furniture, the progressive disappearance of the hallway in favor of layouts based on the idea of equal rooms, more ambiguous and without hierarchies of use, and the incorporation of “repair” as a necessary future quality of housing and larger entities such as existing industrial estates.

Keywords

Habits; Furniture; Rooms; Crossings and Repairs.

1 Introducción

Este texto desarrolla cinco apartados, sus nombres hacen referencia a acciones y cosas que influyen en los modos de vida y sus cambios y con las transformaciones que se han operado en la casa y en nuestros hábitos. Esta está afectada por acciones y elementos que la definen actualmente o la definirán en un futuro próximo. Muchos de estos han sido estudiados por el Grupo de Investigación Habitar en los últimos 15 años. Aunque no se han estudiado en el orden en el que se abordan aquí, todos ellos tienen que ver de una u otra manera con él. Por ejemplo, resulta innegable lo que la comida ha influido en los cambios producidos en la casa. Esto fue desarrollado en el proyecto “Barcelona come: la comida y el espacio público urbano”1 (Monteys et al., 2020) y en “About Buildings & Food”, un número monográfico de la revista Quaderns d’arquitectura i urbanisme (Monteys, 2018) dedicado a ello. Lo que comemos, cómo lo comemos y cómo lo cocinamos, dibujan de una manera muy exacta la forma con la que nos comportamos en casa. El fenómeno de la comida recoge nuevos hábitos culturales que nos afectan a nosotros y a nuestras casas. Y el hecho de que la comida llegue a casa caliente y lista para ser consumida ayuda a trazar uno de los cambios, tal vez el más importante, de los ocurridos en la esfera doméstica de nuestro país. El hecho de que la comida llegue a casa supone además una sutil pero persistente presencia en la calle de esta, e influye en el teatro de la ciudad. Todo contribuye a que hoy la palabra hogar, al referirnos a nuestra casa, haya cambiado seriamente de significado. Cosas como esta nos han interesado desde hace tiempo y son fruto de habernos interrogado muchas veces sobre lo que forma realmente la ciudad y el espacio urbano de una manera lateral pero no por eso menos importante. Aunque los riders no sean algo equivalente a las calzadas o el mobiliario urbano, ni siquiera sean equiparables al transporte público, nos dicen, al verlos, que la ciudad come y que la comida llega a nuestras casas y lugares de trabajo a la vista de todos. A través de los riders nos percatamos de los tiempos de la comida y de “la hora de la ciudad”. Solo necesitamos tener ojos informados y curiosos para verlo.

La curiosidad por un fenómeno así apareció durante el desarrollo de un conjunto de reflexiones abordadas en nueve episodios que formaron las exposiciones llamadas Proyecto —Rehabitar—2. Aquel proyecto mostraba el interés por sugerir y explorar una serie de iniciativas que no solo vincularan el espacio público y la casa, sino también, para que inspiraran un conjunto de intervenciones factibles con prácticamente técnicas de bricolaje, para permitir volver a usar Rehabitar el parque edificado en todas las escalas. Algo más tarde de esta iniciativa nuestros esfuerzos se dirigieron hacia un estudio que permitiría determinar la dimensión del problema, y corroborar aquella primera intuición, por así decirlo, buscando de una forma sistemática con los medios a nuestro alcance cuál era verdaderamente el conjunto edificado que había cambiado de uso. Este estudio, un “Atlas del aprovechamiento arquitectónico” se realizó sobre Barcelona y mostró que más de 1000 edificios habían cambiado de uso, muchos de ellos varias veces, desde el siglo I hasta nuestros días. Las cifras que arrojó aquel estudio nos dan aún una base para pensar y afirmar algunas cosas de las que aquí se ven.

Pensar ahora en la casa, en este texto, se hace desde este bagaje que obviamente determina nuestro punto de vista y define nuestros intereses hacia la misma, siempre viéndola ligada a la ciudad, y a los acontecimientos que se dan en ella, sin los que resulta difícil pensar y observar la casa contemporánea. Además de las perspectivas apenas mencionadas, otras cuestiones como las distintas unidades de convivencia que se han añadido al modelo de familia tradicional, la noción de propiedad, la solidaridad doméstica o las condiciones ecológicas bajo las que se llevan a cabo las nuevas construcciones, emergen como factores desde donde es obligado mirar también la casa. La vivienda es el lugar donde se cruzan los grandes desafíos contemporáneos, por tanto, sería muy ingenuo e incluso poco riguroso pensar que los apartamentos turísticos, la composición de los hogares o la escasez de suelo en el parque edificado, no forman parte de ello. La “forma” de la casa contemporánea y de sus hábitos es multifactorial, atiende tanto a la esfera doméstica como al contexto urbano, a la casa y la calle, fundiéndolos como algo continuo, como un círculo en donde ambas se suceden continuamente. La ciudad entra en la casa por la puerta y la vemos y oímos desde la ventana, la casa es así un intervalo de la ciudad. Estudiar la casa significa por tanto entender que en ella se reflejan y materializan las transformaciones del hábitat humano que redefinen nuestras formas de vida, en el sentido más amplio.

2 Los visitantes de nuestras ciudades

La vivienda está sujeta por su naturaleza a diversos aspectos económicos, urbanísticos, normativos y técnicos que influyen en su construcción y diseño, pero también al uso que hacemos de ella y se resiente de los cambios que han experimentado en los últimos años nuestras Nuevas formas de vida y de habitar, visibles, no solo en la casa, sino también en nuestras ciudades. Hay numerosas menciones a estos cambios, así como a los operados en la composición de los hogares y en las familias españolas3. Probablemente, ahora deberíamos también incluir todo aquello que guarda relación con el fenómeno del turismo urbano, tanto como escaparate de nuevas costumbres, como por su influencia en los alquileres y en el coste de la vivienda. Un fenómeno cuyas cifras económicas en nuestro país y su peso en la balanza de pagos no pueden dejar de tenerse en cuenta4. Podríamos considerarlo un fenómeno reciente, como solemos decir inopinadamente tal vez, nos referimos, como hemos dicho, al turismo urbano, pero se podría vincular a algo un poco más lejano, como ha sido la experiencia del programa Erasmus, en su conjunto y el intercambio universitario en España. Aquel programa, puesto en marcha en 19875 fue una iniciación para que los ciudadanos europeos, entonces jóvenes, visitaran nuestras ciudades, especialmente las universitarias, iniciando unos hábitos muy distintos a los de los turistas de “sol y playa” como se les definía hasta entonces. Hoy aquellos estudiantes están próximos a la edad de jubilación y no es difícil ver que muchos visitantes actuales guardan como colectivo, cierta “memoria” de aquella experiencia inicial. La película L’auberge espagnole, (Fig. 1) —traducida en España como Una casa de locos o Piso compartido—(Klapisch, 2002), explica el calado de aquella experiencia en el plano raso de nuestra vida cotidiana. Hoy conviven con nosotros en nuestras ciudades.

Pensar en los turistas como consumidores de tiempo libre6 define mejor su carácter y tal vez hace más fácil entender su influencia en los hábitos urbanos. En algunas de nuestras ciudades conviven pues dos tipos de habitantes, con tiempos y modos de vida distintos, el ciudadano inmerso en su vida cotidiana y el que vive en la excepcionalidad de un día libre continuo. Los actuales visitantes incluyen actualmente un número creciente de expats, es decir de visitantes permanentes desplazados aquí por motivos laborales7, que vienen atraídos por las ciudades españolas, y este es tal vez el punto que hace que debamos considerar este fenómeno como algo ligado de alguna forma al estilo de vida y a los cambios operados en él actualmente, en nuestro país. Debemos puntualizar que “atraídos por nuestras ciudades”, no es lo mismo que atraídos por su urbanismo o su morfología urbana, sino por el conjunto de códigos, costumbres, horarios, comida y manera de vestir que impregnan y modelan nuestros espacios urbanos y que nos hacen ser actores principales de estos teatros que son nuestras ciudades. Así pues, deberíamos decir sencillamente por nuestras formas de vida. Sin embargo, estos códigos se ven afectados por los que más pagan y, por tanto, los horarios y también la comida, se van modificando. El caso del brunch, es tal vez la “polaroid” más clara sobre esto, con lo cual nos encontramos enfrentados directamente a nuestras formas de vida. Actualmente, en los espacios urbanos de nuestras ciudades más exitosas para estos visitantes ya no nos reconocemos tan fácilmente, ni en lo numeroso de sus grupos, ni en su gestualidad, ni en su ropa y sus gadgets, ni en los horarios en la calle que los que nos visitan han acabado imponiendo.

Llegados a este punto no debemos olvidar que lo que ocurre en la calle es reflejo de lo que ocurre en la casa y viceversa. Dos ámbitos a los que se puede aplicar la teoría de los vasos comunicantes que tienen influencia uno en el otro e invita a observarlos también como complementarios. Proponemos fijarnos en el cada vez más frecuente fenómeno de comer en la calle en comedores instalados en terrazas y veladores. Resulta evidente que si comemos en la calle, no comemos en casa, afectando decisivamente con su gestualidad y sonidos al “teatro de la calle”, con todo lo que conlleva. A este respecto no se puede dejar de prestar atención al aumento de reparto de comida a domicilio, el “delivery”, como acción que vincula ambas esferas. La relación es similar, si la comida nos llega preparada de la calle, no cocinamos en casa. Pero su influencia más demoledora es sin duda sobre la vivienda y lo ha sido por la vía de una de las patas del negocio del turismo urbano, los apartamentos de alquiler tipo Airbnb y sucedáneos, que ha cambiado las reglas del juego respecto a la residencia urbana, la cual ha pasado de una función residencial a una actividad económica, contribuyendo al aumento del número de “alquileres temporales”, un eufemismo reciente para librarse de la regulación de los alquileres turísticos. Kath Scanlon, resume bien esta situación en el catálogo de la exposición “Living in Lisbon. An Architectural View on Housing Challenges” definiéndolo como “La maldición de la belleza: financialization de la vivienda en ciudades atractivas” 8 (Scanlon, 2023), en las que las formas de vida que mencionábamos unas líneas más arriba y que las sitúan como un imán turístico, tienen un papel equivalente a factores económicos como las ventajas fiscales hacia la inversión extranjera. El reciente caso de la casa Orsola, en Barcelona9, que aún podemos considerarlo abierto, ha puesto en evidencia esta práctica y la invención de este régimen de alquiler que tendrá repercusiones que ahora tal vez no podemos prever. En cualquier caso, nos encontramos frente a viviendas urbanas de alquileres temporales para los que residen aquí en su tiempo libre y pronto también para nosotros.

Fig. 1. Fotograma de la película L’auberge espagnole

Fuente: Elaboración propia

3 La llegada de unos nuevos muebles

A la paulatina transformación de nuestros hábitos y modos de vida actuales, se ha llegado a través de muchas cosas que se han ido sucediendo en el tiempo, uno sin ir más lejos es la presencia de IKEA en la España peninsular desde 1996, aunque su llegada a este país fue primero en Canarias, en 1978, y poco más tarde, en 1981, en Mallorca10. Se puede decir, pues, que estos almacenes de muebles y decoración están aquí desde el advenimiento de la democracia. Inicialmente en dos focos del turismo europeo “residente” en España y, en el caso de esta compañía, ligado a los apartamentos turísticos de propiedad. Y otro son también por supuesto los hábitos y protocolos seguidos hoy con la comida en casa que tienen un sesgo generacional difícil de pasar por alto. Los muebles y la comida, también presentes de muchas maneras en la publicidad de dicha firma sueca, nos brindan las imágenes de un cambio en los hábitos y en el “escenario” de nuestras vidas11. Mostrando “actores”, asimétricamente desparejados, multirraciales, con una presencia de la preparación de la comida muy distintas de la mesa con los servicios colocados y ordenados según el estilo de la “Última cena” imperante aún en la España de los años 50. Su publicidad insiste en reunir sillas o mesas para una comida, aunque estén desparejadas, sin manteles ni “caminos de mesa”, con cubiertos, platos, vasos y copas de distintas colecciones, con comida aportada en envases diferentes por los comensales, reuniones en las que se comparten las cosas y los bocados. Son muestras publicitarias que se encuentran en las antípodas de las comidas en casa de “Los Alcántara” en la serie de Televisión Española “Cuéntame”. Los hábitos y la gestualidad asociada al mobiliario de IKEA12, están ligados al fenómeno de estos nuevos residentes, también han llegado para quedarse. Nunca antes ni el mobiliario ni el equipamiento doméstico, desde la cocina a la ropa, habían estado ligados a la manera de usarse a través de “escenas” muy bien realizadas. Su publicidad propone un estilo de vida e incluso “formas familiares” que difieren de la tradicional en nuestro país, con familias extendidas y multiculturales tan abiertas, en las que la informalidad se hace palpable, pero no el desorden, ya que hay un enorme y calculado número de objetos y dispositivos para ordenar la casa (Fig. 2). Podemos pensar en esta informalidad como una consecuencia de la desinhibición a la que nuestro país ha llegado más tarde y tal vez mezclada con grandes dosis de mala educación, ostensiblemente transmitida por los realitys televisivos españoles.

Fig. 2. Niños jugando en el catálogo de 2010 de la firma de muebles IKEA

Fuente: Catálogo de la firma de muebles IKEA, 2010, pp. 10-11

Estas imágenes retinianas apuntan básicamente a una informalidad mucho más allá de la que se suponía innata al carácter doméstico frente a la formalidad de la vida pública. En este sentido es útil recordar las observaciones de Victor S. Pritchett en “El temperamento español”13 (Pritchett, 2015, pp. 81-82). Según el escritor y crítico literario británico, en los primeros años cincuenta en España la gente era mucho más atenta en sus formas en la calle, cuando salía al paseo vespertino, que en casa (se andaba de “estar por casa”) y se puede entender que de puertas para afuera se aparentaba ante un público mucho más amplio que el restringido grupo de “las visitas” que se “recibía en casa”. Según la observación de Pritchett los españoles gastaban más en sí mismos que en sus hogares “en los que prescinden alegremente de esa obsesión por el mobiliario y la decoración de interiores que distingue a los norteños”14, cosa que dista de la escena actual y resulta un contraste esclarecedor en relación a la ropa en nuestra vida cotidiana.

Sin embargo, la informalidad no significa desorden ya que hay un enorme y calculado número de objetos para ordenar la casa. Debemos insistir en que el orden de la casa y todo lo que conlleva está muy cerca de la distribución de sus espacios. Resulta muy significativo que la firma sueca haya desplazado en los últimos años el interés por la lógica doméstica y la planificación de las cocinas a los armarios. Podríamos pensar que la cocina ha sido el laboratorio de ideas para planificar unos armarios mucho más complejos, que han pasado así de ser almacenes a clasificadores. Se les ha dotado de todo tipo de gadgets para convertir sus interiores en verdaderos archivos para todo tipo de prendas y complementos, entre los que llama la atención el calzado, con el que pisamos la calle y la casa, y el esfuerzo de pensar sobre él, su papel y su lugar en esta última. En cualquier caso, parece que la casa haya adquirido conciencia sobre la ropa y los armarios hayan tomado el mando.

Sobre esto último merece la pena detenerse ya que se ponen en relación dos cosas, como la comida y la ropa. La comida perece fuera de lugar tener que mencionarla en relación a la esfera doméstica y resulta indiscutible la tradicional asociación de esta con el hogar, con la casa. La comida es equivalente a convocar la reunión, a falta de un fuego central, la comida parece ser aquello que nos reúne. La ropa parece haber llegado a la casa más recientemente y representa cosas muy distintas. Una muestra de la creciente acumulación de ropa en casa viene de la mano de la venta privada online: “si no te lo pones, véndelo”, reza en el eslogan de algunas de estas empresas. La ropa no convoca a reunirse, aunque una reunión de personas será muy distinta según como vayan vestidas. Es lo que más nos hace entender a aquellos, que como Richard Sennett, reclaman la atención sobre el teatro o el comportamiento teatral en la calle, en público. En este sentido la ropa nos viste para según que ocasiones y que escenarios: en casa, en la calle o en domingo. Por eso resulta llamativo el nuevo interés de IKEA por guardarla y cuidarla.

4 La distribución como un retrato del modo de habitar

Es imposible no pensar en la informalidad “de uso” de la casa contemporánea sin recordar el pasillo como mecanismo tradicional de organización secular y estructura de incontables edificios, desde hospitales y conventos, hasta escuelas, oficinas u hoteles. Y es el dispositivo de distribución de casi cualquier vivienda urbana en este país. El pasillo es “orgánico” podríamos decir, en el doble sentido de organismo y de organización. “Organización” en tanto que da forma, sentido y acceso a un conjunto de piezas y “orgánico” en tanto que forma parte de algo que puede asimilarse a cabeza y tronco de un ser vivo. El pasillo tiene implícito un mensaje estructural y de organización familiar, y es la manifestación de una vivienda de dos partes que sugiere un ritual de uso entre lo individual y lo familiar. Entre los “dormitorios” y la sala de estar. La expresión de la sala a la que se accede a través del corredor es de hecho la de actuar como elemento convocante, como cabeza de familia, dicho de otro modo. Tipo y tamaño de familia que, por otro lado, ya no es el más numeroso en nuestro país. El pasillo tiene incorporado una segregación de usos. Es la representación de entender la vivienda como una “zona de noche” y una “zona de día”. En este sentido, de una manera u otra los numerosos edificios de vivienda del Ensanche barcelonés convertidos en hoteles15, se ha apoyado en esa estructura, han encontrado en el pasillo una coincidencia tipológica y han concentrado las intervenciones en modificar las habitaciones, convertidas ahora en las de un hotel.

Nuestros nuevos hábitos y formas de vida han hecho evolucionar la vivienda hacia una “organización” distinta. El alto valor del suelo y por tanto el empequeñecimiento de las mismas, la ocupación media de los hogares, cada vez menor, el turismo urbano como se veía previamente, o los nuevos modelos de convivencia demandan soluciones a las que quizá no se les haya sabido dar aún respuesta satisfactoria desde las políticas públicas, no obstante, la casa ha incorporado algunos cambios visibles que la ha hecho mutar hacia un conglomerado de piezas sujetas entre sí sin apenas mediadores. En la concepción de sus interiores, empujadas por distintas razones, los pasillos van desapareciendo como tales. Los espacios que proyectamos en la vivienda contemporánea están interconectados entre ellos, son recorribles y dan paso los unos a los otros prescindiendo del corredor, que en algunos casos ha sido sustituido incluso por la cocina (Fig. 3). Podríamos decir que, en estos casos, la cocina ha absorbido al pasillo a la par que este se ha disuelto por la casa. En la forma de habitar de la vivienda contemporánea no tiene sentido de hecho evitar el encuentro entre sus ocupantes (no olvidemos que el pasillo tiene su origen en la invisibilización del servicio doméstico) ni tampoco separar entre “espacios servidos” y “espacios servidores” e ignorar las posibilidades tanto de uso, como sociales, que estos pueden aportar. Ahora ya no es extraño encontrar la cocina como pieza de acceso a la casa o como mediadora entre el resto de estancias y en la que desembocan y se cruzan las diferentes actividades domésticas. La cocina “cruce de caminos” visibiliza y democratiza. La cocina, y por extensión la casa, educa. A su vez, la habitación como “dormitorio” y como calle sin salida a la que se accedía por el corredor, comienza a ser sustituida por una habitación más regular y algo más próxima en superficie a otras piezas de la casa tradicionalmente mayores como la sala. Las habitaciones iguales existen y son mayores en parte gracias a la amortización de la superficie del pasillo entre ellas.

Fig. 3. Interior del edificio de viviendas 110 Rooms en la calle Provença, Barcelona

Fuente: MAIO Architects

En una reciente publicación del IMPSOL16 “Vivienda en el área metropolitana de Barcelona 2015-2024” (Poch y IMPSOL, 2024), se han dado a conocer las 26 promociones de viviendas realizadas por este instituto, entre el 2015 y el 202417 . Diez años en realidad, si tenemos en cuenta que algunas estaban aún sin terminar en la fecha de la publicación del libro. Este conjunto, que supone 1477 viviendas, tiene un significativo número de ellas en las que aflora un tipo de distribución que parece basarse en la idea de una casa de habitaciones, piezas de tamaños más o menos parecidos y sin una función preconcebida (Fig. 4). Es tan así que supone lo que podríamos llamar un grupo emergente dentro de estas realizaciones. Esta característica de las viviendas encaja con lo que en su momento bautizamos como “La casa de habitaciones iguales” (Monteys, 2013, pp. 42-44). Una vivienda así se concibe como un racimo de piezas indefinidas, las llamábamos ambiguas, pensando en algo que Robert Venturi llamaba “ambigüedad útil”, matizando lo que solemos llamar flexibilidad. “La casa de habitaciones iguales” de hecho no es flexible, sino que deja que nosotros pongamos a prueba nuestra propia flexibilidad adaptándonos a ella. Transfiere la responsabilidad del uso de las piezas a sus inquilinos, ellos pueden decidir cómo usan esas piezas que no están prefiguradas por su nombre: sala de estar, comedor, dormitorio, recibidor, e incluso la tradicionalmente aceptada e “inmóvil” cocina comienza a adquirir otra dimensión, tanto espacial, como conceptual.

Fig. 4. Planta tipo de 7 de las 26 promociones de vivienda recogidas en la publicación “Vivienda en el área metropolitana de Barcelona 2015-2024”

Fuente: IMPSOL, Vivienda en el área metropolitana de Barcelona 2015-2024

¿Es posible atribuir algunos cambios de comportamiento doméstico a la no tan lejana crisis debida a la pandemia Covid-19? Fue demasiado rápida la experiencia, y las condiciones no permitieron más que intuir algunas cosas ligadas al comportamiento en casa, de las que apenas trascendió el uso de terrazas y balcones y su reclamación para incluirlas en los diseños futuros. Hasta los tres meses de confinamiento domiciliario de la primavera de 2020 nunca habían convivido tanto todos sus ocupantes a la vez. Algunos de estos reclamos llegaron a modificar los decretos de habitabilidad de algunas comunidades autónomas18 las cuales “equipararon” las terrazas a las piezas interiores de la vivienda y las libraron del consumo de edificabilidad. Pero además de esta, en aquella ocasión se produjeron otras cosas trascendentales para la casa, ya que fueron las personas que las habitaban las que parecían dar nuevas instrucciones19 para el uso de sus espacios: trabajar en el pasillo, el uso del comedor como gimnasio o las clases de cocina en las cocinas, dignas de haber sido incluidas en “Cuisine, recettes d’architecture” (Clarisse, 2004). Un libro en el que Catherine Clarisse reclamaba mediante croquis realizados sobre cocinas que ella conocía y que habían sufrido pequeñas modificaciones, la necesidad de que en esta cupiera una mesa, no para comer, sino para realizar otras actividades, como conversar con una amiga o simplemente para “estar”, o lo que es lo mismo, un espacio más de la casa. En definitiva, la casa pareció madurar conceptualmente durante aquellos meses.

En el mencionado grupo de este tipo de viviendas del área metropolitana de Barcelona, han coincidido dos cosas. Por un lado, el “empuje” de esta especie de “anti-distribución” conceptual, y por otro la progresiva implantación de sistemas constructivos alternativos al hormigón armado, como la madera que, de algún modo, han vuelto a traer a las viviendas la necesidad de trabar lo más regularmente posible sus espacios. Estos tienen unas dimensiones apropiadas a su capacidad portante y, por tanto, a unas condiciones similares a las construcciones tradicionales a base de muros de carga. Esto fue denominado en su momento por Le Corbusier “plan paralysé”, definición que ponía en evidencia comparándolo mediante dibujos al “plan libre”, basado en una retícula de pilares de hormigón armado. Es útil recordarlo, ya que esto está en el corazón de la formulación de la “planta libre” de la arquitectura moderna.

Así pues, en estas nuevas viviendas metropolitanas parecen haber confluido la indeterminación de uso desprendida de la regularidad de las habitaciones y demandada por nuestros hábitos, con la regularidad dimensional de los sistemas constructivos propios de la madera. A esta regularidad le falta aún “grano pequeño” y cierto poché, para permitir añadir usos “no parlantes” a la vivienda. Pero por ahora las distribuciones no tienen estos atributos. Vuelven, por tanto, los sistemas que de una manera u otra prefiguran las piezas a través de muros portantes, esta vez con un material distinto. Y estos espacios a base de muros son los que hoy hemos de habitar de una nueva manera. Como si la desinhibición absoluta que parecía venir de la mano del espacio diáfano, comúnmente asociado a la libertad de uso, que ponía “a la vista” el espacio fabril potencialmente transformable en vivienda de los lofts, se metiera entre paredes, y es ahí donde la necesitamos ahora. Las plantas “distribuidas” con piezas de tamaños iguales, paradójicamente, al formar conjuntos, resultan tener mayor capacidad para absorber la indeterminación de usos. Mientras que los pasos entre estancias, poseen la virtud de ampliar o reducir el tamaño de las mismas, que ahora pueden graduar su relación con las demás piezas mediante las puertas dobles y definir la casa a través de todos los espacios “a la vez”, dando lugar a una casa formada por distintos escenarios. Más que tener una sala que reúne a quienes viven en la casa, parece ser la casa entera la que convoca a las habitaciones, como en un teatro de escenarios simultáneos. Una fotografía de la representación de la obra “Els Criminals” de Ferdinand Bruckner explica sin palabras este hecho (Fig. 5). Decididamente la casa de escenarios simultáneos va más allá que la casa de planta libre. Las puertas dobles se vuelven una cuestión crucial en este tipo de viviendas, y es que tan importantes son las estancias y sus muros, como los pasos y puertas entre ellas. Un conocido ejemplo es la escena de la película “Fanny y Alexander” (Bergman, 1982), en la que los asistentes a la celebración de Navidad bailan juntos dando vueltas y recorriendo el interior de la casa a través del corredor y de las estancias en enfilade unidas por generosos pasos, algunos solo “vestidos” con cortinas y otros con puertas de dos hojas. La dimensión, pero sobre todo la posición y la forma de su apertura, es lo que acaba de definir la relación que se puede llegar a establecer entre las piezas.

Fig. 5. Escenas simultáneas de la obra de teatro “Els criminals”

Fuente: Teatro Nacional de Cataluña, canal de Youtube

En cierto modo, después de lo dicho sobre los pasillos y sobre las últimas propuestas de viviendas basadas en la idea de habitaciones iguales, resulta imposible no mirarlos ahora como espacios que invitan a intervenciones en la vivienda, más cercanas al bricolaje que al interiorismo, y de reparación de la aséptica modernidad funcional. Desde esta perspectiva, el corredor no solo ya no conduce a un área “privada” de la misma, ni es una pieza únicamente funcional, ni tiene un “papel secundario” dentro de esta, sino que ahora es una más de las piezas de la casa, tan habitable como cualquier otra y puede servir para más cosas que dar paso al resto de habitaciones. La palabra pasillo se libera de sus connotaciones negativas y comienza a sugerir otros atributos más cercanos ahora a los de la indeterminada “galería”. El pasillo está aún en nuestro vocabulario, “al fondo del pasillo”, decimos, pero probablemente su desaparición como tal, transformación o, cuando menos, usarlo de otras maneras, está ya escrita. Las viviendas estructuradas mediante un pasillo, mayoritarias en nuestro país, pueden encontrar en estas casas de habitaciones aglomeradas una inspiración a usarlo de otro modo, una invitación a incorporarlos al resto de actividades de la casa (Fig. 6). Estos podrían ser objeto de algunas intervenciones genéricas que a la manera de lo ocurrido en la crisis Covid-19, dieran un nuevo sentido a estas piezas a las que hace tiempo se les asignó el nombre de “servidoras”, por oposición a las piezas “servidas”. Repensar el pasillo no implica una reparación energética, sugiere más bien una reparación del programa de usos de la vivienda. Reparaciones puntuales que revertieran el pasillo, un elemento decisivo de la mencionada distribución orgánica, hacia piezas emancipadas y uso propio. El pasillo puede ser el desayunador en la puerta de la cocina, puede ampliar la superficie de una habitación si en esta colocamos una puerta generosa de dos hojas, puede ser el espacio de trabajo cada vez más requerido en nuestras viviendas o puede compartir con las habitaciones un mueble que se abra a dos caras. Al contrario de lo ocurrido en las casas de habitaciones iguales, sin diluirse por la casa, el corredor supone una oportunidad para que las habitaciones compensen su superficie y uso.

Fig. 6. Pasillo amueblado con librería y mesa

Fuente: Christopher Alexander, A Pattern Language, p. 207

5 Mirarse en el espejo de la ciudad

Barcelona ha estado inmersa en una modificación profunda de algunas calles del Ensanche barcelonés convirtiéndolas en ejes verdes20, un resultado derivado de la idea de las llamadas supermanzanas surgida unos años atrás, que ha afectado al uso de estas calles. Dos de ellas, la calle Consell de Cent —en sentido paralelo al mar— y la calle Girona —en sentido transversal— , han suprimido el tráfico de vehículos privados, quedando únicamente restringido a los servicios y residentes con estacionamientos. Ambas calles son ahora vías de plataforma única con un único pavimento y salpicadas con distintos parterres alrededor de los árboles que ya existían. El objetivo de dicha reforma ha partido de dejar de considerar estas calles como infraestructuras de desplazamiento rodado y convertirlas en espacios de estancia y manifestación de la cotidianidad, según las responsables de su diseño. A la luz de estas transformaciones operadas en Barcelona se puede proponer el ejercicio de pensar en esta como una ciudad también de habitaciones iguales o, si se prefiere, de manzanas iguales, lo que invita a pensar en dos cosas. Una es usar esta manera de verla para revisar el modelo iniciado con la transformación de las dos calles mencionadas. Especialmente por lo que ya han señalado algunas voces, la última de ellas la de la Arquitecta Jefe del Ayuntamiento de Barcelona, Maria Buhigas, expresando dudas por lo que respecta a introducir excepciones en una malla isótropa como la del Ensanche Cerdá, al privilegiar unas calles frente a las otras (Buhigas, 2025). Y dos, porque puede hacernos ver mejor el papel de los cruces y los chaflanes, esos octógonos que parecen repartir juego. De hecho, significativamente la transformación de Barcelona en una ciudad verde, tuvo un momento álgido en el concurso convocado para elegir los proyectos para llevar a cabo estas transformaciones (2020). Aquel concurso, que en realidad eran dos, separó la convocatoria para rediseñar las calles de la de los “cruces”.

Hoy, y aun con todos los problemas visibles en estas transformaciones del Ensanche, es posible pararse en medio de uno de esos cruces y sentir la experiencia espacial de esos lugares urbanos que habíamos olvidado. No solo los habíamos olvidado, sino que más bien era que prevalecía el peso de las calles, tal vez debido al peso de la perspectiva, una poderosa herramienta para construir la imagen de la ciudad. El concurso convocado para resolver los cruces dio lugar a diferentes propuestas, significativamente pocas parecieron ver el espacio urbano que los chaflanes proponen ni ser conscientes de su dimensión. Para meterse en escena podemos recordar que las dimensiones de uno de estos cruces formados por ocho lados, si consideramos la boca de las calles como uno más, da lugar a un octógono con lados de 20 metros, cerrados por edificios cuyas cornisas vagamente rondan los 20 metros de altura y en el que puede inscribirse una circunferencia de unos 40 m de diámetro. Es decir, podría soportar una cúpula de 20 metros de altura que daría lugar a un espacio de las dimensiones del Panteón de Agripa. O si se prefiere, a un espacio-cruce urbano cerrado con una cúpula de vidrio, como la Galleria Vittorio Emanuele de Milán. Sin duda este es el espacio que proponen los cruces del Ensanche y es el más importante, junto con el del patio interior de manzana limitado por sus fachadas cerradas con galerías. Dejando de un lado la fascinación por la repetición y la linealidad de las calles que limitan las manzanas del Ensanche, son sus cruces los espacios urbanos fundamentales. Con ello se pone en evidencia la deuda que tenemos aún con las observaciones de Manuel de Solà-Morales, expresadas a través de su duda acerca de si el módulo por antonomasia en el Ensanche de Barcelona, no era tanto la manzana, sino los cruces achaflanados de sus calles. En un artículo publicado en la revista Arquitecturas Bis a finales de los años setenta M. de Solà-Morales respondiendo a León Krier y su propuesta de manzana de 22x22 m, bautizada como “Homenaje a Barcelona”, se expresaba así:

La unidad no es la manzana, sino el cruce en ochava de las calles.21 Este punto es cardinal. Todo cambia si lo reconocemos. Son las intersecciones de las calles las que definen el Ensanche, son las cuatro esquinas lo que define su edificación, son los chaflanes los espacios urbanos fundamentales y la imagen más fuerte de Barcelona… […] (de-Solà-Morales, 1978, p. 10) (Fig. 7)

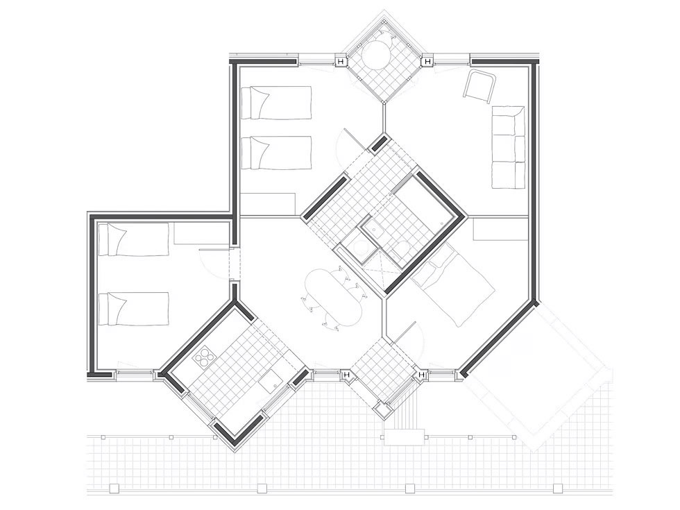
Es esa condición espacial singular en la trama regular del Ensanche en la que queremos detenernos y observar desde ella un ejemplo recientemente finalizado. En ocasiones recurrimos a poner en relación elementos que ayudan a explicar algo que ellos por si solos no consiguen. Este es el caso de comparar por pura intuición, un cruce del Ensanche con la planta de una vivienda, por algunas afinidades que cualquiera puede desarrollar. Se trata de uno de los cuatro edificios integrados en el nuevo superbloque22 de la plaza de Les Glòries en Barcelona, de las arquitectas barcelonesas Cierto Estudio23. La geometría de la planta de distribución de sus viviendas, guarda cierto parecido con los rasgos del cruce achaflanado del Ensanche, y tiene el mérito de haber introducido esta idea de cruce distribuidor que actúa como lugar central de la vivienda dentro de la regularidad de la cuadrícula que exhiben mayoritariamente las viviendas construidas en madera, afectadas aún por un esquematismo que con seguridad se acabará superando. Esta singularidad geométrica entre la regularidad constructiva dominante, persigue conseguir una pieza central en la casa, un espacio al que se converge, o del que se parte y que a su vez se puede rodear. La búsqueda de un centro para la casa contemporánea es una asignatura pendiente de la arquitectura moderna, uno de los intentos más conseguidos fue el construido en el edificio de viviendas, 110 Rooms del estudio barcelonés MAIO24, en la calle Provença, en 2016. La propuesta de estas plantas de distribución es de interés por la enorme irregularidad que introduce la inclusión de una pieza a 45º respecto a la cuadricula que la contiene, que acaba por hacer convivir dos mallas superpuestas (Fig. 8). Esto desencadena una serie de gestos que acaban finalmente asomando a las fachadas en forma de punta de diamante, y es la responsable de la aparición de una pieza de siete lados junto a la cocina, difícil de bautizar, ya que podría ser un recibidor, hace el papel de comedor, distribuye las habitaciones de manera que otorga a alguna de ellas cierta independencia, forma un gesto que favorece colocar una mesa en la galería de acceso y, en general, complica las cosas inteligentemente.

Fig. 7. Módulo del Ensanche de Barcelona según Manuel de Solà-Morales

Fuente: Arquitecturas Bis, 20

Fig. 8. Vivienda tipo de uno de los edificios que componen el superbloque de la plaza de Les Glòries, Barcelona

Fuente: Cierto Estudio

6 Mejor reparada

Entre las cosas que se deben mencionar en este repaso a algunos de los elementos y acciones que afectan a la vivienda en este país, tanto de los que ya han sucedido, los que parecen haberse consolidado y los que están ocurriendo, no se puede dejar de lado mencionar los que deberían suceder. Y entre estos últimos el asunto de la intervención sobre lo que está ya construido es de inexcusable mención. El Atlas del aprovechamiento arquitectónico en Barcelona, un estudio que examinó hace unos pocos años 1000 casos entre los edificios barceloneses construidos entre el siglo I y nuestros días, repasaba aquellos que habían cambiado de uso, mostrando las afinidades por algunos usos y las partes de la ciudad en las que se habían operado los cambios, desde unos usos originales a otros nuevos. El estudio reclamaba en su parte final, en un decálogo, cuáles eran las acciones que deberían poner en marcha las administraciones e incluso sugería la creación de una oficina que siguiera los edificios en desuso y pudiera asesorar hacia cuáles nuevos usos podrían orientarse. De todo ello se extraía una conclusión. Los edificios se construyen para usarse, no importa cuál sea su uso ni a qué otro pueda dedicarse cuantas veces sea necesario. Los edificios viven mientras sean útiles. El caso de las viviendas dotacionales en el País Vasco, recogidas recientemente en el estudio: “2018-2023 Public dwelling in basque country. Post-occupation study”25, reúne 27 promociones y resulta un síntoma a tener en cuenta, ya que al menos tres de sus actuaciones son sobre edificios existentes, algunos de uso similar, por ejemplo un convento, pero otro, el caso de los juzgados de Éibar, ha dado lugar a una de las distribuciones más cargada de sentido y hace que nos plateemos de nuevo el caso de las remodelaciones conducentes a transformar edificios distintos en edificios de vivienda y a dudar seriamente si la vivienda actual no es mejor si parte de una reparación. Es el hecho de corregir lo que ya estaba construido lo que entra en juego y lo que otorga a la nueva vivienda resultante un valor ejemplar.

En el caso que nos ocupa resulta palmario que la necesaria ampliación del parque residencial de nuestro país, deberá tener en cuenta a los edificios ya construidos, aunque ni siquiera sean residenciales, y también a edificios residenciales que deban repararse o remodelarse. Todo ello, obviamente, bajo la premisa de “Never Demolish”, o lo que es lo mismo, “nunca demoler, eliminar o sustituir; siempre añadir, transformar y utilizar, completar, actualizar, partir de lo existente para hacer más y mejor”26 tal y como lo afirman sus defensores Anne Lacaton y Jean-Philippe Vassal y materializado en la transformación de 530 viviendas en Burdeos. Es oportuno señalar en este punto, que la reparación puede trascender la casa, el edificio e incluso el barrio, hablamos de la ciudad reparada. Mark Nieuwenhuijsen a raíz del estudio sobre salud pública urbana realizado sobre 946 ciudades europeas, “The impact of urban configuration types on urban heat islands, air pollution, CO2 emissions, and mortality in Europe: a data science approach” (Nieuwenhuijsen, 2024), concluía que la ciudad compacta, a pesar de sus altas emisiones de CO2, su menor ratio de espacios verdes y el efecto isla de calor del que adolece, “reparada” mediante la inclusión de supermanzanas, barrios libres de coches, ejes verdes u otras soluciones que introduzcan mejoras en su trama, supone un modelo de ciudad con menores efectos negativos sobre la salud de sus habitantes que otros modelos con una densidad edificatoria más baja, comúnmente asociados a un modo de vida saludable. Digamos que las reparaciones la convierten, contra todo pronóstico, en una mejor solución ante los problemas de salud pública derivados de la urbanización.

El suelo de nuestras ciudades está edificado prácticamente en su totalidad, es por ello inevitable imaginar que el futuro de nuestras viviendas implicará necesariamente una forma de intervención en el entorno ya construido y habitado. En este sentido pensamos que es un buen momento para interesarse seriamente por un tipo de acciones que, más que hacer promesas de nuevas viviendas, partan de lo que existe y lo hagan de una manera sistemática, según un plan, podríamos decir27. Sería deseable que ese plan no fueran solo instrucciones para reparar edificios aisladamente, sino que lo hiciera en conjuntos de cierta entidad y significado. Pensamos concretamente en los polígonos de vivienda construidos en los 50 y 60, porque representan una propuesta residencial que incluye el barrio y la vivienda en un solo gesto (y podría también incorporar la naturaleza, si esta no lo ha hecho ya por su cuenta). Pensar pues en una propuesta de rehabitar esos polígonos que se levantaron para solucionar una situación de emergencia habitacional y nos preguntamos si podrían volver a hacerlo. Esto sería verdaderamente un cambio, transformándolos en conjuntos de viviendas acordes con los modos de vida y ocupación contemporáneos de este país. Según lo visto en el inicio de este artículo, una vivienda será contemporánea por el sesgo que le impriman los que la ocupan. Y deberíamos insistir en que la capacidad de estos ocupantes de adaptarse a los espacios de las viviendas, resulta determinante y tiene mucho que ver con aceptar los espacios con ciertas dosis de informalidad, desinhibición y sentido práctico. Nuestro parque sigue siendo el que existe y hay que valorar si puede transformarse en una propuesta residencial que nos abra la cabeza y sea vista con los nuevos ojos de sus nuevos inquilinos. Tal vez sea la mirada de las personas la herramienta más decisiva para su transformación. Es un síntoma positivo el caso de las diferentes propuestas realizadas por estudiantes universitarios sobre el polígono de viviendas de La Pau28 en Barcelona. A su vez el concurso europeo para jóvenes arquitectos Europan ha puesto el foco en su edición más reciente en dos ubicaciones similares a esta también en Barcelona, una de ellas situada en el barrio de La Verneda junto a su polígono de viviendas. Ambos ejercicios suponen pensar en cómo se habita en esos polígonos y más importante aún, cómo se puede habitar en ellos. La reparación tiene implícita la oportunidad de seguir usando en el presente, es decir, de ser presente. Implica intervenir en un edificio en tanto que este pueda ser parte de nuestros tiempos, que pueda ser contemporáneo.

Puede que haya llegado el momento de reconciliarnos con esos denostados polígonos a los que les hemos achacado todos los males. Modelo habitacional deficiente resume de forma educada la manera en la que han sido comúnmente descritos. Afearlos y estigmatizarlos no lleva más que a precipitar su ruina y quizás este país, que ha abordado cambios sociales trascendentales para la convivencia, podría ser pionero en este tipo de “reconciliación” en todas las escalas, con estos conjuntos habitacionales. ¿No deberíamos pensar en los polígonos de vivienda de los 50 y 60 de otra manera? ¿Podría pensarse en una remodelación integral de estos que conllevara el diseño de un aparato de gestión que lo hiciera posible y les diera una nueva entidad? Esa nueva entidad podría encajar en los planes gubernamentales para la creación de una empresa pública de vivienda y a la vez otorgar un estatus adecuado a estas unidades residenciales reparadas. Hace tiempo que se inició una reparación generalizada y que afectó significativamente a muchos de estos conjuntos de viviendas. En aquella ocasión consistió en instalar ascensores en los bloques de distintos polígonos en toda España, y se pudieron ver diferentes formas de realizar esta reparación ajustándose a las características de cada edificio. Algunas intervenciones no supusieron más que colocar un ascensor interior ligado directamente a los rellanos de la escalera, digamos que simplemente se añadía un sistema mecánico al edificio. Pero en otros casos supuso alterar el espacio urbano y colocar ascensores en las fachadas modificando el espacio público y dando lugar a unas viviendas con doble acceso. “Entrar por el balcón” es como se bautizó a estas actuaciones en una de las seis exposiciones Rehabitar en Madrid29. En ellas se ponía la atención en aquellas reparaciones que dotaban a los ascensores exteriores de un sistema de balcones que permitían el acceso a las viviendas desde otro punto, además del que ya tenían (Fig. 9). Es decir, la reparación aprovechaba la intervención para dar la posibilidad de que la vivienda pudiera ser usada de una manera distinta. Más recientemente, como respuesta a los compromisos del Acuerdo de París de 201530 se están viendo actuaciones que incumben a su rehabilitación energética, llevada a cabo generalmente mediante la instalación de un sistema de aislamiento por el exterior. No obstante, aún no se ha pensado en ellos desde lo más intrínseco de su naturaleza, desde el papel de rescate ante la emergencia habitacional que propició su construcción. No sería descabellado pensar en una reparación que incluyera por ejemplo habitaciones satélite31 en los edificios, en la agregación de espacios comunitarios que liberaran superficie en el interior y las dotaran a su vez servicios compartidos, en una residencia asistencial repartida por algunos de los edificios que los configuran, o incluso en el aumento de su edificabilidad con el objetivo de acoger nuevas viviendas promovidas y gestionadas desde la administración pública que hicieran frente al déficit habitacional que actualmente atraviesa nuestro país. Estas se insertarían además en un organismo ya en funcionamiento y favorecerían a su vez una coexistencia heterogénea a nivel edificio y también barrio.

Fig. 9. Un ascensor en la fachada

Fuente: Xavier Monteys, Servei, sentit pràctic i utilitat: arquitectura! Quadern El País, jueves 10 de abril de 2008

De entre las cualidades que debe tener una casa, creemos que ser el resultado de una reparación es una de ellas. Decimos “mejor reparada” y nos referimos a una casa que es la reparación de la anterior. No se trata de una puesta al día, estética, o normativa, tampoco basta con actuar sobre el edificio desde el punto de vista energético. Reconceptualizarla sería el término más ajustado a lo que queremos decir. En una casa reparada se pueden leer los problemas y sus soluciones, de algún modo queda constancia de un progreso. Lo que equivale a hacer visible cómo usábamos la casa, antes de re-conocerla. Sin embargo, en aquello sencillamente nuevo no existe esta observación ya que se ha perdido esa memoria. Algo así como una “reparación dinámica” como lo llamaba Richard Sennett en “El artesano”, (Sennett, 2009) donde reparar implica mejorar lo existente, en nuestro caso la casa. Lo que debería permitir que esta evolucione y esté siempre abierta a nuevas modificaciones de las que deberíamos aprender, especialmente de aquellas realizadas por parte de quienes la usan y que pueden convertir en una casa moderna casi cualquier espacio. La casa reparada es mejor.

7 Bibliografía

Buhigas, M. (2025): Maria Buhigas entrevistada por Ot Bou Costa. Diario electrónico Vilaweb, 16 de febrero. https://www.vilaweb.cat/noticies/maria-buhigas-entrevista-arquitecta-cap-barcelona/

Clarisse, C. & Bras, M. (2004): Cuisine, recettes d’architecture. Besançon, Francia, Les Éditions de l’Imprimeur.

Decreto 80/2022, de 28 de junio, de regulación de las condiciones mínimas de habitabilidad y normas de diseño de las viviendas y alojamientos dotacionales en la Comunidad Autónoma del País Vasco. Boletín Oficial del País Vasco, 168, de 1 de septiembre de 2022, 53. https://www.euskadi.eus/web01-bopv/es/p43aBOPVWebWar/VerParalelo.do?cd2022003803

Fundación Ico (Ed.) (2021): Lacaton & Vassal: espacio libre, transformación, habiter = free space, transformation, habiter. Madrid, España, Fundación ICO.

Informe de la ponencia de estudio sobre nuevas formas constructivas y nuevas tipologías de vivienda que se adapten a las necesidades y demandas de la sociedad española y que permitan asimismo conseguir ahorros energéticos, constituida en el seno de la Comisión de Vivienda. Boletín Oficial de las Cortes Generales, Senado, 67, de 27 de mayo de 2011, 54-71

Monteys, X. (2005): Repensando el bloque, dispersando la casa. Arquitectos: información del Consejo Superior de los Colegios de Arquitectos de España, 176, p. 69

Monteys, X., Mària, M., Fuertes, P., Puigjaner, A., Sauquet, R., Marcos. & C. Callís, E. (2012): Rehabitar en nueve episodios. Barcelona, España, Ministerio de la Vivienda, Ministerio de Fomento.

Monteys, X. (2013): La casa de habitaciones iguales. Quaderns d’arquitectura i urbanisme, 265, pp. 42-44

Monteys, X. (2013): La habitación, Más allá de la sala de estar. Barcelona, España, Gustavo Gili

Monteys, X., Mària, M., Fuertes, P., Sauquet, R. & Salvadó, N. (2018): Atlas del aprovechamiento arquitectónico: estudio crítico de los edificios reutilizados en Barcelona. Barcelona, España, Habitar Grupo de investigación.

Monteys, X. (Ed.) (2018): About Buildings & Food. Quaderns d’arquitectura i urbanisme, 271.

Monteys, X., Mària-I Serrano, M., Fuertes, P., Sauquet-Llonch, R., Salvadó-Aragonès, N., Gómez, E., Steegmann, D., Ortigosa, N., Arboleda, J. & Burgio, G. (2020): Barcelona come: la comida y el espacio público urbano. Barcelona, España, Habitar Grupo de investigación, La Caixa.

Monteys, X. (2020, 2 de abril): La gente diseña. El País.

De-Solà-Morales, M. (1978): Querido Leon, ¿por qué 22x22? Arquitecturas Bis, 20, pp. 7-12

Scanlon, K. (2023): The Curse of Beauty: Financialisation of Housing in Attractives Cities. En: Sequeira, M. et al. (eds.), Living in Lisbon: An Architectural View on Housing Challenges (pp. 32-37). Lisboa, Portugal, Centro Cultural de Belém.

Nieuwenhuijsen, M., Lungman, T. et al. (2024): The impact of urban configuration types on urban heat islands, air pollution, CO2 emissions, and mortality in Europe: a data science approach. The Lancent Planetary Health, vol. 8, 7, pp. 489-505

Sennett, R. (2009). El artesano. Barcelona, España, Anagrama.

Poch, M. & Impsol (Ed.) (2024): Vivienda en el área metropolitana de Barcelona: IMPSOL 2015-2024. Barcelona, España, Àrea Metropolitana de Barcelona AMB, Institut Metropolità de Promoció de Sòl i Gestió Patrimonial IMPSOL.

Pritchett, V. S. (2015): El temperamento español. Barcelona, España, Gatopardo.


  1. 1_ “Barcelona come” es la publicación derivada del proyecto competitivo “La comida y el espacio público urbano. Barcelona como caso de estudio” obtenido por el grupo de investigación Habitar mediante convocatoria pública de ayudas a la investigación RecerCaixa en 2016.

  2. 2_ “Rehabitar en nueve episodios” fueron seis exposiciones llevadas a cabo por el grupo de investigación Habitar bajo encargo del Ministerio de Vivienda y Agenda Urbana celebradas entre el 11 de marzo de 2010 y el 31 de enero de 2012 en la Arquería de Nuevos Ministerios de Madrid.

  3. 3_ De los 677 177 hogares contabilizados en Barcelona en 2024, el 30,71% está habitado por una sola persona, el 18,9% por parejas sin hijos, el 17,33% por parejas con hijos (alguno menor de 25 años) y el 5,39% está constituido por hogares multipersonales que no forman familia. Fuente: Instituto Nacional de Estadística de España (INE).

  4. 4_ El sector turístico supuso el 12,3% del PIB español en 2023 y el 11,6% del empleo total de la economía. Fuente: Castillo, M. (2024, 26 de diciembre). El peso creciente del turismo en la economía española: alcanza el 12,3% del PIB en 2023. Expansión.

  5. 5_ El programa Erasmus (European Region Action Scheme for the Mobility of University Students) fue creado en 1987 por la entonces Comunidad Económica Europea (actual Unión Europea) con el objetivo de fomentar la movilidad de estudiantes universitarios dentro de Europa. En su primer año participaron 11 países y unos 3200 estudiantes. Se consolidó durante la década de los noventa con la inclusión de más países al programa, incluyendo algunos del Espacio Económico Europeo. En 1995 se integra dentro del programa Sócrates ampliando su alcance a otras formas de cooperación académica. En 2007 se crea el programa Erasmus Mundus permitiendo la movilidad con países de todo el mundo. En 2013 se contabiliza que más de 3 millones de estudiantes se han beneficiado de su creación.

  6. 6_ Como hace ya muchos años me hizo ver un influyente hotelero mallorquín.

  7. 7_ “Mi predicción para Barcelona es que será el Dubai de occidente. Es demasiado bonita y agradable para dejarla a los nativos. Hace falta que la tome una élite internacional con portátiles” Extraído de: Pazos, A. (2024, 9 de septiembre). Una escletxa a la Barcelona expat. Quadern El País, Edición de Catalunya.

  8. 8_ Título original del artículo: “The curse of beauty: financialization of housing in attractive cities”, incluido en el catálogo de dicha exposición comisariada por Marta Sequeira y surgida a raíz de la crisis habitacional derivada de la presión turística urbana que ha tensionado el acceso a la vivienda por parte de la población local, acontecida en un buen número de ciudades (Nueva York, Barcelona, Berlín, etc.) y especialmente recrudecida en Lisboa.

  9. 9_ La Casa Orsola cuenta con 27 pisos y 4 locales. Tras ser comprada en 2021 por una empresa de inversiones que decidió no renovar los contratos de los inquilinos para reformar las viviendas y convertirlas en alquileres temporales, triplicando el precio del alquiler. Una fuerte movilización vecinal y del Sindicato de Inquilinas ha llevado a la compra de la Casa por parte del Ayuntamiento y la fundación Hábitat 3 con el objetivo de proteger a los inquilinos que aún residen allí.

  10. 10_ IKEA además de las tiendas tradicionales, cuenta con otros formatos comerciales: tiendas urbanas, espacios de planificación y puntos de recogida, además de espacios temporales, repartidos por toda la geografía española. No obstante, las tiendas tradicionales se encuentran localizadas principalmente en los polos de mayor atracción turística, las costas y en el centro peninsular.

  11. 11_ Según el informe sociológico realizado en 2016 por la Universidad Complutense de Madrid y dirigido por José Antonio Jiménez de la Heras y Ricardo Jimeno, el 68% de los encuestados para dicho estudio opina que IKEA ha tenido una influencia “importante” en ellos. Extraído de: “IKEA y la sociedad española redecoran su relación de dos décadas”, Noticias de la Universidad Complutense de Madrid, 20 de julio de 2016 [en línea]: https://www.ucm.es/noticias/16712

  12. 12_ La exposición “100 objetos de IKEA que nos hubiese gustado tener en Vinçon” celebrada en el Museo del Diseño (Disseny Hub) de Barcelona y comisariada por Juli Capella (idea original de Fernando Amat), incidía en cómo el buen diseño democrático impacta en la vida cotidiana de las personas.

  13. 13_ Las observaciones de Victor Sawdon Pritchett corresponden a su visita a España en 1954, en la que ya había estado en los años veinte del siglo pasado. Pritchett, Victor S., The Spanish Temper, Chatto & Windus, Londres, 1954 (versión española: El temperamento español, Gatopardo Ediciones, Barcelona, 2015, p. 81-82).

  14. 14_ Ibid.

  15. 15_ El “Atlas del aprovechamiento arquitectónico. Estudio crítico de los edificios reutilizados en Barcelona”, realizado por el grupo de investigación HABITAR, recogía que, el 22,69% de los 1000 casos de estudio detectados, había pasado a ser uso residencial-hotelero y residualmente residencias (no vivienda).

  16. 16_ Siglas del Instituto Metropolitano de Promoción de Suelo y Gestión Patrimonial, una entidad pública empresarial dependiente del Área Metropolitana de Barcelona.

  17. 17_ El número dedicado a la vivienda en la celebración de los 40 años de AV, recoge algunos de los más celebrados ejemplos de esta publicación. Véase por ejemplo el edificio de 40 viviendas sociales en Sant Feliu de Llobregat (Barcelona) por parte del equipo de arquitectos MAIO.

  18. 18_ Decreto 80/2022, de 28 de junio, de regulación de las condiciones mínimas de habitabilidad y normas de diseño de las viviendas y alojamientos dotacionales en la Comunidad Autónoma del País Vasco.

  19. 19_ Monteys, X. (2020, 2 de abril). La gente diseña. El País., edición Catalunya.

  20. 20_ Segundo mandato de la alcaldesa Ada Colau, 2019-2023.

  21. 21_ En la publicación original aparecida en la revista Arquitecturas Bis nº 20, enero de 1978, Manuel de Solà-Morales, acompañado de un dibujo realizado por él mismo, lo explicaba así: “La manzana encerrada por cuatro fachadas quizá no es el módulo de unidad del Ensanche. ¡La unidad no es ésta… sino ésta…!” En la cita incluida en el cuerpo del texto se ha adaptado la primera frase para su comprensión sin necesidad de imágenes.

  22. 22_ La manzana Glòries está compuesta por cuatro edificios colocados de forma que, a diferencia de las manzanas del Ensanche, permite tener un pasaje interior que la atraviesa, comunicando la Gran Via de les Corts Catalanes con la calle dels Encants Vells. Llevados a cabo cada uno de sus edificios por cuatro equipos de arquitectos diferentes, supone la mayor promoción ejecutada por un ayuntamiento en España. Esta compuesta por un total de 238 viviendas en las que podrán vivir más de 800 personas.

  23. 23_ Cierto Estudio es un estudio de arquitectura barcelonés integrado por las arquitectas, Marta Benedicto, Ivet Gasol, Carlota de Gispert, Anna LLonch, Lucía Millet y Clara Vidal. Son las autoras de la ordenación de la manzana de viviendas en la plaza de Les Glòries, como se explicaba en la nota anterior, un gran bloque formado por diferentes edificios colaborantes firmados por distintos estudios de arquitectura. Uno de estos edificios está diseñado y construido por estas mismas arquitectas.

  24. 24_ MAIO es un estudio de arquitectura barcelonés integrado por los arquitectos Anna Puigjaner, Maria Charneco, Guillermo López y Alfredo Lérida.

  25. 25_ Dicho estudio, promovido por la Dirección de Vivienda, Suelo y Arquitectura del Gobierno Vasco y llevado a cabo por Itziar Molinero y Jaime Gutiérrez, recogía 1939 alojamientos repartidos en 27 promociones.

  26. 26_ Never Demolish (nunca demoler en español) resume la filosofía arquitectónica de Anne-Lacaton y Jean Philippe Vassal. Extraído del catálogo de la exposición Free Space Transformación Habiter, Lacaton &Vassal, celebrada entre el 6 de octubre de 2021 y el 16 de enero de 2022 en el Museo ICO de Madrid.

  27. 27_ Sería interesante pensar en un trabajo análogo al mencionado “Atlas del aprovechamiento arquitectónico” cuyo alcance trascendiera el nivel del edificio y que fijara su atención en el entorno urbano en su conjunto. Un plan de reutilización a nivel ciudad, el cual podría materializarse en un Atlas del aprovechamiento urbano.

  28. 28_ Trabajos realizados en el Máster Universitario en Intervención Sostenible en el Medio Construido, Escuela Técnica Superior de Arquitectura del Vallès, Universitat Politècnica de Catalunya.

  29. 29_ “Entrar por el balcón” era una expresión buscada intencionadamente para anunciar su carácter, podríamos decir anti-normativo, un aviso para llamar la atención a acciones que desencadenan cambios en la vivienda, como lo es “entrar por la cocina” o “entrar por la sala”.

  30. 30_ El Acuerdo de París de 2015 establece compromisos específicos para reducir las emisiones de gases efecto invernadero y limitar el calentamiento global. Para cumplir con los objetivos del Acuerdo (limitar el calentamiento global por debajo de 2ºC e idealmente 1,5ºC) los edificios ya construidos deben adaptarse a estándares más sostenibles. Algunas de las acciones derivadas son la rehabilitación y eficiencia energética, la descarbonización de la energía, la actualización de normativas y certificaciones, así como la creación de programas de financiación y ayudas que colaboren a ello.

  31. 31_ El concepto de “habitación satélite” fue formulado por primera vez en el artículo de “Repensando el bloque, dispersando la casa” (Monteys, 2005), posteriormente se desarrolló en la “Ponencia de estudio sobre nuevas formas constructivas y nuevas tipologías de vivienda que se adapten a las necesidades y demandas de la sociedad española y que permitan asimismo conseguir ahorros energéticos” llevada a cabo en el Senado de España. Fue recogida también como uno de los episodios del proyecto Rehabitar (Monteys et al. 2012), y más recientemente en un capítulo del libro “La Habitación, Más allá de la sala de estar” (Monteys, 2014), con el título “Las habitaciones satélite: una propuesta práctica”.