Estudios

CIUDAD Y TERRITORIO ESTUDIOS TERRITORIALES

ISSN(P): 1133-4762; ISSN(E): 2659-3254

Vol. LVII, Nº 225, OTOÑO 2025

Págs. 196-216

https://doi.org/10.37230/CyTET.2025.225.10

CC BY-NC-ND

Recibido: 05.05.2025

Revisado: 24.06.2025

Vivienda: bases para una nueva regulación


Sebastià Jornet-Forner (1)

Rafa de-Cáceres-Zurita (2)

(1) Arquitecto
sjornet@jlp.cat

(2) Arquitecto
rafadecaceres@gmail.com


Resumen

Una crítica sobre la necesaria renovación del urbanismo y la regulación de la vivienda, en especial la vivienda protegida. La planificación urbanística está en la base de la toma de decisiones, a las que después seguirán la gestión, la urbanización y la edificación. La producción de la vivienda se analiza, desde tres ejes: dimensión, adaptabilidad y sostenibilidad, poniendo en valor el espacio habitable más allá de la superficie mínima, integrando la evolución en el tiempo de nuestro hábitat e incorporando la sostenibilidad como factor esencial de la nueva producción de viviendas. Finalmente se proponen nuevas propuestas normativas, que priorizan la calidad del espacio arquitectónico y colectivo, su confort, el uso eficiente del suelo y la incorporación de modelos alternativos como la vivienda cooperativa y el “hábitat intermédiaire”. El texto reclama un marco regulador más incisivo y adaptado a los desafíos actuales de la vivienda y de la ciudad contemporánea.

Palabras clave

Vivienda digna; Planeamiento urbanístico; Adaptabilidad; Sostenibilidad habitacional; Espacio colectivo; Vivienda protegida; Economía circular; Espacios intermedios; Cooperativas de vivienda; Vivienda mínima; Habitabilidad.

Grounds for a new regulation on housing

Abstract

A critique of the necessary renewal of urban planning and housing regulation, especially social housing. Urban planning is at the heart of decision-making, which is followed by management, development and construction. Housing production is analysed from three perspectives: size, adaptability and sustainability, emphasising living space beyond minimum surface area, integrating the evolution of our habitat over time and incorporating sustainability as an essential factor in new housing production. Finally, new regulatory proposals are put forward, prioritising the quality of architectural and collective space, its comfort, the efficient use of land and the incorporation of alternative models such as cooperative housing and ‘intermediate housing’. The text calls for a more incisive regulatory framework that is better adapted to the current challenges facing housing and the contemporary city.

Keywords

Decent housing; Urban planning; Adaptability; Housing sustainability; Collective space; Social housing; Sheltered housing; Circular economy Intermediate spaces; Housing cooperatives Minimum housing; Habitability.

1 Vivienda y planificación urbanística

La planificación urbanística es la primera etapa de la ciudad que se construirá y a la que seguirán la gestión, la urbanización y la edificación. Por eso, y en su correcta progresión, se deberán determinar cada una de estas cuatro etapas consecutivas; de tal manera que el plan urbanístico deberá tener presente de forma ineludible las tres fases que le seguirán a continuación:

El planeamiento pensando en la gestión implicará que, en el inicio del trabajo, será necesario conocer la estructura de la propiedad del suelo y acordar con las administraciones afectadas el régimen de las titularidades, ya que ésta será la base del reparto de los derechos y deberes que se derivarán de la actuación urbanística, conscientes de que la viabilidad económica estará condicionada por la interacción de cuatro factores básicos:

(1) La optimización de los ingresos procedentes de la actuación urbanística.

(2) El resultado de los gastos de urbanización asociados a la intervención y que integran todos los siguientes costes:

a) Obra urbanizadora interna.

b) Obra urbanizadora de las conexiones y afectaciones sobre otros sistemas generales de servicios.

c) Indemnizaciones respecto a las edificaciones y actividades que resultan incompatibles con el nuevo planeamiento.

d) Gastos de gestión.

e) Honorarios técnicos necesarios de planificación, gestión y ejecución de las obras de urbanización.

(3) La minimización de los plazos del ciclo entre la inversión y su retorno.

(4) La correspondiente cesión del aprovechamiento urbanístico para la administración pública.

El planeamiento pensando en la urbanización comportará la necesidad de prefigurar la ordenación del espacio público que posteriormente se materializará en el proyecto de urbanización. Este tendrá presente los servicios asociados a la misma, tanto en lo referente al tratamiento de los materiales y la vegetación, como a la movilidad y al aparcamiento, a los servicios afectados (agua, alcantarillado, electricidad, gas, comunicaciones etc.) y a la gestión de los residuos urbanos.

El planeamiento pensando en la arquitectura tomará en consideración el posterior proyecto arquitectónico, buscando el equilibrio entre la ordenación de aquellos elementos que serán las invariantes del proyecto de arquitectura y el necesario margen de flexibilidad que toda la actuación urbanística debe ofrecer para garantizar la mejor ejecución posterior.

El Real Decreto Legislativo 7/2015 de 30 de octubre, por el que se aprueba el texto refundido de la Ley de Suelo y Rehabilitación Urbana establece de forma acertada en su exposición de motivos que, en lo que se refiere al régimen urbanístico del suelo, la Ley opta por diferenciar situación y actividad, estado y proceso. En primer lugar, define los dos estados básicos en que puede encontrarse el suelo, según sea su situación de partida —urbana o rural— estados que agotan el objeto de la ordenación del uso actual del suelo y que son por ello determinantes para el contenido del derecho de propiedad, otorgando así carácter estatutario a su régimen. En segundo lugar, sienta el régimen de las actuaciones urbanísticas de transformación del suelo, que son las que generan las plusvalías en las que debe participar la comunidad por exigencia de la Constitución.

Acciones y procesos, serán pues las dos herramientas que distingue la legislación en la construcción de la ciudad y, tanto en un caso como en otro, la planificación urbanística deberá anticipar la forma urbana, que se deberá materializar en los proyectos de edificación que se ejecuten.

Las acciones se corresponderán con los diferentes actos administrativos de las licencias de edificación; y los procesos se corresponderán con la tramitación de los instrumentos del planeamiento derivado, que se deberán redactar como instrumentos de concreción de las determinaciones contenidas en el Plan que se desarrolle. De esta forma, podemos llegar a afirmar que los sectores de planeamiento se han convertido en las nuevas parcelas modernas de la nueva ciudad contemporánea, en la que concretar los derechos y deberes que derivan de cualquier actuación urbanística.

Como afirmaba Manuel de Solà-Morales.

La ciudad tradicional —toda la ciudad hasta 1930 y casi toda la ciudad hasta 1980— estaba basada en la continuidad y la repetición. La continuidad buscando enganchar unos edificios a otros lo más cerca posible para hacer más cortos el acceso en los servicios y para hacer más económica la construcción y el mantenimiento. La repetición intentando agrupar ordenadamente tipos de edificios conocidos y aproximadamente iguales, en un número proporcionado a la capacidad económica de disfrutar simultáneamente o de forma secuencia (Solá-Morales et al., 1994).

En la ciudad contemporánea el parcelario y la edificación presentan lógicas muy diversas en la forma, la dimensión y su disposición, de manera que desaparecen la continuidad y la repetición de la ciudad tradicional.

Entendemos como la parcela clásica aquella en la que se materializan los proyectos de edificación asociadas a las diferentes construcciones de la ciudad, mientras que la parcela moderna sería este nuevo ámbito de urbanización, ya sea en el caso de actuaciones de reforma o renovación de la urbanización o en actuaciones de nueva urbanización.

En este contexto, y en lo relativo a la vivienda —que constituye el cuarto pilar del Estado del Bienestar, y aún más en un tiempo de una creciente crisis habitacional estructural y en este contexto— el urbanismo deberá ser capaz de proponer nuevos formatos normativos para atender a las nuevas tipologías, a los nuevos regímenes de tenencia, a los nuevos requerimientos ambientales y en definitiva adaptarse a esta nueva concepción que se va produciendo en nuestra sociedad y que requiere una respuesta adecuada que permita cubrir estas nuevas demandas de la sociedad actual.

Y el urbanismo, como mecanismo básico en la creación de la nueva vivienda, deberá garantizar, regular y ordenar, tres condiciones básicas de la misma 1) Dimensión; 2) Adaptabilidad y 3) Sostenibilidad.

2 La dimensión de la vivienda

La dimensión de la vivienda viene asociada a la condición de la vivienda mínima, que se regula en las diferentes Comunidades Autónomas. Se trata de un concepto procedente del racionalismo que conlleva, como veremos, a ciertos equívocos.

Fig. 1. Comparativa de parcelarios en tres barrios de Barcelona: Ensanche, Gràcia y Sant Ildefons. La imagen ilustra la evolución histórica y morfológica del parcelario como estructura base de la edificación residencial

Fuente: Fuente: sin atribución identificable. Imagen utilizada con fines ilustrativos

Fig. 2. Proyecto experimental de vivienda mínima de 30 m². Piso piloto diseñado por Iñaki Ábalos y Juan Herreros, basado en un espacio interior diáfano con fachada contenedor y jardín exterior concebido como “huerto conclusus”. Construmat 206

Fuente: Ábalos & Herreros, s.f.

Fig. 3. Portadas de las publicaciones: La vivienda Social. Ministerio de la Vivienda. Secretaría General Técnica. Manuales de críticos de diseño del alojamiento español

Fuente: Fernando Ramón. Arquitecto. 1977

La superficie, se ha convertido en un parámetro que adjetiva la vivienda cuando se destina a sectores sociales determinados. Si bien es cierto que por debajo de un determinado nivel de superficie no podemos hablar de vivienda, y sí de habitáculo o alojamiento, también es cierto que no se debería otorgar a la superficie la única responsabilidad para definir la calidad de la vivienda. Es necesario abordar también las prestaciones que ofrece.

Como veremos, hay que reconocer el esfuerzo que desde propuestas innovadoras se ha realizado para conseguir un mejor aprovechamiento del espacio de las viviendas. Dicho esfuerzo se ha traducido tanto en la aplicación de nuevos criterios de adaptabilidad o flexibilidad que incrementan su valor de uso como en la adaptación de las nuevas propuestas a requerimientos actuales que superan imágenes-guía del pasado y que se mantienen en nuestras viviendas sin justificación alguna.

Sin embargo, es necesario hacer constar, como podemos comprobar, que a menudo los profesionales colaboramos en extender la idea de que a partir de la habilidad del diseñador se puede compensar la falta de espacio. Esta ilusión, fomentada por el sector inmobiliario, ha calado en la idea de la modernidad o del experimentalismo innovador. Los profesionales, después de más de un siglo de experiencias en el campo de la vivienda colectiva, sabemos que por debajo de un umbral determinado de superficie no puede hablarse de vivienda, y más cuando las nuevas tendencias apuntan a la versatilidad y a dar respuesta a las necesidades cambiantes de los usuarios. Sabemos que la primera condición para abordar criterios de viviendas flexibles o adaptables es partir de una dimensión aceptable.

Fig. 4. Planta e imagen de la vivienda de 30 m2 de D.G.Hoey en 1889. Working -class Housing in 19th-century Britain

Fuente: Archivo de los autores

Hay que señalar que estos criterios ya vinieron definidos por el Ministerio de Vivienda en el año 1977 y los meritorios trabajos dirigidos por el arquitecto Fernando Ramón Moliner (La vivienda social), sobre el confort de las viviendas. Con estos documentos se adelantaban criterios de racionalidad distributiva y del concepto de vivienda, que aún hoy no se han alcanzado, entre ellos: el de la accesibilidad; la flexibilidad o la perfectibilidad (Moliner, 1976).

A pesar de la desconexión entre diferentes estudios teóricos hay que señalar la coincidencia en torno a que entre los parámetros que determinan las características de la vivienda, es su superficie lo que soporta una mayor responsabilidad de cara a la satisfacción o insatisfacción de los usuarios.

Esta cuestión, que parecía aceptada a nivel general, vuelve a ponerse hoy a debate. Hay sectores que, con supuestas razones de cambios del modelo de la sociedad, o de cambios en la estructura familiares, derivan estas consideraciones sociológicas hacia un objetivo: la reducción al límite de la superficie de las viviendas.

Para justificar la reducción de la superficie se utilizan los datos que nos hablan de que la media de ocupantes de los hogares continúa disminuyendo en el ámbito de la Unión Europea (de 3,5 personas/hogar en 1945 a 2,3 personas/hogar en 2022); en España, esta evolución ha pasado de 4 personas/hogar en 1945 a 2,4 personas/hogar en 2023. Sin embargo, los estudios que analizan esta realidad nos explican —y esto a menudo se obvia— que

La reducción del hogar no implica necesariamente una demanda de menor superficie: una familia monoparental ocupa prácticamente el mismo espacio que una biparental y se constata en la mayoría de los países europeos las viviendas nuevas son cada vez mayores que las de la media de los parques existentes (Trilla, 2002).

Esta aparente contradicción entre reducción del hogar y necesidad de una mayor superficie encuentra su explicación en las nuevas demandas que no tienen cabida en la vivienda tradicional y que son consecuencia de factores como: la estructura del mercado laboral; el trabajo en casa y las nuevas tecnologías; la edad de emancipación de la gente joven1; el aumento en la esperanza de vida; el tiempo libre; la necesidad de aislamiento personal, etc. En todo caso, cabe señalar que esgrimir la ratio de personas/hogar como coartada para la reducción de la superficie de la vivienda, se vuelve hoy a desactivar si tenemos en cuenta que la media de ocupantes prevista por las familias inmigradas supera ya las 3,5 personas/ hogar (Bosch y Gibaja, 2005).

Texto legal vigente

Estancias principales

Estancias principales Subtotal 1

Sala de estar

Comedor

Cocina

dorm pral

dorm secun

Andalucía

Orden 12 febrero 2020

20,00

12,00

8,00

40,00

Asturias

Decreto 73/2018

10,00

8,00

8,00

10,00

7,00

43,00

Castilla La Mancha

Decreto 65/2007

18,00

7,00

10,00

7,00

42,00

Cataluña

Decreto 141/2012

20,00

6,00

6,00

32,00

Euskadi

Decreto 80/2022

18,00

7,00

10,00

10,00

45,00

Galicia

Decreto 128/2023

18,00

12,00

8,00

38,00

Navarra

Decreto 142/2004

12,00

7,00

10,00

8,00

37,00

Rioja

Decreto 28/2013

16,00

6,00

10,00

6,00

38,00

Comunidad valenciana

Decreto 80/2023

16,00

8,00

7,00

10,00

6,00

47,00

Madrid

Decreto 74/2009

Vivienda de dos dormitorios y 25 m2 o lo que se establezca en los Planes Generales

Extermadura

Decreto 10/2019

No existe dimensión mínima. Se regulan 7 funciones elementales

Fig. 5. Dimensión mínima comparativa para una vivienda de 2 dormitorios para 3 miembros en las diferentes Comunidades Autónomas

Fuente: Archivos de los autores

Si atendemos a los estudios que sobre esta cuestión se han realizado a nivel europeo y estatal, encontraremos ciertas coincidencias sobre el umbral de la superficie de la vivienda digna. En la mayoría de ellos la cuestión de la superficie se plantea a partir de las prestaciones que se pretenden cubrir, evitando determinar la superficie de la vivienda según el número de camas, concepción heredera de la idea de la vivienda como mero reproductor de la fuerza de trabajo.

A nivel europeo, para la definición de la superficie de la vivienda mínima son conocidos los estudios sociológicos franceses de la década de los sesenta, que analizaban las realizaciones de los HLM (Chombart de Lauwe, 1960); las inglesas de 1961 (Ministry of Housing and Local Government, 1961) y los análisis que hacían referencia al conjunto europeo y que dieron lugar al conjunto de recomendaciones de Colonia en 1957, y su revisión de Bruselas en 19712. Los primeros establecían que, por debajo de un determinado nivel de superficie, no es posible la satisfacción mínima de una vivienda. Este umbral se definió de forma que, para familias tradicionales (4/5 personas), el nivel crítico se situaba en 14 m2/ persona, y el nivel recomendable en 16 m2/persona.

Desde el campo de la iniciativa privada, todos los analistas coinciden en señalar que los precios de la vivienda libre se fijan en función del agotamiento de la máxima capacidad de endeudamiento que se prevé pueda soportar la demanda. Este hecho sitúa en un lugar muy secundario la repercusión que puede significar una mayor superficie en el precio final, y más cuando es conocido que el precio de venta se incrementó muy considerablemente con la burbuja inmobiliaria y lo está volviendo a hacer una vez hemos salido de la crisis anterior. Por todo ello, en la vivienda, nada hace pensar en la eficacia social de los pequeños habitáculos y que ello suponga un abaratamiento real del producto. Las razones de esta aparente contradicción las encontramos en que no se puede hablar de movilidad efectiva de los usuarios en un momento en que el incremento de los precios crece en una proporción muy superior al de las rentas del trabajo y en que acceder a una vivienda obliga a dedicar un gran porcentaje del salario familiar o personal, muy por encima del 30%-35% recomendado por los expertos.

Fig. 6. Comparativa entre dos distribuciones residenciales: planta tipo del edificio Sandor (2009) con jerarquización funcional y planta tipo del edificio Pisa (2019) con ambigüedad funcional

Fuente: IMPSÒL a partir de documentación del proyecto

Desde el campo de la iniciativa privada, todos los analistas coinciden en señalar que los precios de la vivienda libre se fijan en función del agotamiento de la máxima capacidad de endeudamiento que se prevé pueda soportar la demanda. Este hecho sitúa en un lugar muy secundario la repercusión que puede significar una mayor superficie en el precio final, y más cuando es conocido que el precio de venta se incrementó muy considerablemente con la burbuja inmobiliaria y lo está volviendo a hacer una vez hemos salido de la crisis anterior. Por todo ello, en la vivienda, nada hace pensar en la eficacia social de los pequeños habitáculos y que ello suponga un abaratamiento real del producto. Las razones de esta aparente contradicción las encontramos en que no se puede hablar de movilidad efectiva de los usuarios en un momento en que el incremento de los precios crece en una proporción muy superior al de las rentas del trabajo y en que acceder a una vivienda obliga a dedicar un gran porcentaje del salario familiar o personal, muy por encima del 30%-35% recomendado por los expertos.

La regulación de las condiciones de habitabilidad de la vivienda presenta variaciones significativas entre las diferentes Comunidades Autónomas, de forma que la dimensión mínima es regulada de forma desigual en cada una de ellas.

Dada la dispersión normativa los espacios complementarios (baño, almacenamiento, tendedero, lavadero etc…) no se han tenido en cuenta en el cuadro anterior de forma que el abanico de la dimensión de las estancias principales oscilaría entre los 32,00 m2 Cataluña y los 47,00 m2 de la Comunidad Valenciana.

Respecto estos espacios, es de destacar la novedad introducida en la reciente normativa del País Vasco (Decreto 80/2022 de 28 de junio), en la que se obliga a disponer de una pieza exterior con una superficie mínima de 4,00 m2, en la que sea posible inscribir un círculo de 1,80 m de diámetro.

En el campo de la vivienda de protección oficial, la progresiva reducción de la superficie de la vivienda proviene principalmente de dos planteamientos, que conducen a no interiorizar políticas a medio y a largo plazo, y por tanto a la no valoración de las deseconomías que genera la no consideración del valor de uso de la vivienda:

1El primero, heredero del asistencialismo social, parte de la creencia de que la administración debe dedicarse exclusivamente a paliar el problema social de los que no llegan a pagar el precio abusivo derivado de la especulación inmobiliaria, sin intervenir en la regulación del mercado libre. Este papel subsidiario y por tanto falto de liderazgo hace que las dinámicas -públicas y privadas- se autoalimenten en la coincidencia de la sobrevaloración de los aspectos meramente economicistas del problema, y al no prever los efectos de sus políticas a medio y largo plazo. Esta coincidencia es preocupante ya que, como es sabido, uno de los principios básicos del mercado libre es el de mantener permanentemente insatisfecha la demanda.

2El segundo proviene de no asumir el papel que debe jugar el sector público cara a conformar un parque de viviendas disponibles para resolver las necesidades de varias generaciones. Este hecho, derivado de la aceptación implícita de que la vivienda protegida una vez adjudicada puede entrar con facilidad en el circuito del mercado libre, conlleva olvidarse de su valor social. Cabe señalar que la decisión de algunas comunidades de consolidar un parque de viviendas protegidas, haciendo que su finalidad social sea permanente obliga a priorizar estrategias que garanticen el mantenimiento del valor de uso siempre, lo que supondrá que la cuestión de la superficie deberá plantearse desde una óptica diferente a la mera lógica económica.

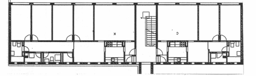
Fig. 7. Variaciones de distribución según el programa del hogar. Viviendas de protección oficial (Superficie aproximada: 83 m² útiles). Viviendas de protección oficial en Pamplona. 1996-98. Arquitecto: Francisco Mangado

Fuente: a+t nº12, “Vivienda y flexibilidad”

3 La adaptabilidad de la vivienda

Sin duda uno de los avances más recientes, en lo que se refiere a la distribución interior de las viviendas, se sitúa en la desjerarquización del espacio interior y la variabilidad de la organización de las piezas que conforman la vivienda.

La innovación de la distribución de la nueva vivienda queda reflejada en la imagen que sigue a continuación, entre dos plantas de distribución que podrían ser consideradas prototípicas del momento de su definición y que, entre las dos, tan solo hay una diferencia de diez años. En la primera planta, de 2009, se aprecia claramente una jerarquización funcional de las diferentes estancias con una asignación concreta y específica para cada una de ellas. En la segunda planta, de 2019, se aprecia claramente una intencionada ambigüedad de los espacios de forma que cada uno de los mismos pueden acoger las diferentes funciones que se dan en una vivienda, ya sea descansar, dormir, trabajar o simplemente estar.

La concepción tradicional de la vivienda adjetivaba rígidamente las diferentes estancias presuponiendo funciones específicas para cada una de ellas: recibidor, habitación para los niños, dormitorio principal, salón-comedor, cocina y otras. Hoy la tendencia es disponer un programa funcional con una cierta ambigüedad y una delimitación espacial abierta. Así, una habitación para dormir se puede convertir en lugar de trabajo o de relación; los espacios complementarios (pasillos, recibidores) se pueden dimensionar de forma que mejoran su uso; la cocina, no deberá ocupar un lugar secundario, sino que tiende a convertirse en un espacio central de la vivienda, de tal manera que implica a los espacios tradicionalmente comunitarios, como el estar o el comedor etc.

En general, se puede afirmar que la tendencia en la mayoría de las nuevas viviendas es que dispongan de un cierto grado de adaptabilidad y que nada es tan flexible como la disponibilidad de espacio.

Pero introducir la prestación de una mayor capacidad de adaptabilidad en la concepción de la vivienda, conlleva la revisión de algunos criterios constructivos, tipológicos y normativos. Varios han sido los mecanismos propuestos: desde las teorías que distinguen los componentes estructurales de carácter básico y permanente, otros incorporables y modificables según el deseo de los usuarios; a la incorporación de elementos móviles o la posibilidad de incorporar otros espacios de la vivienda de uso indefinido.

Fig. 8. Planta con distribución no jerarquizada que facilita la adaptabilidad. Viviendas públicas en Gamunde/Maia. Portugal (1998–2000). Arquitecto: João Álvaro Rocha. Ejemplo en el que la indefinición funcional y la no jerarquización de los dormitorios facilita la adaptabilidad de la vivienda

Fuente: documentación cedida por el autor

A pesar de las facilidades que ofrecen las nuevas técnicas de construcción, en la práctica no resulta tan fácil la modificación instantánea o eventual de la distribución de la vivienda. Para llevar a cabo la máxima adaptabilidad en la vivienda, sería necesario la cooperación de diversas condiciones técnicas y estructurales:

La neutralidad de la fachada respecto a la distribución (aperturas y envolvente térmica)

Homogeneidad del sistema de calefacción interior. (suelo térmico)

Trazado de las instalaciones eléctricas y de voz- datos, independientes de la compartimentación vertical.

Recuperación de los conductos verticales de evacuación y suministro de agua.

Más facilidad ofrece la línea que fundamenta la flexibilidad de la vivienda en la compartimentación ambigua que admite la polivalencia de usos sin la necesidad de transformaciones posteriores. Este enfoque pone en crisis la jerarquización espacial que plantea la normativa actual, adjetivando y prefijando el uso de las estancias: dormitorios de los padres; dos camas, individuales, etc.., para abrir un horizonte en el que las habitaciones sean de una superficie parecida y puedan ocuparse según las necesidades cambiantes de los miembros del hogar. Ambigüedad que se traduce en la voluntad proyectual de la indefinición funcional de las estancias y en evitar al máximo la diferenciación de superficies útiles y configuración espacial.

La adaptabilidad es una cualidad del espacio que facilita la diversidad de usos. Es, por tanto, un concepto de flexibilidad no relacionado necesariamente con el espacio transformable, si no con la ambigüedad espacial de las estancias.

La normativa debería reflejar esta ambigüedad en la libertad de organización de las piezas que constituyen las zonas de uso común: el estar (E), la cocina (C) y el comedor (M); en la de las zonas de almacenamiento; en la de las unidades higiénicas (salas de baño y aseo), y en la mencionada indefinición funcional y dimensional de las habitaciones.

A nivel general, uno de los factores que incide en las deseconomías de las viviendas es la no consideración del factor tiempo: el de la vida efectiva de la vivienda. Las teorías de Habraken —potenciando la inversión inicial en el soporte, en lo inalterable— ya nos anticipaban el concepto de perfectibilidad. Se trataba de interiorizar económicamente que una vivienda tarda un cierto tiempo en ser colonizada y optimizada por los ocupantes, y que hay que facilitar su capacidad de perfectibilidad evitando el despilfarro del gasto público/privado en aquello que es susceptible de ser modificado o sustituido. Pretender ahorrar en los aspectos que el tiempo no puede corregir —como la superficie insuficiente, el modelo de agrupación inadecuado, la envolvente térmica— y, en cambio, derrochar recursos en aquellos que durante la vida de la vivienda se pueden ir mejorando, es un deficiente planteamiento económico3.

Fig. 9. Ejemplo de organización flexible de espacios en viviendas colectivas. Viviendas en Lezburg. 1993-94. Arquitectos: F. Kuhn y G. Pfiffner

Fuente: sin atribución específica. Imagen sin procedencia identificable Uso con fines exclusivamente ilustrativos

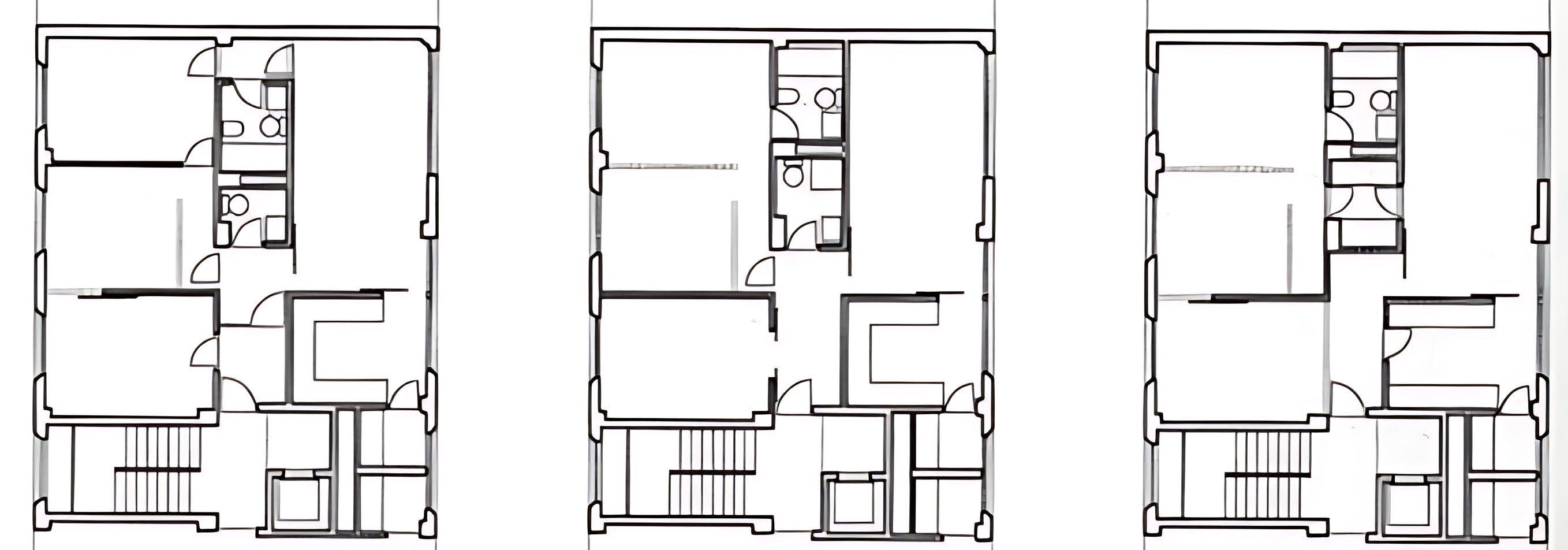
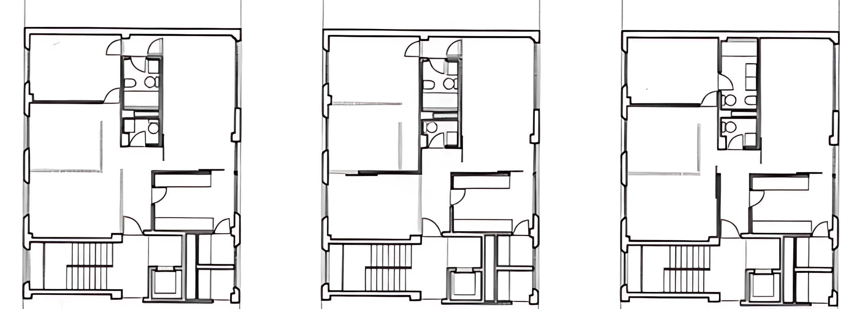
Fig. 10. Estudios de aplicación del concepto de perfectibilidad sobre una vivienda base, realizado por los arquitectos Lluis Nadal i Oller y Rafa Cáceres, como trabajos complementarios de la normativa de habitabilidad aprobada en el 2009. Las crujías de 16 metros pensadas para disponer aparcamientos soterrados, y las viviendas cumpliendo la ventilación transversal a partir de los patios interiores. Cuatro viviendas por rellano

Fuente: Archivo de los autores

La vivienda perfectible en su mayor grado sería la que, proyectada originariamente con su distribución completa y que cumple las condiciones de habitabilidad vigentes, queda abierta a que la compartimentación de los espacios se realice posteriormente de acuerdo con las necesidades cambiantes de sus ocupantes. No obstante, esta vivienda contiene un equipamiento obligatorio mínimo de carácter fijo consistente en la dotación mínima del equipo de cocina y las cámaras higiénicas, de conformidad con el proyecto técnico.

4 La sostenibilidad en la vivienda

La normativa vigente sobre la sostenibilidad se ha centrado principalmente en aspectos técnicos relativos al ahorro energético; los materiales y sistemas constructivos; la selección de desechos; la energía solar o fotovoltaica o la conveniencia de la red de saneamiento separativa. Estas medidas, convenientes, a menudo nos hacen olvidar aquellas que afectan a la concepción arquitectónica y a la puesta en crisis de tipologías claramente negativas desde el punto de vista de la sostenibilidad energética y del confort climático.

El principal criterio de sostenibilidad y de ahorro energético debe partir del mismo concepto arquitectónico del conjunto y de las viviendas, principalmente de su relación con el exterior y de la consideración del control climático a partir de medios naturales (sistemas pasivos de captación solar; protección solar y su adecuación a las estaciones climáticas; la agresión exterior y los espacios intermedios; la ventilación cruzada natural, etc.). Tal y como señalaba Ignacio Paricio:

... las propuestas del ecologismo político son siempre discutibles en su eficacia real y se justifican más como intenciones que como aportaciones reales. Sería mucho más importante confiar más en la arquitectura y recuperar el tratamiento de las ricas relaciones interior-exterior que desaparecieron a lo largo del siglo XX: Las celosías, persianas, contraventanas y sobre todo la riqueza climática y espacial de los locales intermedios: galerías, logias, pérgolas, patios, etc... (2004)

Respecto a las tipologías, es conocido que las viviendas pasantes, con dos fachadas contrapuestas, son las que mejor responden a los requerimientos climáticos y por tanto al ahorro energético. Sin embargo, esta solución cuenta a menudo con la resistencia de los promotores, ya que comporta que los accesos verticales sirvan a pocas viviendas por planta. Es decir, por un lado, nos encontramos con normativas positivas sobre sostenibilidad y soleamiento, y por otro con una práctica inducida y contradictoria que aconseja establecer un mínimo de cuatro viviendas por rellano.

Debería, exigirse, que el planeamiento urbanístico asegurase agrupaciones donde las viviendas tuvieran el beneficio de unas horas de asoleo.

De la misma forma, la obligatoriedad de la ventilación transversal es un condicionante que debe establecerse desde el planeamiento, ya que afecta a la concepción tipológica y a la agrupación de las viviendas, no siendo ajena a la definición de parámetros como la profundidad edificable, patios, etc. Siendo variada y compleja la situación de las viviendas dentro de diferentes tejidos urbanos, sería necesario que desde las normativas urbanísticas se maticen y posibiliten este requerimiento básico por la eficiencia energética de los edificios.

La ventilación transversal de la vivienda, disponiendo de dos fachadas con diferente grado de iluminación, temperatura o vistas, aporta una complejidad ambiental al espacio y enriquece la forma de habitar las casas. Con las viviendas pasantes, casi generalizadas fuera de nuestro país, las viviendas establecen un diálogo deseable con el entorno urbano, permitiendo que los usuarios puedan disfrutar desde su vivienda diferentes grados de relación con la urbanidad del espacio exterior y de privacidad.

Algunas instituciones como el Instituto Metropolitano de Promoción del Suelo y Gestión Patrimonial (IMPSOL) que pertenece a el Área Metropolitana de Barcelona (AMB) ha desarrollado ya su propia herramienta para la implementación de medidas respecto a la sostenibilidad en la producción de la vivienda y esto se recoge en el documento conocido con el nombre de Protocolo de Sostenibilidad desarrollado por la misma institución4.

Este documento que —recoge una sistematización de criterios ambientales de obligado cumplimiento— tiene como objetivo fundamental redirigir el proceso de planificación, diseño y ejecución de proyectos y obras públicas hacia modelos compatibles con la sostenibilidad ecológica, la equidad social y la eficiencia energética. Lejos de tratarse de una herramienta orientada exclusivamente a la reducción del impacto ambiental, este protocolo se erige como una guía estratégica para el desarrollo sostenible de las ciudades, incorporando dimensiones técnicas, urbanísticas, económicas y culturales.

A diferencia de otras metodologías de evaluación ambiental —como LEED, BREEAM o DGNB— el protocolo de la AMB y el IMPSOL no se presenta como un sistema puntuable, en lugar de ello, adopta una lógica normativa integradora que establece unos criterios de cumplimiento obligatorio, agrupados en seis grandes ámbitos: seguimiento transversal, energía, agua, materiales, confort y salud, y sostenibilidad del emplazamiento. Esta decisión metodológica responde a una visión: la sostenibilidad no debe negociarse en función de capacidades técnicas puntuales o limitaciones presupuestarias, sino asumirse como condición estructural del proyecto urbano y arquitectónico.

Este carácter integrador implica que el protocolo actúe como el esqueleto invisible que sostiene decisiones clave en todas las etapas del proceso proyectual, desde el análisis de viabilidad hasta la puesta en marcha del edificio o espacio urbano. Cada criterio funciona como una palanca de cambio orientada a mitigar el cambio climático, preservar los recursos naturales, fomentar la equidad territorial y mejorar el bienestar humano.

(1) La sostenibilidad como práctica transversal: principios y dinámicas

Uno de los pilares fundamentales será la incorporación temprana de los criterios ambientales en el proceso de diseño. No se trata de introducir correcciones al final del proyecto, cuando las decisiones clave ya han sido tomadas, sino de integrar la lógica de la sostenibilidad desde la formulación misma del encargo. Esta anticipación metodológica encontrará su expresión en el primer gran bloque del análisis: el seguimiento y análisis transversal. En estos primeros pasos será necesario establecer un enfoque colaborativo y dinámico en el que analizar las alternativas de emplazamiento, optimizar el programa funcional y articular un seguimiento continuo con los responsables municipales. Lejos de ser un trámite técnico, este proceso se convertirá en una reflexión estratégica sobre el sentido de la intervención urbana: ¿Es necesario construir? ¿Dónde? ¿Cómo se articula con el entorno? ¿Cuál es su vida útil proyectada?

Este tipo de preguntas permitirá no solo optimizar los recursos disponibles, sino también reducir de forma significativa la huella ecológica del proyecto, al priorizar la rehabilitación frente a la obra nueva o al evitar sobredimensionamientos innecesarios. La sostenibilidad se convierte así en un criterio rector que obliga a pensar en términos de eficiencia programática y coherencia urbana.

(2) Energía, eficiencia y descarbonización: más allá de los mínimos legales

La lucha contra el cambio climático exige una transformación profunda de los sistemas energéticos y de las formas en que consumimos y producimos energía en las ciudades. Y este desafío se debe abordar desde una doble lógica: la reducción de la demanda energética mediante diseño pasivo y la generación de energía renovable para autoconsumo.

Este enfoque integral se basará en un diagnóstico claro: una parte significativa de las emisiones urbanas proviene del consumo energético de los edificios. Para revertir esta tendencia, se exigirá no solo alcanzar la calificación energética A, sino demostrar que las decisiones proyectuales han sido validadas mediante simulaciones avanzadas (como CYPETHERM HE Plus). Además, se exigirá que las obras nuevas reduzcan en al menos un 20% el consumo respecto al mínimo normativo, y que las rehabilitaciones mejoren un 20% el estado inicial.

Pero el aspecto más disruptivo se sitúa en la obligatoriedad de instalaciones renovables in situ en todos los edificios y en determinadas urbanizaciones, con potencias mínimas definidas por el tipo y escala del proyecto. Esta medida, que se acompaña de criterios sobre cobertura energética y compatibilidad con comunidades energéticas, posiciona al protocolo como un instrumento claro de descarbonización urbana, alineado con las directrices del Pacto Verde Europeo y los compromisos de neutralidad climática.

Su valor reside no solo en su enfoque técnico, sino en su visión sistémica y en su capacidad de generar cultura proyectual, orientando a técnicos, proyectistas, operadores y responsables políticos hacia una nueva manera de concebir lo urbano. Se trata de una herramienta viva, en constante revisión, que reconoce la complejidad del territorio y actúa como catalizador de innovación, colaboración y justicia ambiental.

En última instancia, lo que se propone es una reconciliación entre ciudad y naturaleza, donde construir no significa ocupar o explotar, sino regenerar, cuidar y proyectar colectivamente un futuro común más justo y resiliente. El objetivo final sería disponer de viviendas pasivas en su comportamiento energético y liberar la economía familiar de la factura de la climatización.

(3) Agua y resiliencia hídrica: adaptarse al clima mediterráneo

El tercer ámbito será el de la gestión del agua desde una óptica de eficiencia, resiliencia y ciclo integral del recurso. En un contexto mediterráneo marcado por la sequía cíclica y la presión sobre los acuíferos, se deberán promover estrategias que permitan reducir el consumo de agua potable y fomentar la reutilización de aguas grises y pluviales. Más allá de los límites de caudales en grifos e inodoros, lo interesante aquí será la exigencia de recuperación obligatoria de aguas en ciertos edificios (como pabellones con piscina o bloques de más de 40 viviendas) y el uso de aguas de lluvia para el riego en parcelas con alta superficie ajardinada. Esta aproximación técnica se completará con un sistema de monitorización digital del consumo y una racionalización del uso del agua en espacios verdes, fuentes ornamentales y juegos de agua.

Desde una perspectiva más amplia, lo que se debe plantear es un cambio cultural: el agua ya no puede tratarse como un recurso abundante. Su gestión debe planificarse desde el diseño, con soluciones basadas en la naturaleza y tecnologías de recuperación y control que garanticen su uso sostenible a lo largo del ciclo de vida del proyecto.

(4) Materiales, salud ambiental y economía circular

En el ámbito de los materiales, se introducirán elementos esenciales para reducir el impacto ambiental del ciclo de vida constructivo. La selección de productos ya no puede guiarse exclusivamente por el coste o la disponibilidad, sino por su huella de carbono embebido, su toxicidad y su grado de circularidad.

Se exigirá calcular la huella de CO₂-eq de los materiales utilizados y se fomentará el uso de productos con ecoetiquetas tipo I y III, lo que introducirá una dimensión cuantitativa y cualitativa a la hora de tomar decisiones sobre acabados, revestimientos o aislamientos. Además, se incorporarán criterios específicos para el uso de materiales reciclados y se eliminarán progresivamente aquellos compuestos nocivos tanto para las personas como para el medioambiente.

Esta perspectiva se enmarcará en la lógica de la economía circular, en la que los materiales deben considerarse como parte de un flujo continuo de recursos, capaces de ser reutilizados, reciclados o biodegradados sin comprometer la salud humana ni la estabilidad de los ecosistemas.

(5) Bienestar humano y confort: la dimensión habitacional

La sostenibilidad no es solo ambiental, sino también social y habitacional. De ahí que se deba dedicar una parte importante del proyecto a cuidado de los aspectos de confort térmico, lumínico y calidad del aire interior.

Este enfoque tendrá un doble impacto: por un lado, garantizará condiciones de bienestar para los usuarios, mejorando su salud y productividad; por otro, contribuirá a reducir el consumo energético mediante estrategias pasivas como ventilación cruzada, inercia térmica, protección solar y orientación optimizada.

Además, la regulación del uso de materiales emisores de compuestos orgánicos volátiles (COV) y la exigencia de estrategias de limpieza sostenible y mantenimiento saludable reflejarán una preocupación creciente por la calidad del ambiente interior, especialmente en contextos postpandemia y de aumento de enfermedades respiratorias.

(6) Naturaleza urbana, biodiversidad y movilidad sostenible

En su última sección, se abordará la sostenibilidad desde una perspectiva territorial, promoviendo una ciudad más verde, diversa y conectada. Esto implica renaturalizar el espacio urbano mediante infraestructura verde, fomentar la biodiversidad y luchar contra el efecto isla de calor, tanto en zonas urbanas como en edificios.

Los criterios ambientales establecerán mínimos obligatorios de superficie verde, incentivarán la conexión de corredores ecológicos y recomendarán el uso de especies autóctonas adaptadas al cambio climático. Además, se introducirán indicadores cuantitativos sobre la impermeabilización de suelos, el balance hídrico y la calidad térmica de los materiales expuestos al sol.

En cuanto a movilidad, se exigirá la instalación de infraestructura para bicicletas, VMP y vehículos eléctricos, anticipándose a la transición modal en curso y reforzando la intermodalidad urbana. Todo esto se articulará en una visión de ciudad resiliente y postcarbono, donde el espacio público no solo se construye, sino que se habita de forma sostenible.

5 Propuestas normativas para un nuevo escenario de la vivienda protegida

La vivienda protegida ha sido, durante décadas, una herramienta clave en las políticas públicas de acceso a la vivienda. Sin embargo, los profundos cambios sociales, económicos, culturales y ambientales que atraviesan nuestras sociedades ponen de manifiesto la necesidad urgente de revisar y actualizar su marco normativo. Las tipologías residenciales emergentes, las nuevas formas de habitar y las demandas ciudadanas por modelos más sostenibles, cooperativos e inclusivos hacen imprescindible una reflexión de fondo sobre los parámetros que estructuran la vivienda protegida. En este contexto, se propone un conjunto necesario, aunque no exhaustivo de reformas normativas, orientadas a adaptar esta figura a un nuevo escenario habitacional más coherente con los retos contemporáneos.

Estas propuestas se articulan en torno a cinco conceptos: (1) En primer lugar, la regulación debería pivotar sobre los metros cuadrados útiles, superando la referencia a la superficie urbanística. (2) En segundo lugar, es necesario reconocer y regular de forma adecuada los espacios colectivos como parte esencial de los nuevos modos de habitar, incorporándolos tanto a los parámetros de diseño como a los criterios de financiación. (3) En tercer lugar, urge redefinir el concepto de vivienda protegida, superando una visión exclusivamente economicista y contemplando aspectos como la sostenibilidad, la cohesión social o la innovación tipológica. (4) En cuarto lugar, se plantea la idea de la residencialización, entendida como un mecanismo para mejorar la calidad de las viviendas y sus entornos, fomentando barrios vivos y cuidados. (5) Y, finalmente, se defiende la integración normativa de los modelos de vivienda cooperativa y del “hábitat intermédiaire”, que están demostrando su capacidad de generar alternativas viables, resilientes y adaptadas a las necesidades contemporáneas.

5.1 Utilizar la superficie útil vs la superficie urbanística

El urbanismo establece tres tipos de superficie:

La superficie útil, que es la se mide entre paredes, la habitable, al regulada en las disposiciones sobre habitabilidad.

La superficie construida, que incorpora la envolvente térmica exterior de la vivienda y las paredes de división interior de la vivienda.

La superficie urbanística que es la que se computa en el urbanismo y que incluye además de la construida, los núcleos verticales de comunicación (ascensor y escaleras) y los servicios comunes.

La vida en una vivienda se desarrolla sobre una superficie y al interior de un volumen con unas determinadas condiciones térmicas, acústicas y ambientales regulables, adaptables a las variaciones climáticas y protectoras de ambientes exteriores agresivos (ruido, polución, seguridad, etc.). Es esta superficie y este volumen es el objeto de la adquisición de la vivienda y la que interesa regular.

Hoy día el cumplimiento de normativas ligadas a esta protección exterior, requieren de la participación de la envolvente del edificio y de la vivienda, que difícilmente encuentran cabida en las dimensiones tradicionales de las fachadas (los característicos 30 cm.). Una tecnología habitual en el campo de la construcción de viviendas que deba dar respuesta a los coeficientes de aislamiento térmico y acústico; a la eliminación de los puentes térmicos de pilares y forjados o a la protección de las cajas de persianas, requerirá aumentar el grosor de las paredes de cerramiento. Determinación que debería responder a razones de sostenibilidad y confort y no entrar en competencia con la superficie útil, la habitable.

La adecuación de la envolvente térmica de los nuevos edificios de viviendas, para dar cumplimiento a las normativas del Código Técnico de la Edificación a los edificios de nueva construcción, supone que, a idéntica superficie construida, una reducción de la superficie útil, y por tanto una disminución proporcional del espacio habitable. No tiene sentido que conseguir un buen aislamiento compita con el aprovechamiento urbanístico.

Por lo tanto, sería importante incorporar como parámetro de la edificabilidad urbanística, el concepto de superficie útil interna a las viviendas y utilizar está superficie útil como la regulada por el urbanismo en logra de la tradicional envolvente del edificio que incluye la totalidad del techo edificado incluyendo ascensores y núcleos de comunicación vertical.

Por otra parte, si el aprovechamiento urbanístico se realiza en base a los metros cuadrados útiles de vivienda, se liberará el objetivo de minimizar los espacios colectivos como los portales de las viviendas y el núcleo de comunicaciones verticales, de forma que la obsesión del promotor por la tipología de cuatro viviendas por rellano para optimizar la edificabilidad urbanística, dará paso a la adopción de agrupaciones más razonables.

Fig. 11. Estudio comparativo de la demanda energética de dos viviendas. (Estudio Ecobarrio Figueres); reconversión de balcones en galería, Edificio de viviendas en Caspe 74

Fuente: Estudio Bach. Barcelona. Foto. José Hevia

Por otra parte, si el aprovechamiento urbanístico se realiza en base a los metros cuadrados útiles de vivienda, se liberará el objetivo de minimizar los espacios colectivos como los portales de las viviendas y el núcleo de comunicaciones verticales, de forma que la obsesión del promotor por la tipología de cuatro viviendas por rellano para optimizar la edificabilidad urbanística, dará paso a la adopción de agrupaciones más razonables.

5.2 El tratamiento de los espacios intermedios

Los espacios intermedios ofrecen la prestación de poder vivir al exterior desde la propia vivienda, en un clima mediterráneo como el nuestro, y de aprovechar las ventajas térmicas y de sostenibilidad energética que ofrecen la introducción de espacios habitables, fuera de la envolvente térmica de la vivienda.

Curiosamente el balcón tradicional, abierto a tres caras, que invade el espacio público, se prima no computando como superficie construida, a sabiendas que su construcción en voladizo no es la más económica, su utilidad es discutible y que muchas veces es un vestigio de la representatividad urbana del edificio. En cambio, cuando este espacio se adentra en la edificación (abierto a la cara de fachada) se penaliza considerándolo como superficie computable y aparecen los temores a que futuras transformaciones introducidas por el usuario afecten la fachada (típico cerramiento vidriado con carpintería de aluminio). Sin embargo, desde el confort y el ahorro energético, un espacio exterior a la vivienda que se pueda abrir, cerrar o proteger, según las necesidades ambientales o climáticas, debería ser una solución deseable y proyectada como tal. Su cualidad como un espacio intermedio versátil, ya ha demostrado su eficacia en la arquitectura tradicional residencial de nuestras ciudades.

Las galerías que tradicionalmente han proliferado en nuestras ciudades son hoy

…un elemento que, en el futuro, recuperará el protagonismo en la arquitectura doméstica como, además, apuntan ya ciertas promociones residenciales actuales. La galería es una pieza que, además de crear en su propio espacio unas agradables condiciones ambientales, es capaz de mejorar las del resto de la vivienda por su efecto invernadero (Paricio y Sust, 1988).

En un estudio comparativo sobre la demanda energética de dos viviendas idénticas, con la diferencia de un balcón abierto y el otro en galería con muro Trombe, se comprobó que la demanda energética (para frío y calor) de ambas se reducía en un 30% a favor de la segunda (34,40 kWh/m2 frente a 21,98 kWh/m2) (Rueda et al., 2006).

Para incentivar la implantación de los espacios intermedios la legislación urbanística debería eximirlos de computar como techo siempre que no superen un porcentaje determinado de la superficie útil interior de la vivienda y que se justifique su utilidad de cara a los objetivos antes señalados.

En la normativa, con carácter general, se deberá potenciar la implantación de espacios intermedios de las viviendas con el exterior ya que estos espacios ofrecen una comprobada eficacia cara al confort espacial; al control térmico y acústico, y al ahorro energético de las viviendas.

5.3 La necesidad de redefinir el concepto de vivienda protegida.

En la normativa sobre la vivienda protegida debería plantearse la incorporación de algunas consideraciones y situaciones que han empezado a aparecer recientemente, como podrían ser: (1) La vivienda protegida como reutilización de locales existentes; (2) El valor del espacio exterior y (3) La atención a los espacios colectivos en la nueva producción de vivienda protegida.

Fig. 12. Proyecto de ampliación y rehabilitación sin desplazamiento de residentes. 530 viviendas expandidas en Grand Parc Bordeaux, Francia. Arquitectos: Lacaton & Vassal

Fuente: Estudio Lacaton & Vassal

(1) La vivienda protegida como reutilización de locales existentes

Más allá de las reservas tradicionales, recientes planes urbanísticos han implementado el mecanismo de la calificación urbanística sobre construcciones existentes, garantizando la aparición de nuevas viviendas protegidas en el tejido urbano de la ciudad consolidada, como por ejemplo la regulación de antiguos locales obsoletos, que no tienen ninguna salida en el mercado por la baja presencia de actividades económicas en determinadas zonas de la ciudad y donde el uso de vivienda protegida podría ser una solución positiva para la rentabilidad del local y la actividad urbana de la calle.

La calificación como vivienda protegida de locales o viviendas ya existentes, debería estar liberada de la condición de cumplir una dimensión máxima, ya que se trata de un mecanismo de reutilización del parque inmobiliario existente y no de nueva producción constructiva.

(2) El valor del espacio exterior

La pandemia de COVID-19, reveló con una crudeza inesperada las carencias espaciales de muchas viviendas. El confinamiento forzado convirtió el hogar en un espacio total: oficina, escuela, gimnasio, refugio. En este contexto, los elementos tradicionalmente considerados “complementarios” —como terrazas, balcones, jardines o azoteas de uso colectivo— adquirieron un valor central de uso, tanto físico como simbólico y se convirtieron en extensión vital de la cotidianidad. Sin embargo, en general, la regulación de vivienda protegida limita el valor económico de este espacio exterior vinculándolo, de manera no razonable, ni coherente con la importancia actual de estos espacios, a un 10% de la superficie interior de la vivienda.

Estos espacios libres ofrecen lo que el interior no siempre permite: luz natural, aire fresco, contacto con el exterior, posibilidad de cultivo, de juego, de relación a distancia con los vecinos. Son umbrales entre lo privado y lo colectivo, entre lo doméstico y lo urbano. Durante los meses de encierro, muchos descubrieron en ellos una forma de alivio, de conexión con el mundo y con uno mismo. Quienes no los tenían, sintieron con fuerza su ausencia.

Fig. 13. Proyecto de vivienda cooperativa en cesión de uso. La Borda, barrio de Sants, Barcelona. Arquitectos: Lacol

Fuente: https://lacol.coop/

Esta experiencia colectiva nos obliga a repensar los estándares de habitabilidad. ¿Por qué seguimos diseñando viviendas sin balcones? ¿Por qué se subestima el valor de una terraza compartida o de un pequeño jardín en planta baja? En lugar de concebirlos como “extras”, estos espacios deben ser entendidos como parte integral del bienestar habitacional.

Arquitectos como Lacaton & Vassal ya lo han defendido durante años: el espacio no se mide solo en metros cuadrados cerrados, sino en posibilidades de uso, expansión y libertad. La pandemia no hizo más que confirmar esta verdad. Hoy más que nunca, urge recuperar la dimensión exterior de la vivienda como necesidad esencial de habitar con dignidad, salud y apertura al mundo.

(3) La atención a los espacios colectivos en la nueva producción de vivienda protegida

En los últimos años el modelo tradicional de vivienda ha sido cuestionado por una serie de transformaciones sociales, económicas y ambientales que han puesto en evidencia la necesidad de repensar tanto la forma como el fondo de cómo habitamos. La vivienda protegida, como instrumento de política pública destinado a garantizar el acceso a un alojamiento digno y adecuado, no puede mantenerse al margen de estas transformaciones. En particular, se observa una creciente relevancia de los espacios colectivos en las nuevas tipologías de vivienda, los cuales no siempre son adecuadamente considerados en la regulación vigente. Esta omisión representa una limitación que conviene abordar desde una perspectiva crítica y propositiva.

Históricamente la vivienda protegida ha estado centrada en la provisión de unidades habitacionales individuales, es decir, en garantizar una superficie mínima, unos estándares de habitabilidad y unos precios máximos. Estos criterios, si bien fundamentales para asegurar la accesibilidad y la calidad de vida de las personas, suelen dejar en un segundo plano el entorno inmediato en el que estas viviendas se insertan. Sin embargo, los espacios colectivos -ya sean patios compartidos, cocinas comunitarias, huertos urbanos, salas polivalentes o zonas de lavandería común- están emergiendo como elementos clave no solo para mejorar la calidad del habitar, sino también para responder a necesidades sociales contemporáneas como la soledad no deseada, la falta de conciliación, la necesidad de cuidado mutuo y la urgencia ambiental.

En este sentido, el auge de modelos como el cohousing, la vivienda intergeneracional o las cooperativas de vivienda en cesión de uso ha contribuido a visibilizar el valor de lo colectivo como parte integrante del espacio habitacional. Estos modelos, más allá de constituir alternativas “experimentales”, están generando una nueva cultura del habitar que pone en el centro la relación entre las personas, la sostenibilidad de los modos de vida y la eficiencia en el uso de los recursos. Los espacios colectivos, por tanto, no son un “extra” o un “lujo” añadido a la vivienda individual, sino un componente estructural de una forma distinta de entender la vivienda como derecho y como práctica social.

No obstante, la normativa vigente sobre vivienda protegida sigue anclada en esquemas que no reconocen ni valoran estos espacios. A menudo la regulación se centra exclusivamente en el número de metros cuadrados privativos, sin ofrecer criterios claros sobre cómo computar los espacios compartidos o sin incluir incentivos para su incorporación. Incluso en muchos casos, los espacios colectivos pueden llegar a penalizar los proyectos porque su superficie no puede ser considerada en los cálculos de edificabilidad o de aprovechamiento urbanístico, lo cual encarece su desarrollo o lo vuelve inviable en términos de promoción pública. Esta desconexión entre la normativa y la realidad arquitectónica y social impide que muchas propuestas innovadoras puedan materializarse, o bien las reduce a una lógica marginal.



Incorporar los espacios colectivos en la regulación de la vivienda protegida no significa simplemente permitirlos o tolerarlos, sino reconocer su valor como parte integrante del derecho a la vivienda. Esto implicaría varios niveles de intervención. En primer lugar, sería necesario reformular los criterios de habitabilidad para incluir el valor funcional, social y simbólico de los espacios comunes. Así como se exige que cada vivienda tenga ventilación, luz natural o accesibilidad, se podría exigir —o al menos recomendar la existencia— de espacios de encuentro, de apoyo mutuo o de actividades comunes que fomenten la cohesión social y la corresponsabilidad.

En segundo lugar, habría que revisar los mecanismos de financiación y promoción pública. En muchos casos los presupuestos de vivienda protegida están limitados a los costes estrictamente vinculados a las viviendas individuales. Esto desincentiva la creación de zonas comunes, que suelen ser vistas como un gasto superfluo o como un elemento de mantenimiento complicado. Sin embargo, está demostrado que los espacios colectivos bien diseñados y gestionados pueden reducir otros costes sociales, como los relacionados con la salud mental, el aislamiento o la falta de redes de apoyo. Por tanto, una política de vivienda integral debería contemplar fórmulas para financiar, mantener y gobernar estos espacios, incluyendo mecanismos de participación ciudadana en su diseño y gestión.

En tercer lugar, la normativa debería abordar el reto de la flexibilidad tipológica. Las nuevas formas de vivienda, especialmente aquellas que integran lo colectivo como una dimensión clave, requieren marcos normativos más abiertos que permitan una mayor diversidad de soluciones arquitectónicas. Esto incluye desde unidades más pequeñas pero integradas en redes de espacios compartidos, hasta la posibilidad de combinar usos residenciales con usos comunitarios o de cuidados. Regular lo colectivo no implica imponer una tipología única, sino abrir el abanico de posibilidades para que las soluciones habitacionales puedan adaptarse a los distintos contextos, necesidades y proyectos de vida.

Finalmente, resulta crucial que la regulación también atienda a la dimensión simbólica y cultural de los espacios colectivos. Estos no son solo lugares físicos, sino dispositivos de producción de comunidad, de aprendizaje y de democratización de la vida cotidiana. Su diseño y gestión pueden convertirse en laboratorios de innovación social, donde se experimenten nuevas formas de relación, de solidaridad y de sostenibilidad. Para ello, es fundamental que los marcos normativos no solo establezcan obligaciones técnicas, sino que fomenten una cultura de lo común en la planificación y la arquitectura de la vivienda protegida.

5.4 La “résidentialisation” como mecanismo de mejora de la calidad de la vivienda

En Francia, el término résidentialisation hace referencia a un proceso de transformación urbana que busca reconvertir los conjuntos de vivienda social —conocidos como HLM (Habitations à Loyer Modéré)— en espacios más dignos, seguros y habitables para sus residentes. Lejos de ser una simple operación estética, esta práctica surge como respuesta a décadas de políticas de vivienda masiva que, si bien resolvieron necesidades urgentes de alojamiento en la posguerra, con el tiempo derivaron en barrios marcados por el deterioro físico, la estigmatización y una creciente desvinculación social.

La lógica de la résidentialisation se apoya en la idea de devolver al habitante un sentimiento de pertenencia, de recuperar una relación íntima y respetuosa con su entorno cotidiano. Esto se traduce en intervenciones que buscan redefinir los límites entre el espacio público y el privado, reorganizando patios, accesos y zonas comunes para dar mayor claridad y seguridad al uso del espacio. A menudo, se introducen nuevas áreas verdes, se mejoran los recorridos peatonales y se generan espacios intermedios —como pequeños jardines o terrazas compartidas— que invitan a una reapropiación más amable y personalizada del lugar de residencia.

Fig. 14. Proyecto de hábitat intermediaire. Barrio Les Fonses-Bois Vieux, Villeneuve-Tolosane. Arquitectos: Forgas y Jornet Llop Pastor arquitectos

Fuente: Forgas arquitectos & Jornet Llop Pastor arquitectos

En contraposición a estos enfoques más restrictivos, algunos arquitectos han reinterpretado la résidentialisation desde una mirada generosa y expansiva. Un caso paradigmático es el de Lacaton & Vassal y su intervención en el barrio de Grand Parc Bordeaux, donde el estudio llevó a cabo la transformación de tres grandes bloques de vivienda social. En lugar de demoler, como proponía el plan inicial, optaron por una estrategia de ampliación: cada apartamento fue dotado de una galería o invernadero, ganando superficie y luz sin necesidad de desplazar a los residentes. Esta operación no solo mejoró las condiciones de vida, sino que lo hizo sin recurrir a la estigmatización del barrio ni a la expulsión de sus habitantes, desafiando de forma crítica las lógicas tradicionales de renovación urbana.

Este enfoque ha sido promovido en parte por políticas como el programa “Politique de la Ville”, implementado en Francia desde los años 80 y reforzado con el Plan National de Rénovation Urbaine (PNRU), lanzado en 2003 por la Agence Nationale pour la Rénovation Urbaine (ANRU). Dicho plan apostaba por la reestructuración física y social de los llamados “quartiers sensibles” mediante intervenciones que incluyeran demoliciones, reconstrucciones y proyectos de résidentialisation como parte de un enfoque integral de mejora urbana.

En España estas prácticas sólo están avaladas por la normativa y no computan a efectos de edificabilidad, en aquellos casos derivados de la justificación de la reducción de la demanda energética y vienen penalizadas por la defensa ultranza del suelo público, cuando en gran parte de los polígonos residenciales, también llamados en su día ciudades satélite lo que precisamente sobra es el suelo público y lo que realmente falta es la calidad de vida en el espacio residencial.

5.5 La integración de nuevos modelos de vivienda: la vivienda cooperativa y “l’habitat intermediaire”

Finalmente, en un escenario urbano marcado por la especulación inmobiliaria, la homogeneización tipológica y la crisis del acceso a la vivienda, surgen con fuerza nuevas formas de habitar que desbordan los modelos tradicionales. Entre ellas, la vivienda cooperativa y el “hábitat intermediare” se perfilan como alternativas viables y necesarias para repensar la ciudad del futuro.

La vivienda cooperativa, desarrollada especialmente en países como Suiza, Uruguay o, más recientemente, en Francia y España, propone un modelo de propiedad colectiva, sin ánimo de lucro, donde las decisiones se toman de forma democrática entre los habitantes. Este modelo permite escapar de la lógica del mercado, asegurar la asequibilidad a largo plazo y fomentar una fuerte dimensión comunitaria. Más que un techo, ofrece una estructura de vida compartida, de apoyo mutuo y participación activa en la configuración del entorno habitado.

Por su parte, el “habitat intermédiaire”5 así llamado en Francia, representa una tipología híbrida entre la vivienda individual y la colectiva. Con frecuencia organizada en pequeñas agrupaciones, patios, pasajes o conjuntos de baja densidad, esta forma de vivienda ofrece la intimidad de una casa con jardín, combinada con las ventajas del colectivo: eficiencia energética, menor coste de suelo, vida barrial. Es una respuesta concreta a la fragmentación urbana, al aislamiento social y a la necesidad de un tejido urbano más poroso y adaptable.

Ambas formas cuestionan el paradigma dominante del bloque de vivienda estándar y promueven modelos urbanos más inclusivos, sostenibles y atentos a la diversidad de modos de vida. En un momento en que el derecho a la ciudad se ve cada vez más erosionado, recuperar estos formatos —que no son nuevos, pero sí renovados en sus principios— se vuelve esencial para construir ciudades más humanas, accesibles y resilientes.

6 Bibliografía

Bosch, J. & Gibaja, O. (2005): Habitatge i immigració: Claus per a una nova política d’habitatge. Barcelona: Fundación Nuevos Horizontes.

Castells, M. (1974): La cuestión urbana. Madrid: Siglo XXI.

Chombart De Lauwe, P.-H. (1960): Famille et habitation. Paris: CNRS.

Comisión Europea. (2021): Principios para un desarrollo urbano sostenible: La Nueva Carta de Leipzig. Bruselas: Dirección General de Política Regional.

Domański, H., Ostrowska, A., Przybysz, D. & Romaniuk, A. (2006): First European Quality of Life Survey: Social dimensions of housing. European Foundation for the Improvement of Living and Working Conditions. https://www.eurofound.europa.eu/en/publications/2006/first-european-quality-life-survey-social-dimensions-housing

Harvey, D. (2007): Espacios del capital: Hacia una geografía crítica. Madrid: Akal.

Institut Metropolità De Promoció Del Sòl I Gestió Patrimonial (Impsol) & Àrea Metropolitana De Barcelona (Amb). (2022): Protocolo de sostenibilidad – IMPSOL, AMB.
https://protocolsostenibilitat.amb.cat/es/inicio/

Ministry Of Housing And Local Government. (1961): Homes for today & tomorrow. https://archive.org/details/op1266209-1001/mode/2up

Ministerio De Vivienda y Agenda Urbana (Mivau). (2023): Sistema Estatal de Referencia del Precio del Alquiler de Vivienda. https://www.mivau.gob.es

Moliner, F. R. (1976): Manuales críticos de diseño del alojamiento español. Madrid: Ministerio de la Vivienda.

Moliner, F. R. (1977): La vivienda social. Madrid: Ministerio de la Vivienda.

Naredo, J. M. (2009): La economía en evolución: Historia y perspectivas de las categorías básicas del pensamiento económico. Madrid: Siglo XXI.

Observatori Metropolità De L’habitatge De Barcelona (Omhb). (2022): Informe 2022: El parc de lloguer amb protecció oficial a l’AMB. https://www.ohb.cat

Paricio, I. (2004): Llibre blanc de l’habitatge a Catalunya. Barcelona: Col·legi d’Arquitectes de Catalunya, Institut d’Opinió.

Paricio, I. & Sust, X. (1988): La vivienda contemporánea: Programa y tecnología. Barcelona: ITeC.

Ramón Moliner, F. (1976): Manuales críticos de diseño del alojamiento español. Madrid: Ministerio de la Vivienda.

Rueda, S., Cáceres, R., Cuchí, A. & Brau, L. (2006): El urbanismo ecológico: Su aplicación en el diseño de un ecobarri en Figueres. Barcelona: Agencia d’Ecologia Urbana de Barcelona.

Sassen, S. (1991): The global city: New York, London, Tokyo. Princeton, NJ: Princeton University Press.

Secchi, B. (2013): La ciudad de los ricos y la ciudad de los pobres. Barcelona: Gustavo Gili.

Simonato, C. (2008). Entre maison et appartement: L’habitat intermédiaire. Urbaplan. https://www.urbaplan.ch/wp-content/uploads/2012/12/fu_hab_intermediaire-2.pdf

Solà-Morales, M. De, Barba Casanovas, R., Serra Riera, E., Español Llorens, J., Roca Blanch, E., Martínez Tomás, J. M. & Jornet Forner, S. (1994): Ciutat funcional i morfologia urbana (Quaderns d’Arquitectes, nº 5). Barcelona: Edicions UPC.

Trilla, C. (2002) La política d’habitatge en una perspectiva europea comparada. Barcelona, Fundación “la Caixa”.

Trilla, C. (2004): La política d’habitatge en una perspectiva europea comparada. Barcelona: Fundación La Caixa.


  1. 1_ Ver: First European Quality of Life Survey: Social dimensions of housing. European Foundation for the Improvement of Living and Working Conditions. En este estudio se explica que el porcentaje de jóvenes —entre 18 y 24— 20 llega al 8,6 %, frente al 48 % de Grecia o Inglaterra; el 62 % en Finlandia o Suecia o el 40% en Francia.

  2. 2_ La revisión de los estándares de Bruselas en 1971, recoge las recomendaciones de Colonia de 1957 del Comité para la Vivienda de la International Union of Family Organizations I del Committee Permanente de la International Federation for Housing and Planning. Aquí recogemos un extracto del cuadro comparativo de las superficies mínimas en algunos países europeos por viviendas promovidas por el sector público:

    Personas / vivienda

    4

    5

    Superficie. Bruselas (1971)

    74,50

    92,00

    Superficie. Alemania

    64,30

    69,20

    Superficie. Bélgica

    62,00

    68,40

    Superficie. España

    56,00

    66,00

    Superficie. Francia

    60,00

    73,00

    Superficie. Inglaterra

    70,50

    82,50

    Superficie. Suecia

    62,00

    66,40

    Superficie. Alemania

    64,30

    69,20

  3. 3_ Es notable que, en la normativa de la vivienda social de la primera democracia española, ya se avanzó el concepto de perfectibilidad. Así, en el artículo 4.13 de Orden de 24 de noviembre de 1976. Normas Técnicas de Diseño y Calidad de las viviendas sociales: “Se consideran recomendables aquellas soluciones de diseño arquitectónico que, en lo que se refiere a los servicios comunes del edificio, sean aptas para la introducción de modificaciones y mejoras en correspondencia con la evolución de las necesidades de bienestar y economía de los grupos familiares, que forman la comunidad del edificio.”

  4. 4_ https://protocolsostenibilitat.amb.cat/es/inicio/

  5. 5_ https://www.urbaplan.ch/wp-content/uploads/2012/12/fu_hab_intermediaire-2.pdf