Estudios

CIUDAD Y TERRITORIO

ESTUDIOS TERRITORIALES

ISSN(P): 1133-4762; ISSN(E): 2659-3254

Vol. LVI, Nº 223, primavera 2025

Págs. 331-356

https://doi.org/10.37230/CyTET.2025.223.16

CC BY-NC-ND

Logo CC BY-NC-ND

Apropiación urbana como articulación de lo físico y lo social: la gestión de Campo de Cebada

Dione Escobar-García

Urbanista, Máster en ciencias en Diseño Urbano Universidad Central de Venezuela

Resumen: La apropiación urbana pone en el centro de la cuestión la noción del espacio público como un producto sensible a las prácticas sociales y ciudadanas. El artículo presenta algunos de los resultados obtenidos en una investigación llevada a cabo entre 2019 y 2021, centrada en la comprensión de la apropiación como proceso y fenómeno urbano, y que aborda, desde la reconstrucción histórica, un caso de estudio representativo: la gestión compartida de Campo de Cebada en la ciudad de Madrid. Resulta de interés exponer las lecciones aprendidas de una experiencia referencial de transformación temporal de un solar en desuso mediante la acción social, atendiendo a los elementos que, por un lado, generaron permanencia, trascendencia y notoriedad, y que por el otro, condicionaron su temporalidad, inestabilidad y abrupto final.

Palabras clave: Apropiación urbana; Espacio público; Acción social; Gestión compartida; Campo de Cebada.

Urban appropriation as the articulation of the physical and the social: the management of Campo de Cebada

Abstract: Urban appropriation places at the forefront the notion of public space as a product sensitive to social and citizen practices. The article presents some of the results obtained in research conducted between 2019 and 2021, focused on understanding appropriation as an urban process and phenomenon. It addressed, through historical reconstruction, a representative case study: the shared management of Campo de Cebada, in the city of Madrid. It is of interest to expose the lessons learned from a reference experience of the temporary transformation of a disused lot through social action, considering the elements that, on one hand, generated permanence, transcendence, and notoriety, and on the other hand, conditioned its temporality, instability, and abrupt ending.

Keywords: Urban appropriation; Public space; Social action; Shared management; Campo de Cebada.

Recibido: 27.02.2024; Revisado: 20.08.2024

Correo electrónico: dioneescobar@gmail.com Número ORCID: https://orcid.org/0000-0001-7176-9624

Los/as autores/as agradecen las críticas constructivas recibidas, los comentarios y sugerencias realizados por las personas evaluadoras anónimas, que han contribuido a mejorar y enriquecer el manuscrito original.

1. Introducción

El aislamiento del individuo frente a lo público tiene que ver, entre otros aspectos, con la limitada participación de la colectividad en la toma de decisiones, promovida por una forma de hacer política desde la gobernabilidad, más que desde la gobernanza, donde lo público sólo compete a la acción institucional. Esto se traduce en implicaciones sobre el uso y la función del espacio público; por un lado, aquel que no responde a las necesidades, sin atractivo, donde su sentido de uso es obsoleto; por otro, ajeno a los individuos, a sus vivencias y a sus experiencias, donde no hay dueños o responsables (Ardura, 2014, pp. 5-6), (Stang, 2015, p. 85). La consecuencia, espacios de no permanencia, desolados y físicamente degradados.

Partiendo de la constatación de que el espacio público más que un hecho físico, es un producto sensible a la vida social, a los intercambios ciudadanos, a las tensiones políticas y económicas y, en general, a los cambios que en la realidad se producen, resulta inevitable el abordaje de la apropiación urbana como noción que permite explicar las relaciones entre las personas y los lugares, y cómo la misma repercute en la producción y transformación de los espacios urbanos.

El objetivo de este artículo es presentar los hallazgos obtenidos del estudio de la gestión compartida de Campo de Cebada (2011-2017), por medio del cual se intenta describir uno de los procesos más relevantes de apropiación que se dio en un solar en desuso en la ciudad de Madrid durante seis años consecutivos, como parte de la oleada de acciones contestatarias que se llevaron a cabo en el ámbito de lo público, y que surgieron del movimiento de los indignados —o movimiento social 15M— en respuesta a algunas medidas políticas llevadas a cabo en medio de la crisis económica española de 2007.

La intención es dar a conocer las lecciones aprendidas que se extraen de un proceso que puso en evidencia la capacidad que tuvo la acción social de transformar espacios de la ciudad, a partir del establecimiento de nuevas formas de hacer y de la generación de un nuevo orden social. Se atiende muy especialmente a los elementos que, por un lado, generaron permanencia, trascendencia y notoriedad, y que, por el otro, condicionaron su temporalidad, inestabilidad y abrupto final.

El artículo está enmarcado en una investigación más amplia desarrollada por la autora entre el 2019 y el 2021 como requisito para la obtención de un máster en ciencias en Diseño Urbano por la Universidad Central de Venezuela.

2. Metodología

La investigación fue enfocada desde la complejidad de Morín (2005) y desde la aproximación a sistemas —introducida en la segunda mitad del siglo XX y que es recogida por Morales Tucker (1991)—, teniendo en cuenta el comportamiento humano como un elemento valioso cuando se estudian los fenómenos urbanos. Lejos de abordajes reduccionistas, la necesidad de comprender las relaciones complejas entre el objeto de estudio y los aspectos que lo condicionan determinó el carácter cualitativo e interpretativo de la investigación.

Atendiendo al enfoque, se hace uso del estudio de caso como método para el estudio de fenómenos contemporáneos (Martín, 2013), que permite el entendimiento de las dinámicas presentes en contextos singulares (Eisenhardt, 1989 en Martínez, 2006). Para ello, se seleccionó como único caso de estudio la plaza Campo de Cebada —en adelante Campo de Cebada— como caso representativo, que reunió las condiciones necesarias para comprender, desde la descripción y el análisis profundo, el proceso de apropiación urbana. Existen algunos elementos que justificaron la selección de este espacio.

Es así como se propuso un estudio de caso, que partiera de la reconstrucción histórica del fenómeno, desde tres escalas de análisis —la ciudad, el barrio y el espacio—, y atendiendo a cuatro dimensiones de análisis: lo físico-morfológico, lo funcional (usos y sentidos de uso), lo sociocultural y lo comunicacional (comunicación entre agentes, difusión de actividades, etc.).

En coherencia con el enfoque desde donde se pretendía proceder, y teniendo en cuenta que la forma de abordaje sería la aproximación histórica, se diseñó un proceso metodológico basado en el Protocolo del Estudio de Caso (Yin, 1989, en Martínez, 2006), integrado por fases1 que describen las actividades realizadas para la consecución de los objetivos de la investigación (Fig. 1).

Fig. 1 / Procedimiento metodológico de la investigación en relación al protocolo que se sigue en investigaciones de tipo caso de estudio

Fuente: Elaboración propia, con base en Shaw (1999) en Martínez (2006)

3. La apropiación urbana y su carácter articulador

3.1 Consideraciones teóricas y perspectivas

Explicar y describir el proceso de gestión compartida de Campo de Cebada pasa por la compresión, en primera instancia, del concepto de apropiación urbana. Desde la investigación de la que emana el artículo que aquí se presenta, se construyó un marco teórico-conceptual3 desde el cual se fundamenta la aproximación al tema y al caso de estudio. Si bien no es intención del artículo ahondar en el constructo teórico formulado, si se hace un esfuerzo por sintetizar las claves de la noción de la apropiación urbana como acción social en el espacio público.

Atender a la discusión en torno a la apropiación urbana sólo es posible si valoramos inicialmente algunas consideraciones teóricas:

La dinámica propia de la ciudad y los comportamientos de sus gentes pueden crear espacios públicos que jurídicamente no lo son, o que no estaban previstos como tales. En todos estos casos lo que define la naturaleza del espacio público es el uso y no el estatuto jurídico (Borja, 2000, p. 13).

Antes de valorar cómo estas consideraciones participan en la conceptualización de la apropiación, resulta relevante mencionar que han sido muchos los autores, que, desde diferentes enfoques, han abordado esta noción, allí radica la complejidad de sintetizar su significado. Conviene destacar las voces y las perspectivas desde donde se articula la investigación.

3.2 La apropiación como proceso

Un sitio, una plaza, una calle, y cualquier espacio urbano de carácter público es susceptible a ser apropiado si física y funcionalmente no atiende a las necesidades colectivas de los ciudadanos que habitan el lugar; inclusive un solar sin uso aparente puede ser apropiado, entendiéndolo como la oportunidad de producir un nuevo espacio de socialización ciudadana (Lefebvre, 2013). Muchos son los autores que coinciden en que la apropiación es un proceso de adaptación o de reajuste que permite dar a un espacio un uso y una función diferente a la que tenía originalmente (Arteaga, 2000; Vidal & Pol, 2005; y Fonseca, 2014).

Al ser un proceso, los autores resaltan el valor del tiempo y del dinamismo en la apropiación, que se vincula con la idea del habitar, que tienen su origen en el uso cotidiano; a esto se refería Fonseca (2014) con “humanización del espacio”.

Es así como, aun cuando Lefebvre (2013) fuera categórico en que la apropiación no es propiedad —se intuye que se refería a la propiedad en términos administrativos o jurídicos—, resulta imposible no asociar este concepto a la idea de pertenencia, ya que el habitar trae consigo una serie de cargas afectivas que hacen que los usuarios pasen de ser actores pasivos a actores activos —dueños y corresponsables—.

El proceso de apropiación describe las relaciones que el ciudadano experimenta con los lugares, es por ello que puede decirse que se encuentra constituido por dos componentes básicos: la acción-transformación y la identificación simbólica o relación afectiva.

Partiendo de los aspectos que definen la apropiación urbana como un proceso, se puede hablar hacer una simplificación4 de las etapas que le son le son propias y que se enuncian a continuación (Fig 2).

Fig. 2 / Simplificación de las etapas que conforman el proceso de apropiación urbana

Fuente: Elaboración propia

3.3 La apropiación como articulador de nociones

Desde la investigación se considera a la apropiación urbana como un articulador, ya que este concepto permite establecer un diálogo entre las nociones de espacio público, discusión colectiva y participación, y además, entre los elementos que definen y componen cada una de las mismas (Fig. 3).

Nota: La intención de la figura que se muestra, es resaltar que hay componentes que están dentro de la conceptualización de más de una noción, por lo que la relación entre las nociones se hace más que evidente.

Fig. 3 / Nociones teóricas y sus componentes básicos

Fuente: Elaboración propia

Atendiendo a ese diálogo provocado, se extrae que el significado es uno de los elementos de mayor importancia; si no hay vínculo entre el lugar y los usuarios (por la importancia que tiene para el barrio, por la relevancia que tiene para los vecinos, por el uso y del sentido de uso que se le ha dado a lo largo de la historia, etc.), no existirá implicación ciudadana, y por lo tanto, no existirá acción social, esta última entendida como el ejercicio a través del cual se dota de función y se transforma el espacio físico.

En definitiva, la apropiación está hecha de significados, símbolos y vínculos que son producto del quehacer cotidiano del ciudadano, y que, a la larga, da origen a la acción social. Estos componentes se relacionan directamente con la noción de espacio público como hecho social y cultural y con el concepto de corresponsabilidad dentro de la teorización de la participación ciudadana. Todos estos procesos viven en la esfera de lo público, cuyo ámbito de materialización es el espacio público.

Como síntesis, se puede hablar de la apropiación como el nivel más elevado de participación que puede ejercer el ciudadano, que convierte al individuo no solo en consumidor del espacio público, sino en un agente activo capaz de producir y gestionar el mismo. La apropiación es un proceso que permite explicar los vínculos que las personas mantienen con los lugares: un espacio apropiado reporta un alto nivel de socialización y de interés, que es lo que permite, a la larga, que sea susceptible de ser transformado por la acción colectiva en función de las necesidades de aquellos que lo habitan.

4. Factores que propiciaron el surgimiento de la gestión compartida del espacio público

En el contexto español, y en particular en la ciudad de Madrid, la apropiación como proceso se manifiesta en la gestión compartida de bienes públicos, en donde se incluye el espacio público, los equipamientos y los servicios públicos.

Atendiendo a las circunstancias antes expuestas, y sabiendo cómo se ha instrumentalizado la apropiación urbana en el ámbito de la ciudad de Madrid, resulta relevante hacer una descripción de los principales factores que desencadenaron la aparición de modelos de gestión compartida, y que determinaron el origen y el funcionamiento de Campo de Cebada como uno de los casos de mayor notoriedad.

4.1 La debilidad institucional y los movimientos sociales como contraparte

La forma de hacer política desde la gobernabilidad más que desde la gobernanza, donde lo público sólo compete a la acción institucional, se vio acentuado con la crisis económica de España (2007-2014), en donde se amplificaron los efectos de políticas desacertadas, desencadenando una frustración colectiva que puso de relieve la debilidad institucional.

La debilidad institucional puede ser entendida desde dos aristas: por un lado, desde la incapacidad en la resolución de las problemáticas que afectan al ciudadano, por no entender los problemas desde los afectados y de allí que las soluciones no se ajusten a sus necesidades, aspiraciones y requerimientos; por el otro, desde la inacción o falta de atención por resultar poco importante, políticamente conflictivo o por las limitaciones económicas y operativas que impiden la ejecución de acciones por parte del ente gubernamental.

Frente a ello, se produjo en el país, y sobre todo en Madrid, un clima de insatisfacción que se puso en evidencia a través de la realización de múltiples manifestaciones ciudadanas desde donde se reclamaban cambios en la forma de hacer política y se reivindicaba la necesidad de hacer mejoras en el ámbito social. Se pusieron sobre la mesa nuevos temas, nuevos conflictos y la necesidad de que participaran nuevos actores en la escena pública. El Movimiento de los Indignados, o Movimiento 15M, permitió trasladar las reivindicaciones de lo nacional a los barrios e impulsó el surgimiento de iniciativas que empezaron a plantear formas diferentes de gestionar ámbitos de la vida pública y urbana: pasar del Estado como único ente regulador a un modelo bottom-up (abajo-arriba), donde los sectores sociales organizados se autorregularan.

4.2 Clima social estimulante e instauración de un nuevo orden social

En respuesta, no solo al poder institucional, sino a la forma en cómo se estaban haciendo las cosas, empiezan a surgir una oleada de colectivos5 y grupos de individuos organizados (vinculados al mundo de la arquitectura y la participación), como alternativas a las grandes consultoras y corporaciones, que propugnan ideas y desarrollan alternativas para la solución de algunos de los problemas de la ciudad, desde abordajes holísticos que ponen en el centro la participación del ciudadano.

El Festival de la Noche de Blanco (2010) marcó un punto de inflexión. El evento permitió a los colectivos darse a conocer como actores dentro de este nuevo orden social. Además, en medio de esa programación cultural reivindicativa, dichos colectivos ciudadanos y urbanos fueron capaces de despertar el interés ciudadano en torno al futuro de espacios abandonados de la ciudad, que el ayuntamiento había dejado desmantelados, en medio de una crisis.

Campo de Cebada surge como un producto reactivo frente al orden establecido, frente a la falta de participación, de activismo social, de presencia de la comunidad en las políticas públicas y en los procesos de toma de decisión. Es así como inicialmente, con este modelo de autogestión heredado de Esta es una plaza6, se crea un clima de aceptación social, donde se potencia la masa crítica atenta a lo que ocurría no solo en el espacio, sino en todo el barrio. En general, se crea un entorno de gran interés colectivo, con acciones de apoyo de la iniciativa y un uso constante del espacio.

4.3 La participación y las prácticas sociales en el marco legal

Es cierto que la participación es reconocida en la Constitución Española de 1978, pero, no es menos cierto que es en el reglamento de participación de cada municipio —y en particular el Reglamento de Participación de la ciudad de Madrid (Reglamento Orgánico 22/2004, del 31 de mayo de 2004)—, en donde se establecen y reconocen los mecanismos desde donde puede ejercerse la participación de forma más efectiva.

Con el reglamento y con las subsiguientes normativas vinculadas y aprobadas posteriormente —el Reglamento Orgánico de la función de los Foros Locales (Reglamento Orgánico 3/2017, del 10 de enero de 2017) y la Ordenanza de Cooperación Público-Social (Ordenanza Municipal 35/2018, del 13 de mayo de 2018)—, es que se reconocen otras maneras de gestionar los bienes comunes de dominio público, diferentes a la típica gestión gubernamental que el Estado realiza sobre muchos de los lugares que conforman la ciudad.

El origen de la gestión compartida de Campo de Cebada fue posible gracias a la existencia de un instrumento como la cesión de uso o de actividad. Este mecanismo permitía a al gobierno local delegar la administración y vigilancia de un espacio público, de un equipamiento o de servicio a la ciudadanía organizada en una asociación civil legalmente constituida, entendiendo que siempre que la colectividad esté organizada —asociacionismo— y avalada por un marco normativo, tendrá mucha más capacidad de exigencia, de demanda y de decisión.

Se pasa de una gestión unilateral de lo público a una gestión compartida, que reconoce la importancia de la participación de los agentes sociales y la capacidad que tienen para manejar, controlar y gestionar su realidad.

5. El modelo de gestión compartida de Campo de Cebada

La crisis económica, que inicia en 2007, se intensifica en 2008 y se extiende hasta 2014, representa un punto de inflexión en lo que serían las políticas públicas en el ámbito local, que repercutieron en la dinámica de Madrid, y concretamente, en el funcionamiento de la plaza de la Cebada y su contexto inmediato, el barrio de La Latina.

Previo a la crisis, se había planteado la transformación del centro de la ciudad, en donde se incluía la renovación del barrio de La Latina. Ya en 2008, se hicieron efectivos los fondos del Plan Español para el Estímulo de la Economía y el Empleo o Plan E (Ministerio de Hacienda del Gobierno de España, noviembre 2008), para intentar paliar las dificultades de financiación y para recuperar el crecimiento y el empleo.

Desde el ayuntamiento, se utilizan los recursos provenientes del Plan E (Ministerio de Hacienda del Gobierno de España, noviembre 2008) para hacer efectivo el derribo del polideportivo municipal de La Latina, única dotación deportiva en el distrito Centro, por problemas estructurales, y por la necesidad de uno nuevo y mejor. Una vez se materializa el derribo, y sin contar con inversión para la posterior fase de construcción de una nueva dotación que sustituya a la primera —de acuerdo con lo expresado por las autoridades municipales—, aparece un agujero de hormigón de 2500 m², un solar vacante, sin uso y abandonado en el medio del barrio (Fig. 4).

Fig. 4 / Secuencia de imágenes: (a) construcción del polideportivo de La Latina (1966), (b) el polideportivo ya en funcionamiento (s./f.), y (c) derribo de la dotación (2000)

Fuente: Página de Flickr de Campo de Cebada (imágenes “a” y “b”) y página web oficial de la Federación Regional de Asociaciones de Vecinos de Madrid FRAVM (imagen “c”)

“Si tú tienes un proyecto de una piscina, y lo derribas y sabes perfectamente que no tienes dinero para edificar otra, estás engañando a la gente, porque ya no solo quitas la piscina, sino que quitas cualquier posibilidad de hacer algo. Ahora, luego de 10 años, es que están buscando construir el nuevo polideportivo, después que han pasado muchísimos años de protesta, muchísimos años de persuadir a los diferentes ayuntamientos de que realmente no se puede dejar tirada a la ciudadanía de esta manera” (opinión expresada por Pedro Herrero recogida en Escobar, 2021, p. 150)7.

Es con la instalación de una estructura efímera en el solar (denominada City Island), como parte de la programación del Festival la Noche en Blanco de Madrid (2010)8, que por primera vez se abre el espacio al barrio y a los vecinos, siendo el detonante de un diálogo generalizado sobre el destino y la función que un espacio como este podría tener para la comunidad (Fig. 5).

Fig. 5 / Evento la Noche de Blanco en la Plaza de la Cebada (2010)

Fuente: Página web oficial de ConstructLab

“(…) un movimiento informal de personas vinculadas al barrio, de vecinos y vecinas empiezan a pensar qué poder hacer hasta que se construya el polideportivo, sin perder la perspectiva que lo que quieren es la construcción de un polideportivo en un distrito donde no hay uno público. Entonces hacen una petición de utilización del espacio, y lo que hacen es que se hace a través de una entidad ya constituida, un grupo de entidades vecinales”. (opinión expresada por Begoña García Santiago recogida en Escobar, 2021, p. 152)9.

De esta conversación abierta, surge el Proyecto de Gestión Compartida Campo de Cebada, una iniciativa que demandaba el uso comunitario del solar, en tanto estuvieran paralizadas las obras de un nuevo polideportivo, y que se constituye formalmente a través de una Autorización de uso temporal y gratuito del inmueble de Titularidad Municipal, otorgada por el Ayuntamiento de Madrid, a través del Decreto de autorización de uso temporal y gratuito del inmueble de titularidad municipal situado en la plaza de la Cebada a favor de la Federación Regional de Asociaciones de Vecinos de Madrid (FRAVM), el 18 de marzo de 2011.

Del 15 de mayo de 2011 hasta el 15 de diciembre de 201710, Campo de Cebada abrió sus puertas y funcionó bajo un modelo de autogestión impulsado por un grupo de vecinos y personas vinculadas al barrio.

La gestión compartida describe un fenómeno de apropiación, donde se adapta física y programáticamente un solar para ejercer un uso distinto al original o anterior. Se pasó de un solar vacío y sin uso, a un espacio público multifuncional con una amplia variedad de actividades, principalmente culturales y cívicas.

Si bien, se ha abordado el espacio desde una compresión integral11 atendiendo a su evolución y a los cambios que ha tenido a lo largo del tiempo, a efectos de los objetivos de este artículo, interesa describir especialmente los aspectos que definen el modelo de autogestión de Campo de Cebada durante el período de funcionamiento de 2011 a 2017, ya que es el momento en que se identifica un proceso de apropiación pautada por una acción social continuada, y por el reconocimiento administrativo de esa acción social a través de una cesión de uso temporal. Es así como, el modelo de gestión se puede describir partiendo de los siguientes seis aspectos clave.

5.1 El espacio

5.1.1. La Latina como contenedor de Campo de Cebada

La plaza de la Cebada se encuentra dentro del barrio de Palacio en el distrito Centro, uno de los 21 distritos que conforman el municipio de Madrid. La zona de La Latina (no confundir con el distrito de La Latina) se articula dentro del perímetro de un triángulo invertido cuya base es la calle Segovia (norte), el lado este sería la calle Toledo, el oeste la Gran Vía de San Francisco y la calle Bailén y su vértice la Puerta de Toledo, remate de la calle homónima (Paisés, 2017). Tiene una superficie de 26,62 hectáreas, lo cual representa el 36% de la superficie total del barrio de Palacio y el 5% de la superficie del distrito Centro (Fig. 6).

Fig. 6 / Delimitación del barrio La Latina

Fuente: Elaboración propia, con base en la Cartografía del Distrito Centro de Madrid escala 1:1000 del Geoportal del Ayuntamiento de Madrid (2013 y 2016)

En general se puede afirmar que el barrio siempre ha sido centro de concentración de numerosas actividades comerciales y culturales, de allí que se le brindara el apodo de “barrio bohemio” (Paisés, 2017).

Su atractividad comercial y cultural se debe a su localización estratégica y a su fácil comunicación con otros barrios, gracias a la presencia de importantes ejes conectores y de estaciones de metro. La Latina siempre ha tenido una gran vitalidad, difícil de igualar por otros barrios madrileños con características similares.

Dentro del barrio, destacan como principales nodos de concentración de actividad y equipamientos, de menor a mayor importancia: plaza de Cebada (cruce de calles, más que una plaza formalmente conformada) y el Mercado de Cebada, Puerta de Toledo, y la plaza Mayor y sus adyacencias (Fig. 7)

Fig. 7 / Encaje territorial del caso de estudio: Plaza La Cebada, barrio de La Latina, Madrid

Fuente: Elaboración propia

Fuente: El campo de cebada/la ciudad situada en la página web de Plataforma Arquitectura https://www.plataformaarquitectura.cl/

5.1.3. El espacio de Campo de Cebada (2011-2017)

Una vez se derriba el polideportivo, el solar solo es ocupado por el mobiliario urbano (gradas, bancos, mesas y pérgola) que se heredó de la programación específica creada durante el Festival la Noche de Blanco (2010). El diseño de estos elementos físicos que, luego del evento, se reutilizaron para dar soporte a las actividades llevadas a cabo en el espacio, fueron diseñados y construidos por el colectivo alemán ConstructLab, en colaboración con otros colectivos y con los vecinos de La Latina.

Campo de Cebada se concibió como un espacio multifuncional y polivalente, que quiso acoger una gran diversidad de actividades y propuestas, todas ellas dentro del ámbito de lo cultural, lo social, lo artístico y lo deportivo, respondiendo así a las necesidades y a la vocación del sector.

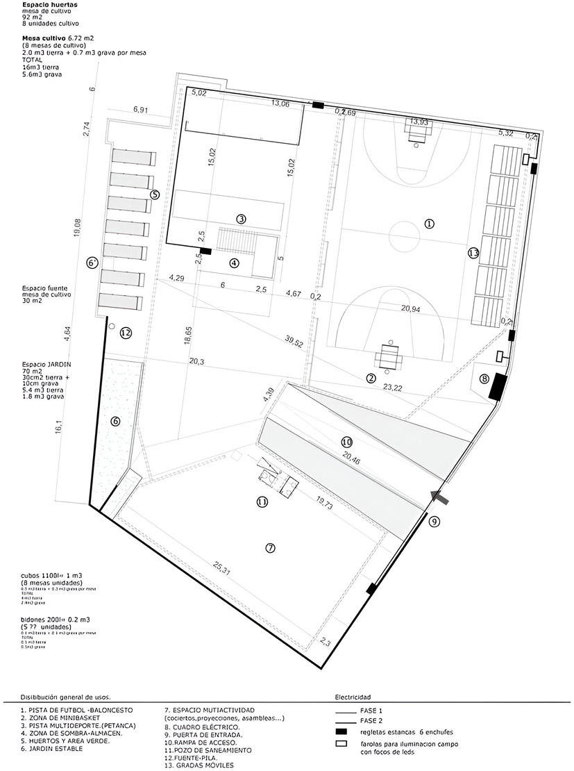
El solar contaba con unas puertas que se abrían por la mañana y se cerraban por la tarde, siendo el encargado un miembro del grupo motor. No se reservaba a nadie el derecho de admisión, toda persona podía entrar y realizar la actividad, individual o colectiva, pasiva o activa que quisiese, como en cualquier otra plaza o espacio de Madrid. La simbología de las “puertas abiertas” demostraba el carácter que poseía Campo de Cebada (Fig. 8 y 9).

Fig. 8 / Plano de la plaza de la Cebada y su entorno inmediato durante la cesión temporal de uso (2011-2017)

Fuente: Elaboración propia

Fig. 9 / Plano de la planta organizativa de Campo de Cebada durante la cesión temporal de uso (2011-2017)

5.2 Actores clave y responsables

Previo a la instauración del modelo de gestión compartida de Campo de Cebada, hubo una serie de colectivos que resultaron claves en el germen de la iniciativa, específicamente en el proceso de reflexión en torno al futuro que tendría el solar, y que ayudaron en la construcción de algunos de elementos que se utilizaron a lo largo de la cesión de uso del espacio. Aun cuando una vez iniciada la autogestión se desvincularon del proceso, estos actores resultaron relevantes por el rol de aliados que tuvieron al inicio del proceso (López, 2012; Gallardo, 2015; Gómez, 2015).

Ahora bien, en cuanto a las entidades que estuvieron de forma más estable durante el proceso de gestión compartida de Campo de Cebada, tenemos que la responsabilidad de la gestión del espacio fue llevada a cabo fundamentalmente por la Federación Regional de Asociaciones Vecinales de Madrid (FRAVM), la Asociación de Vecinos del Centro-La Latina (AVECLA) y por los miembros permanentes del grupo motor de Campo de Cebada. A su vez, se destaca la participación de otros actores: el ayuntamiento, los organizadores de eventos y personas que fueron usuarias del espacio o disfrutaron de las actividades realizadas. A continuación, se hace una breve descripción del rol que tuvieron cada uno de los involucrados directamente en el proceso.

Todos los miembros permanentes asumían las mismas cargas de responsabilidad, por lo que se organizaban bajo un esquema horizontal de jerarquías. Se repartían las actividades cotidianas relativas a la apertura y cierre de puertas, el cuidado, la limpieza y el mantenimiento del lugar.

Por su parte, también existían las tareas de supervisión o apadrinamiento de actividades o eventos. Cada miembro, en reunión semanal, decidía cuál actividad apadrinaba para supervisar su correcta puesta en marcha. Cualquier persona que participara en el proyecto y demostraba horas de compromiso, podía tener un mayor grado de responsabilidad y podía pasar a formar parte del grupo de miembros permanentes.

Este rol limitado que tenía el ayuntamiento, como mero facilitador y supervisor (a lo lejos), que no se inmiscuyó en la gestión del espacio, fue valorado muy positivamente por el grupo motor.

“En el momento en que viene el ayuntamiento y dice cómo tienen que ser las cosas, se pierde libertad de pensamiento y se pierde voluntad de hacer. Entonces desde la acción y desde la libertad de pensamiento, tú al ayuntamiento le puedes decir lo que tiene que hacer, porque en realidad ellos son servidores de la ciudadanía”. (opinión expresada por Pedro Herrero recogida en Escobar, 2021, p. 162)12.

Desde una mirada personal, si bien la entidad local y sus organismos deben ser facilitadores de procesos, también deben mantener sus labores de control, lo cual se fue perdiendo a medida que avanzaba el proceso, esto hubiese garantizado la ausencia de incidentes que hubiesen atentado contra el orden público del barrio.

Eran los encargados, una vez se aprobará la actividad o evento, de las tareas de montaje, ejecución y limpieza posterior.

5.3 La organización

El grupo gestor se valió de la asamblea ciudadana13 como mecanismo para la toma de decisiones sobre asuntos relacionados con el funcionamiento y la gestión del espacio. Desde la asamblea se coordinó lo que sucedió en el espacio —actividades, duración, disponibilidad—; se mediaron los conflictos o problemas que se suscitaron; se discutieron las solicitudes de actividades y se definieron los supervisores o padrinos de cada actividad o evento. Básicamente fue un órgano de coordinación.

Las reuniones en asamblea se efectuaban en función del flujo de actividades. Dentro de la asamblea podían participar (Fig. 10):

Fig. 10 / Cartografía sensible: mapa de actores vinculados a la gestión compartida de Campo de Cebada

Fuente: Elaboración propia

5.4 Las actividades

Bajo la premisa de que dentro de Campo de Cebada había cabida para todo y para todos, distintas actividades podían coexistir en el mismo espacio. Durante la gestión compartida, se impulsaron una gran diversidad de actividades, que pudieron categorizarse atendiendo a su carácter (espontáneo, programado, fijo, puntual) y a su tiempo de vida.

Eran discutidas en asamblea, agendadas en el calendario de actividades y contaban con un padrino que supervisaba la correcta puesta en marcha de la actividad. Podían ser impulsadas por agentes u organizaciones externas, como por los mismos miembros permanentes o participantes.

Hubo, a lo largo del tiempo de funcionamiento del espacio, cuatro actividades de mucha repercusión: el Cantamañanas o micrófono abierto, huertos urbanos, música de grupo, y kickball.

Eran actividades generalmente impulsadas por agentes externos, por lo que necesitaban ser aprobadas en asamblea. Además, debían tener un propósito social, no debían tener intención de lucro y debían disponer de recursos para costear los gastos de montaje y desmontaje. Una vez aprobadas y agendadas, debían ser apadrinadas por un miembro permanente.

5.5 Las reglas

Llamadas las normas de sentido común por parte del grupo motor, y que se basan en la noción de que la libertad debía estar mediada por un orden social marcado por unos acuerdos de comportamiento básico (Arendt, 2009; Delgado, 2008).

“Pues fundamentalmente normas de sentido común, es decir, tú no podías poner música durante demasiado tiempo muy alta porque molestabas a los vecinos; tenías que tener el espacio limpio tal y como te lo daban; debía ser una actividad abierta, no se podía cobrar entrada para ningún acto; y se permitía, digamos, la venta de algunas bebidas, pero solo en algo pequeño en la medida en la que había que financiar esa actividad”. (opinión expresada por Pedro Herrero recogida en Escobar, 2021, p. 257)14.

Haciendo una síntesis, las normas que debían cumplir las personas que hacían vida en el espacio, así como los organizadores de los eventos eran:

5.6 Los recursos materiales, humanos y económicos

Entre los recursos con los que contaban los miembros permanentes para la gestión del espacio, se encontraban:

Desde el inicio del proyecto, se reutilizaron y reciclaron diferentes materiales provenientes de otros espacios y de otros eventos realizados antes del inicio de la gestión compartida (jardinera, pallet de madera, etc.). La mayor parte de ese material fue custodiado por los miembros gestores para ser usado como mobiliario urbano.

Además, se contó con agentes externos implicados que participaron en la generación de ideas para transformar el espacio y en la proposición de agendas culturales que podrían enriquecer la experiencia en La Cebada. Fue común la implicación de universidades, embajadas y asociaciones culturales.

6. Lecciones aprendidas

La gestión compartida de Campo de Cebada describe un proceso de apropiación urbana, donde se adapta física y programáticamente un solar a un uso distinto al original o al anterior: se pasó de un solar sin uso a un espacio público donde se desarrollaron diferentes actividades que fomentaron la socialización y el encuentro ciudadano.

Partiendo de la revisión del caso, se extraen algunas lecciones aprendidas sobre la inestabilidad y la trascendencia del proceso, haciendo énfasis en los en los elementos que propiciaron la iniciativa y que marcaron su característico funcionamiento.

6.1 La inestabilidad del proceso de gestión compartida

La inestabilidad fue un elemento que condicionó el funcionamiento de Campo de Cebada, y que estuvo marcada por tres aspectos fundamentales: la incerteza y la incertidumbre, la libertad mal entendida y la exclusión.

6.1.1 La temporalidad y la incertidumbre

La apropiación de Campo de Cebada estuvo irremediablemente condicionada por el factor tiempo, el cual determinó el período de operatividad del espacio, el nivel de implicación de los agentes participantes en el proceso, y los límites hasta donde podía llevarse a cabo la transformación física del lugar.

Desde el derribo del polideportivo La Latina, producto de una decisión política, y antes de la aparición del solar, ya estaba prefigurado el destino del espacio y el rol que jugaría en el sistema urbano del barrio, una vez pasada la crisis y una vez la administración contará con la posibilidad de construir una nueva dotación deportiva15. Es así como la iniciativa de gestión compartida estuvo siempre marcada por el inminente desalojo, por lo que el grupo gestor tuvo que lidiar con la incerteza y la incertidumbre de que en cualquier momento se les podía exigir el cese de actividades.

Esta sensación de inestabilidad incidió directamente en la gestión del solar. El hecho de que la gestión se llevará a cabo mediante una autorización que debía ser renovada anualmente, y, además, la posibilidad de que el ayuntamiento revocara el permiso provocó que las actividades y eventos debieran ser planificados en función del año “seguro” del que se disponía, es decir, no había margen para desarrollar un programa cívico-cultural con una vida superior a un año.

Debido a la incertidumbre, también se hizo palpable el alto nivel de dedicación que asumieron los agentes responsables de la gestión, por dos razones fundamentales: (a) por considerar que debían sacar el máximo provecho de una experiencia que era percibida como pasajera; y (b) porque tuvieron que asumir todas las responsabilidades de la FRAVM y AVECLA (tramitación de diferentes permisos para continuar la gestión) una vez que estas se desligaron de la iniciativa. La complejidad de la labor devino en el agotamiento del grupo gestor, que, aunado a la falta de compromiso e implicación de otros participantes en tareas de responsabilidad —falta de generación de relevo— provocó el cierre del espacio y el fin de la gestión seis años después de haberse iniciado el proceso.

“(…)cada vez era más difícil continuar con la labor de Campo de Cebada, porque no se sumaba, eso me parece algo inexplicable pero bueno, no se sumaba gente nueva, siempre estábamos los mismos y entonces dijimos “¿alguien quiere coger el relevo?”, y la propia gente joven que estaba en Campo de Cebada, realmente no entendían…se involucraban como ocupantes del espacio pero no como gestores, entonces ante esa imposibilidad, pues no pasó nada, o sea, el día que cerramos la gente se extrañó un poco pero no hubo manifestaciones ni nada, dejamos el espacio, nos fuimos y ahí pasó…”

“(…) Pero ya te digo, fueron esos dos factores, uno que iban a hacer las obras y evidentemente queríamos dejar un buen sabor de boca también, y, por otro lado, que realmente no teníamos relevo, sobre todo los que llevamos Campo de Cebada adelante en los últimos tiempos. Nadie más quería…oye que podemos hacer ahí, no había manera, se hizo tan complicado, tan difícil que dijimos si alguien más aparece, y cerramos. Y cerramos una página muy bonita y muy vital” (opinión expresada por Pedro Herrero recogida en Escobar, 2021, pp. 258-259)16.

A su vez, se puede decir que el futuro incierto también fijó los límites del acondicionamiento del espacio.

Fue gracias al urbanismo táctico y al reciclaje urbano que pudieron generarse algunos cambios para dotar de amenidades el espacio. La temporalidad trajo consigo, por un lado, restricciones con respecto a los elementos que podían instalarse (según el acuerdo con el ayuntamiento, sólo estaban permitidas instalaciones ligeras, fácilmente removibles y sustituibles); y por el otro, la mínima inversión por parte de los responsables de la gestión, ante el riesgo de perder lo invertido.

En síntesis, la temporalidad, la incertidumbre y el futuro incierto son determinantes en la construcción de lo tangible, lo físico y lo perdurable. En escenarios de inestabilidad es difícil construir espacios permanentes.

6.1.2 La libertad mal entendida en la perdurabilidad del proceso

Al tratar de comprender la apropiación urbana, es importante ahondar en el significado que tiene la libertad en este proceso, ya que termina siendo un elemento vital que puede garantizar la inclusión social y la perdurabilidad en el tiempo.

La libertad, en su sentido general, es un derecho fundamental, está vinculado con el ejercicio de la ciudadanía, y es definida como la facultad de obrar de una u otra forma asumiendo la responsabilidad de tales actos (Real Academia Española [RAE], 2020, definición 1).

Partiendo de lo anterior, se tiene que la libertad tiene que ver con la esfera de lo público, con lo que es accesible a todos, y en donde existe el derecho a participar. Sin embargo, esa libertad debe estar mediada por unos acuerdos de comportamiento básico, que, según Arendt (2009) y Delgado (2008), son necesarios para la convivencia. Los miembros que gestionaron Campo de Cebada llamaban estos acuerdos reglas del sentido común, aquellas que permitirían no violentar el derecho del otro, en tanto se hiciera uso del espacio. Respeto, tolerancia y solidaridad eran algunos de los valores bajo los que se arropaba la iniciativa.

En la práctica, se confundió el derecho al libre acceso y a la libre participación con el “todo se puede, todo se permite”. La libertad mal entendida, junto con la falta de autoridad de los miembros gestores y la no injerencia de la administración pública a través de las fuerzas del orden, desencadenaron problemas de convivencia (consumo y venta de alcohol y drogas y situaciones de violencia) que provocaron el descontrol, y a la larga, la estigmatización del espacio. Esta situación generó malestar entre vecinos y residentes del barrio, y precipitó el cese de la gestión compartida, ya que los miembros gestores tenían la sensación de que se les había ido de las manos.

“(…) Al estar Campo de Cebada en nuestro territorio, pues teníamos relación con la gente de allí, tanto en un inicio porque era una idea bonita, como posteriormente por las molestias que generaban a la gente que vivía directamente encima de ese lugar, subido a la masificación de gente que se iba un poco de las manos, gente de afuera que no venía a participar en las actividades que se desarrollaban, sino que se sentaban allí a beber, se traían sus aparatos de música, venían los rateros a vender alcohol, siempre se generan ciertas molestias”.

“(…) incluso había un problema de venta de drogas también. Lógicamente no tenía nada que ver con los organizadores, pero claro, una vez que eso es un sitio abierto, llega un montón de gente, pues…siempre hay esos problemas. Luego, la policía era reacia a entrar allí”. (opinión expresada por Íñigo Gaya recogida en Escobar, 2021, pp. 240-241)17.

6.1.3 La inclusión de unos y la exclusión de otros

El proyecto de Campo de Cebada se concibió como un espacio para dar voz a aquellos que hasta ahora no habían tenido voz en el barrio. Desde allí, las actividades y las expresiones artísticas que se impulsaron desde el grupo motor estaban —quizás sin querer o de forma involuntaria— dirigidas a un grupo específico de personas, los autodenominados antisistema. El tipo de actividades que se realizaron y se priorizaron, el lenguaje utilizado y la imagen que proyectaba a través de los elementos visuales que se disponían en el espacio (grafitis, panfletos, etc.) fueron aspectos disuasorios para vecinos y usuarios potenciales.

En general, los discursos emitidos en el espacio no fueron comunes, bien por el tipo de perfil que acudía a las actividades realizadas o bien por los comentarios emitidos por los participantes, muchos de ellos con inclinaciones políticas que hacían evidentes y notorias. La narrativa política puede generar discordia, lo que en muchos casos separa y aleja a los que piensan distinto.

Es así como en ocasiones, y en nombre de la inclusión de aquellos que no habían sido incluidos antes, se excluyó a otro grupo importante de personas, y así Campo de Cebada se convirtió en una isla.

Aunado a lo anterior, la limitada o casi nula participación activa y directa de actores políticos y económicos, que significó un importante logro para la iniciativa, por ser la forma de no contaminar los valores sociales y culturales del proceso, fue en sí misma contraproducente y generó que aquel gueto excluyente estuviera aún más estigmatizado.

En primer lugar, al haber restringido la participación de la administración y de las fuerzas del orden, Campo de Cebada fue un espacio infranqueable e ingobernable, centro de ilegalidades y conflictos sociales, que desgastaron aún más el proyecto. En segundo lugar, la negativa a que agentes económicos brindaran su apoyo en la consecución de la iniciativa provocó una evidente ausencia de recursos casi desde el inicio, lo cual limitó la capacidad de invertir en la transformación del espacio, influyendo directamente en la imagen, la calidad y la accesibilidad del mismo por parte de personas con movilidad reducida o de edades avanzadas, en conclusión, más exclusión y menos heterogeneidad en el grupo de usuarios del espacio.

En definitiva, en espacios como Campo de Cebada, solares que pasan a ser gestionados por un grupo de vecinos, deben ser igualmente concebidos como cualquier espacio público, donde sean válidas las normas básicas de convivencia, donde lo único que debe cambiar es el uso que se hace del espacio.

En la medida en que existan reglas del juego claras, donde sea válida la aplicación de la ley a través de las fuerzas del orden, podrán evitarse situaciones de libertinaje y de estigmatización que generen rechazo vecinal y que garantizarán la inclusión de todos. Es también importante el apoyo que deben asumir las instituciones públicas a través de acciones de inversión y de mantenimiento, de esa forma dan soporte a los gestores ciudadanos en la tarea de mejora del espacio, haciendo que la labor pueda ser sostenible y digna a lo largo del tiempo.

6.2 La permanencia, la trascendencia y la notoriedad de los elementos intangibles

Aun cuando el proyecto de gestión compartida estuvo marcado por la incertidumbre, se puede decir que tuvo una vida útil más prolongada de lo que se esperaba inicialmente. Campo de Cebada vivió entre lo temporal y lo permanente, un proyecto que “existió” por poco más de siete años consecutivos y que dejó una herencia sobre la que es conveniente hablar, ya que perdurará en el imaginario colectivo.

La herencia se traduce en enseñanzas que desvelan el poder que tiene la ciudadanía, si se confía en sus capacidades. Confiar en los ciudadanos significa entenderlos como agentes corresponsables de la realidad, significa entenderlos como actores claves con los cuales se puede trabajar de forma mancomunada en la transformación de la ciudad.

Los aspectos positivos de la experiencia de Campo de Cebada y que potenciaron su permanencia, su trascendencia y su notoriedad como un caso referencial de gestión compartida, fueron fundamentalmente la capacidad organizativa y de interacción, la creatividad y la innovación social y el ejercicio autónomo de participación efectiva.

En una sociedad donde los requerimientos y las deudas sociales son crecientes, existe un caldo de cultivo fértil donde se puede estimular la confianza en las capacidades sociales y los conocimientos empíricos de la ciudadanía. Los vecinos y los agentes sociales que participaron de la gestión compartida demostraron el conocimiento que tenían sobre el territorio, y demostraron cómo eran capaces de vigilar, gestionar y dinamizar un espacio sin la necesidad de la intervención directa de agentes políticos y económicos. Esto fue posible a través de la discusión, del intercambio y del aprendizaje de ida y vuelta entre ciudadanos. Además, los agentes sociales supieron cómo difundir y dar a conocer sus iniciativas, supieron cómo interactuar con el otro y cómo congregar a personas interesadas en sus proyectos e ideas de forma espontánea.

Por su parte, la creatividad también es un valor propio de la ciudadanía. La capacidad resolutiva que los involucrados tuvieron para sortear la incertidumbre, las problemáticas del lugar y los recursos limitados, fue uno de los grandes aprendizajes que deja el proceso. El ingenio y la creatividad social quedan y están presentes de forma permanente en la sociedad, de allí la importancia de asumirlo como una herramienta útil en las políticas urbanas.

Los dos aportes anteriores solo son posibles bajo escenarios de participación efectiva y autónoma del ciudadano en la toma de decisiones. El uso de las asambleas ciudadanas fue un recurso simple para propiciar entornos críticos y de debate sin intermediarios.

En definitiva, lo más importante que deja la experiencia, es el empoderamiento ciudadano, la creencia de que la comunidad tiene la capacidad de transformar y mejorar su realidad.

7. Conclusiones

Indagar en el fenómeno de la apropiación urbana no solo ha permitido establecer claros vínculos entre la transformación del espacio público y la acción social, sino que, además, ha permitido reflexionar en torno a las transferencias entre lo temporal y lo permanente, entendiendo que, para la apropiación, el tiempo es fundamental.

Las iniciativas de gestión compartida de espacios públicos se convirtieron en una herramienta urbana transitoria que se extendió por toda España como resultado del clima social y político del momento, marcado por la crisis económica (2007-2014). Campo de Cebada fue una experiencia que convirtió un espacio vacante en un espacio de convivencia vecinal, y que aun siendo temporal y habiendo sido sustituido por una nueva infraestructura (2022), dejó huellas y afecto en quienes vivieron el espacio, que permanecerán en la memoria colectiva. Es así como lo que permanece es el reconocimiento del lugar como un espacio de importancia para el barrio y para los vecinos, donde se hicieron gestas ciudadanas que perduraran por siempre en el aprendizaje social.

El proceso de apropiación, y en particular la experiencia de Campo de Cebada también puso de relieve la volatilidad de lo físico, y como lo permanente también puede ser frágil. Si determinado espacio de la ciudad no genera atracción y no responde ni a las necesidades ni a las aspiraciones de los individuos, el uso y la función se desvanecerá, y se convertirá así en un espacio de ausencia, en un solar que no existe como lugar para la colectividad. De allí, la importancia de reivindicar, por un lado, la flexibilidad y la polivalencia de los espacios públicos; y por el otro, la capacidad que los ciudadanos tienen de transformar su realidad urbana por medio de prácticas sociales de cocreación y corresponsabilidad legalmente reconocidas.

8. Bibliografía

Almada, H. (2014): La apropiación del espacio público a través de prácticas deportivas juveniles [Tesis de Doctorado en Ciencias Sociales, Colegio de la Frontera Norte de México]. https://www.colef.mx/posgrado/tesis/2010949/

Ardura, A. (5-10 de mayo, 2014): Espacio público confiscado. La privatización y resignificación del espacio público en los procesos de transformación material de las plazas del centro de Madrid [Comunicación en congreso]. XIII Coloquio Internacional de Geocrítica: El control del espacio y los espacios de control, Barcelona. https://www.ub.edu/geocrit/coloquio2014/Alvaro%20Ardura%20Urquiaga.pdf

Arendt, H. (2009): La condición humana. Buenos Aires, Paidós.

Arteaga, M. (2017): Autogestión del espacio público: formas de autogestión del espacio público en la ciudad de Quito, 2009-2015 [Tesis de Maestría, Facultad Latinoamericana de Ciencias Sociales de Quito]. http://hdl.handle.net/10469/11800

Baringo, D. (2013): La tesis de la producción del espacio en Henri Lefebvre y sus críticos: un enfoque a tomar en consideración. Revista QUID 16 (3), pp. 119-135.

Bencomo, C. (2011): Las teorías del diseño urbano en la conceptualización del espacio urbano y sus dos categorías: espacio público y espacio privado. Ciudad y Sociedad, Trienal de Investigación FAU-UCV.

Borja, J. (2000): Ciudadanía y espacio público. En Jiménez, D. (Ed.) (2000). Laberintos urbanos en América Latina. ABYA-YALA: Quito.

Delgado, M. (2008): Lo común y lo colectivo. Universitat de Barcelona. España.

Escobar, D. (2020): Prácticas sociales y cultural digital en la apropiación del espacio público. Plaza Campo de Cebada, Madrid, España. [Tesis de Maestría en Ciencias de Diseño Urbano, Facultad de Arquitectura y Urbanismo de la Universidad Central de Venezuela]. http://saber.ucv.ve/handle/10872/1957

Escobar, D. (2021): Apropiación del espacio público como forma de discusión colectiva en el marco de la Nueva Agenda Urbana 2030. En J. Poyatos, L. García y J.L Baró (Ed.), Congreso Iberoamericano para la fundamentación y práctica de la ciudad sostenible. pp. 101-118. Valencia, España: Editorial Universitat Politécnica de València. http://hdl.handle.net/10251/171033

Fonseca, J. (2014): La importancia y la apropiación de los espacios públicos en las ciudades. Revista de Tecnología y Sociedad, 4(7). https://www.redalyc.org/articulo.oa?id=499051556003

Gallardo, J. (2015): Reocupación y/o reconstrucción de estructuras urbanas en desuso y su conexión con el espacio público y el paisaje. [Tesis de Doctorado en Urbanística y Ordenación del Territorio de la Universidad Politécnica de Madrid].

Gómez, A. (2015): Sistemas urbanos emergentes: Procesos informales de gestión y producción de espacio público [Tesis doctoral, Universidad Politécnica de Madrid]. Archivo digital de la Universidad Politécnica de Madrid. https://oa.upm.es/40081/1/ALICIA_GOMEZ_NIETO.pdf

Lefebvre, H. (2013): La producción del espacio. Madrid, España, Capitán Swing.

Lindón, A (2007): La ciudad y la vida urbana a través de los imaginarios urbanos. Revista EURE, XXXIII (99).

López, I. (2012): Notas sobre el “bum”. Los colectivos españoles, un ecosistema plural. Arquitectura Viva (145), pp. 15-19.

Martín, Y. (2013): Arquitectura en los barrios populares. El proyecto como proceso dialógico. Caracas, Venezuela, Ediciones FAU-UCV.

Martínez, P. (2006): El método de estudio de caso. Estrategia metodológica de la investigación científica. Pensamiento y Gestión, 20, pp. 165-193. https://www.redalyc.org/pdf/646/64602005.pdf

Morales Tucker, A. (1991): Notas sobre estructura y planificación urbana. Cuadernos USB. Caracas, Venezuela.

Morin, E. (2005): Introducción al pensamiento complejo. Barcelona, España, Gedisa.

Ministerio de Hacienda del Gobierno de España (noviembre, 2008): Plan Español para el Estímulo de la Economía y el Empleo. https://www.hacienda.gob.es/es-es/areas%20tematicas/presupuestos%20generales%20del%20estado/paginas/fondoparaelestimulodelaeconomiayelempleo.aspx

Paisés, A. (2017): Barrio La Latina: su historia, sus calles y sus gentes. Madrid, Temporae.

Oviedo, E. & Abogabir, X. (2000): Capítulo I: Participación ciudadana y espacio público. En Segovia, O. y Dascal, G. (Ed.) (2000). Espacio público, participación y ciudadanía. Santiago de Chile, Ediciones SUR.

Real Academia Española (2020): Diccionario de la lengua española (23.ª ed.). https://dle.rae.es

Rodríguez, A. & Abogabir, X. (2000): Introducción a Espacio público, participación y ciudadanía. En Segovia, O. y Dascal, G. (Ed.). Espacio público, participación y ciudadanía. Ediciones SUR: Santiago de Chile.

Stang, J. (2015): Aproximaciones para el entendimiento del rol de las nuevas tecnologías en la construcción de espacios públicos. Cuadernos DARQ: Ciudades en la sociedad del conocimiento: Enfoques y políticas, 1(1), pp. 80-95. https://www.academia.edu/35886591/Aproximaciones_para_el_entendimiento_del_rol_de_las_nuevas_tecnolog%C3%ADas_en_los_espacios_p%C3%BAblicos

Trachana, A. (2013): Procesos emergentes de transformación del espacio público. Bitácora, 22(1), pp. 43-52. https://www.redalyc.org/pdf/748/74829048005.pdf

Vidal,T. & Pol, E. (2005): La apropiación del espacio: una propuesta teórica para comprender la vinculación entre las personas y los lugares. Anuario de Psicología, 36(3), pp. 281-297. https://www.redalyc.org/articulo.oa?id=97017406003

9. Referencias normativas y jurisprudenciales

Constitución Española, del 27 de diciembre de 1978. Boletín Oficial del Estado Español.

Decreto de Autorización de uso temporal y gratuito del inmueble de titularidad municipal situado en la Plaza de la Cebada a favor de la Federación Regional de Asociaciones de Vecinos de Madrid, número 16, firmado el día 18 de marzo de 2011. https://arquitecturascolectivas.net/sites/default/files/decreto%20la%20cebada.pdf

Ordenanza Municipal 35/2018, del 13 de mayo de 2018, de Cooperación Público-Social del Ayuntamiento de Madrid. Boletín Oficial del Ayuntamiento de Madrid, ANM 2018\35, del 13 de mayo de 2018. https://diario.madrid.es/coopera/wp-content/uploads/sites/48/2018/07/ANM2018_35.pdf

Reglamento Orgánico 22/2004, del 31 de mayo de 2004, de Participación Ciudadana del Ayuntamiento de Madrid. Boletín Oficial del Ayuntamiento de Madrid, ANM 2022\70, del 31 de mayo de 2004. https://sede.madrid.es/portal/site/tramites/menuitem.5dd4485239c96e10f7a72106a8a409a0/?vgnextoid=b5117b3cb0e4f010VgnVCM1000009b25680aRCRD&vgnextchannel=e81965dd72ede410VgnVCM1000000b205a0aRCRD&vgnextfmt=default

Reglamento Orgánico de Funcionamiento de los Foros Locales de los Distritos de Madrid, de 23 de diciembre de 2016. Boletín Oficial del Ayuntamiento de Madrid, AMN 2017/3, del 10 de enero de 2017.https://sede.madrid.es/portal/site/tramites/menuitem.5dd4485239c96e10f7a72106a8a409a0/?vgnextoid=8e65f478e2389510VgnVCM1000001d4a900aRCRD&version=true&vgnextchannel=ea4e5d53be9a0210VgnVCM100000171f5a0aRCRD. (versión vigente en el momento de la investigación)


1 En la investigación realizada y de la cual emana el presente artículo, además de las fases descritas se desarrolla una cuarta fase dedicada a la Formulación de estrategias de diseño participativo. A efectos de los objetivos del artículo, no resulta de relevancia.

2 Las entrevistas fueron abiertas y semiestructuradas. Por medio de ellas se recolectó información directa sobre la etapa reciente de funcionamiento y operación de la plaza de la Cebada (2011-2017), a través del diálogo informal que se mantuvo con los actores seleccionados. En total se realizaron cuatro entrevistas a cuatro actores clave, con diferentes intereses y roles: jefa de la Unidad de Participación Ciudadana y Cooperación Público-Social del Distrito Centro del Ayuntamiento de Madrid (representante institucional que tiene conocimiento de los permisos y la cesiones de uso que se hicieron durante la operación de Campo de Cebada; aporta una visión política y de gestión del lugar); responsable de la asociación vecinal que autogestionó Campo de Cebada de 2011 a 2017 (Pedro Herrero representa a parte del grupo de personas que autogestionaron el espacio y aporta la visión operativa del proceso; permite comprender el proceso desde adentro); al coordinador de un grupo que realizaba actividades en el espacio de 2017 a 2021 (Íñigo Gaya, un vecino del barrio, aporta una visión externa del proceso de autogestión; además, formó parte de un grupo que llevó a cabo una serie de actividades en el espacio en otra etapa de funcionamiento de Campo de Cebada); y a la profesora Alicia Gómez de la Universidad de Alcalá de Henares (desarrolló una investigación relacionada con la experiencia en Campo de Cebada (Gómez, 2015), por lo que su visión desde el académico que observa resultó relevante).

3 El artículo titulado Apropiación del espacio público como forma de discusión colectiva en el marco de la Nueva Agenda Urbana 2020, elaborado por la autora, y presentado en el Congreso Iberoamericano para la fundamentación y práctica de la ciudad sostenible en 2019, contiene el abordaje exhaustivo que se hace del marco teórico-conceptual de la noción de apropiación urbana (Escobar, 2021).

4 Las fases definidas en este artículo fueron el resultado de una aproximación a la noción de apropiación urbana, realizada durante la investigación a partir de un estudio comparativo de autores —Valera & Pol (2000), Almada (2014), Fonseca (2014) y Arteaga (2014)—. Se compararon las definiciones realizadas por cada autor consultado, y se extrajeron las etapas identificadas explícita e implícitamente.

5 Los colectivos son entendidos, en el marco de esta investigación, como modelos de trabajo en que un grupo de individuos con experiencia en un área o en varias áreas del conocimiento, se reúnen para proponer ideas y alternativas para solucionar un determinado problema. El modelo de trabajo suele ser abierto y horizontal (contrario a una estructura piramidal de jefes y empleados), donde resalta el aprendizaje desde la experiencia.

6 Ésta es una plaza —que nace en 2008, en el barrio de Lavapiés— es un ejemplo de apropiación y autogestión de gran notoriedad en España, y principal antecesor de Campo de Cebada. Su importancia radica en que propuso una nueva forma de gestionar los espacios públicos, partiendo de la organización ciudadana y de un modelo de autogestión, implícitamente contempladas en la ley de participación de Madrid. Éste representa un modelo que se replicará en varios espacios de la ciudad, y que es el antecedente inmediato de Campo de Cebada. A diferencia del caso de Campo de Cebada, Ésta es una plaza sí fue un solar destinado a ser espacio público, lo que determinó su permanencia en el tiempo y su operatividad actual.

7 Extracto de la opinión expresada por Pedro Herrero, miembro permanente del grupo gestor de Campo de Cebada de 2011 a 2017, y que fue recogida en la investigación realizada por la autora (noviembre 2019).

8 La Noche de Blanco fue una iniciativa que tiene su origen en París en el año 2002, cuya máxima es el acercamiento de la acción contemporánea a los ciudadanos por medio de un programa cultural variado que sirva de soporte a artistas internacionales y locales para el intercambio y la ejecución de sus obras. La sede del festival es el espacio público, que durante la noche se convierte en el escenario de las diversas actividades que se ofrecen para la interacción y disfrute del público. Desde su inicio, dicha iniciativa tuvo una gran repercusión y acogida a nivel internacional en otras ciudades europeas y no europeas.

9 Extracto de la entrevista realizada a la jefa de la Unidad de Participación y Cooperación Público-Social del Ayuntamiento de Madrid, Begoña García Santiago y que fue recogida en la investigación realizada por la autora (noviembre 2019).

10 Aun cuando el cierre del solar se produjo en 2017, debido a la tentativa de inicio de obras, el barrio de La Latina tuvo que esperar cinco años más para ver finalizada la construcción de su polideportivo, el cual fue ejecutado en 2022.

11 La investigación de la que emana este artículo, en el marco de sus objetivos, logró dilucidar y comprender los procesos de ocupación y apropiación en la plaza de la Cebada, partiendo de la reconstrucción histórica. Desde allí, desde la revisión histórica en el año 1499 (s. XV) hasta el año 2021, se hizo una descripción detallada de los cambios sufridos en el espacio, partiendo de cuatros dimensiones: lo funcional, o cómo fue el funcionamiento del espacio a lo largo del tiempo; la forma o la morfología urbana, explicando cómo se fue modificando su espacialidad (del vacío al lleno y viceversa) y cómo ha ido cambiando su envolvente urbana; los usos y los sentidos de uso, es decir, las actividades que se fueron desarrollando; y lo social, referido a los actores claves que participaron de las actividades realizadas en el espacio y las prácticas sociales llevadas a cabo en él.

12 Extracto de la opinión expresada por Pedro Herrero, miembro permanente del grupo gestor de Campo de Cebada de 2011 a 2017, y que fue recogida en la investigación realizada por la autora (noviembre 2019).

13 La asamblea ciudadana fue un mecanismo de participación creado y llevado a cabo por los vecinos. Fue un entorno de discusión entre vecinos y participantes donde se pusieron sobre la mesa los problemas, de forma de que entre todos podían buscar soluciones. Si bien se establece como forma de participación directa dentro del Reglamento de Participación Ciudadana de Madrid (2004) y la Ordenanza de Cooperación Público-Social de Madrid (2018), no se especifica la forma en cómo debe llevarse a cabo, por lo que parte de la intuición y de las necesidades de los vecinos.

14 Extracto de la opinión expresada por Pedro Herrero, miembro permanente del grupo gestor de Campo de Cebada de 2011 a 2017, y que fue recogida en la investigación realizada por la autora (noviembre 2019).

15 Mientras Campo de Cebada funcionaba como un espacio autogestionado, en paralelo, se formularon proyectos para rehabilitar la plaza y definir sus nuevos usos: proyecto “Mirador de la Cebada” del Estudio Álvarez-Sala (2007-2012), producto de dos concursos de ideas lanzados por el ayuntamiento; y el Plan Especial de Mejora de la Plaza la Cebada o proyecto de polideportivo La Latina, que es reformulado por el ayuntamiento y la ciudadanía (2017-2018). Finalmente, se adjudicaron las obras del polideportivo en 2019, según el proyecto aprobado en 2018. Desde 2022 el polideportivo está abierto al público.

16 Extracto de la opinión expresada por Pedro Herrero, miembro permanente del grupo gestor de Campo de Cebada de 2011 a 2017, y que fue recogida en la investigación realizada por la autora (noviembre 2019).

17 Extracto de la opinión expresada por Íñigo Gaya, coordinador del Grupo de Actividades de La Cebada, que fue recogida en la investigación realizada por la autora (noviembre 2019). El grupo de Actividades de la Cebada fue una entidad que desarrolló actividades un año después de la culminación de la gestión compartida, y que funcionó durante un año (2018-2019), gracias a la puesta en marcha de los foros locales de distrito como órganos participativos y de gestión impulsado por el ayuntamiento de Madrid con la entrada en vigor de la Ordenanza de Cooperación Público-Social en 2018.