Estudios
CIUDAD Y TERRITORIO
ESTUDIOS TERRITORIALES
ISSN(P): 1133-4762; ISSN(E): 2659-3254
Vol. LVI, Nº 222, invierno 2024
Págs. 1235-1262
https://doi.org/10.37230/CyTET.2024.222.8
CC BY-NC-ND
![]()
Planificación y gestión de los poblados dirigidos de Madrid: una respuesta social innovadora al problema de la vivienda
María Guillem-González-Blanch
Dra. Arquitecta. Profesora
Escuela Técnica Superior de Arquitectura (ETSAM)
Universidad Politécnica de Madrid (UPM)
Resumen: Los poblados dirigidos de renta limitada de Madrid (1956-1959) son un campo de experimentación de modelos urbanos de vivienda social en la posguerra, que contribuyen a erradicar el chabolismo en el cinturón de la capital e incorporan la “autoconstrucción” como ingrediente diferenciador. En este artículo se ponen de relieve los problemas de gestión y las dificultades de planificación, plazos y presupuesto que salen a la luz a partir de documentos inéditos hallados en los archivos como informes y memorias de los proyectos originales. La urgencia social y la celeridad en la redacción de los proyectos son las causas principales de estos problemas. A partir de la reelaboración gráfica de los proyectos originales se hace un análisis crítico comparativo de los siete poblados que evidencia, más de medio siglo después de su construcción, la vigencia de la investigación e innovación urbana y tipológica que supone esta experiencia significativa y única en la vivienda social del siglo XX.
Palabras clave: Poblados dirigidos; Autoconstrucción; Vivienda social; Renta limitada; Reelaboración gráfica.
Planning and management of Madrid’s guided settlements: an innovative social response to the housing problem
Abstract: The guided settlements for limited incomes in Madrid (1956-1959) are a field of experimentation in post-war urban models of social housing, contributing to eradicate slums on the outskirts of Madrid and incorporate “self-building” as a differentiating ingredient. This article highlights management problems and difficulties of planning, deadlines and budgets that come to light from unpublished documents found in the archives, such as reports and memories of the original projects. Social urgency and the speed with which the projects were drawn up are the main causes. Based on the graphic reworking of the original projects, a comparative critical analysis is made of the seven settlements that shows, more than half a century after their construction, the validity of the research and urban and typological innovation involved in this significant and unique experience in twentieth-century social housing.
Keywords: Guided settlements; Self-building; Social housing; Limited income; Graphic reworking.
Recibido: 03.08.2023; Revisado: 21.3.2024
Correo electrónico: maria.guillem@upm.es ; N.º ORCID: https://orcid.org/0009-0001-7938-7396
La autora agradece los comentarios y sugerencias realizados por las personas evaluadoras anónimas, que han contribuido a mejorar y enriquecer el manuscrito original.
También agradece al personal de los archivos consultados, en especial al Archivo del Ministerio de la Vivienda, en la actualidad Archivo Secretaría General de Vivienda, del MIVAU (Ministerio de Vivienda y Agenda Urbana).
1. Introducción
Desde su construcción en la posguerra en Madrid entre1956-1959, numerosas publicaciones avalan la vigencia de los poblados dirigidos de renta limitada, como ejemplos relevantes de la vivienda social española del siglo XX. Enmarcados en el II Plan Nacional de Vivienda de 1955, los poblados dirigidos de renta limitada representan una actuación innovadora. Se diferencia de las anteriores porque se plantean propuestas y estrategias que van más allá de la subvención de las propias viviendas, se protegen también los edificios complementarios y la urbanización de los terrenos y se emplea el novedoso sistema de “prestación personal” o autoconstrucción (Fig. 1). Por otro lado, no se permite la especulación: “téngase en cuenta que en estos poblados no ha habido beneficio inmobiliario alguno” (Leoz & Ruiz Hervás, 1961). En palabras de Fernández Galiano, la primera fase de los poblados dirigidos fue una “quimera moderna” (1989), que pronto se vio eclipsada por la segunda fase, enmarcada en el Plan de Urgencia Social que promueve la promoción privada frente a la pública, convirtiéndose en un negocio (Espegel, 2016).
El objetivo de esta investigación es ampliar el conocimiento de los poblados dirigidos de la primera fase a nivel urbano, sacando a la luz informes inéditos y memorias de los proyectos originales hallados en los archivos, que ponen de relieve problemas de gestión y dificultades de planificación, plazos y presupuestos. Se aporta un análisis crítico comparativo a partir de la reelaboración gráfica comparativa de los proyectos, que emplea como fuente principal de investigación los proyectos originales1 de los poblados, así como la legislación de la época. Acudir a la fuente original permite descubrir nuevas tipologías, desmentir algunas afirmaciones erróneas repetidas, confirmar con argumentos otros estudios y analizar de forma rigurosa las causas y consecuencias que hacen relevante esta experiencia.
Las numerosas publicaciones nacionales e internacionales (Aujourd´hui Art + Architecture, Baumeister, Zodiac, Deutsche Bauzeitung) y tesis doctorales, desde su construcción hasta la actualidad, avalan la importancia y el interés de estos poblados “hito fundamental de la vivienda social en España” (Cánovas Alcaraz & al., 2021). Existen múltiples publicaciones donde se aborda cada poblado de manera independiente, pero en cuanto al conjunto de los siete poblados cabe destacar, entre otros, el exhaustivo trabajo monográfico sobre los poblados de Fernández Galiano & Isasi & Lopera “La quimera moderna: los poblados dirigidos de Madrid en la arquitectura de los 50” (1989) que también recoge testimonios de sus protagonistas, los trabajos a nivel urbano de Luis Moya González sobre los “Barrios de promoción oficial” (1983), los artículos de Ana Esteban Maluenda (1999), (2009); el libro de Sambricio (2003) recopilatorio sobre vivienda social; la tesis (Guillem González-Blanch, 2013) sobre tipología de vivienda que hace un análisis gráfico comparativo de los siete poblados (primera fase)2, los cuadernos de vivienda que estudian gráficamente los tipos de vivienda de los poblados por separado del Grupo de Investigación en Vivienda Colectiva GIVCO3 de la Escuela Técnica Superior de Arquitectura de Madrid (ETSAM) de la Universidad Politécnica de Madrid (UPM) (2009 -2014) y se recogen en el más reciente libro “Atlas de Poblados Dirigidos. Madrid, 1956-1966” de Cánovas & Espegel & Feliz & Lapuerta (2021).

Fig. 1 / Folleto para promover la “prestación personal”. Plan Nacional de Viviendas. Ministerio de la Gobernación
Fuente: Comisaría de Urbanismo. (Sambricio, 2009, p. 144)
El marco donde se desarrollan los poblados dirigidos es un contexto de entreguerras, la guerra civil española y la Segunda Guerra Mundial. Es necesario reconstruir las viviendas destruidas durante la guerra y crear nuevas viviendas para la creciente población que emigra del campo a la ciudad inundando de asentamientos ilegales las periferias: “a la aparición de una masa obrera y una industrialización acelerada se superpone la creación de una política de vivienda” (Fernández Galiano & al., 1989, p. 67). El régimen franquista de los 50, que continúa en un proceso de autarquía y escasez económica tras la guerra civil, propone una política de vivienda para sanear el cinturón de la capital erradicando el chabolismo y creando vivienda digna y empleo. La primera fase de los poblados dirigidos enmarcados en el II Plan Nacional de Vivienda se articula bajo tres organismos: la Obra Sindical del Hogar (OSH), el Instituto Nacional de Vivienda (INV) dirigido por Luis Valero y la Comisaría para la Ordenación Urbana de Madrid (COUAM) con Julián Laguna al frente. Se abre la mirada a la arquitectura de fuera de nuestras fronteras y se plantea por primera vez una arquitectura moderna para construir vivienda social en contraposición a la construida hasta la fecha en España. La ley de viviendas de renta limitada de 15 de julio de 1954 (Ley 15/07/1954, 1954) y su reglamento (Decreto 24/06/1955, 1955) fueron el marco legislativo para la primera fase de los poblados dirigidos en donde se construyen viviendas de renta limitada grupo II de tercera categoría, viviendas entre 50 y 80m2 (Presupuesto de Ejecución Material, PEM<75% del Módulo4) y de tipo social (<42m2), en régimen de compra y no de alquiler.
Se encargan los siete proyectos («Los poblados de Madrid», 1971) a reconocidos arquitectos del SXX que, por entonces, eran jóvenes entusiastas de la arquitectura foránea; serían “algo más que arquitectos: serán gerentes y constructores, representantes de los usuarios y asistentes sociales¨(Fernández Galiano & al., 1989, p. 37). Gracias a las revistas y a sus viajes al extranjero se abren al debate arquitectónico a nivel internacional. Los siete poblados de la primera fase son: Fuencarral, proyectado por Romany que fue ganador del primer premio del concurso para viviendas experimentales de 1956 y viajó a Escandinavia; Manoteras, de Ambrós Escanellas y su equipo; Canillas, de Cubillo, con la mirada puesta en Jacobsen y el Neoplasticismo holandés; Caño Roto que por su calidad urbanística obtuvo reconocimiento internacional, de Íñiguez de Onzoño y Vázquez de Castro, este último becado en Roma; Almendrales, de Corrales, Vázquez Molezún, Carvajal y García de Paredes, los tres últimos habían estado pensionados en la Academia de Bellas Artes de Roma, Corrales y Vázquez Molezún, arquitectos del Pabellón de España para la Exposición de Bruselas en 1958, que establece la arquitectura moderna como imagen del país dentro y fuera de sus fronteras; Entrevías, de Sáenz de Oíza, Sierra y Alvear, Oíza había viajado a Estados Unidos tras obtener la beca “Conde de Cartagena” y tenía muy presente la arquitectura de mínimos de los años veinte de Oud y Gropius y por último, el desaparecido Orcasitas, de Leoz y Ruiz Hervás donde introdujeron innovadoras formas de habitar y fueron posteriormente en 1961, creadores del conocido módulo “HELE” acrónimo de sus apellidos.
Debido a la tardía industrialización de los procesos agrarios (Espiago, 1979), los inmigrantes sin empleo ni cualificación que provienen del campo, construyen sus chabolas de forma clandestina en la periferia de la ciudad de Madrid. Una ciudad que creció de forma desmesurada, “sin que las autoridades fueran capaces en ningún momento de controlar o dirigir este crecimiento masivo, rápido y dominado por la miseria de los nuevos inmigrantes”(López Díaz, 2002, p. 298). Para evitar la proliferación de esta infravivienda («Eliminación del chabolismo en Madrid», 1958), la ley se adapta a este modus operandi del inmigrante y, mediante el sistema de “prestación personal”, se le da la oportunidad de construir su propia vivienda, aportando su trabajo los domingos y días de fiesta a cambio de la entrada (20% de su valor). El 80% restante era financiado por el Instituto Nacional de la Vivienda (INV) durante 50 años sin intereses. Aparte de las facilidades de pago y bonificaciones tributarias, se les facilitaban los terrenos urbanizados, la dirección técnica de la obra, los materiales y el proyecto. Pero ¿Qué repercusiones tiene la construcción con este sistema de “prestación personal”? ¿Es realmente sostenible económicamente por sí mismo? En los archivos del Ministerio de la Vivienda se encuentran informes (INV, 1960) sobre los balances económicos de los poblados dirigidos que arrojan luz a esta cuestión y a otras como los largos y costosos procesos de expropiación o el cumplimiento de las expectativas de erradicar el chabolismo en el extrarradio de Madrid (Ley 15/07/1954, 1954). La urgencia social y la inmediatez con la que se redactan los proyectos acarrean graves consecuencias que se analizarán en este artículo.
También se comparan gráficamente los planos de los equipamientos y edificios complementarios de los poblados dirigidos. Se analiza en la investigación en qué poblados se hace efectiva esa mezcla de usos y si se llegan a construir todos los equipamientos planteados en los proyectos ¿Son realmente autosuficientes los poblados dirigidos de la primera fase en Madrid, como pretende la ley?
Una aportación relevante de este trabajo es la comparativa gráfica de la estructura urbana de los siete poblados dirigidos de la primera fase a la misma escala desde las variables de estudio seleccionadas, diferenciando la gran variedad de tipologías proyectadas, no todas publicadas. A nivel urbano se analizará si es efectiva la mezcla de tipologías (Guillem González- Blanch, 2015, p. 188) y usos dentro de un mismo poblado y si se pueden alcanzar altas densidades de viviendas por hectárea solo con viviendas unifamiliares ¿La gran variedad tipológica y volumétrica afecta a la economía de la actuación? ¿La autoconstrucción o sistema de “prestación personal” condiciona que la tipología de vivienda unifamiliar esté tan extendida? ¿Qué consecuencias tiene? ¿Participa el usuario en el diseño?
Por último, se comparan también las formas de agrupar las viviendas y su orientación ¿Hasta qué punto el urbanismo o la forma de agrupar las viviendas buscando la máxima economía o la mejor orientación condiciona la solución final?
2. Metodología y fuentes
2.1. Metodología
El método empleado, basado en la comparación y paralelismo entre los siete casos estudiados, utilizando el dibujo como herramienta de investigación, cuenta como fuente principal con los proyectos originales de la primera fase de los poblados dirigidos obrantes en los archivos y contrastados con el resto de las fuentes. Esta representación gráfica es un resultado relevante de la investigación y aporta tablas que comparan gráficamente los siete poblados dirigidos de renta limitada bajo todas las variables de estudio. La metodología rompe por completo con aquellas que estudiaban y analizaban la vivienda aislada y sin ningún contexto y, a diferencia de otros trabajos que abordan cada poblado de forma independiente, en esta investigación se hace un paralelismo, encontrando discrepancias, sinergias y estrategias comunes para todos los poblados.
Selección de variables de estudio: Las variables de estudio seleccionadas son: la situación de los poblados y su morfología urbana, su densidad, los usos del suelo, los equipamientos y edificios complementarios, la manera y proporción en que las diferentes tipologías de vivienda se implantan en el poblado y la relación que tiene con viviendas colindantes, la forma de agrupación de las distintas unidades dentro de un mismo edificio y la orientación, cuestión que los arquitectos destacan en todos los proyectos originales consultados.
Al constatar la valiosa, y en muchos casos, inédita documentación gráfica y escrita que aparece en los archivos y que arroja luz sobre la gestión y planificación de los poblados, se decide incorporar estos aspectos también como variables de estudio, ya que condicionan el resultado final de la experiencia y ponen de relieve información relevante en el marco político, económico y social.
Elaboración cartográfica a partir de los proyectos originales: Tras el vaciado de las fuentes y la revisión bibliográfica y legislativa se procede a hacer una reelaboración gráfica de los proyectos desde diferentes escalas de aproximación urbana y tipológica a los poblados y a las viviendas en su contexto. Como aspectos técnicos de la elaboración cartográfica, cabe destacar la clara intención de unificar criterios, empleando un grafismo común, poniendo todos los dibujos a la misma escala e indicando su orientación, para poder hacer un mejor análisis comparativo riguroso y sistemático entre los distintos poblados.
Análisis crítico comparativo: Una vez desgranados de manera pormenorizada los detalles de cada uno de los poblados, descubriendo tipologías proyectadas y no construidas, se construyen las tablas de síntesis gráficas comparativas mencionadas. Posteriormente se realiza un análisis crítico comparativo bajo cada una de las variables de estudio del que se desprenden las conclusiones. En el análisis ha sido clave contar con los proyectos originales y contrastar y complementar la investigación con el resto de fuentes que se detallan más adelante, sobre todo con la legislación y las declaraciones de los propios arquitectos en las memorias originales e informes, lo que enriquece los resultados y aporta fiabilidad a la investigación matizando, aclarando y en ocasiones desmintiendo afirmaciones publicadas.
2.2. Fuentes
La fuente principal empleada para la investigación son los proyectos arquitectónicos originales de los poblados que aparecen en los archivos: Archivo del Ministerio de la Vivienda, en la actualidad Archivo Secretaría General de Vivienda del MIVAU (Ministerio de Vivienda y Agenda Urbana)5; Archivo Regional de la Comunidad de Madrid; Archivo IVIMA (Instituto de la Vivienda de Madrid); Consejería de Obras Públicas, Urbanismo y Transporte; Comunidad de Madrid y Archivo Histórico del Colegio Oficial de Arquitectos (COAM)6. También se ha consultado el Archivo General de la Administración, sin encontrar documentos diferentes a los encontrados en los otros archivos.
La documentación recabada en los archivos consiste en planos originales, memorias descriptivas y constructivas del proyecto, planos de ordenación y urbanización de los terrenos, presupuestos, y documentación administrativa correspondiente a la gestión de los poblados y adjudicación de las viviendas y subvenciones, cartas7, expedientes de expropiación, certificaciones de obra e informes y peritajes8, proyectos reformados y complementarios. También se han encontrado informes oficiales del Ministerio de la Vivienda o del INV, que aportan datos interesantes para la investigación, entre ellos una valoración crítica de la experiencia y un balance económico, partiendo de datos objetivos de la construcción, que permiten comprender los defectos en la previsión y gestión de los poblados que más adelante se detallarán.
Otra de las fuentes utilizadas son los libros, así como las publicaciones periódicas de la época, nacionales e internacionales, que se hacen eco de la experiencia desde su construcción hasta la actualidad, catálogos de exposiciones, actas de congresos, tesis, archivos digitales o blogs. Cabe destacar los valiosos testimonios de los arquitectos, reflejados en libros y revistas e incluso en las memorias de los propios proyectos encontrados en los archivos. Una fuente imprescindible para poder reconstruir la historia ha sido el análisis de la legislación a través del Boletín Oficial del Estado (BOE) en la sección destinada a Gazeta, colección histórica. La legislación, sobre todo los preámbulos de las leyes, han sido columna vertebral del análisis del resto de la documentación obtenida; permite conocer aspectos técnicos concretos, tipologías, regulaciones y pautas de gestión de los poblados dirigidos y, por consiguiente, poder analizar su grado de cumplimiento.
Se incorporan nuevas fuentes como entrevistas personales a algunos arquitectos protagonistas de la experiencia, planteándoles cuestiones referentes al diseño y gestión de los poblados: (José Luis Íñiguez de Onzoño, comunicación personal, 2013), arquitecto del Poblado Dirigido de Caño Roto; (Alfonso Quereizaeta, comunicación personal, 2013), arquitecto del Poblado Dirigido de Manoteras. Otra fuente es el trabajo de campo: se visitan todos y cada uno de los poblados, se fotografían y contrastan con el estado original, lo que pone de relieve el paso del tiempo en las construcciones y las importantes modificaciones ejecutadas por los usuarios. Revelador resulta el testimonio (A. Jurado de la Morena, comunicación personal, 27 de octubre de 2017) de una señora viuda de “autoconstructor” que vivió en primera persona la construcción del Poblado Dirigido de Entrevías.
Las fotografías aéreas ayudan a estudiar el desarrollo a nivel urbano y la evolución temporal de la construcción. El material audiovisual de películas sobre vivienda social en la posguerra refleja las condiciones insalubres y de hacinamiento de los suburbios de las grandes ciudades y narra gráficamente la oposición de la Administración a los asentamientos ilegales y clandestinos. Películas como la italiana “Il Tetto” (1956) , de Vittorio de Sica, y la española “Flores de Luna” (2008), de Juan Vicente Córdoba, que hace una radiografía de la historia y el presente del Pozo del Tío Raimundo en la zona de Entrevías, y que recoge testimonios de los protagonistas.
3. Implantación y estructura urbana
Los poblados dirigidos de renta limitada estaban situados en el extrarradio de Madrid, en terrenos agrícolas no urbanizados que carecen de servicios y de planeamiento previo definido. En la actualidad los poblados se sitúan entre la M30 y la M40 y quedan integrados en el tejido urbano de Madrid (Valencia & al., 2021) (Fig. 2). Al noroeste de la capital se localizan Fuencarral y Canillas; al suroeste Caño Roto; y al sur Almendrales, Entrevías, y el desaparecido Orcasitas. “Se cumple la regla general de asentamiento de población, coincidiendo con la dirección de llegada. Los del Sur al Sur, y los del Norte al Norte”(Alvear, 1963, p. 3).

Fig. 2 / Plano de situación de los poblados dirigidos de Madrid
Fuente: Elaboración propia
La situación del nuevo poblado en algunos casos viene dictada por la cercanía del asentamiento chabolista al que se realoja; por ejemplo, el asentamiento del Pozo del Tío Raimundo y el Poblado Dirigido de Entrevías “entraña un programa de absorción de chabolas sin desarraigar a la población asentada en la zona” (Valenzuela, 1975, p. 42). Se comprueba que el éxito de la actuación, la unión vecinal y el sentimiento de identidad con el poblado son fruto de la cercanía de las nuevas viviendas al lugar de procedencia de los adjudicatarios: “se mantiene el criterio de no cambiar las familias de su lugar de asentamiento primitivo, pudiendo así conservar los lazos de convivencia, organizaciones culturales y recreativas, centros asistenciales y demás obras que han ido formando las características sociales del barrio”(Oíza & al., 1963, p. 12).
La forma de los poblados frecuentemente obedece a las caprichosas geometrías de los terrenos agrícolas expropiados y sus caminos y cañadas. En algunos casos, la trama urbana consolidada de los alrededores o las infraestructuras, con fuerte presencia, actúan de barreras físicas y dictan la forma del poblado (Fig. 3). Este es el caso de Entrevías, con las líneas del ferrocarril que lo abrazan; Almendrales («Poblado dirigido de Almendrales», 1968) con la antigua carretera de Andalucía o, en el caso de Canillas y Caño Roto, con los poblados de absorción colindantes. En el extremo opuesto, encontramos el desaparecido Orcasitas («Orcasitas», 1960), que se implanta en una zona verde del Plan Bidagor y, aunque no tiene límites preestablecidos, se apoya en el margen este de la carretera de Toledo.
La inmediatez y la urgencia social para ejecutar el Plan Nacional de Vivienda conlleva otra consecuencia relevante: la falta de reflexión sobre el lugar de implantación de la trama urbana de los poblados, sus características y condicionantes. En el caso de Entrevías (Fig.3 Abajo izquierda) («Entrevías», 1963; Guidi, 2019) y Orcasitas (Fig.3 Abajo derecha), los poblados con mayor número de viviendas proyectadas, se emplea una trama rígida y geométrica, más teórica y abstracta y, por lo general, impuesta sobre el terreno, sin tener en cuenta la topografía (Leoz & Ruiz Hervás, 1959), siguiendo la misma estructura de espina de pez, que Hilberseimer empleó en Chicago (Leoz & Ruiz Hervás, 1961, p. 124).

Fig. 3 / Arriba izquierda: fotografía aérea de 1961 del Poblado Dirigido (P.D.) Entrevías con las vías del ferrocarril como límite; Arriba centro: P.D. Almendrales con la carretea de Andalucía (proyecto original); Arriba derecha: Plano de ordenación P.D. Orcasitas (proyecto original). Abajo izquierda Estructura urbana P.D. Entrevías (proyecto original); Abajo derecha Estructura urbana P.D. de Orcasitas (proyecto original-plano modificado)
Fuente: Arriba Izquierda: fotografía aérea P.D Entrevías (vuelo aéreo) www.madrid.org; Arriba centro: P. D. Almendrales Archivo Ministerio de la Vivienda (Corrales & al., 1962) ; Arriba derecha: P.D. Orcasitas Archivo IVIMA (Leoz & Ruiz Hervás, 1959). Abajo izquierda: P. D. Entrevías Archivo Ministerio de la Vivienda (Oíza & al., 1958); Abajo derecha: Archivo IVIMA (Leoz & Ruiz Hervás, 1958)
Por el contrario, otros arquitectos cumplen la premisa de adaptar la trama urbana a la topografía existente, como en Caño Roto (Vázquez de Castro & Íñiguez de Onzoño, 1958), Fuencarral o Almendrales. Se proyectan hileras de viviendas unifamiliares escalonadas en Caño Roto («Wohnquartier Caño Roto Madrid», 1967), con locales comerciales, trasteros o cámaras sanitarias en las plantas bajas de los bloques para absorber las diferencias de cota entre fachadas opuestas de un mismo edificio; gradas y muros de contención para formar zonas aterrazadas (Romany, 1961), como construye Romany en Fuencarral donde las edificaciones “se adaptan a la topografía del terreno tanto en la edificación como en los espacios libres utilizando gradas” (Moya González, 1980, p. 80), e incluso se llegan a particularizar las secciones de cada bloque, como en Almendrales (Corrales & al., 1959), para adaptarlas al terreno.

Fig. 4 / Cuadro comparativo de las fotografías aéreas de los poblados dirigidos de renta limitada
Fuente: Elaboración propia a partir de fotografías aéreas www.madrid.org; bing.es
La falta de previsión de ciertos factores y condicionantes del terreno obliga, a la hora de replantear las viviendas, a modificar la trama urbana proyectada de forma abstracta sobre el papel, lo que ralentiza las obras y encarece el proyecto. Se encuentran por ejemplo núcleos chabolistas dentro de los límites de actuación en Orcasitas (Dirección General de la Vivienda, 1960, p. 68) y Entrevías (Fig.5 Centro derecha) (Alvear, 1963, p. 24), líneas de alta tensión en Almendrales (Corrales & al., 1962), Orcasitas (Leoz & Ruiz Hervás, 1963b), Entrevías y otros factores que obligan a adaptar el trazado sobre la marcha. Por ejemplo se puede leer la memoria del Proyecto reformado Poblado dirigido de Entrevías (Oíza & al., 1963, p. 3):
“En la distribución de los bloques en el terreno se producen algunas variaciones con respecto al proyecto primitivo. Esto es debido en primer lugar al chabolismo existente en la hectárea número 5 (zona de Ahijones) (...). Así mismo se cambia la situación de 4 viviendas del bloque número 10 por impedir su construcción la línea de alta tensión de Iberduero que pasa por la zona”.
Otro ejemplo lo encontramos en un Informe sobre el Poblado Dirigido de Orcasitas hallado en el Archivo Regional en el que se detalla que el poblado está “cruzado en sentido diagonal por una línea eléctrica de alta tensión (...). Como consecuencia, y por coincidir con la columna número 11, no han podido ser ejecutadas las obras de 5 viviendas del bloque 127 (...) esta línea pasa también por Almendrales” (Gerencia de los poblados, 1963, p. 1)
El caso más dramático lo encontramos en el desaparecido Poblado Dirigido de Orcasitas que, debido a problemas en el subsuelo que explican los arquitectos en el “Proyecto adicional para corrección de asientos producidos en las viviendas unifamiliares por descenso del nivel freático del terreno” hallado en el archivo IVIMA (Leoz & Ruiz Hervás, 1960), y tras un tortuoso proceso repleto de deficiencias constructivas, fue finalmente demolido: “Los asientos, lejos de estabilizarse como se esperaba, se van agravando hasta mermar la habitabilidad e incluso la seguridad de las edificaciones, y conducen a una situación crítica en 1975” (Cervero Sánchez, 2020, p. 282) que lleva a la sustitución de las edificaciones en un proceso de remodelación en fases escalonadas definidas en cuatro proyectos sucesivos, entre 1982 y 1985. (Cervero Sánchez, 2020, p. 7).
Se aporta un cuadro comparativo (Fig.4) con el desarrollo temporal de la ciudad con los planos de situación y fotografías aéreas que permiten identificar el proceso de evolución, reflejando el estado previo a la construcción de los poblados (vuelos aéreos), en el momento de su construcción y su estado en 2012.
4. Gestión y planificación de los poblados dirigidos
Un informe que hallé en el Ministerio de la Vivienda del 19 de agosto de 1960 (Fig.5 Arriba izquierda), hasta la fecha no publicado, sobre el balance económico de la primera fase de los poblados dirigidos, revela el desajuste entre la previsión del presupuesto de los terrenos urbanizados y el coste real de los mismos (INV, 1960, p. 1).
La iniciación rápida de los Poblados, antes incluso de que la Comisaría tuviese los expedientes de expropiación en un estado que permitiera conocer, siquiera aproximadamente, el coste de las expropiaciones, impidió poder precisar el valor real del suelo. Por este motivo, el valor atribuido a los terrenos en los expedientes de construcción de los distintos Poblados es el 15% del coste de la edificación, que es el máximo que, en principio, habría de percibir la Comisaría.
A ello hay que añadir que, al iniciarse las urbanizaciones, se hace patente la necesidad de invertir en las mismas cantidades elevadas que en algún caso absorben casi el total del valor asignado al terreno urbanizado, esto es, al suelo más urbanización.
En la mayoría de los poblados se duplicaba el presupuesto previsto por la ley para la adquisición de los terrenos y su urbanización (15% del presupuesto protegible). La diferencia de coste se vería absorbida en los presupuestos de la segunda fase de poblados dirigidos: “es verdad que al construirse las segundas fases quedará en gran parte compensado este exceso de coste del suelo. Pero lamentablemente hay que concluir que la urgencia con que se iniciaron estos poblados no es el clima más propicio para estudiar debidamente una financiación adecuada” (INV, 1960, p. 1). A la luz de estos datos se puede afirmar que la financiación de los poblados dirigidos de renta limitada no se sostiene por sí misma.
Una mayor densidad habría permitido “enjugar el elevado coste del suelo”(INV, 1960, p. 2), según el informe se proyectaron grandes espacios libres, edificaciones de poca altura y “muy ajustados los precios de ejecución material de las viviendas”. Así mismo se recuerda que en la ordenanza 11 se especificaba que se puede compensar el aumento del valor previsto para el suelo con “los beneficios conseguidos de la venta de los locales comerciales” que en muchos casos se subastaban, pero por otro lado apuntan que la ley no otorga al órgano de la Gerencia de los poblados dirigidos (agrupación de particulares) la facultad para venderlos (INV, 1960, p. 2).
Se argumenta también en dicho informe que la financiación que debía otorgar el Instituto de crédito para la reconstrucción nacional prevista en la Ley de 1 de julio de 1955 (Decreto 01/07/1955, 1955) a favor de la Comisaría (COUAM) para la urbanización de los terrenos nunca llegó a ser efectiva9. Como se excedían los plazos “se quedaría sin ejecutar gran parte de las urbanizaciones”. Las viviendas se construyen antes de urbanizar los terrenos y construir los edificios complementarios. Como hacen constar los autores del informe: “(...) el problema del mayor coste del suelo urbanizable, se planteó a otros muchos promotores particulares y oficiales, que financian el exceso con sus propios medios” (INV, 1960, p. 3).
En el informe citado (apartado 3º de los antecedentes) se pone de manifiesto que “las expropiaciones en muchas casos no se han ejecutado ni la Comisaría ha hecho efectivas las indemnizaciones” (INV, 1960, p. 3). Después de consultar numerosos expedientes de expropiación de los terrenos en los archivos, se puede afirmar que las obras de las viviendas van por delante de los lentos procesos de expropiación10, sin tener en cuenta su elevado coste.
Por otro lado, el problema del chabolismo en el cinturón de la capital debido a la masiva emigración del mundo rural era difícil de controlar. La película Flores de luna (Córdoba, 2008)11 refleja esta situación en la zona del Pozo del Tío Raimundo (Entrevías) donde había una fuerte presencia de la Guardia Civil para intentar derribar las chabolas que construían entre todos los vecinos por las noches. En la película aparece en varias ocasiones el padre Llanos12, autor de una carta (Fig.5 Arriba derecha) encontrada en el archivo del Ministerio de la Vivienda (LLanos s.j., 1961) en la que explicaba la situación del Pozo y solicitaba a la Administración agilidad en la construcción de las viviendas. La memoria del proyecto original reformado del Poblado Dirigido de Entrevías hallado en el archivo del Ministerio de la Vivienda revela que cuando se entregaron las viviendas del poblado no se desalojaron en su totalidad las chabolas o “casitas bajas” para proceder a su demolición y se vuelven a ocupar por familiares que vivían hacinados en la misma chabola o conocidos recién llegados: “puede decirse que las 770 familias asentadas provienen del chabolismo de la zona, aunque sólo se consiguiera el derribo de 300 chabolas”(Oíza & al., 1963, p. 12). Esta circunstancia (Valenzuela, 1975, p. 39) hace que el primordial objetivo del Plan Nacional de Vivienda de 1955 se vea comprometido: no se logra erradicar el chabolismo de manera radical.
Un ingrediente diferenciador de la primera fase de los poblados dirigidos es la prestación personal: “la efectivamente realizada con el trabajo individual directo o indirecto de los futuros usuarios o bien la aportación por estos de su equivalente en metálico” (Decreto 24/06/1955, 1955, p. Artículo 50). Como señala Luis Cubillo sobre el Poblado Dirigido de Canillas, un beneficio claro de la autoconstrucción fue la solidaridad entre adjudicatarios (Cubillo, 1989, p. 188) y en Entrevías el fuerte sentimiento de identidad con el poblado (Córdoba, 2008), aunque no resultara económicamente rentable. Fernández Galiano señala que “ni una sola vez dejó de cumplirse el compromiso de terminar por el equipo de la vivienda que quedase sin acabar por enfermedad, cárcel o fallecimiento de un cabeza de familia” («Participación del usuario y autoconstrucción: el caso de Entrevías», 1977, p. 24). Cabe destacar que el periodo de construcción de estas viviendas unifamiliares por el sistema de prestación personal se dilató en el tiempo, como se constata en la memoria del proyecto de Entrevías: ”El hecho de haberse realizado esta obra en los domingos y días festivos únicamente, ha traído como consecuencia la prolongación de los trabajos en un tiempo en que los materiales de obra se encarecían cada día (...) ha tardado en realizarse por el sistema de prestación personal el doble” (Oíza & al., 1963, p. 9).

Fig. 5 / Arriba izquierda: informe hallado en el Ministerio de la Vivienda del 19 de agosto de 1960 sobre el balance económico de la primera fase de los poblados dirigidos (Insituto Nacional de la Vivienda, INV, 1960, p. 1); Arriba derecha: Carta del Padre Llanos a la Administración (1961); Centro derecha: Presencia de chabolas en la zona de Ahijones Poblado Dirigido (P.D.) Entrevías (Alvear, 1963, p. 14) ; Abajo: Plano de ordenación del P.D. de Caño Roto señalando las viviendas ejecutadas con “prestación personal” (Vázquez de Castro & Íñiguez de Onzoño, 1958)
Fuente: Arriba izquierda: Archivo Ministerio de la Vivienda; Arriba derecha: P. D. Entrevías Archivo Ministerio de la Vivienda; Centro derecha: Revista Hogar y Arquitectura 58, (Alvear, 1963, p. 14); Abajo: Archivo Ministerio de la Vivienda
Se limita la prestación personal de los adjudicatarios a unos oficios determinados como la albañilería (Oíza & al., 1963, p. 7), “hacer los muros de carga, tender yesos...” (Cubillo, 1989, p. 188) aptos para personas no cualificadas que solo trabajaban en la obra los domingos y días de fiesta para pagar con su trabajo el 20% del valor de la casa equivalente a la entrada. Como afirma la Dirección Técnica (Oíza & al., 1963, p. 2), en el Poblado Dirigido de Entrevías se ejecutan 600 de las 770 viviendas con este sistema y en el Poblado Dirigido de Orcasitas, 720 de tipo social (Dirección General de la Vivienda, 1960, p. 3). En el Poblado Dirigido de Caño Roto, debido a la gran demanda, se construyen todas las viviendas unifamiliares con este sistema, a parte de las 114 viviendas de tipo social previstas en un principio, también se ejecutan viviendas de tercera categoría, llegando a un total de 456. Se aporta plano del Proyecto original de Caño Roto (Fig.5 Abajo derecha) hallado en el Ministerio de la Vivienda13 donde se señalan las viviendas construidas con el sistema de prestación personal. No obstante se desaconseja («Poblado dirigido de Caño Roto (primera y segunda fases) 1606 viviendas», 1964, p. 21) la ejecución de viviendas de tercera categoría porque se dilata más aún el tiempo de ejecución y la aportación inicial del 25% en lugar del 20% que no se puede cubrir únicamente con aportación personal y, como indica Vázquez de Castro, el exceso hubo que financiarlo con un presupuesto extraordinario (1989, p. 182).
Las declaraciones de la Dirección Técnica del Poblado Dirigido de Entrevías que hablan de ”las circunstancias especiales de este poblado en el que tuvieron que alojarse familias durante la construcción de las viviendas(...)”(Oíza & al., 1963, p. 9), ponen de manifiesto que no se pensó en el alojamiento provisional de los adjudicatarios durante este periodo de construcción con el peligro que eso ocasionaba. El testimonio de Aurora Jurado14 residente desde su construcción en 1956 en el Poblado Dirigido de Entrevías y viuda de un “autoconstructor” afirma (comunicación personal, 27 de octubre de 2017) que vivió con su marido y los 3 hijos que tenía en aquel momento en la cocina en la planta baja durante la construcción de la planta superior, empleando el comedor como almacén de materiales (Guillem González-Blanch, 2018, p. 898). El propio Alvear declaró que ”durante la obra más de 250 familias tuvieran que ser alojadas en las plantas bajas de las viviendas, mientras se construían las altas y se remataban” (1963, p. 13). Además, el control en obra debía ser exhaustivo, porque el beneficiario construía su propia vivienda, con lo que en muchas ocasiones sobredimensionaba el material. “Por lógico interés de trabajar de prisa y la conciencia de trabajar en su propia vivienda ha hecho que se produzca un mayor gasto de materiales” (Oíza & al., 1963, p. 7)
Aunque la idea primitiva era tener contacto directo con los futuros usuarios para que pudiesen intervenir en el diseño, como relata Vázquez de Castro, arquitecto de Caño Roto “la verdad es que no hubo colaboración efectiva en el proyecto porque lo que querían (...) es que se forjara cuanto antes para meterse a vivir dentro”(1989, p. 181), y años después vuelve a declarar: “El proyecto participativo no tiene nada que ver con la autoconstrucción”(Cánovas Alcaraz & Ruiz Bernal, 2013, p. 181). Prueba de ello son las extendidas modificaciones que los adjudicatarios han hecho de forma generalizada en los poblados, como ampliación de las ventanas rasgadas15 en Canillas; en menor medida en Caño Roto y masivamente en Entrevías porque, como apunta Alvear, “no acaban de comprender y aceptar ciertos detalles de las casas que ellos mismos construyen, como ese de las habitaciones en túnel de 4m en las que no caben las camas del pueblo” (1989, p. 176).
Los arquitectos Oíza, Sierra y Alvear del Poblado Dirigido de Entrevías declaran en la memoria del proyecto reformado: “No obstante, las objeciones apuntadas, esta Dirección Técnica se pronuncia por el sistema de la prestación personal, eficacísima forma de acceso a la propiedad de sus viviendas de la clase más modesta de la Nación” (Oíza & al., 1963, p. 9). Coinciden con ellos Leoz y Ruiz Hervás, arquitectos del Poblado Dirigido de Orcasitas: “Este sistema de prestación personal, sostenemos porque estamos convencidos, que es el que cumple un fin social más completo y que lo ha cumplido a plena satisfacción, aunque a la Dirección técnica nos haya proporcionado terribles dolores de cabeza”.(Leoz & Ruiz Hervás, 1961, p. 925). Los arquitectos de Caño Roto comparten esta opinión, Vázquez de Castro declara que fue una gran experiencia a pesar de todos los inconvenientes, ”el contacto directo productor-consumidor es, para el arquitecto de Caño Roto, lo más válido de aquella innovadora experiencia”. (Vázquez de Castro, 1989, p. 180). Para Cubillo en el Poblado Dirigido de Canillas la “faceta más divertida” fue la experiencia de la prestación personal que empleó también en bloques de 4 plantas con el riesgo que conlleva: ”fue una cosa de dedicación tan absoluta que siempre lo recuerdo como la época más feliz profesionalmente” (Cubillo, 1989, p. 187).
5. Densidad, usos del suelo y edificios complementarios
5.1. Densidad de vivienda por hectárea
Las cifras que se manejan en este análisis comparativo son las resultantes del dibujo a partir de los planos de los proyectos originales. Las otras fuentes analizadas son contradictorias16 en lo referente a los datos de superficies de actuación de cada poblado (primera fase) y del número de viviendas construidas. Analizando la comparativa de densidades (Fig.6), sorprende comprobar que con tipologías de viviendas de poca altura se puede llegar a densidades muy elevadas, como es el caso de Entrevías. En Entrevías se consigue una densidad de 103 viviendas por hectárea, con únicamente tipologías de vivienda unifamiliar de tipo social, con una disposición de las manzanas más densa, dejando en un segundo plano la óptima orientación. Solo Canillas tiene más densidad que Entrevías ya que es el único que tiene torres de viviendas de 12 plantas (116 viv/ha).
El tercer poblado con mayor densidad es Almendrales, donde casi la totalidad de sus edificaciones son bloques de cinco plantas. Fuencarral se aproxima mucho a la media (88,70 viv/ha). Por el contrario, Caño Roto («Poblado Dirigido de Caño Roto», 1959) y Orcasitas (Cohn, 1992) son los poblados con mayor variedad y riqueza volumétrica y tipológica, lo que se traduce en una menor densidad de viviendas por hectárea, que afecta directamente a la rentabilidad y economía de la actuación. Concretamente en Orcasitas, la Comisión de Ordenación Urbana de Madrid obligó a los arquitectos Leoz y Ruiz Hervás a aumentar en dos plantas la altura de los bloques de cuatro plantas, para hacer frente a los costes de la urbanización de los terrenos (Leoz & Ruiz Hervás, 1961, p. 298), lo que mermó la calidad de gradación volumétrica del poblado (Esteban Maluenda, 2009, p. 20).
5.2. Usos del suelo
Para hacer el estudio comparativo de los usos de suelo en los siete poblados dirigidos de renta limitada se toman como referencia los datos recogidos del libro de Luis Moya González (1983) y se elabora el gráfico adjunto (Fig.6) base del siguiente análisis. En primer lugar, se refleja el porcentaje de suelo edificado con viviendas, más reducido en Canillas y Almendrales debido a la tipología de vivienda en altura que se emplea en ambos poblados. Cabe destacar también el elevado porcentaje de zonas libres privadas, jardines o patios privativos comunes a todas las viviendas unifamiliares, que tiene una presencia importante en todos los poblados, excepto en Almendrales donde se proyectan solo trece viviendas unifamiliares de las 1113 viviendas del poblado. No existen en este poblado zonas libres privativas en las viviendas de las plantas bajas de los bloques. Llama la atención la gran superficie de zona libre pública de Orcasitas en proporción con el uso de suelo destinado a vivienda, pero se entiende revisando el plano de situación original y la gran extensión de terreno donde se implanta, correspondiente a una zona verde del Plan Bidagor (Leira & al., 1976, p. 51) 17.
El porcentaje de zonas libres públicas es también relevante en el estudio conjunto de los poblados, ya que la estructura urbana de mezcla de tipologías genera espacios intersticiales residuales indefinidos entre las edificaciones, difíciles de mantener, que no prevén la necesidad de futuro aparcamiento y la accesibilidad en las calles peatonales. Sobre todo en el origen de los poblados, no se actuó en estas zonas debido al escaso presupuesto, la urgencia de construcción de vivienda y la falta de definición de estos espacios libres, como es el caso de Fuencarral “Los espacios libres, plazas y espacios inter bloques, conservan su arbolado pero son tierras de nadie, como ocurre habitualmente en los barrios de tipo racionalista en Madrid”(Moya González, 1980, p. 80). Los espacios libres acaban convirtiéndose en aparcamientos improvisados o zonas ajardinadas poco cuidadas.

Fig. 6 / Arriba: Gráfico comparativo de densidad de vivienda por hectárea en los diferentes poblados; Arriba derecha: Gráfico comparativo de usos del suelo en los diferentes poblados. Abajo: Espacios exteriores y variedad volumétrica del Poblado Dirigido (P.D.) de Caño Roto, Madrid
Fuente: Gráficos de elaboración propia. Fotografías facilitadas por el arquitecto J.L. Íñiguez de Onzoño en 2013
En contraposición, existen poblados como Caño Roto, donde se definen desde el proyecto unas zonas libres públicas más acotadas, logrando que los vecinos se impliquen en su cuidado y colaboren en su mantenimiento, puesto que los consideran como propios o semiprivados: “espacios públicos ampliamente arbolados y con cierto carácter vernáculo y popular” (Esteban Maluenda, 2009, pp. 18-23). Íñiguez de Onzoño, uno de los arquitectos del poblado, en una entrevista que mantuve con él en 2013 (J. L. Íñiguez de Onzoño, comunicación personal, 2013), afirmaba que se dotaban de sentido los espacios abiertos (Fig.6.Izquierda), se favoreció el pequeño comercio y se tuvo una atención especial a las diferentes texturas de los pavimentos, como el encachado que recuerda al mundo rural (Fig.6.Dcha).
5.3. Edificios complementarios y servicios
A diferencia de otras actuaciones de viviendas protegidas anteriores, se protegían, además de las viviendas, los edificios complementarios (Decreto 24/06/1955, 1955, arts. 10, p. 4301) y la urbanización de los terrenos. La legislación planteaba hacer núcleos de población autónomos, pero como no todos los equipamientos proyectados se llegaron a construir (Moya González, 1983) o se construyeron con retraso, los poblados eran dependientes de núcleos de población cercanos. En los archivos del Ministerio de la Vivienda e IVIMA encontramos proyectos de ajardinamiento y movimiento de tierras (Romany, 1961) y de urbanización (Leoz & Ruiz Hervás, 1959), realizados en los años posteriores a la construcción de las primeras viviendas, así como escuelas, dispensarios, iglesias e incluso comercios (Leoz & Ruiz Hervás, 1963a). La urgencia social de falta de vivienda hace que el orden de construcción sea inverso al razonable: primero se construyen las casas y después la urbanización, los servicios y zonas públicas y, por otro lado, no existe un planeamiento urbanístico en aquel momento que integre estos núcleos de población en la ciudad.
Como se puede apreciar en los esquemas adjuntos de edificios complementarios (Fig.7), se dan dos situaciones opuestas en cuanto a su ubicación dentro de los poblados. Por un lado, la agrupación de los usos siguiendo los principios del Movimiento Moderno, que promulgaba la carta de Atenas, segregando los usos residenciales de los dotacionales y concentrando los servicios en una misma zona del poblado: Entrevías, donde son prácticamente inexistentes, Canillas (Cubillo de Arteaga, 1958) y Manoteras («Manoteras», 1966), que es exclusivamente residencial. Por otro lado, Caño Roto, Almendrales18, Fuencarral y Orcasitas donde se proyecta una diversificación de los usos, mezclando el uso dotacional con el residencial, lo que reactiva la economía y la vida del barrio. Se proyectan pequeños locales comerciales (Leoz & Ruiz Hervás, 1963a) o talleres de una sola planta, diseminados por el poblado entre las edificaciones de vivienda o situados en las plantas bajas de los bloques o de las viviendas unifamiliares.
6. Tipologías edificatorias
Desde la Administración se promueve la investigación en materia de vivienda social, prueba de ello es el concurso de vivienda experimental convocado por el INV («Concurso para Construcción de Viviendas Experimentales convocado por el Instituto Nacional de la Vivienda», 1956) en 1956, antecedente claro de las tipologías de los poblados19. La gran variedad tipológica proyectada demuestra que los poblados dirigidos constituyen una investigación y experimentación relevante en el campo de la vivienda social en España. Este trabajo de investigación a partir de los proyectos originales20 consultados en los archivos, se traduce en 56 tipologías en los 7 poblados, de las cuales solo se construyen 43 y algunas nunca han sido publicadas. Al estudiar las diferentes tipologías se confirma que los poblados constituyen una incipiente “incorporación del Movimiento Moderno al racionalismo madrileño” (Esteban Maluenda, 1999).
Este lenguaje moderno empleado por los arquitectos no siempre fue entendido por los usuarios, que modifican ciertos elementos, como por ejemplo, la ampliación de las ventanas rasgadas tan característica en los poblados. Es indiscutible la clara influencia foránea en las soluciones propuestas “precedentes americanos, centroeuropeos, escandinavos, o italianos están en el ADN de los poblados, con una interpretación propia, condicionada por la economía y arraigada en la idiosincrasia española, pero lejana de las corrientes castizas o regionalistas”(Cánovas Alcaraz & al., 2021, p. 11).

Fig. 7 / Síntesis gráfica comparativa de los equipamientos y edificios complementarios de los poblados dirigidos
Fuente: Elaboración propia a partir de los proyectos originales hallados en los archivos
El porcentaje de viviendas (Fig.8) que se construyen de cada tipología edificatoria es el siguiente: el 41% son unifamiliares, un 57%, vivienda colectiva bloque y una única tipología con una morfología diferente es la tipo torre de 12 plantas (2%) en forma de H en Canillas. El factor que limita el número de plantas es la ley que establece que la altura máxima de los bloques que no cuenten con ascensores sea 14m (Orden 12/7/1955, 1955, p. 197).

Fig. 8 / Fotografías de los siete poblados Arriba Poblado Dirigido (P.D.) Entrevías y Orcasitas; Centro P.D. Caño Roto, Almendrales y Canillas; Abajo Fuencarral y Manoteras; Centro Gráficos de las diferentes tipologías de vivienda construidas en los poblados dirigidos de renta limitada (primera fase)
Fuente: Gráficos de elaboración propia; fotografías de los poblados del libro La quimera moderna (Fernández Galiano & al., 1989) y la del P.D. de Orcasitas de la Revista Temas de Arquitectura 22(«ORCASITAS», 1961a, p.856) y la P.D. de Caño Roto facilitada por su arquitecto.
El sistema empleado de “autoconstrucción”21 («Participación del usuario y autoconstrucción: el caso de Entrevías», 1977) condiciona la necesidad de proyectar un elevado porcentaje de viviendas unifamiliares (Sambricio, 2003) casi la mitad en la primera fase de los poblados. En contraposición, podemos observar cómo en fases sucesivas, en las que no se emplea el sistema de prestación personal, están reguladas por la Ley de Vivienda Subvencionada y no se construyen tipologías de vivienda unifamiliar “pues su coste de ejecución en relación a la superficie construida es mucho más elevado respecto a las edificaciones colectivas”(Calvo del Olmo, 2014, p. 97). La vivienda unifamiliar es una tipología apta para la prestación personal con sistemas constructivos asequibles para la mano de obra no cualificada, y a su vez contradictoria e incompatible con la prefabricación de los procesos constructivos que promovía la ley en las Ordenanzas técnicas y normas constructivas para “viviendas de renta limitada” (BOE núm.197, 16 de julio de 1955, 1955, pt. Séptima). Vázquez de Castro, arquitecto de Caño Roto, señala que “los problemas operativos de la autoconstrucción, (...), sí afectaron a cuestiones constructivas por la necesidad de potenciar la mano de obra sobre soluciones alternativas más industrializadas” (Cánovas Alcaraz & Ruiz Bernal, 2013, p. 181).
Prácticamente todas las tipologías de viviendas unifamiliares cuentan con patios privativos, que hoy en día suponen un desahogo dentro de la gran ciudad. Los patios eran una manera de humanizar la arquitectura y ayudar al usuario a adaptarse a la ciudad, ya que los usaban de huerto, corral, jardín o taller, que recordaba al mundo rural (Fig.6 dcha).
En dos de los siete poblados se construye primordialmente un único tipo de viviendas que se repite. Este es el caso de Entrevías y Almendrales, en los que se proyectan y construyen diferentes tipologías de vivienda de forma experimental, hasta encontrar o depurar el más acertado y económicamente viable que será el que se repita de forma masiva en el poblado. En Entrevías (Alvear, 1963) solo se construyen unifamiliares de los tipos A y D poco repetidos y el conocido B-C. En Almendrales («Almendrales», 1966) se construye mayoritariamente el bloque A2 de 5 alturas (99%) aunque, gracias a la consulta del proyecto original, fuente principal de este trabajo, y en contra de la afirmación errónea que se arrastra sucesivamente en algunas publicaciones, se puede constatar que también se proyectan y construyen 13 viviendas unifamiliares22 y un bloque pantalla.
En los cinco poblados restantes, se proyecta una mezcla de tipologías en la que se alternan viviendas unifamiliares de dos plantas, combinadas con bloques de 4, 5 o 6 plantas, y en el caso concreto de Canillas, con torres de 12 plantas. Es interesante analizar no solo la proporción de viviendas construidas de cada tipo, sino también la disposición de las mismas en el poblado y su relación con el resto de tipologías. Se puede llegar a crear una gran variedad volumétrica y formal en el poblado; como es el caso de Caño Roto y el desaparecido Orcasitas o, por el contrario, se pueden crear zonas independizadas con tipologías segregadas como es el caso de Manoteras, Fuencarral o Canillas, donde se implantan grupos de bloques o hileras paralelas entre sí, que impiden que la mezcla de tipologías sea eficaz. En Canillas, se mezclan los distintos tipos de bloques entre sí, pero no se alternan con las viviendas unifamiliares, que quedan confinadas a unas zonas concretas del poblado. Fuencarral tampoco combina sus dos únicos tipos de viviendas; concentra las hileras paralelas de unifamiliares por un lado y los bloques de vivienda colectiva por otro. Los arquitectos de Manoteras mezclan de forma tímida las tipologías, pero separan radicalmente el poblado en dos zonas diferenciadas: las viviendas de tipo social y las de tercera categoría. El propio Quereizaeta, arquitecto de Manoteras, confirma (A. Quereizaeta Enriquez, comunicación personal, 2013) que dividió el encargo de esas dos tipologías entre el equipo de arquitectos, por eso parece que ambas zonas están segregadas.
No todos los arquitectos han sabido implantar y adaptar este sistema importado del mixed development de mezcla de usos y programas. Existe una gran investigación y experimentación por parte de los arquitectos de Caño Roto y Orcasitas, con gran variedad y mezcla eficaz de tipologías y programas, como se afirma en las revistas nacionales e internacionales de la época como: Arquitectura («Poblado dirigido de Caño Roto», 1959), Hogar y Arquitectura «Poblado dirigido de Caño Roto (primera y segunda fases) 1606 viviendas», 1964), Nueva Forma («Poblado dirigido de Caño Roto en Madrid», 1969; Aujourd´hui Art + Architecture («Caño Roto», 1959) y Temas de Arquitectura («Orcasitas», 1961a; «Orcasitas», 1961b) entre muchas otras. En estos dos poblados se introduce, por ejemplo, el tipo dúplex, inusual en las tipologías de la época. De Fuencarral sólo se proyectan dos tipologías con una sola variante; y en Canillas o Manoteras, las distintas tipologías quedan sectorizadas (Fig.9).

Fig. 9 / Síntesis gráfica de las tipologías edificatorias en los poblados dirigidos de renta limitada de Madrid
Fuente: Elaboración propia a partir de los proyectos originales hallados en los archivos
7. Agrupación de viviendas y orientación
7.1. Agrupación de viviendas
En cuanto a la agrupación de viviendas diferenciamos a continuación los dos grandes grupos de tipologías edificatorias del poblado: las viviendas unifamiliares y la vivienda colectiva que abarca los bloques y las torres.
7.1.1. Agrupación de viviendas unifamiliares
Las viviendas unifamiliares (Fig.10), existentes en todos los poblados, se agrupan en hileras sencillas (35%) o dobles (65%), nunca se implantan aisladas. Todas las viviendas unifamiliares cuentan con patio delantero, trasero o ambos, excepto tres tipologías de Almendrales, que no constituyen un caso significativo por su reducido número. Las viviendas unifamiliares dispuestas en hilera doble que se construyen son de tipo social y se construyen con el sistema de prestación personal (viviendas tipo 2A y 2B-C de Entrevías, 2S de Caño Roto y 2S de Orcasitas), excepto en Manoteras, donde también se proyectan viviendas de tipo social en hilera sencilla (tipo S2). Agrupar las viviendas de tipo social en hilera doble es coherente con la economía de superficie buscada en esta clase de viviendas. De esta manera se ahorra también en el porcentaje de coste de urbanización correspondiente a cada vivienda: calles y servicios comunes. En muchas ocasiones se unifican las redes de saneamiento para las dos hileras. Esta búsqueda de la economía en la vivienda se refleja de forma especial en el tipo más extendido de Entrevías (B-C), donde las bajantes de los baños de cuatro viviendas se agrupan en un único punto, situando el baño fuera de la vivienda en un patio trasero.

Fig. 10 / Síntesis gráfica comparativa la agrupación de viviendas unifamiliares y vivienda colectiva
Fuente: Elaboración propia a partir de los proyectos originales hallados en los archivos
7.1.2. Agrupación de vivienda colectiva
El tipo de agrupación de vivienda colectiva está relacionado con la economía de los espacios de circulación y núcleos de comunicación que las abastecen; es decir, la reducción al máximo de las zonas comunes y, por tanto, su repercusión en el coste total de cada vivienda. De la comparativa de los esquemas de agrupación adjuntos a este apartado (Fig.10), distinguimos tres tipos de agrupación de vivienda colectiva según el número de viviendas a los que sirve un único núcleo de escaleras:
El primer tipo es el más extendido, constituye el 62% del total de vivienda colectiva, es el bloque lineal en el que cada núcleo de escaleras sirve a dos viviendas por planta. Estos bloques se forman a partir de la repetición de un módulo compuesto por un núcleo de escaleras y dos viviendas simétricas; se unen de 1 a 3 módulos, hasta 4 en Canillas e incluso 5 en Orcasitas. El núcleo de escaleras puede quedarse integrado en la envolvente del bloque como ocurre en Canillas, Caño Roto, Fuencarral y Orcasitas, o ser completamente exterior como es el caso del poblado dirigido de Manoteras. En el trabajo de campo realizado para esta investigación, se comprueba que, en el estado actual, muchos poblados han instalado un ascensor para dar cumplimiento a la accesibilidad, aunque sea exento y separado del bloque, en la mayoría de los casos sin criterio común de intervención en el conjunto del poblado.
El segundo tipo constituye el 18% de la vivienda colectiva construida y corresponde a un bloque con el núcleo de escaleras central para cuatro viviendas. Esta tipología es la más extendida en Almendrales (bloque A2); al ser un bloque de cinco alturas de núcleo de comunicación central, parece una torre, aunque carece de ascensor. Esta morfología se da también en la torre de doce plantas de Canillas y en el bloque tipo B no construido de Almendrales, hallado en el proyecto original.
El tercer tipo correspondiente al 20% de vivienda colectiva construida en los poblados, y que consiste en unas galerías o corredores largos, abastece de 4 a 16 viviendas con una única escalera. Este tipo de agrupación se da en un solo bloque del poblado dirigido de Almendrales (tipo pantalla) y en los poblados de Orcasitas y Caño Roto. En estos dos últimos poblados las tipologías corresponden a viviendas tipo dúplex y las galerías de circulación23 se sitúan cada dos plantas. Son las agrupaciones más innovadoras de todos los poblados dirigidos, las que buscan una mayor economía de superficie de circulación y distribución de las viviendas, aunque la privacidad se ve comprometida cuando algunas estancias dan a la galería24.
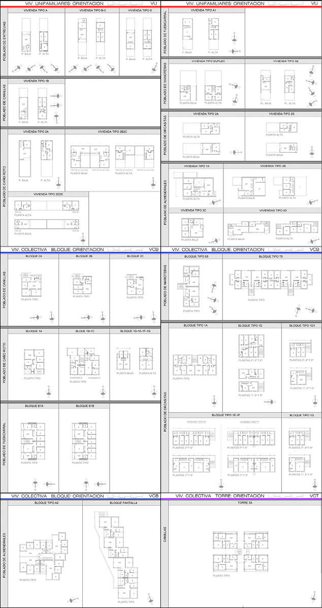
7.2. Orientación de las viviendas
Lo primero que hay que reseñar es el interés común para muchos de los arquitectos por una óptima orientación de las zonas vivideras de la casa, incluso en las viviendas de tipo social (57% de las viviendas construidas orientadas al sur), siendo esta una premisa en algunos casos fundamental e indispensable para el desarrollo del proyecto, que deja en un segundo nivel de importancia otros criterios como la funcionalidad, la distribución interior, el programa, la superficie de iluminación o las circulaciones. Los arquitectos de todos los poblados, excepto en Entrevías, donde prima la economía de superficies, han hecho un esfuerzo por orientar las viviendas a mediodía. Claramente Almendrales es el poblado que destaca sobre los demás en este planteamiento, prueba evidente de ello es que las fachadas orientadas al norte (Fig.11) de todas las viviendas del poblado son ciegas, lo que condiciona la distribución de las plantas para poder sacar ventanas a otras orientaciones. En Almendrales se proyecta un reducido número de viviendas unifamiliares, entre las que podemos destacar como ejemplo llamativo la vivienda unifamiliar VU-3C, que elimina las ventanas de todos los dormitorios que en su totalidad están orientados al norte, para abrir una ventana rasgada muy alta hacia el sur, supeditando en este caso la buena iluminación, ventilación y funcionalidad a la premisa radical de la orientación de las dependencias al mediodía.
Los arquitectos de Caño Roto y Orcasitas también comparten el interés por orientar el mayor número de viviendas al mediodía, pero no de forma tan radical como los de Almendrales. En Caño Roto se sitúan las edificaciones, “evitando que bloques y torres impidieran el adecuado soleamiento de las casas bajas” (Calvo del Olmo, 2014, p. 156) igual que ocurre en Orcasitas. Las tipologías de estos poblados tienen una única orientación, la mayoría al sur, el bloque VCB-1A de Caño Roto al oeste y el bloque VCB-1D de Orcasitas, ambos estrictamente perpendiculares a los otros bloques, constituyendo hileras sencillas. En Orcasitas y Caño Roto solo en las viviendas de tipo social dispuestas en hilera doble se prioriza la economía de las viviendas frente a la óptima orientación. El caso extremo más reseñable es Entrevías, donde Oíza, Sierra y Alvear relegan a un segundo plano la orientación, primando ante todo la economía, obteniendo como resultado una malla de viviendas con cuatro orientaciones diferentes, con una densidad muy elevada que, contrariamente a lo que ocurre en Almendrales, Caño Roto y Orcasitas, no está condicionada en absoluto por la óptima orientación.
Canillas, Fuencarral y Manoteras implantan los bloques e hileras perpendiculares unos a otros, obteniendo por tanto dos orientaciones giradas 90º para cada tipología, una siempre con los salones al sur y la otra al este, desterrando por completo la orientación norte, que solo aparece de manera obligada, en la mitad de las viviendas de la torre de Canillas. Como se puede ver en los planos (Fig.11), en el caso de Fuencarral se proyectan fachadas acordes a la orientación: las que están orientadas al norte y al oeste son fachadas más ciegas; las que están orientadas al sur y al este son más permeables, con terraza en la vivienda colectiva.

Fig. 11 / Síntesis gráfica comparativa las diferentes orientaciones de viviendas unifamiliares y vivienda colectiva
Fuente: Elaboración propia a partir de los proyectos originales hallados en los archivos
8. Conclusiones
El informe hallado en el archivo del Ministerio de la Vivienda (INV, 1960, p. 1) sobre el balance económico de la primera fase de los poblados dirigidos, revela el desajuste entre la previsión del presupuesto de los terrenos urbanizados y el coste real de los mismos (INV, 1960, p. 1). A la luz de estos datos se puede afirmar que la financiación de los poblados dirigidos de renta limitada no se sostiene por sí misma. El exceso de coste de los terrenos urbanizados se ve absorbido por sucesivas fases. Quizás, como apunta dicho informe, una mayor densidad “hubiese podido enjugar el exceso de coste de los terrenos” (INV, 1960, p. 1), pero se hubiera perdido la variación volumétrica y la mezcla de tipologías que caracteriza y hace relevante la experiencia como se puede observar en las tablas gráficas comparativas aportadas. El informe apunta que se proyectaron “grandes espacios libres y edificios de poca altura” (INV, 1960, p. 1), al proyectar poblados con una mezcla de viviendas unifamiliares y bloques de vivienda colectiva se crean como se ve en los planos, espacios intersticiales abiertos entre las edificaciones que, en algunos casos, quedan sin definir en proyecto, de los que no se previó el mantenimiento, ni tampoco se pensó en el futuro crecimiento, la accesibilidad y los aparcamientos.
En la ley se promueve la protección, no solo de las viviendas, sino también de la urbanización de los terrenos y los edificios complementarios, aunque el presupuesto previsto (15% del presupuesto protegible) no alcanzara a cubrir ni uno solo de estos aspectos (INV, 1960, p. 1). Tanto el mencionado informe como los diferentes expedientes de expropiación encontrados en los archivos ponen de manifiesto que las obras de las viviendas van por delante de los lentos procesos de expropiación25, sin tener en cuenta su elevado coste. También se constata con evidencias encontradas en los expedientes de los archivos que la obra de urbanización de los terrenos “se quedaría sin ejecutar” (INV, 1960, p. 1) y la construcción de edificios complementarios y servicios se construyen años después de las viviendas. Esto implica que los poblados no fueran autosuficientes como pretendía la ley, aunque no existía un planeamiento específico para integrarlos en la ciudad.
Se concluye que la causa principal de los problemas de planeamiento y gestión fue la urgencia social y, por ende, la celeridad con la que se redactaron los proyectos y empezaron las obras. Estas circunstancias conllevan consecuencias, ya no solo económicas por la falta de un estudio de la “financiación adecuada” (INV, 1960, p. 1), sino también constructivas por falta de previsión de ciertos factores antes de comenzar la construcción de los poblados. Reveladores han resultado los documentos de los archivos para detectar líneas de alta tensión, presencia de chabolismo en las zonas de actuación y otros condicionantes que hacen modificar la trama urbana de los proyectos una vez comenzadas las obras. La consecuencia más grave fue la desaparición del Poblado Dirigido de Orcasitas con gran variedad volumétrica y tipológica, que podría seguir existiendo en la actualidad si se hubiera realizado un mejor estudio del terreno previamente o se hubiera implantado en otro lugar.
Se mantiene el criterio de no cambiar las familias de su lugar de asentamiento primitivo; es decir, se construyeron las nuevas viviendas en la misma zona que las chabolas y así se consigue no desarraigar a la población. Pero esta circunstancia es un arma de doble filo porque no se desalojaban todas las chabolas y por consiguiente no se podían derribar, lo que hace que el primordial objetivo del Plan Nacional de Vivienda de 1955 se vea comprometido: no se logra erradicar el chabolismo de manera radical y tampoco se llegó a construir el número de viviendas pretendido en la primera fase de los poblados dirigidos.
Pese a todo, los poblados dirigidos de renta limitada fueron una actuación singular en el marco legislativo de vivienda social, una de las claves de su éxito es que una familia sin recursos ni cualificación, que se hubiera quedado sin trabajo en el campo, pudiese lograr acceder a una vivienda digna en el extrarradio de Madrid, con un préstamo a 50 años, sin intereses y aportando su propio trabajo “prestación personal” como entrada, en lugar de construir una chabola que era el modus operandi habitual. Se evita la especulación inmobiliaria y la arquitectura adquiere un valor social predominante. Como conclusión, nos sirve la declaración de la Dirección Técnica del Poblado de Entrevías que describe la prestación personal como “eficacísima forma de acceso a la propiedad de sus viviendas de la clase más modesta de la Nación” (Oíza & al., 1963, p. 9). De sus declaraciones se destilan las siguientes conclusiones: se confirma que su ejecución se dilata en el tiempo, debido a que solo se trabaja los domingos y días de fiesta; que la mano de obra de los “domingueros” no cualificados solo es apta para trabajos de albañilería; que en ocasiones se sobredimensiona el material empleado por trabajar construyendo su propia casa; que no se pensó en el alojamiento provisional de los adjudicatarios que tenían que habitar en las plantas bajas de las viviendas aún en construcción y que se emplean sistemas constructivos tradicionales y no “prefabricados” para que los “autoconstructores” puedan cubrir la aportación inicial del 20% con su trabajo. La conclusión que se desprende de esta reflexión es que el sistema de “prestación personal” es incompatible con el progreso tecnológico del país, ya que la prefabricación y mecanización de los procesos constructivos a los que incitaba la ley, acortan la duración de la obra y reducen la mano de obra. También las tipologías proyectadas deben ser aptas para la prestación personal, el 41% de las viviendas de los poblados son unifamiliares. Los arquitectos señalan la solidaridad entre los adjudicatarios, el sentimiento de identidad con el poblado pero aseguran que el usuario no intervino de forma participativa en el diseño de las viviendas.
El análisis de la comparativa de los dibujos de las tramas urbanas, teniendo como fuente principal los proyectos originales, confirma, por ejemplo, que en poblados como Caño Roto y Orcasitas se da una mezcla de tipologías edificatorias y usos que enriquece y potencia la vida del barrio. En contraposición, estos dos poblados tienen una menor densidad de vivienda por hectárea, lo que hace menos rentables las intervenciones. En el otro extremo, se puede concluir que en Entrevías se llega a una elevadísima densidad de vivienda por hectárea con solo tipologías de vivienda unifamiliar, debido a la economía en la disposición de las viviendas y las manzanas, que lleva la vivienda de mínimos proyectada por Oíza, Sierra y Alvear a la traza urbana compacta y eficiente.
Al igual que a nivel doméstico se proyecta una vivienda de mínimos, a nivel urbano se busca la forma más eficiente y económica de agrupar las viviendas. El caso más representativo es sin duda Entrevías, donde se forman hileras dobles que agrupan las viviendas de cuatro en cuatro (tipo B-C) concentrando los baños y minimizando así el coste de las instalaciones. En los edificios de vivienda colectiva, destacan Caño Roto y Orcasitas donde se proyecta una galería de comunicación cada tres plantas para dar acceso a las viviendas dúplex.
La óptima orientación de las viviendas es también relevante en los poblados. En Almendrales se busca de forma radical la orientación al mediodía de las zonas vivideras y todos los paños orientados al norte son ciegos. En Caño Roto y Orcasitas también la orientación es muy relevante, aunque en el caso de las viviendas de tipo social (autoconstruidas) prima el criterio de la economía al proyectar hilera doble de vivienda unifamiliar, sobre el criterio de orientación.
Se descubren en este trabajo, a través de la reelaboración gráfica de los planos y el análisis gráfico comparativo, las diferentes estrategias que emplearon estos arquitectos para conciliar la arquitectura de vanguardia, propia del tiempo que les había tocado vivir, y la coherencia con la realidad concreta de los poblados dirigidos. Se pone de relieve la función social de la arquitectura. Pese a los escasos recursos, la urgencia social y la celeridad a la hora de proyectar y construir, los arquitectos de los poblados experimentan con nuevas tipologías, nuevas formas de agruparlas en altura y nuevos modos de habitar. Estos jóvenes arquitectos, que han pasado a la historia como maestros reconocidos de la arquitectura española del siglo XX, se implicaron en las viviendas de renta reducida, como decía Sáenz de Oíza, “con la misma devoción e interés que si hubiese sido el Palacio de Comunicaciones”(Oíza, 1989, p. 179). Los poblados dirigidos de renta limitada son un campo de experimentación de modelos construidos en tiempos de escasez y autarquía, que nos siguen recordando el reto que supone para los arquitectos buscar estrategias alternativas para dar respuesta a los problemas de la sociedad actual.
9. Bibliografía
Almendrales. (1966): Hogar y Arquitectura, 67, pp. 10-13.
Alvear, J. (1963): Barrio de Entrevías. Arquitectura, 58, pp. 2-29.
Alvear, J. (1989): Conversaciones sobre poblados: La experiencia en el recuerdo de sus protagonistas. En L. Fernández Galiano, J. F. Isasi, & A. Lopera, La quimera moderna: Los Poblados Dirigidos en Madrid en la arquitectura de los 50. pp. 176-178: Hermann Blume.
Calvo del Olmo, J. M. (2014): El Poblado Dirigido de Caño Roto: Dialéctica entre morfología urbana y tipología edificatoria (east=-3.7396618000000217; north=40.3963711; name=Poblado Dirigido de Caño Roto, Madrid, Comunidad de Madrid) [Phd, E.T.S. Arquitectura (UPM)]. https://oa.upm.es/32704/
Cánovas Alcaraz, A. & Espegel Alonso, C. (2009): Poblado Dirigido de Caño Roto (Fases I y II) = Satellite Settlement of Caño Roto (Stages I-II). A. Vázquez de Castro-J.L. Íñiguez de Onzoño l Madrid, 1957-63 (A. Amann Alcocer, A. Cánovas Alcaraz, C. Espegel Alonso, J. M. García del Monte, C. Martínez Arroyo, N. Maruri González de Mendoza, & R. Pemjean Muñoz, Eds.; 2; Número 2). GIVCO, DPA ETSAM E.T.S. Arquitectura (UPM). https://oa.upm.es/67466/
Cánovas Alcaraz, A. & Espegel, C. & Feliz, S. & Lapuerta, J. M. (2021): Atlas de Poblados Dirigidos. Madrid, 1956-1966. Ediciones asimétricas.
Cánovas Alcaraz, A. & Ruiz Bernal, F. (Eds.). (2013): Poblado dirigido de Caño Roto (fases I y II): Vázquez de Castro e Íñiguez de Onzoño. Centro de Estudios y Experimentación de Obras Públicas : Escuela Técnica Superior de Arquitectura de Madrid.
Caño Roto. (1959): Aujourd´hui Art, 85, pp. 62-64.
Cervero Sánchez, N. (2020): Remodelación urbana del Poblado dirigido de Orcasitas: Evaluación gráfica de la intervención. Cuadernos de Vivienda y Urbanismo, 13. https://doi.org/10.11144/Javeriana.cvu13.rupd
Cervero Sánchez, N. (2020): La iniciativa ciudadana, como origen del cambio urbano. La remodelación del Poblado Dirigido de Orcasitas en Madrid. Ciudad y Territorio Estudios Territoriales, 52(204), Article 204. https://doi.org/10.37230/CyTET.2020.204.06
Cohn, D. (1992): Poblado dirigido in Caño Roto, Madrid. Deutsche Bauzeitung, 6, 95-100.
Concurso para Construcción de Viviendas Experimentales convocado por el Instituto Nacional de la Vivienda. (1956): Hogar y Arquitectura., 2, 15-16.
Córdoba, J. V. (Director) (2008): Flores de luna. [Película de documental]. España: Atalanta,
Cubillo, L. (1989): Conversaciones sobre poblados: La experiencia en el recuerdo de sus protagonistas. En L. Fernández-Galiano, J. F. Isasi, & A. Lopera, La quimera moderna: Los Poblados Dirigidos en Madrid en la arquitectura de los 50. pp. 180-183. Hermann Blume.
De Sica, V. (Director) (1956): Il Tetto.
Eliminación del chabolismo en Madrid. (1958): Hogar y Arquitectura, 15, 43.
Entrevías. (1963): Hogar y Arquitectura, 49, pp. 2-13.
Espegel, C. (2016): Poblado Dirigido de Entrevías, Madrid (ES): Francisco Javier Sáenz de Oíza, Manuel Sierra Nava & Jaime de Alvear Criado. DASH | Delft Architectural Studies on Housing, 12/13, Article 12/13.
Espegel Alonso, C. & Cánovas Alcaraz, A. & Baldellou, M. Á. (2010): Poblado Dirigido de Almendrales (Fase I) = Satellite Settlement of Almendrales (Stage I) F. J. Carvajal Ferrer-J. A. Corrales Gutiérrez-J. Ma. García de Paredes-R. Vázquez Molezún Madrid, 1959-66 (A. Amann Alcocer, A. Cánovas Alcaraz, C. Espegel Alonso, C. Martínez Arroyo, N. Maruri González de Mendoza, & R. Pemjean Muñoz, Eds.; 5; Número 5). GIVCO, DPA ETSAM, Universidad Politécnica de Madrid. https://oa.upm.es/67472/
Espegel Alonso, C. & Cánovas Alcaraz, A. & Ruíz Cabrero, G. (2010): Poblado Dirigido de Entrevías = Satellite Settlement of Entrevías. F. J. Sáenz de Oiza-J. de Alvear Criado-M. Sierra Nava l Madrid, 1956-60 (A. Amann Alcocer, A. Cánovas Alcaraz, C. Espegel Alonso, J. M. García del Monte, C. Martínez Arroyo, N. Maruri González de Mendoza, & R. Pemjean Muñoz, Eds.; 4; Número 4). GIVCO, DPA ETSAM, Universidad Politécnica de Madrid. https://oa.upm.es/67470/
Espegel Alonso, C. & Cánovas Alcaraz, A. & Amann Alcocer, A. (2011): Poblado Dirigido de Orcasitas (Fases I y II) = Satellite Settlement of Orcasitas (Stages I y II). Rafael Leoz de la Fuente—Joaquín Ruiz Hervás l Madrid, 1957-66 (A. Cánovas Alcaraz, C. Espegel Alonso, E. M. Campaña Barquero, D. Movilla Vega, & G. Rojas Pérez, Eds.; 7; Número 7). GIVCO, DPA ETSAM, Universidad Politécnica de Madrid. https://oa.upm.es/67476/
Espegel Alonso, C. & Cánovas Alcaraz, A. & Isasi, J. (2011): Poblado Dirigido de Canillas (Fases I y II = Satellite Settlement of Canillas (Stages I-II). Luis Cubillo de Arteaga l Madrid, 1957-62 (A. Cánovas Alcaraz, C. Espegel Alonso, C. Martínez Arroyo, R. Pemjean Muñoz, J. M. Calvo del Olmo, E. M. Campaña Barquero, D. Movilla Vega, & G. Rojas Pérez, Eds.; 6; Número 6). GIVCO, DPA ETSAM, Universidad Politécnica de Madrid. https://oa.upm.es/67475/
Espegel Alonso, C. & Cánovas Alcaraz, A. & Fernández Galiano, L. (2013): Poblado Dirigido de Fuencarral C. Satellite = Settlement of Fuencarral C. José Luis Romany Aranda | Madrid, 1956-60 (A. Cánovas Alcaraz, C. Espegel Alonso, E. M. Campaña Barquero, D. Movilla Vega, & G. Rojas Pérez, Eds.; 8; Número 8). GIVCO, DPA ETSAM, Universidad Politécnica de Madrid. https://oa.upm.es/67480/
Espegel Alonso, C. & Cánovas Alcaraz, A. & Lopera Arazola, A. (2013): Poblado Dirigido de Manoteras = Satellite Settlement of Manoteras. Madrid, 1958 | Manuel Ambrós Escanellas Mariano García Benito. Eduardo García Rodríguez Alfonso Quereizaeta Enríquez (A. Cánovas Alcaraz, C. Espegel Alonso, E. M. Campaña Barquero, D. Movilla Vega, & G. Rojas Pérez, Eds.; 8; Número 8). GIVCO, DPA ETSAM, Universidad Politécnica de Madrid. https://oa.upm.es/67479/
Espiago, J. (1979): El Pozo del Tío Raimundo en Madrid: Vol. II. Espasa Calpe S.A.
Esteban Maluenda, A. (1999): La vivienda social española en la década de los 50: Un paseo por los poblados dirigidos de Madrid. Cuaderno de Notas, 7, Article 7.
Esteban Maluenda, A. (2009): Poblados dirigidos de Madrid. VPOR2 Revista de vivienda, 6, Article 6.
Fernández Galiano, L. & Isasi, J. F. & Lopera, A. (1989): La quimera moderna: Los poblados dirigidos de Madrid en la arquitectura de los 50. Hermann Blume.
Guidi, S. (2019): El Poblado Dirigido de Entrevías en Madrid: El Proyecto y la Construcción en los documentos de los Archivos del Instituto Nacional de la Vivienda = The “Poblado Dirigido” of Entrevías in Madrid: Project and Construction in the Documents of the Archives of the “Instituto Nacional de La Vivienda”. Territorios en formación, 97. https://doi.org/10.20868/tf.2019.15.4003
Guillem González Blanch, M. del P. (2013): Tipología de vivienda en los poblados dirigidos de renta limitada: Madrid 1956-1959 (east=-3.7037901999999576; north=40.4167754; name=Madrid, Comunidad de Madrid, España) [Phd, E.T.S. Arquitectura (UPM)]. https://oa.upm.es/20288/
Guillem González Blanch, M. del P. (2015): La ciudad como laboratorio: Los poblados dirigidos de Madrid. En Arquitectura, patrimonio y ciudad pp. 187-190. Grupo de Investigación Arte, Arquitectura y Comunicación en la Ciudad Contemporánea. https://dialnet.unirioja.es/servlet/articulo?codigo=6373815
Guillem González-Blanch, M. del P. (2018): De las chabolas del Pozo del Tío Raimundo a las «domingueras» de Entrevías. En Narrativas urbanas: VIII Jornadas Internacionales Arte y Ciudad, 2018, ISBN 978-84-09-07822-6, págs. 889-898 pp. 889-898. Universidad Complutense de Madrid. https://dialnet.unirioja.es/servlet/articulo?codigo=8611462
Leira, E. & Gago, J. & Solana, I. (1976): Madrid, cuarenta años de crecimiento urbano. Ciudad y territorio, 213, 43-66.
Leoz, R. & Ruiz Hervás, J. (1961): Orcasitas. Temas de Arquitectura, 24, 922-926.
López Díaz, J. (2002): La vivienda social en Madrid, 1939-1959. Espacio Tiempo y Forma. Serie VII, Historia del Arte, 15, Article 15. https://doi.org/10.5944/etfvii.15.2002.2401
Los poblados de Madrid. (1971): Nueva Forma, 91, 36-37.
Manoteras. (1966): Hogar y arquitectura, 62, 2-16.
Moya González, L. (1980): Estudio socio-urbanístico de nueve barrios de promoción oficial de Madrid. Ciudad y territorio, 3, Article 3.
Moya González, L. (1983): Barrios de promoción oficial, Madrid 1939-1976: La política de promoción pública de vivienda. Colegio Oficial de Arquitectos de Madrid.
Oíza, F. J. (1989): Conversaciones sobre poblados: La experiencia en el recuerdo de sus protagonistas. En L. Fernández-Galiano, J. F. Isasi, & A. Lopera, La quimera moderna: Los Poblados Dirigidos en Madrid en la arquitectura de los 50. (pp. 178-180). Hermann Blume.
Orcasitas. (1960): Hogar y Arquitectura, 30.
Orcasitas. (1961a): Temas de Arquitectura, 22, pp. 856-857.
Orcasitas. (1961b): Temas de Arquitectura, 27, pp. 39-44.
Participación del usuario y autoconstrucción: El caso de Entrevías. (1977): Jano, arquitectura, 52, pp. 18-25.
Poblado dirigido de Almendrales. (1968): Nueva Forma, 25, p. 59.
Poblado dirigido de Caño Roto. (1959): Arquitectura, 8, pp. 2-17.
Poblado dirigido de Caño Roto (primera y segunda fases) 1606 viviendas. (1964): Hogar y Arquitectura, 54, 16-38
Poblado dirigido de Caño Roto en Madrid. (1969): Nueva Forma, 37, pp. 8-24.
Poblado dirigido de Caño Roto. (1973): Nueva Forma: arquitectura, urbanismo, diseño, ambiente, arte. Madrid, 93, pp. 38-39.
Sambricio, C. (2003): Un siglo de vivienda social, 1903-2003. Nerea.
Sambricio, C. (2009): La vivienda protegida. Historia de una necesidad. Ministerio de vivienda.
Valencia, F. & Salgado, C. & Moya González, L. (2021): Atlas de vivienda pública, Madrid 1940-2010.
Valenzuela, M. (1975): La pervivencia del chabolismo en Madrid. Temas de Madrid- 1.
Vázquez de Castro, A. (1989): Conversaciones sobre poblados: La experiencia en el recuerdo de sus protagonistas. En L. Fernández-Galiano, J. F. Isasi, & A. Lopera, La quimera moderna: Los Poblados Dirigidos en Madrid en la arquitectura de los 50. pp. 180-183. Hermann Blume.
Wohnquartier Caño Roto Madrid (1967): Baumeister, 64, pp. 718-721.
10. Referencias normativas y jurisprudencia
Decreto de 6 de abril de 1961, por el que se autoriza al Instituto Nacional de la Vivienda para financiar totalmente las obras de construcción de viviendas y servicios complementarios llevados a cabo por los diferentes Poblados dirigidos., Pub. L. No. 91, 7403 Boletín Oficial del Estado 5786 a 5787 (1961). https://www.boe.es/buscar/doc.php?id=BOE-A-1961-7403
Decreto de 1 de julio de 1955 por el que se arbitran los medios económicos para la realización del Plan de viviendas de «renta limitada» en el término municipal de Madrid., Pub. L. No. 197, Boletín Oficial del Estado, 197 4299 (1955). https://www.boe.es/buscar/doc.php?id=BOE-A-1955-10102
Decreto de 24 de junio de 1955 por el que se aprueba el Reglamento para la aplicación de la Ley de 15 de julio de 1954 sobre protección de «viviendas de renta limitada», Pub. L. No. 197, Boletín Oficial del Estado, 197 4301 (1955). https://www.boe.es/buscar/doc.php?id=BOE-A-1955-10102
Decreto de 8 de marzo de 1957 por el que se autoriza al Director general del Instituto Nacional de la Vivienda a tramitar proyectos y auxiliar económicamente a los promotores de los poblados dirigidos de Madrid., 91, Boletín Oficial del Estado, 91 11 (1957).
Orden de 12 de julio de 1955, por la que se aprueba el texto de las Ordenanzas técnicas y normas constructivas para “viviendas de renta limitada”, 197 Boletín Oficial del Estado, 4321 a 4327 (1955). https://www.boe.es/buscar/doc.php?id=BOE-A-1955-10121
Orden de 12 de julio de 1955 por la que se fija el valor tipo de construcción de las viviendas de «renta limítada». Boletín Oficial del Estado, 16 de julio de 1955., 197, BOE-A-1955-10118 4319 (1955). https://www.boe.es/buscar/doc.php?id=BOE-A-1955-10118
Ley de 15 de julio de 1954 sobre protección de «viviendas de renta limitada», 197 Boletín Oficial del Estado 4834 a 4841 (1954). https://www.boe.es/buscar/doc.php?id=BOE-A-1954-10883
11. Referencias a otros recursos/Fuentes documentales
Corrales, J. A. & Vázquez Molezún, R. & Carvajal, J. & García de Paredes, J. M. (1959): Secciones y Detalles constructivos. Proyecto de ejecución del poblado dirigido de Almendrales (M-5721-VP Expedientes poblados dirigidos.). Ministerio de la Vivienda. Archivo Secretaría General de Vivienda del MIVAU.
Corrales, J. A. & Vázquez Molezún, R. & Carvajal, J. & García de Paredes, J. M. (1962): Plano de vías y sendas. Proyecto de ejecución del poblado dirigido de Almendrales (M-5721-VP Expedientes poblados dirigidos.). Ministerio de la Vivienda. Archivo Secretaría General de Vivienda del MIVAU.
Cubillo de Arteaga, L. (1958): Proyecto de ejecución del poblado dirigido de Canillas (M-5-11PD /M-5498VP Expedientes poblados dirigidos.). Ministerio de la Vivienda. Archivo Secretaría General de Vivienda del MIVAU.
Dirección General de la Vivienda. (1960): Plan de actuación en el Barrio de Orcasitas (Expedientes poblados dirigidos. P.D. 4 y 12. Orcasitas 800viv.). Ministerio de la Vivienda. Archivo Secretaría General de Vivienda del MIVAU.
Gerencia de los poblados. (1963): Informe del Poblado Dirigido de Orcasitas (392875; p. 1). Archivo Regional de la Comunidad de Madrid.
Instituto Nacional de la Vivienda, INV(1960): Informes sobre los poblados dirigidos de viviendas de renta limitada. (M 1-2 y 8 PD; p. 5). Ministerio de la Vivienda. Archivo Secretaría General de Vivienda del MITMA.
Íñiguez de Onzoño, J. L. (2013): Entrevista sobre el Poblado dirigido de Caño Roto [Presencial].
Jurado de la Morena, A. (2017, octubre 27): Entrevista a un habitante del Poblado dirigido de Entrevías (viuda de autoconstructor) [Presencial].
Leoz, R. & Ruiz Hervás, J. (1958): Plano parcelario. Proyecto del poblado dirigido de Orcasitas (Expedientes poblados dirigidos. P.D. 4 y 12. Orcasitas 800viv.). Ministerio de la Vivienda. Archivo Secretaría General de Vivienda del MIVAU.
Leoz, R. & Ruiz Hervás, J. (1959): Urbanización de los terrenos. Proyecto de ejecución del poblado dirigido de Orcasitas (Expediente 10659). Archivo IVIMA. Instituto de la Vivienda de Madrid.
Leoz, R. & Ruiz Hervás, J. (1960): Proyecto adicional para corrección de asientos producidos en las viviendas unifamiliares por descenso del nivel freático del terreno. Archivo IVIMA.
Leoz, R. & Ruiz Hervás, J. (1963a): Locales comerciales. Proyecto de ejecución del poblado dirigido de Orcasitas (Expediente 10659). Archivo IVIMA. Instituto de la Vivienda de Madrid.
Leoz, R. & Ruiz Hervás, J. (1963b): Proyecto reformado del poblado dirigido de Orcasitas (392875. Expedientes poblados dirigidos.). Archivo Regional de la Comunidad de Madrid.
Llanos, J. M. (1961): Carta del Padre Llanos a la administración solicitando agilidad en la construcción de las viviendas prometidas en Entrevías. (M-2795RL Expedientes poblados dirigidos.). Ministerio de la Vivienda. Archivo Secretaría General de Vivienda del MIVAU.
Oíza, F. J. & Alvear, J. & Sierra, M. (1958): Plano de ordenación. Proyecto de ejecución del poblado dirigido de Entrevías (M-2795RL Expedientes poblados dirigidos.). Ministerio de la Vivienda. Archivo Secretaría General de Vivienda del MIVAU.
Oíza, F. J. & Sierra, M. & Alvear, J. (1963): Memoria del proyecto reformado del Poblado Dirigido de Entrevías 770 viviendas de tipo social. (M-2795-RL). Ministerio de la Vivienda. Archivo Secretaría General de Vivienda del MIVAU
Quereizaeta Enriquez, A. (2013): Entrevista sobre el Poblado dirigido de Manoteras [Presencial].
Romany, J. L. (1961): Plano de urbanización. Muros. Proyecto de ejecución del poblado dirigido de Fuencarral (M-6-7-10PD Expedientes poblados dirigidos.). Ministerio de la Vivienda. Archivo Secretaría General de Vivienda del MIVAU.
Vázquez de Castro, A. & Íñiguez de Onzoño, J. L. (1958): Plano de ordenación. Sistema de «prestación personal». Núcleo de Caño Roto. Proyecto de ejecución del poblado dirigido de Caño Roto (M-3BIS-13PD. Expedientes poblados dirigidos.). Ministerio de la Vivienda. Archivo Secretaría General de Vivienda del MIVAU.
12. Listado de Acrónimos/Siglas
BOE Boletín oficial del Estado
COAM Colegio Oficial de Arquitectos
COUAM Comisaría para la Ordenación Urbana de Madrid
ETSAM Escuela Técnica Superior de Arquitectura de Madrid
GIVCO Grupo de Investigación en Vivienda Colectiva GIVCO
INV Instituto Nacional de la Vivienda
IVIMA Instituto de la Vivienda de Madrid
MITMA Ministerio de Transportes, Movilidad y Agenda Urbana
MIVAU Ministerio de Vivienda y Agenda Urbana
OSH Obra Sindical del Hogar
P.D. Poblado Dirigido
UPM Universidad Politécnica de Madrid
1 Fuentes originales consistentes en los proyectos consultados en los diferentes archivos del Ministerio de la Vivienda, del Archivo Histórico del COAM, del IVIMA (Instituto de la Vivienda de Madrid) y del Archivo Regional de la Comunidad de Madrid.
2 Tesis inédita que es el primer trabajo que hace una comparación gráfica de diferentes variables de estudio de los siete poblados dirigidos. Otra tesis relevante es la de Calvo del Olmo (2014) que se centra en el Poblado Dirigido de Caño Roto y hace un recorrido por los siete poblados para enmarcar la cuestión.
3 CVI Cuadernos de Vivienda GIVCO ETSAM UPM. Caño Roto (Cánovas Alcaraz & Espegel Alonso, 2009); Entrevías (Espegel Alonso & Cánovas Alcaraz & Ruíz Cabrero, 2010); Almendrales (Espegel Alonso & Cánovas Alcaraz & Baldellou, 2010); Canillas (Espegel Alonso & Cánovas Alcaraz & Isasi, 2011); Orcasitas (Espegel Alonso & Cánovas Alcaraz & Amann Alcocer, 2011); Manoteras (Espegel Alonso & Cánovas Alcaraz & Lopera Arazola, 2013) y Fuencarral (Espegel Alonso & Cánovas Alcaraz & Fernández Galiano, 2013).
4 El módulo es igual a 1250 ptas/m2. Orden de 12 de julio de 1955, por la que se fija el valor tipo de la construcción de viviendas de “renta limitada”.
5 Aunque son muchos los expedientes consultados en este archivo, falta de información del poblado de Manoteras; documentación gráfica de algunos proyectos como Orcasitas, o planos de las viviendas de Caño Roto y Canillas.
6 En este archivo se han podido consultar los planos originales del poblado de Canillas, dentro del legado de Luis Cubillo.
7 Se encuentran, por ejemplo, varias cartas del padre Llanos increpando a la Administración y solicitando rapidez y eficacia en la construcción del poblado de Entrevías.
8 Como Canillas, que tuvo graves problemas de humedades y filtraciones y se recogen los informes en los archivos.
9 Finalmente, en abril de 1961 (Decreto 6/4/1961, 1961) autoriza al INV a financiar en la cuantía que fuera necesaria las obras de construcción de viviendas y de los servicios complementarios para evitar que los adjudicatarios tuvieran que cargar con el exceso de precio de los terrenos urbanizados “producido por el elevado coste de las expropiaciones”.
10 Excepto en Almendrales que es el último poblado (1958), donde los terrenos se adquirieron antes de comenzar las obras.
11 En esta película se incluyen fotogramas de la película italiana Il Tetto (1956), de Vittorio de Sica donde los protagonistas se acogen a una ley italiana de la época en la que los ocupantes de una vivienda autoconstruida no podían ser desahuciados una vez construido el techo de la casa.
12 Padre José María Llanos, s.j. también llamado el “cura del suburbio” que según sus propias palabras en la película Flores de Luna (Córdoba, 2008) sacaba dinero de Madrid para llevarlo al Pozo.
13 Expediente M-3bis-13-PD
14 Aurora Jurado de la Morena de 91 años de edad, 10 hijos, residente desde su origen 1956 en el Poblado dirigido de Entrevías bloque 26B.
15 Esta modificación también se da en Manoteras, pero este poblado no se construye con el sistema de “prestación personal”.
16 En el Poblado Dirigido de Orcasitas la superficie que se toma de referencia es la dibujada en la investigación que se asemeja a la superficie recogida en el libro de Moya Barrios de Promoción oficial, levemente superior a 40ha (Moya González, 1983, p. 136) y muy diferente de la de GIVCO 49,31ha (Espegel Alonso & Cánovas Alcaraz, & Amann Alcocer, 2011).
17 En el artículo se muestra un plano de la ciudad de Madrid en el que se superponen las zonas de crecimiento urbanístico con las zonas verdes proyectadas en el Plan Bidagor.
18 Destaca la iglesia de Almendrales de García de Paredes, ejemplo relevante de la arquitectura religiosa española del siglo XX.
19 Por ejemplo, la vivienda tipo D de Entrevías tiene como antecedente la vivienda presentada por Sáenz de Oíza para el Concurso de Vivienda Experimental (1956). Romany, arquitecto del Poblado Dirigido de Fuencarral fue ganador de dicho concurso.
20 Fuentes originales consistentes en los proyectos consultados en los diferentes archivos del Ministerio de la Vivienda, del Archivo Histórico del COAM, del IVIMA y del Archivo Regional de la Comunidad de Madrid.
21 La utilización del sistema “prestación personal” tiene que ver con el nivel adquisitivo de los adjudicatarios y solo se da para tipologías unifamiliares en Entrevías, Caño Roto, Orcasitas y Canillas y, excepcionalmente, en los bloques de 4 plantas de Canillas.
22 5 tipo 1A, 3 tipo 2B, 3 tipo 3C y 2 tipo 4D
23 En algunos casos, las galerías se sitúan en la fachada del bloque, pero dentro del volumen y la envolvente del mismo (1DEFG de Caño Roto); en otros casos, la galería es completamente exterior y parece más una superposición de hileras de viviendas unifamiliares que un bloque de vivienda colectiva (1D1, 1G, 1E, 1F de Orcasitas). Solo se da en un caso en que la galería se sitúa en el interior del bloque (1D de Orcasitas).
24 Al tratarse de viviendas tipo dúplex, las zonas más privadas de la vivienda (dormitorios) se sitúan en una planta diferente a la de acceso y, por lo tanto, la privacidad solo se ve vulnerada en las zonas comunes, y en diferente grado, según la distribución elegida por los arquitectos y el tipo de hueco que se abre hacia la galería.
25 Excepto en Almendrales que es el último poblado (1958), donde los terrenos se adquirieron antes de comenzar las obras.